Maison à construire à Les Ventes (27180)
Images
Description
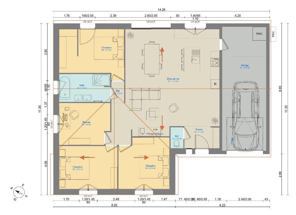
VENTE d'une maison de 6 pièces (100 m²) aux Ventes
IDÉALEMENT SITUÉE - MAISON 6 PIÈCES NEUVE
À deux pas d'Évreux, votre agence Maisons France Confort Vernon est heureuse de vous présenter cette maison de 6 pièces de plain-pied de 100 m² et de 700 m² de terrain idéalement située dans Les Ventes (27180).
Elle se divise en quatre chambres, une cuisine et une salle de bains. La maison est neuve.
Cette maison est située dans un quartier convoité. Une école primaire y est implantée. Niveau transports en commun, on trouve les gares La Bonneville-sur-Iton et Évreux Normandie à moins de 10 minutes en voiture. Les nationales N13 et N154 sont accessibles à moins de 9 km. Il y a une boulangerie à proximité.
Elle est proposée à l'achat pour 227 000 €.
Contactez notre agence (DEBART Murielle : (Numéro supprimé)) pour toute information sur la maison, sur les modalités de vente ou sur les démarches à suivre.
Logement susceptibles de vous intéresser
Nous vous proposons de découvrir aussi cette sélection de logements situés à moins de 10km de Les Ventes et qui seraient susceptibles de vous intéresser.
Évreux
TERRAINTerrain de 404 m² à vendre à GuichainvillePROCHE D’ÉVREUXÀ Guichainville (27930) à deux pas d’Évreux, découvrez ce terrain de 404 m². Des écoles maternelles et élémentaires sont implantées dans le quartier. Niveau transports en commun, il y a la gare Évreux Normandie à moins de 10 minutes en voiture. Les nationales N13 et N154 sont accessibles à moins de 3 km. On trouve un tennis, cinq commerces et une boulangerie à proximité.Il est proposé à l’achat pour 54 000 €. Prenez contact avec Aurélie KTARI (tél : (Numéro supprimé)) pour plus d’informations sur le terrain. Donnez vie à vos projets immobiliers avec Les Maisons Extraco Gravigny.
Angerville-la-Campagne
TERRAINTerrain de 471 m² à vendre à Angerville-la-CampagnePROCHE D’ÉVREUXÀ Angerville-la-Campagne (27930) à quelques kilomètres d’Évreux, découvrez ce terrain de 471 m². L’École Primaire Alphonse Cosme est implantée à moins de 10 minutes à pied. Niveau transports en commun, on trouve les gares Évreux Normandie et La Bonneville-sur-Iton à moins de 10 minutes en voiture. Les nationales N13 et N154 sont accessibles à moins de 4 km. Il y a un commerce à quelques minutes à peine.Il est proposé à l’achat pour 61 000 €. Prenez contact avec Aurélie KTARI (tél : (Numéro supprimé)) pour plus de renseignements sur ce terrain, sur les démarches à suivre ou sur les modalités de vente.
Aulnay-sur-Iton
TERRAINVENTE d’un terrain de 654 m² à Aulnay-sur-ItonIDÉALEMENT SITUÉ – PROCHE D’ÉVREUXÀ Aulnay-sur-Iton (27180) à quelques kilomètres d’Évreux, imaginez la maison de vos rêves sur ce terrain de 654 m². Il est orienté plein sud. Dans un secteur prisé, le terrain idéalement situé est proche des commerces et des écoles. L’École Primaire Paul Vezain est implantée à moins de 10 minutes à pied. Niveau transports, il y a trois gares (La Bonneville-sur-Iton, Évreux Normandie et Conches-en-Ouche) à moins de 10 minutes en voiture. Les nationales N13 et N154 sont accessibles à moins de 10 km. On trouve deux tennis dans les environs.Ce terrain est à vendre pour la somme de 45 000 €. Contactez Benjamin GRZESKOWIAK ((Numéro supprimé)) pour toute information sur le terrain ou sur les démarches à suivre.
Parville
TERRAINVENTE d’un terrain de 2 568 m² à ParvillePROCHE D’ÉVREUXGrand terrain à quelques kilomètres d’Évreux. De 2 568 m², ce terrain se situe dans Parville (27180). Il est orienté au sud. Ce terrain est proche des commerces et des écoles. Côté transports, on trouve les gares Évreux Normandie et La Bonneville-sur-Iton à moins de 10 minutes en voiture. On trouve un accès à la nationale N13 à 1 km. Il y a un commerce à quelques minutes du bien.Il est proposé à l’achat pour 107 000 €. N’hésitez pas à prendre contact avec notre agence (Benjamin GRZESKOWIAK : (Numéro supprimé)) pour obtenir de plus amples informations sur le terrain ou sur les modalités de vente.
Aulnay-sur-Iton
TERRAIN ET MAISONVENTE : maison F4 (141 m²) à Aulnay-sur-ItonIDÉALEMENT SITUÉE – MAISON 4 PIÈCES NEUVEEn vente à deux pas d’Évreux, nous vous proposons cette maison de 4 pièces de 141 m² et de 654 m² de terrain idéalement située dans Aulnay-sur-Iton (27180). Elle est composée de quatre chambres, d’une cuisine et de deux salles de bains.Cette maison comporte 2 niveaux. Elle est neuve.Cette maison se situe dans un secteur prisé. Il y a l’École Primaire Paul Vezain à moins de 10 minutes à pied. Niveau transports, on trouve trois gares (La Bonneville-sur-Iton, Évreux Normandie et Conches-en-Ouche) à moins de 10 minutes en voiture. Les nationales N13 et N154 sont accessibles à moins de 10 km. Il y a deux tennis à proximité.Son prix de vente est de 329 141 €.Contactez Benjamin GRZESKOWIAK ((Numéro supprimé)) pour plus d’informations sur le bien. Les Maisons Extraco Gravigny vous accompagne dans tous vos projets immobiliers et dans toutes vos démarches.
Aulnay-sur-Iton
TERRAIN ET MAISONMaison de 4 pièces (97 m²) en vente à Aulnay-sur-ItonIDÉALEMENT SITUÉE – MAISON 4 PIÈCES NEUVEÀ vendre : située à quelques kilomètres d’Évreux, votre agence Les Maisons Extraco Gravigny est ravie de vous présenter cette maison de 4 pièces de plain-pied de 97 m² idéalement située dans Aulnay-sur-Iton (27180).Conçue de plain-pied, elle se divise en trois chambres, une cuisine et une salle de bains. Cette maison est neuve.Le terrain de la propriété s’étend sur 654 m².Cette maison se situe dans un secteur prisé. L’École Primaire Paul Vezain se trouve à moins de 10 minutes à pied. Côté transports, il y a trois gares (La Bonneville-sur-Iton, Évreux Normandie et Conches-en-Ouche) à moins de 10 minutes en voiture. Les nationales N13 et N154 sont accessibles à moins de 10 km. On trouve deux tennis à quelques minutes à peine.Elle est à vendre pour la somme de 202 860 €.Contactez notre agence (Benjamin GRZESKOWIAK : (Numéro supprimé)) pour tout renseignement sur la maison ou sur les démarches à suivre.
Aulnay-sur-Iton
TERRAIN ET MAISONAulnay-sur-Iton : maison de 4 pièces (80 m²) en venteIDÉALEMENT SITUÉE – MAISON 4 PIÈCES NEUVEÀ vendre à 7 km d’Évreux, nous vous proposons, idéalement située dans Aulnay-sur-Iton (27180), cette maison de 4 pièces de plain-pied de 80 m².Conçue de plain-pied, elle se divise en trois chambres, une cuisine et une salle de bains. Cette maison est neuve.Le terrain de la propriété s’étend sur 654 m².La maison est située dans un quartier convoité. L’École Primaire Paul Vezain se trouve à moins de 10 minutes à pied. Niveau transports en commun, il y a trois gares (La Bonneville-sur-Iton, Évreux Normandie et Conches-en-Ouche) à moins de 10 minutes en voiture. Les nationales N13 et N154 sont accessibles à moins de 10 km. On trouve deux tennis à quelques minutes du logement.Elle est proposée à l’achat pour 186 200 €.N’hésitez pas à prendre contact avec notre agence (GRZESKOWIAK Benjamin : (Numéro supprimé)) pour obtenir de plus amples renseignements sur la maison.
Aulnay-sur-Iton
TERRAIN ET MAISONVENTE d’une maison de 4 pièces (71 m²) à Aulnay-sur-ItonIDÉALEMENT SITUÉE – MAISON 4 PIÈCES NEUVEÀ vendre : localisée à deux pas d’Évreux, nous sommes ravis de vous présenter cette maison de 4 pièces de plain-pied de 71 m² et de 654 m² de terrain idéalement située dans Aulnay-sur-Iton (27180).Conçue de plain-pied, elle inclut deux chambres, une cuisine et une salle de bains. Cette maison est neuve.La maison est située dans un secteur recherché. L’École Primaire Paul Vezain est implantée à moins de 10 minutes à pied. Niveau transports en commun, on trouve trois gares (La Bonneville-sur-Iton, Évreux Normandie et Conches-en-Ouche) à moins de 10 minutes en voiture. Les nationales N13 et N154 sont accessibles à moins de 10 km. Il y a deux tennis à proximité.Elle est proposée à l’achat pour 169 676 €.Contactez notre agence (Benjamin GRZESKOWIAK : (Numéro supprimé)) pour obtenir de plus amples informations sur la maison, sur les démarches à suivre ou sur les modalités de vente. Concrétisez vos projets immobiliers avec Les Maisons Extraco Gravigny.
Parville
TERRAIN ET MAISONMaison F4 (112 m²) en vente à ParvilleMAISON 4 PIÈCES NEUVE – PROCHE D’ÉVREUXÀ quelques kilomètres d’Évreux, votre agence Les Maisons Extraco Gravigny est heureuse de vous présenter cette maison de 4 pièces de 112 m² et de 2 568 m² de terrain à Parville (27180). Elle est composée de quatre chambres, d’une cuisine et de deux salles de bains.C’est une maison de 2 niveaux. Elle est neuve.Côté transports, on trouve deux gares (Évreux Normandie et La Bonneville-sur-Iton) à moins de 10 minutes en voiture. La nationale N13 est accessible à 1 km. Il y a un commerce à proximité.Elle est à vendre pour la somme de 311 280 €.Contactez Benjamin GRZESKOWIAK ((Numéro supprimé)) pour tout renseignement sur cette maison. Les Maisons Extraco Gravigny est là pour vous accompagner dans toutes vos démarches.
L’actualité immobilière à Les Ventes
16/10/2023