Maison à construire à Les Ventes (27180)
Images
Description
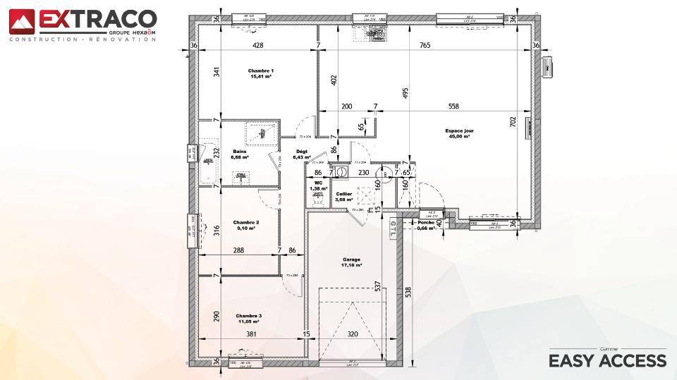
Les Ventes : maison F4 (98 m²) en vente
IDÉALEMENT SITUÉE - MAISON 4 PIÈCES NEUVE
En vente à 9 km d'Évreux, nous vous présentons cette maison de 4 pièces de plain-pied de 98 m² et de 948 m² de terrain, idéalement située dans Les Ventes (27180). Son intérieur se divise en trois chambres, une cuisine et une salle de bains.
La maison est neuve.
Cette maison se trouve dans un quartier prisé. Une école primaire y est implantée. Côté transports, il y a deux gares (La Bonneville-sur-Iton et Évreux Normandie) à moins de 10 minutes en voiture. Les nationales N13 et N154 sont accessibles à moins de 9 km. On trouve une boulangerie à quelques minutes à peine.
Elle est proposée à l'achat pour 226 390 €.
Contactez notre agence (GRZESKOWIAK Benjamin : (Numéro supprimé)) pour obtenir de plus amples renseignements sur la maison, sur les modalités de vente ou sur les démarches à suivre.
Logement susceptibles de vous intéresser
Nous vous proposons de découvrir aussi cette sélection de logements situés à moins de 10km de Les Ventes et qui seraient susceptibles de vous intéresser.
Guichainville
TERRAIN ET MAISONVENTE d’une maison F6 (120 m²) à GuichainvilleMAISON 6 PIÈCES NEUVE – PROCHE D’ÉVREUXÀ vendre : à deux pas d’Évreux, nous sommes ravis de vous présenter cette maison de 6 pièces de 120 m² à Guichainville (27930). Elle propose quatre chambres, une cuisine ouverte sur le séjour, deux salles de bains, un cellier et un garage.Le terrain du bien s’étend sur 516 m².Cette maison comporte 2 niveaux. Elle est neuve.Des établissements scolaires primaires sont implantés dans le quartier. Côté transports, il y a la gare Évreux Normandie à moins de 10 minutes en voiture. Les nationales N13 et N154 sont accessibles à moins de 3 km. On trouve un tennis, plusieurs commerces et une boulangerie à quelques minutes du logement.Son prix de vente est de 289 000 €.Contactez Aurélie KTARI (tél : (Numéro supprimé)) pour plus de renseignements sur la maison ou sur les modalités de vente.
Les Ventes
TERRAIN ET MAISONVENTE : maison de 4 pièces (70 m²) aux VentesIDÉALEMENT SITUÉE – MAISON 4 PIÈCES NEUVEÀ vendre : à 9 km d’Évreux, nous vous proposons cette maison de 4 pièces de plain-pied de 70 m² et de 948 m² de terrain, idéalement située dans Les Ventes (27180). Son intérieur se divise en trois chambres, une cuisine et une salle de bains.La maison est neuve.La maison est située dans un secteur convoité. Une école primaire y est implantée. Niveau transports en commun, il y a deux gares (La Bonneville-sur-Iton et Évreux Normandie) à moins de 10 minutes en voiture. Les nationales N13 et N154 sont accessibles à moins de 9 km. On trouve une boulangerie à proximité.Elle est à vendre pour la somme de 180 800 €.Contactez notre agence (Benjamin GRZESKOWIAK : (Numéro supprimé)) pour tout renseignement sur la maison ou sur les démarches à suivre.
Angerville-la-Campagne
TERRAIN ET MAISONVENTE : maison F5 (100 m²) à Angerville-la-CampagnePROCHE D’ÉVREUX – MAISON 5 PIÈCES NEUVEÀ vendre : localisée à quelques kilomètres d’Évreux, à Angerville-la-Campagne (27930), venez découvrir cette maison de 5 pièces de 100 m² et de 445 m² de terrain. Son intérieur inclut quatre chambres, une cuisine ouverte sur le séjour, deux salles de bains, un cellier et un garage.C’est une maison de 2 niveaux. Elle est neuve.On trouve l’École Primaire Alphonse Cosme à moins de 10 minutes à pied. Niveau transports en commun, il y a les gares Évreux Normandie et La Bonneville-sur-Iton à moins de 10 minutes en voiture. Les nationales N13 et N154 sont accessibles à moins de 4 km. On trouve un commerce à quelques minutes.Elle est à vendre pour la somme de 235 000 €.N’hésitez pas à prendre contact avec notre agence (Aurélie KTARI : (Numéro supprimé)) pour tout renseignement sur cette maison ou sur les démarches à suivre. Les Maisons Extraco Gravigny vous accompagne dans tous vos projets immobiliers et à toutes les étapes de l’achat.
Les Ventes
TERRAIN ET MAISONLes Ventes : maison F4 (98 m²) en venteIDÉALEMENT SITUÉE – MAISON 4 PIÈCES NEUVEEn vente à 9 km d’Évreux, nous vous présentons cette maison de 4 pièces de plain-pied de 98 m² et de 948 m² de terrain, idéalement située dans Les Ventes (27180). Son intérieur se divise en trois chambres, une cuisine et une salle de bains.La maison est neuve.Cette maison se trouve dans un quartier prisé. Une école primaire y est implantée. Côté transports, il y a deux gares (La Bonneville-sur-Iton et Évreux Normandie) à moins de 10 minutes en voiture. Les nationales N13 et N154 sont accessibles à moins de 9 km. On trouve une boulangerie à quelques minutes à peine.Elle est proposée à l’achat pour 226 390 €.Contactez notre agence (GRZESKOWIAK Benjamin : (Numéro supprimé)) pour obtenir de plus amples renseignements sur la maison, sur les modalités de vente ou sur les démarches à suivre.
La Croisille
TERRAINVENTE d’un terrain de 1 362 m² à La CroisillePROCHE D’ÉVREUXÀ La Croisille (27190) à 13 km d’Évreux, venez découvrir ce terrain de 1 362 m². Il est exposé plein sud. Ce terrain est proche des commerces et des écoles. Une école primaire est implantée dans le quartier. Niveau transports, il y a trois gares (Conches-en-Ouche, La Bonneville-sur-Iton et Romilly-la-Puthenaye) à moins de 10 minutes en voiture. Les nationales N13 et N154 sont accessibles à moins de 17 km.Ce terrain est à vendre pour la somme de 46 000 €. Prenez contact avec Benjamin GRZESKOWIAK (tél : (Numéro supprimé)) pour toute information sur le terrain, sur les modalités de vente ou sur les démarches à suivre. Donnez vie à vos projets immobiliers avec Les Maisons Extraco Gravigny.
Angerville-la-Campagne
TERRAIN ET MAISONVENTE d’une maison F4 (93 m²) à Angerville-la-CampagnePROCHE D’ÉVREUX – MAISON 4 PIÈCES NEUVEÀ vendre à quelques kilomètres d’Évreux, nous vous présentons cette maison de 4 pièces de plain-pied de 93 m² à Angerville-la-Campagne (27930).Elle propose trois chambres, une cuisine ouverte sur un séjour et une salle de bains. La maison est neuve.Le terrain du bien est de 445 m².On trouve l’École Primaire Alphonse Cosme à moins de 10 minutes à pied. Niveau transports, il y a deux gares (Évreux Normandie et La Bonneville-sur-Iton) à moins de 10 minutes en voiture. Les nationales N13 et N154 sont accessibles à moins de 4 km. On trouve un commerce dans les environs.Elle est à vendre pour la somme de 209 000 €.Prenez contact avec notre agence (KTARI Aurélie : (Numéro supprimé)) pour obtenir de plus amples informations sur cette maison ou sur les modalités de vente. Les Maisons Extraco Gravigny vous accompagne à toutes les étapes de votre projet et dans toutes vos démarches.
Conches-en-Ouche
TERRAIN ET MAISONVENTE : maison F3 (50 m²) à Conches-en-OucheIDÉALEMENT SITUÉE – MAISON 3 PIÈCES NEUVEÀ quelques kilomètres d’Évreux, en vente idéalement située dans Conches-en-Ouche (27190), nous sommes heureux de vous présenter cette maison de 3 pièces de plain-pied de 50 m². Son intérieur comporte deux chambres, une cuisine et une salle de bains.Le terrain de la propriété s’étend sur 872 m².La maison est neuve.Cette maison se situe dans un secteur convoité. Cinq établissements scolaires se trouvent à moins de 10 minutes à pied. Niveau transports, il y a la gare Conches-en-Ouche à quelques pas du bien. Les nationales N13 et N154 sont accessibles à moins de 19 km. On trouve un tennis, un bassin de natation, une bibliothèque, quatre boulangeries, des commerces, trois supermarchés, une épicerie et une supérette à proximité du logement.Elle est à vendre pour la somme de 130 300 €.Prenez contact avec Benjamin GRZESKOWIAK ((Numéro supprimé)) pour obtenir de plus amples informations sur la maison. Les Maisons Extraco Gravigny est là pour vous accompagner dans tous vos projets immobiliers.
Guichainville
TERRAIN ET MAISONMaison de 5 pièces (95 m²) en vente à GuichainvilleMAISON 5 PIÈCES NEUVE – PROCHE D’ÉVREUXÀ vendre : à 5 km d’Évreux, à Guichainville (27930), Les Maisons Extraco Gravigny vous propose cette maison de 5 pièces de plain-pied de 95 m².Conçue de plain-pied, elle offre quatre chambres, une cuisine ouverte sur le séjour et une salle de bains. Cette maison est neuve.Le terrain de la propriété est de 516 m².On trouve des écoles primaires dans le quartier. Niveau transports en commun, il y a la gare Évreux Normandie à moins de 10 minutes en voiture. Les nationales N13 et N154 sont accessibles à moins de 3 km. On trouve un tennis, cinq commerces et une boulangerie à quelques minutes.Elle est proposée à l’achat pour 209 000 €.Contactez notre agence (KTARI Aurélie : (Numéro supprimé)) pour toute information sur la maison ou sur les démarches à suivre. Les Maisons Extraco Gravigny vous accompagne à toutes les étapes de l’achat et dans tous vos projets immobiliers.
Conches-en-Ouche
TERRAIN ET MAISONVENTE d’une maison F6 (125 m²) à Conches-en-OucheIDÉALEMENT SITUÉE – MAISON 6 PIÈCES NEUVEÀ deux pas d’Évreux, laissez vous charmer par cette maison de 6 pièces de 125 m² idéalement située dans Conches-en-Ouche (27190). Son intérieur propose quatre chambres, une cuisine et deux salles de bains.Le terrain de la propriété est de 872 m².Il s’agit d’une maison de 2 niveaux. Elle est neuve.Cette maison est située dans un secteur attractif. Cinq établissements scolaires se trouvent à moins de 10 minutes à pied. Côté transports en commun, il y a la gare Conches-en-Ouche dans les environs. Les nationales N13 et N154 sont accessibles à moins de 19 km. On trouve un tennis, un bassin de natation, une bibliothèque, quatre boulangeries, des commerces, trois supermarchés, une supérette et un bureau de poste à quelques minutes à peine.Elle est à vendre pour la somme de 261 875 €.N’hésitez pas à prendre contact avec notre agence (Benjamin GRZESKOWIAK : (Numéro supprimé)) pour tout renseignement sur la propriété, sur les modalités de vente ou sur les démarches à suivre. Les Maisons Extraco Gravigny vous accompagne à toutes les étapes de votre projet et dans tous vos projets immobiliers.
L’actualité immobilière à Les Ventes
16/10/2023