Maison à construire à Terres De Bord (27400)
Images
Description
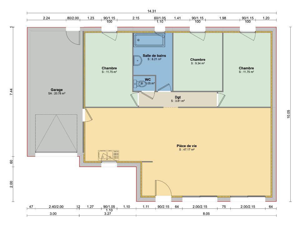
Maison de 5 pièces (90 m²) à vendre à Terres De Bord
MAISON 5 PIÈCES NEUVE - PROCHE DE ROUEN
À vendre : située à deux pas de Rouen, laissez vous charmer par cette maison de 5 pièces de plain-pied de 90 m² à Terres De Bord (27400).
Son intérieur offre trois chambres, une cuisine et une salle de bains. La maison est neuve.
Le terrain du bien s'étend sur 787 m².
L'École Primaire Montaure est implantée à moins de 10 minutes à pied, tout comme une crèche. Niveau transports en commun, il y a la gare Elbeuf-Saint-Aubin à moins de 10 minutes en voiture. Les autoroutes A13 et A154 et la nationale N154 sont accessibles à moins de 9 km. On trouve un tennis et une boulangerie à quelques minutes de la maison.
Elle est proposée à l'achat pour 209 500 €.
Contactez Kévin XAVIER ALVES (tél : (Numéro supprimé)) pour plus de renseignements sur cette propriété. Maisons Balency Boos vous accompagne dans toutes vos démarches et à toutes les étapes de votre projet.
Annonce proposée par un Agent Commercial Partenaire.
Logement susceptibles de vous intéresser
Nous vous proposons de découvrir aussi cette sélection de logements situés à moins de 10km de Louviers et qui seraient susceptibles de vous intéresser.
Louviers
TERRAINVENTE d’un terrain de 787 m² à Terres De BordPROCHE DE ROUENÀ deux pas de Rouen à Terres De Bord (27400), grand terrain. Il est prêt à accueillir votre projet de construction pour toute la famille. L’École Primaire Montaure se trouve à moins de 10 minutes à pied, tout comme une crèche. Niveau transports en commun, il y a la gare Elbeuf-Saint-Aubin à moins de 10 minutes en voiture. Les autoroutes A13 et A154 et la nationale N154 sont accessibles à moins de 9 km. On trouve un tennis et une boulangerie à proximité.Il est à vendre pour la somme de 70 000 €. N’hésitez pas à prendre contact avec notre agence (Kévin XAVIER ALVES : (Numéro supprimé)) pour plus d’informations sur ce terrain ou sur les démarches à suivre. Maisons Balency Boos vous accompagne dans tous vos projets immobiliers et à toutes les étapes de l’achat.Annonce proposée par un Agent Commercial Partenaire.
Les Damps
TERRAINVENTE : terrain de 610 m² aux DampsPROCHE DE ROUENAux Damps (27340) en vente à deux pas de Rouen, venez découvrir ce terrain de 610 m². On trouve l’École Primaire Jules Verne à moins de 10 minutes à pied. Niveau transports, il y a six gares à moins de 10 minutes en voiture. Les autoroutes A13 et A154 sont accessibles à moins de 7 km. On trouve un supermarché à quelques minutes à peine.Son prix de vente est de 85 000 €. Contactez Kévin XAVIER ALVES (tél : (Numéro supprimé)) pour toute question sur le terrain ou sur les démarches à suivre. Maisons Balency Boos est là pour vous accompagner dans tous vos projets immobiliers.Annonce proposée par un Agent Commercial Partenaire.
Louviers
TERRAIN ET MAISONVENTE d’une maison F7 (160 m²) à Terres De BordPROCHE DE ROUEN – MAISON 7 PIÈCES NEUVEEn vente : localisée à deux pas de Rouen, à Terres De Bord (27400), Maisons Balency Boos vous présente cette maison de 7 pièces de 160 m².Cette maison comporte 2 niveaux. Son intérieur dispose de quatre chambres, d’une cuisine et de deux salles de bains. La maison est neuve.Le terrain du bien est de 787 m².L’École Primaire Montaure est implantée à moins de 10 minutes à pied, tout comme une crèche. Niveau transports, il y a la gare Elbeuf-Saint-Aubin à moins de 10 minutes en voiture. Les autoroutes A13 et A154 et la nationale N154 sont accessibles à moins de 9 km. On trouve un tennis et une boulangerie à quelques minutes de la maison.Son prix de vente est de 369 900 €.Prenez contact avec notre agence (XAVIER ALVES Kévin : (Numéro supprimé)) pour tout renseignement sur la maison. Faites de vos projets immobiliers une réalité avec Maisons Balency Boos.Annonce proposée par un Agent Commercial Partenaire.
Louviers
TERRAIN ET MAISONMaison de 7 pièces (170 m²) à vendre à Terres De BordMAISON 7 PIÈCES NEUVE – PROCHE DE ROUENÀ 23 km de Rouen, votre agence Maisons Balency Boos est ravie de vous présenter en vente à Terres De Bord (27400), cette maison de 7 pièces de plain-pied de 170 m² et de 787 m² de terrain.Conçue de plain-pied, elle dispose de cinq chambres, d’une cuisine et de trois salles de bains. Cette maison est neuve.L’École Primaire Montaure est implantée à moins de 10 minutes à pied, tout comme une crèche. Niveau transports en commun, il y a la gare Elbeuf-Saint-Aubin à moins de 10 minutes en voiture. Les autoroutes A13 et A154 et la nationale N154 sont accessibles à moins de 9 km. On trouve un tennis et une boulangerie dans les environs.Son prix de vente est de 395 000 €.Contactez notre constructeur (Kévin XAVIER ALVES : (Numéro supprimé)) pour toute information sur cette maison, sur les démarches à suivre ou sur les modalités de vente. Concrétisez vos projets immobiliers avec Maisons Balency Boos.Annonce proposée par un Agent Commercial Partenaire.
Louviers
TERRAIN ET MAISONMaison de 5 pièces (90 m²) à vendre à Terres De BordMAISON 5 PIÈCES NEUVE – PROCHE DE ROUENÀ vendre : située à deux pas de Rouen, laissez vous charmer par cette maison de 5 pièces de plain-pied de 90 m² à Terres De Bord (27400).Son intérieur offre trois chambres, une cuisine et une salle de bains. La maison est neuve.Le terrain du bien s’étend sur 787 m².L’École Primaire Montaure est implantée à moins de 10 minutes à pied, tout comme une crèche. Niveau transports en commun, il y a la gare Elbeuf-Saint-Aubin à moins de 10 minutes en voiture. Les autoroutes A13 et A154 et la nationale N154 sont accessibles à moins de 9 km. On trouve un tennis et une boulangerie à quelques minutes de la maison.Elle est proposée à l’achat pour 209 500 €.Contactez Kévin XAVIER ALVES (tél : (Numéro supprimé)) pour plus de renseignements sur cette propriété. Maisons Balency Boos vous accompagne dans toutes vos démarches et à toutes les étapes de votre projet.Annonce proposée par un Agent Commercial Partenaire.
Louviers
TERRAIN ET MAISONVENTE : maison de 6 pièces (100 m²) à Terres De BordMAISON 6 PIÈCES NEUVE – PROCHE DE ROUENÀ 23 km de Rouen, nous vous proposons en vente à Terres De Bord (27400), cette maison de 6 pièces de 100 m². Son intérieur est composé de quatre chambres, d’une cuisine et de deux salles de bains.Le terrain de cette maison s’étend sur 787 m².C’est une maison de 2 niveaux. Elle est neuve.Il y a l’École Primaire Montaure à moins de 10 minutes à pied et une crèche. Niveau transports en commun, on trouve la gare Elbeuf-Saint-Aubin à moins de 10 minutes en voiture. Les autoroutes A13 et A154 et la nationale N154 sont accessibles à moins de 9 km. Il y a un tennis et une boulangerie à proximité de la maison.Elle est à vendre pour la somme de 262 000 €.Contactez Kévin XAVIER ALVES ((Numéro supprimé)) pour toute information sur ce bien. Concrétisez vos projets immobiliers avec Maisons Balency Boos.Annonce proposée par un Agent Commercial Partenaire.
Les Damps
TERRAIN ET MAISONVENTE : maison de 4 pièces (60 m²) aux DampsPROCHE DE ROUEN – MAISON 4 PIÈCES NEUVEÀ deux pas de Rouen, Maisons Balency Boos vous présente cette maison de 4 pièces de plain-pied de 60 m² aux Damps (27340). Son intérieur propose deux chambres, une cuisine et une salle de bains.Le terrain du bien s’étend sur 610 m².La maison est neuve.L’École Primaire Jules Verne est implantée à moins de 10 minutes à pied. Côté transports, on trouve six gares à moins de 10 minutes en voiture. Les autoroutes A13 et A154 sont accessibles à moins de 7 km. Il y a un supermarché à proximité.Elle est à vendre pour la somme de 191 000 €.N’hésitez pas à prendre contact avec notre agence (Kévin XAVIER ALVES : (Numéro supprimé)) pour toute information sur ce bien, sur les modalités de vente ou sur les démarches à suivre.Annonce proposée par un Agent Commercial Partenaire.
Les Damps
TERRAIN ET MAISONMaison T6 (100 m²) en vente aux DampsPROCHE DE ROUEN – MAISON 6 PIÈCES NEUVEEn vente : à deux pas de Rouen, aux Damps (27340), nous sommes heureux de vous présenter cette maison de 6 pièces de 100 m². Son intérieur inclut quatre chambres, une cuisine et deux salles de bains.Le terrain de la propriété s’étend sur 610 m².C’est une maison de 2 niveaux. Elle est neuve.L’École Primaire Jules Verne se trouve à moins de 10 minutes à pied. Côté transports en commun, il y a six gares à moins de 10 minutes en voiture. Les autoroutes A13 et A154 sont accessibles à moins de 7 km. On trouve un supermarché à quelques minutes.Elle est à vendre pour la somme de 279 000 €.Prenez contact avec notre agence (Kévin XAVIER ALVES : (Numéro supprimé)) pour obtenir de plus amples informations sur la maison et sur les modalités de vente. Faites de vos projets immobiliers une réalité avec Maisons Balency Boos.Annonce proposée par un Agent Commercial Partenaire.
Les Damps
TERRAIN ET MAISONLes Damps : maison de 7 pièces (160 m²) à vendrePROCHE DE ROUEN – MAISON 7 PIÈCES NEUVEEn vente : localisée à 18 km de Rouen, découvrez aux Damps (27340), cette maison de 7 pièces de 160 m². Elle offre quatre chambres, une cuisine et deux salles de bains.Le terrain de la maison est de 610 m².C’est une maison de 2 niveaux. Elle est neuve.L’École Primaire Jules Verne est implantée à moins de 10 minutes à pied. Niveau transports, il y a six gares à moins de 10 minutes en voiture. Les autoroutes A13 et A154 sont accessibles à moins de 7 km. On trouve un supermarché à quelques minutes à peine.Elle est proposée à l’achat pour 395 500 €.Contactez notre agence (Kévin XAVIER ALVES : (Numéro supprimé)) pour toute information sur ce bien et sur les modalités de vente. Maisons Balency Boos vous accompagne à toutes les étapes de l’achat et dans toutes vos démarches.Annonce proposée par un Agent Commercial Partenaire.
L’actualité immobilière à Louviers
27/11/2023
02/11/2023
30/10/2023
20/10/2023
16/10/2023
16/10/2023