Maison à construire à Lyons-la-Forêt (27480)
Images
Description
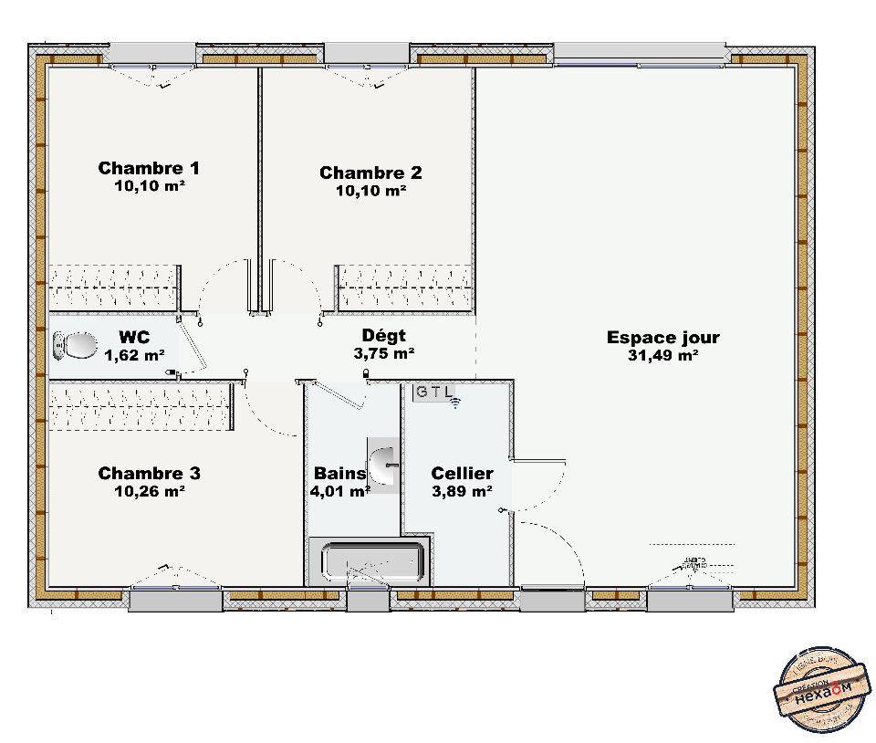
VENTE d'une maison T4 en structure bois (75 m²) à 5 minutes de Lyons-la-Forêt
IDÉALEMENT SITUÉE - MAISON 4 PIÈCES NEUVE
À vendre à quelques kilomètres de Rouen, Extraco Construction Rénovation Les Andelys vous présente cette maison de 4 pièces de plain-pied de 75 m², idéalement située dans Lyons-la-Forêt (27480). Son intérieur se divise en trois chambres, une cuisine et une salle de bains.
Le terrain du bien s'étend sur 1 100 m².
Cette maison est neuve.
La maison est située dans un secteur convoité. Il y a l'École Primaire Maurice Ravel à moins de 10 minutes à pied. On trouve un tennis, un bassin de natation, quatre commerces et une boulangerie à quelques minutes.
Elle est à vendre pour la somme de 205 100 €.
Contactez notre agence (GOITA Carole : (Numéro supprimé)) pour plus d'informations sur la maison. Concrétisez vos projets immobiliers avec Extraco Construction Rénovation Les Andelys.
Logement susceptibles de vous intéresser
Nous vous proposons de découvrir aussi cette sélection de logements situés à moins de 10km de Lyons-la-Forêt et qui seraient susceptibles de vous intéresser.
Val d'Orger
TERRAINVENTE d’un terrain de 980 m² à Gaillardbois-CressenvilleEMPLACEMENT PRIVILÉGIÉ – PROCHE DE ROUENGrand terrain à deux pas de Rouen. De 980 m², ce terrain se situe bénéficiant d’un emplacement privilégié dans Gaillardbois-Cressenville (27440). Il donne sur un espace vert. Dans un quartier convoité, ce terrain est proche des écoles et des commerces. Plusieurs écoles (maternelle, élémentaire, primaire et collège) sont implantées à moins de 10 minutes en voiture. Il y a trois bibliothèques, des tennis, deux bassins de natation, des commerces, des supermarchés, des boulangeries, quatre épiceries et quatre boucheries-charcuteries à quelques minutes à peine. Enfin, le marché Place de la République anime les environs tous les mardis matin.Il est à vendre pour la somme de 57 000 €. Prenez contact avec notre agence (GOITA Carole : (Numéro supprimé)) pour toute question sur le terrain ou sur les modalités de vente. Extraco Construction Rénovation Les Andelys vous accompagne dans toutes vos démarches et à toutes les étapes de votre projet.
Val d'Orger
TERRAIN ET MAISONVENTE d’une maison T4 (84 m²) à Gaillardbois-CressenvilleEMPLACEMENT PRIVILÉGIÉ – MAISON 4 PIÈCES NEUVEÀ vendre à deux pas de Rouen, nous vous proposons cette maison de 4 pièces de plain-pied de 84 m², bénéficiant d’un emplacement privilégié dans Gaillardbois-Cressenville (27440). Elle offre trois chambres, une cuisine et une salle de bains.Le terrain du bien est de 980 m².La maison est neuve.La maison se situe dans un secteur convoité. Plusieurs établissements scolaires (maternelle, élémentaire, primaire et collège) se trouvent à moins de 10 minutes en voiture. Il y a trois bibliothèques, des tennis, deux bassins de natation, des commerces, des supermarchés, des boulangeries, des bureaux de poste et quatre épiceries à quelques minutes à peine. Enfin, le marché Place de la République a lieu tous les mardis matin.Son prix de vente est de 229 700 €.N’hésitez pas à prendre contact avec notre agence (GOITA Carole : (Numéro supprimé)) pour toute question sur la propriété. Extraco Construction Rénovation Les Andelys vous accompagne dans tous vos projets immobiliers et à toutes les étapes de l’achat.
Val d'Orger
TERRAIN ET MAISONVENTE d’une maison de 5 pièces (105 m²) à Gaillardbois-CressenvilleEMPLACEMENT PRIVILÉGIÉ – MAISON 5 PIÈCES NEUVEÀ vendre à deux pas de Rouen, Extraco Construction Rénovation Les Andelys vous propose cette maison de 5 pièces de 105 m² et de 980 m² de terrain bénéficiant d’un emplacement privilégié dans Gaillardbois-Cressenville (27440).Cette maison possède 2 niveaux. Son intérieur propose quatre chambres, une cuisine et deux salles de bains. La maison est neuve.Cette maison se trouve dans un secteur recherché. Plusieurs écoles (maternelle, élémentaire, primaire et collège) sont implantées à moins de 10 minutes en voiture. Il y a trois bibliothèques, des tennis, deux bassins de natation, des commerces, des supermarchés, des boulangeries, quatre boucheries-charcuteries et des bureaux de poste à quelques minutes. Ne manquez pas le marché Place de la République chaque mardi matin.Elle est proposée à l’achat pour 252 700 €.Prenez contact avec notre agence (GOITA Carole : (Numéro supprimé)) pour plus de renseignements sur le bien, sur les modalités de vente ou sur les démarches à suivre. Extraco Construction Rénovation Les Andelys est là pour vous accompagner dans tous vos projets immobiliers.
Val d'Orger
TERRAIN ET MAISONVENTE d’une maison de 4 pièces (85 m²) à Gaillardbois-CressenvilleEMPLACEMENT PRIVILÉGIÉ – MAISON 4 PIÈCES NEUVEÀ deux pas de Rouen, nous vous proposons à vendre, bénéficiant d’un emplacement privilégié dans Gaillardbois-Cressenville (27440), cette maison de 4 pièces de plain-pied de 85 m². Son intérieur comporte trois chambres, une cuisine et une salle de bains.Le terrain du bien s’étend sur 980 m².La maison est neuve.Cette maison est située dans un secteur convoité. Plusieurs écoles (maternelle, élémentaire, primaire et collège) se trouvent à moins de 10 minutes en voiture. Il y a trois bibliothèques, des tennis, deux bassins de natation, des commerces, des supermarchés, des boulangeries, des bureaux de poste et quatre épiceries à proximité du logement. Le marché Place de la République anime le quartier chaque mardi matin.Elle est proposée à l’achat pour 234 700 €.Prenez contact avec Carole GOITA ((Numéro supprimé)) pour toute information sur la maison. Extraco Construction Rénovation Les Andelys est là pour vous accompagner dans tous vos projets immobiliers.
Val d'Orger
TERRAIN ET MAISONVENTE d’une maison T3 en structure bois (65 m²) à Gaillardbois-CressenvilleEMPLACEMENT PRIVILÉGIÉ – MAISON 3 PIÈCES NEUVEÀ vendre à deux pas de Rouen, votre agence Extraco Construction Rénovation Les Andelys est heureuse de vous présenter cette maison de 3 pièces de plain-pied de 65 m², bénéficiant d’un emplacement privilégié dans Gaillardbois-Cressenville (27440). Elle offre deux chambres, une cuisine et une salle de bains.Le terrain du bien s’étend sur 980 m².La maison est neuve.La maison se trouve dans un quartier convoité. Plusieurs écoles (maternelle, élémentaire, primaire et collège) sont implantées à moins de 10 minutes en voiture. Il y a trois bibliothèques, des tennis, deux bassins de natation, des commerces, des supermarchés, des boulangeries, des bureaux de poste et quatre boucheries-charcuteries dans les environs. Ne manquez pas le marché Place de la République tous les mardis matin.Son prix de vente est de 219 700 €.N’hésitez pas à prendre contact avec Carole GOITA ((Numéro supprimé)) pour toute information sur la maison, sur les modalités de vente et sur les démarches à suivre.
Val d'Orger
TERRAIN ET MAISONVENTE : maison de 4 pièces (135 m²) à Gaillardbois-CressenvilleEMPLACEMENT PRIVILÉGIÉ – MAISON 4 PIÈCES NEUVEEn vente : à 25 km de Rouen, Extraco Construction Rénovation Les Andelys vous présente, bénéficiant d’un emplacement d’exception dans Gaillardbois-Cressenville (27440), cette maison de 4 pièces de 135 m² et de 980 m² de terrain. Elle comporte cinq chambres, une cuisine et deux salles de bains.Cette maison possède 2 niveaux. Elle est neuve.La maison se situe dans un secteur prisé. Plusieurs écoles (maternelle, élémentaire, primaire et collège) se trouvent à moins de 10 minutes en voiture. Il y a trois bibliothèques, des tennis, deux bassins de natation, des commerces, des supermarchés, des boulangeries, des bureaux de poste et quatre épiceries dans les environs. Enfin, le marché Place de la République anime les environs chaque mardi matin.Son prix de vente est de 304 700 €.Contactez notre agence (GOITA Carole : (Numéro supprimé)) pour plus d’informations sur la maison. Extraco Construction Rénovation Les Andelys vous accompagne dans tous vos projets immobiliers et à toutes les étapes de votre projet.
Val d'Orger
TERRAIN ET MAISONVENTE : maison F4 (71 m²) à Gaillardbois-CressenvilleEMPLACEMENT PRIVILÉGIÉ – MAISON 4 PIÈCES NEUVEÀ quelques kilomètres de Rouen, à vendre bénéficiant d’un emplacement d’exception dans Gaillardbois-Cressenville (27440), nous vous présentons cette maison de 4 pièces de plain-pied de 71 m².Elle compte deux chambres, une cuisine et une salle de bains. Cette maison est neuve.Le terrain de la propriété est de 980 m².La maison se situe dans un quartier recherché. Plusieurs établissements scolaires (maternelle, élémentaire, primaire et collège) sont implantés à moins de 10 minutes en voiture. On trouve trois bibliothèques, des tennis, deux bassins de natation, des commerces, des supermarchés, des boulangeries, quatre boucheries-charcuteries et des bureaux de poste dans les environs. Ne manquez pas le marché Place de la République chaque mardi matin.Son prix de vente est de 206 700 €.Prenez contact avec notre agence (GOITA Carole : (Numéro supprimé)) pour toute question sur la maison. Donnez vie à vos projets immobiliers avec Extraco Construction Rénovation Les Andelys.
Lyons-la-Forêt
TERRAINTerrain de 1 200 m² en vente à Lyons-la-ForêtIDÉALEMENT SITUÉ – VUE DÉGAGÉEEn vente à 28 km de Rouen à Lyons-la-Forêt (27480), grand terrain. Réalisez-y votre résidence principale ou secondaire. Il profite d’une vue dégagée. Dans un quartier convoité, ce terrain idéalement situé est proche des commerces et des écoles. Il y a l’École Primaire Maurice Ravel à moins de 10 minutes à pied. On trouve un tennis, un bassin de natation, quatre commerces et une boulangerie à quelques minutes du terrain.Son prix de vente est de 55 000 €. Prenez contact avec notre agence (LEOVANT Aurélien : (Numéro supprimé)) pour toute question sur le terrain ou sur les modalités de vente.Annonce proposée par un Agent Commercial Partenaire.
Lyons-la-Forêt
TERRAIN ET MAISONVENTE : maison de 6 pièces (139 m²) à Lyons-la-ForêtIDÉALEMENT SITUÉE – MAISON 6 PIÈCES NEUVEEn vente : localisée à deux pas de Rouen, nous vous proposons cette maison de 6 pièces de 139 m² et de 1 200 m² de terrain idéalement située dans Lyons-la-Forêt (27480). Son intérieur dispose de quatre chambres, d’une cuisine et de deux salles de bains.Il s’agit d’une maison de 2 niveaux. Elle est neuve.Cette maison se trouve dans un secteur recherché. Il y a l’École Primaire Maurice Ravel à moins de 10 minutes à pied. On trouve un tennis, un bassin de natation, quatre commerces et une boulangerie à proximité de la maison.Son prix de vente est de 323 600 €.Contactez notre agence (LEOVANT Aurélien : (Numéro supprimé)) pour tout renseignement sur la maison. Maisons Balency Boos est là pour vous accompagner dans tous vos projets immobiliers.Annonce proposée par un Agent Commercial Partenaire.
L’actualité immobilière à Lyons-la-Forêt
27/11/2023
02/11/2023
30/10/2023
20/10/2023
16/10/2023
16/10/2023