Maison à construire à Manneville-sur-Risle (27500)
Images
Description
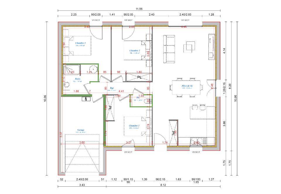
Maisons France Confort Lisieux vous propose de construire cette maison de plain pied de 78m².
Il se compose d'une entrée avec placard, une belle pièce de vie lumineuse
Dans l'espace nuit, 3 chambres et une salle de bain.
Un accès au garage depuis la maison.
Belles prestations :
- carrelage 45*45
- menuiserie encastrer à la maçonnerie
- volet roulant électrique somfy
- système de chauffage très économique
Pour une étude de construction, merci de prendre rdv avec Mme Vaudry Angélique (Numéro supprimé)
Logement susceptibles de vous intéresser
Nous vous proposons de découvrir aussi cette sélection de logements situés à moins de 10km de Manneville-sur-Risle et qui seraient susceptibles de vous intéresser.
Appeville-Annebault
TERRAINVENTE d’un terrain de 922 m² à Appeville-AnnebaultIDÉALEMENT SITUÉ – VUE DÉGAGÉEÀ Appeville-Annebault (27290) en vente à 26 km de la Manche, venez découvrir ce terrain de 922 m². Ce terrain, avec vue dégagée, bénéficie d’une exposition sud-ouest. Dans un secteur attractif, le terrain idéalement situé est proche des commerces et des écoles. Il y a l’École Primaire les Chataigniers, le Collège Marcel Marceron et le Collège le Roumois à moins de 10 minutes en voiture et deux crèches à moins de 10 minutes à pied. Niveau transports, on trouve la gare Glos-Montfort à moins de 10 minutes en voiture. Les autoroutes A13 et A131 sont accessibles à moins de 9 km. Il y a des tennis, une bibliothèque, deux bassins de natation, des commerces, des boulangeries, des supermarchés, des boucheries-charcuteries et des épiceries à proximité. Ne manquez pas le marché Place Leclerc chaque mercredi matin.Son prix de vente est de 49 000 €. N’hésitez pas à prendre contact avec notre agence (Cécilia GARCIA : (Numéro supprimé)) pour toute information sur le terrain, sur les modalités de vente ou sur les démarches à suivre. Les Maisons Extraco Construction Rénovation Pont-Audemer vous accompagne dans tous vos projets immobiliers et à toutes les étapes de l’achat.
Pont-Audemer
TERRAINPont-Audemer : terrain de 543 m² à vendreCENTRE-VILLE – VUE DÉGAGÉEEn vente à 14 km de la Manche à Pont-Audemer (27500), grand terrain. Il est prêt à accueillir votre projet de construction pour toute la famille. Il profite d’une vue dégagée et est orienté au sud-ouest. En centre-ville, ce terrain est proche des commerces et des écoles. Des établissements scolaires (de la maternelle au lycée) sont implantés à moins de 10 minutes à pied, tout comme une crèche. Les autoroutes A13 et A131 sont accessibles à moins de 8 km. On trouve un tennis, des commerces, des boulangeries, trois supermarchés, des épiceries et deux poissonneries à proximité du terrain. Enfin, le marché Rue de la République anime les environs.Il est proposé à l’achat pour 44 200 €. N’hésitez pas à prendre contact avec notre agence (Cécilia GARCIA : (Numéro supprimé)) pour toute information sur le terrain, sur les modalités de vente ou sur les démarches à suivre. Les Maisons Extraco Construction Rénovation Pont-Audemer vous accompagne dans tous vos projets immobiliers et à toutes les étapes de l’achat.
Corneville-sur-Risle
TERRAINVENTE : terrain de 1 397 m² à Corneville-sur-RisleÀ Corneville-sur-Risle (27500) en vente à 20 km de la Manche, découvrez ce terrain de 1 397 m². Il y a des écoles primaires dans le quartier. Niveau transports, on trouve la gare Glos-Montfort à moins de 10 minutes en voiture. Les autoroutes A13 et A131 sont accessibles à moins de 6 km. Il y a un tennis à quelques minutes.Son prix de vente est de 49 000 €. Prenez contact avec notre agence (Juliette PETIT : (Numéro supprimé)) pour toute question sur ce terrain ou sur les modalités de vente. Les Maisons Extraco Pont-Audemer est là pour vous accompagner à toutes les étapes de l’achat.
Corneville-sur-Risle
TERRAINVENTE d’un terrain de 1 858 m² à Corneville-sur-RisleÀ Corneville-sur-Risle (27500) à 20 km de la Manche, venez découvrir ce terrain de 1 858 m². Il y a des écoles maternelles et élémentaires dans le quartier. Niveau transports, on trouve la gare Glos-Montfort à moins de 10 minutes en voiture. Les autoroutes A13 et A131 sont accessibles à moins de 6 km. Il y a un tennis à quelques minutes.Son prix de vente est de 49 000 €. Contactez notre agence (Juliette PETIT : (Numéro supprimé)) pour plus de renseignements sur le terrain.
Corneville-sur-Risle
TERRAIN ET MAISONCorneville-sur-Risle : maison de 4 pièces (85 m²) en venteMAISON 4 PIÈCES NEUVEÀ 20 km de la Manche, Les Maisons Extraco Pont-Audemer vous présente en vente à Corneville-sur-Risle (27500), cette maison de 4 pièces de plain-pied de 85 m² et de 1 858 m² de terrain. Elle dispose de trois chambres, d’une cuisine et d’une salle de bains.Cette maison est neuve.Il y a des écoles maternelles et élémentaires dans le quartier. Niveau transports, on trouve la gare Glos-Montfort à moins de 10 minutes en voiture. Les autoroutes A13 et A131 sont accessibles à moins de 6 km. Il y a un tennis dans les environs.Elle est à vendre pour la somme de 208 000 €.Prenez contact avec Juliette PETIT (tél : (Numéro supprimé)) pour plus d’informations sur cette maison.
Corneville-sur-Risle
TERRAIN ET MAISONMaison de 5 pièces (105 m²) à vendre à Corneville-sur-RisleMAISON 5 PIÈCES NEUVEEn vente : à 20 km de la Manche, Les Maisons Extraco Pont-Audemer vous présente à Corneville-sur-Risle (27500), cette maison de 5 pièces de 105 m². Elle propose quatre chambres, une cuisine et deux salles de bains.Le terrain de la maison est de 1 397 m².Cette maison possède 2 niveaux. Elle est neuve.Des établissements scolaires maternelles et élémentaires sont implantés dans le quartier. Niveau transports en commun, on trouve la gare Glos-Montfort à moins de 10 minutes en voiture. Les autoroutes A13 et A131 sont accessibles à moins de 6 km. Il y a un tennis à quelques minutes.Elle est à vendre pour la somme de 234 000 €.Contactez notre agence (Juliette PETIT : (Numéro supprimé)) pour toute question sur cette maison, sur les démarches à suivre ou sur les modalités de vente. Les Maisons Extraco Pont-Audemer vous accompagne à toutes les étapes de votre projet et dans tous vos projets immobiliers.
Corneville-sur-Risle
TERRAIN ET MAISONVENTE d’une maison T5 (100 m²) à Corneville-sur-RisleMAISON 5 PIÈCES NEUVEEn vente à 20 km de la Manche, notre agence Les Maisons Extraco Pont-Audemer est heureuse de vous présenter à Corneville-sur-Risle (27500), cette maison de 5 pièces de 100 m² et de 1 858 m² de terrain. Son intérieur comporte quatre chambres, une cuisine et une salle de bains.Il s’agit d’une maison de 2 niveaux. Elle est neuve.Des établissements scolaires primaires sont implantés dans le quartier. Côté transports en commun, il y a la gare Glos-Montfort à moins de 10 minutes en voiture. Les autoroutes A13 et A131 sont accessibles à moins de 6 km. On trouve un tennis à quelques minutes à peine.Son prix de vente est de 229 000 €.Contactez notre agence (Juliette PETIT : (Numéro supprimé)) pour plus d’informations sur la maison ou sur les démarches à suivre.
Corneville-sur-Risle
TERRAIN ET MAISONCorneville-sur-Risle : maison F6 (120 m²) en venteMAISON 6 PIÈCES NEUVEÀ vendre : à 20 km de la Manche, Les Maisons Extraco Pont-Audemer vous présente cette maison de 6 pièces de 120 m² à Corneville-sur-Risle (27500). Elle comporte quatre chambres, une cuisine et deux salles de bains.Le terrain de la maison est de 1 397 m².Cette maison possède 2 niveaux. Elle est neuve.Des écoles primaires sont implantées dans le quartier. Niveau transports en commun, il y a la gare Glos-Montfort à moins de 10 minutes en voiture. Les autoroutes A13 et A131 sont accessibles à moins de 6 km. On trouve un tennis à quelques minutes à peine.Elle est proposée à l’achat pour 285 000 €.Prenez contact avec Juliette PETIT ((Numéro supprimé)) pour plus d’informations sur cette maison, sur les démarches à suivre ou sur les modalités de vente. Les Maisons Extraco Pont-Audemer vous accompagne à toutes les étapes de votre projet et dans tous vos projets immobiliers.
Corneville-sur-Risle
TERRAIN ET MAISONVENTE d’une maison T6 (139 m²) à Corneville-sur-RisleMAISON 6 PIÈCES NEUVEEn vente à 20 km de la Manche, Les Maisons Extraco Pont-Audemer vous propose cette maison de 6 pièces de 139 m² à Corneville-sur-Risle (27500). Son intérieur offre quatre chambres, une cuisine et deux salles de bains.Le terrain de la propriété s’étend sur 1 397 m².Cette maison comporte 2 niveaux. Elle est neuve.Il y a des établissements scolaires primaires dans le quartier. Côté transports en commun, on trouve la gare Glos-Montfort à moins de 10 minutes en voiture. Les autoroutes A13 et A131 sont accessibles à moins de 6 km. Il y a un tennis à proximité.Son prix de vente est de 327 000 €.Contactez notre agence (Juliette PETIT : (Numéro supprimé)) pour obtenir de plus amples renseignements sur la maison ou sur les modalités de vente.
L’actualité immobilière à Manneville-sur-Risle
27/11/2023
02/11/2023
30/10/2023
20/10/2023
16/10/2023
16/10/2023