Maison à construire à Marcilly-la-Campagne (27320)
Images
Description
VENTE : maison de 5 pièces (125 m²) à Marcilly-la-Campagne
PROCHE D'ÉVREUX - MAISON 5 PIÈCES NEUVE
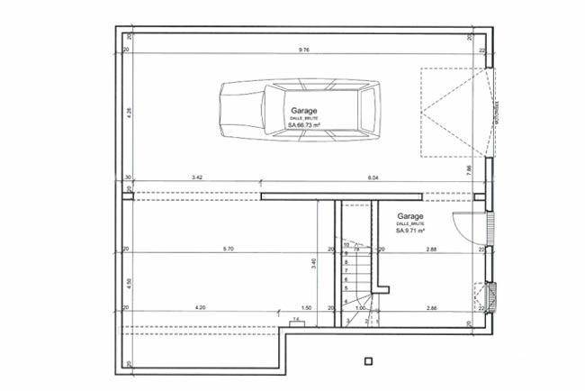
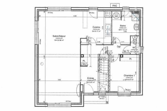
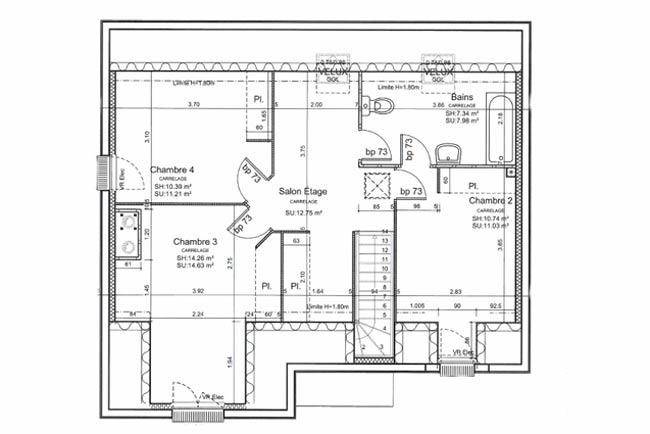
En vente : localisée à deux pas d'Évreux, notre agence Les Maisons Extraco Gravigny est ravie de vous présenter cette maison de 5 pièces de 125 m² à Marcilly-la-Campagne (27320). Son intérieur dispose de quatre chambres, d'une cuisine et de deux salles de bains.
Le terrain de la maison est de 800 m².
Cette maison comporte 2 niveaux. Elle est neuve.
Une école primaire est implantée dans le quartier. Niveau transports en commun, il y a la gare Nonancourt à moins de 10 minutes en voiture. Les nationales N154 et N12 sont accessibles à moins de 8 km.
Son prix de vente est de 301 230 €.
N'hésitez pas à prendre contact avec notre agence (GRZESKOWIAK Benjamin : (Numéro supprimé)) pour toute question sur cette propriété. Les Maisons Extraco Gravigny vous accompagne dans tous vos projets immobiliers et à toutes les étapes de l'achat.
Logement susceptibles de vous intéresser
Nous vous proposons de découvrir aussi cette sélection de logements situés à moins de 10km de Marcilly-la-Campagne et qui seraient susceptibles de vous intéresser.
Marcilly-la-Campagne
TERRAINVENTE d’un terrain de 803 m² à Marcilly-la-CampagneIDÉALEMENT SITUÉ – PROCHE D’ÉVREUXÀ Marcilly-la-Campagne (27320) en vente à quelques kilomètres d’Évreux, projetez la maison de vos rêves sur ce terrain de 803 m². Ce terrain, exposé plein ouest, donne sur un jardin. Terrain viabilisé . Il se situe dans un quartier attractif. On y trouve une école primaire. Ce terrain est à vendre pour la somme de 50 000 €. Prenez contact avec Fanny GATINAULT ((Numéro supprimé)) pour toute question sur le terrain. Maisons Balency Louviers est là pour vous accompagner à toutes les étapes de l’achat.Annonce proposée par un Agent Commercial Partenaire.
Marcilly-la-Campagne
TERRAIN ET MAISONVENTE d’une maison F4 (80 m²) à Marcilly-la-CampagneIDÉALEMENT SITUÉE -En vente à quelques kilomètres d’Évreux, idéalement située dans Marcilly-la-Campagne (27320), nous sommes heureux de vous présenter cette maison de 4 pièces de plain-pied de 80 m². Elle inclut trois chambres, une cuisine et une salle de bains.Le terrain de la propriété est de 803 m².Cette maison est neuve.La propriété est située dans un quartier attractif. On y trouve une école primaire. Elle est à vendre pour la somme de 186 138 €.Contactez notre agence (GATINAULT Fanny : (Numéro supprimé)) pour toute question sur la maison, sur les démarches à suivre ou sur les modalités de vente.Annonce proposée par un Agent Commercial Partenaire.
Marcilly-la-Campagne
TERRAIN ET MAISONMarcilly-la-Campagne : maison de 6 pièces (117 m²) en venteIDÉALEMENT SITUÉE – MAISON 6 PIÈCES NEUVEÀ vendre : située à 21 km d’Évreux, notre agence Maisons Balency Louviers est ravie de vous proposer cette maison de 6 pièces de plain-pied de 117 m², idéalement située dans Marcilly-la-Campagne (27320).Son intérieur est composé de quatre chambres dont une suite parentale, d’une cuisine ouverte sur l’espace de vie, d’un cellier, de deux salles de bains et d’un garage. Le terrain du bien est de 803 m².Cette maison se trouve dans un secteur recherché. Une école primaire y est implantée. Elle est proposée à l’achat pour 266 325 €.Contactez Fanny GATINAULT ((Numéro supprimé)) pour plus d’informations sur la propriété, sur les modalités de vente ou sur les démarches à suivre. Maisons Balency Louviers vous accompagne dans tous vos projets immobiliers et dans toutes vos démarches.Annonce proposée par un Agent Commercial Partenaire.
Mesnil-sur-l'Estrée
TERRAINTerrain de 730 m² à vendre à Mesnil-sur-l’EstréePROCHE D’ÉVREUXGrand terrain à deux pas du Transilien N (gare de Dreux, 60 min de Paris). De 730 m², ce terrain se situe dans Mesnil-sur-l’Estrée (27650). Le terrain est proche des écoles et des commerces. Une école primaire est implantée dans le quartier. Niveau transports en commun, il y a les gares Dreux et Nonancourt à moins de 10 minutes en voiture. Les nationales N12 et N154 sont accessibles à moins de 8 km et Évreux se situe à 29 km. On trouve une boulangerie et deux supérettes à quelques minutes.Ce terrain est proposé à l’achat pour 66 000 €. Prenez contact avec notre agence (Benjamin GRZESKOWIAK : (Numéro supprimé)) pour obtenir de plus amples renseignements sur le terrain ou sur les démarches à suivre. Les Maisons Extraco Gravigny vous accompagne à toutes les étapes de l’achat et dans tous vos projets immobiliers.
Mesnil-sur-l'Estrée
TERRAIN ET MAISONMesnil-sur-l’Estrée : maison de 4 pièces (85 m²) en ventePROCHE D’ÉVREUX – MAISON 4 PIÈCES NEUVEÀ quelques minutes de la gare de Dreux (Paris à 60 min avec le Transilien N), votre agence Les Maisons Extraco Gravigny est ravie de vous proposer en vente à Mesnil-sur-l’Estrée (27650), cette maison de 4 pièces de 85 m² et de 730 m² de terrain. Son intérieur comporte trois chambres, une cuisine et une salle de bains.Cette maison compte 2 niveaux. Elle est neuve.Une école primaire est implantée dans le quartier. Niveau transports en commun, il y a les gares Dreux et Nonancourt à moins de 10 minutes en voiture. Les nationales N12 et N154 sont accessibles à moins de 8 km et Évreux se situe à 29 km. On trouve une boulangerie et deux supérettes à quelques minutes.Son prix de vente est de 210 500 €.N’hésitez pas à prendre contact avec Benjamin GRZESKOWIAK (tél : (Numéro supprimé)) pour obtenir de plus amples renseignements sur la maison, sur les modalités de vente ou sur les démarches à suivre. Les Maisons Extraco Gravigny vous accompagne à toutes les étapes de votre projet et dans tous vos projets immobiliers.
Mesnil-sur-l'Estrée
TERRAIN ET MAISONMesnil-sur-l’Estrée : maison F4 (110 m²) en venteMAISON 4 PIÈCES NEUVE – PROCHE D’ÉVREUXEn vente : à deux pas du Transilien N (gare de Dreux, 60 min de Paris), nous sommes ravis de vous présenter cette maison de 4 pièces de plain-pied de 110 m² à Mesnil-sur-l’Estrée (27650). Son intérieur est composé de deux chambres, d’une cuisine et d’une salle de bains.Le terrain de la propriété est de 730 m².Cette maison est neuve.On trouve une école primaire dans le quartier. Côté transports, il y a deux gares (Dreux et Nonancourt) à moins de 10 minutes en voiture. Les nationales N12 et N154 sont accessibles à moins de 8 km et Évreux est située à 29 km. Il y a une boulangerie et deux supérettes dans les environs.Son prix de vente est de 262 790 €.Contactez Benjamin GRZESKOWIAK ((Numéro supprimé)) pour toute question sur la maison, sur les modalités de vente ou sur les démarches à suivre. Les Maisons Extraco Gravigny vous accompagne à toutes les étapes de l’achat et dans tous vos projets immobiliers.
Mesnil-sur-l'Estrée
TERRAIN ET MAISONVENTE : maison de 6 pièces (118 m²) à Mesnil-sur-l’EstréePROCHE D’ÉVREUX – MAISON 6 PIÈCES NEUVEProche de la gare de Dreux (Paris à 60 min par le Transilien N), en vente à Mesnil-sur-l’Estrée (27650), nous vous proposons cette maison de 6 pièces de 118 m² et de 730 m² de terrain.Cette maison compte 2 niveaux. Son intérieur offre quatre chambres, une cuisine et deux salles de bains. La maison est neuve.Une école primaire est implantée dans le quartier. Côté transports, il y a deux gares (Dreux et Nonancourt) à moins de 10 minutes en voiture. Les nationales N12 et N154 sont accessibles à moins de 8 km et Évreux est située à 29 km. On trouve une boulangerie et deux supérettes à proximité.Elle est proposée à l’achat pour 314 200 €.N’hésitez pas à prendre contact avec notre agence (GRZESKOWIAK Benjamin : (Numéro supprimé)) pour tout renseignement sur cette propriété. Les Maisons Extraco Gravigny est là pour vous accompagner à toutes les étapes de l’achat.
Mesnil-sur-l'Estrée
TERRAIN ET MAISONMaison de 6 pièces (160 m²) en vente à Mesnil-sur-l’EstréePROCHE D’ÉVREUX – MAISON 6 PIÈCES NEUVEEn vente : à côté de la gare de Dreux (Paris à 60 min par le Transilien N), nous sommes heureux de vous proposer à Mesnil-sur-l’Estrée (27650), cette maison de 6 pièces de 160 m².Cette maison comporte 2 niveaux. Son intérieur propose quatre chambres, une cuisine et deux salles de bains. La maison est neuve.Le terrain du bien est de 730 m².Une école primaire est implantée dans le quartier. Niveau transports en commun, il y a deux gares (Dreux et Nonancourt) à moins de 10 minutes en voiture. Les nationales N12 et N154 sont accessibles à moins de 8 km et Évreux est située à 29 km. On trouve une boulangerie et deux supérettes à quelques minutes du logement.Son prix de vente est de 343 344 €.Prenez contact avec Benjamin GRZESKOWIAK (tél : (Numéro supprimé)) pour toute information sur cette maison. Donnez vie à vos projets immobiliers avec Les Maisons Extraco Gravigny.
Marcilly-la-Campagne
TERRAINVENTE : terrain de 1 035 m² à Marcilly-la-CampagneIDÉALEMENT SITUÉ – VUE SANS VIS-À-VISÀ Marcilly-la-Campagne (27320) en vente à 21 km d’Évreux, donnez vie à votre résidence principale ou secondaire sur ce terrain de 1 035 m². Ce terrain, avec une exposition sud-ouest, profite d’une vue sans vis-à-vis. Dans un secteur recherché, le terrain idéalement situé est proche des écoles et des commerces. On trouve une école primaire dans le quartier. Côté transports, il y a la gare Nonancourt à moins de 10 minutes en voiture. Les nationales N154 et N12 sont accessibles à moins de 8 km.Ce terrain est à vendre pour la somme de 50 000 €. N’hésitez pas à prendre contact avec notre agence (Oumayma SONMEZ : (Numéro supprimé)) pour toute information sur le terrain. Les Maisons Extraco Gravigny vous accompagne dans toutes vos démarches et dans tous vos projets immobiliers.
L’actualité immobilière à Marcilly-la-Campagne
27/11/2023
02/11/2023
30/10/2023
20/10/2023
16/10/2023
16/10/2023