Maison à construire à Marcilly-la-Campagne (27320)
Images
Description
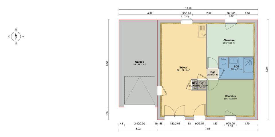
Marcilly-la-Campagne : maison de 4 pièces (50 m²) à vendre
IDÉALEMENT SITUÉE - MAISON 4 PIÈCES NEUVE
À quelques kilomètres d'Évreux, nous sommes heureux de vous proposer cette maison de 4 pièces de plain-pied de 50 m² et de 803 m² de terrain en vente, idéalement située dans Marcilly-la-Campagne (27320). Conçue de plain-pied, elle offre deux chambres, une cuisine et une salle de bains.
Cette maison est neuve.
Cette maison se trouve dans un quartier convoité. Une école primaire y est implantée. Côté transports, il y a la gare Nonancourt à moins de 10 minutes en voiture. Les nationales N154 et N12 sont accessibles à moins de 8 km.
Elle est à vendre pour la somme de 155 000 €.
Contactez notre agence (Aurélien LEOVANT : (Numéro supprimé)) pour plus de renseignements sur la propriété ou sur les démarches à suivre.
Annonce proposée par un Agent Commercial Partenaire.
Logement susceptibles de vous intéresser
Nous vous proposons de découvrir aussi cette sélection de logements situés à moins de 10km de Marcilly-la-Campagne et qui seraient susceptibles de vous intéresser.
Marcilly-la-Campagne
TERRAIN ET MAISONVENTE : maison T6 (90 m²) à Marcilly-la-CampagneIDÉALEMENT SITUÉE – MAISON 6 PIÈCES NEUVEÀ 21 km d’Évreux, votre agence Maisons Balency Boos est ravie de vous présenter cette maison de 6 pièces de plain-pied de 90 m² et de 803 m² de terrain à vendre, idéalement située dans Marcilly-la-Campagne (27320). Son intérieur se divise en trois chambres, une cuisine et une salle de bains.La maison est neuve.Cette maison se situe dans un quartier prisé. On y trouve une école primaire. Niveau transports en commun, on trouve la gare Nonancourt à moins de 10 minutes en voiture. Les nationales N154 et N12 sont accessibles à moins de 8 km.Elle est à vendre pour la somme de 223 000 €.Contactez Aurélien LEOVANT ((Numéro supprimé)) pour toute information sur la maison, sur les modalités de vente ou sur les démarches à suivre. Concrétisez vos projets immobiliers avec Maisons Balency Boos.Annonce proposée par un Agent Commercial Partenaire.
Marcilly-la-Campagne
TERRAIN ET MAISONMarcilly-la-Campagne : maison de 6 pièces (76 m²) en venteIDÉALEMENT SITUÉE – MAISON 6 PIÈCES NEUVEÀ vendre : localisée à deux pas d’Évreux, idéalement située dans Marcilly-la-Campagne (27320), nous sommes heureux de vous présenter cette maison de 6 pièces de plain-pied de 76 m².Conçue de plain-pied, elle est composée de trois chambres, d’une cuisine et d’une salle de bains. Cette maison est neuve.Le terrain de la propriété s’étend sur 803 m².La maison se situe dans un quartier convoité. Une école primaire y est implantée. Côté transports en commun, il y a la gare Nonancourt à moins de 10 minutes en voiture. Les nationales N154 et N12 sont accessibles à moins de 8 km.Son prix de vente est de 178 000 €.Contactez notre agence (LEOVANT Aurélien : (Numéro supprimé)) pour toute information sur la maison ou sur les démarches à suivre. Maisons Balency Boos est là pour vous accompagner à toutes les étapes de votre projet.Annonce proposée par un Agent Commercial Partenaire.
Marcilly-la-Campagne
TERRAIN ET MAISONMarcilly-la-Campagne : maison de 4 pièces (50 m²) à vendreIDÉALEMENT SITUÉE – MAISON 4 PIÈCES NEUVEÀ quelques kilomètres d’Évreux, nous sommes heureux de vous proposer cette maison de 4 pièces de plain-pied de 50 m² et de 803 m² de terrain en vente, idéalement située dans Marcilly-la-Campagne (27320). Conçue de plain-pied, elle offre deux chambres, une cuisine et une salle de bains.Cette maison est neuve.Cette maison se trouve dans un quartier convoité. Une école primaire y est implantée. Côté transports, il y a la gare Nonancourt à moins de 10 minutes en voiture. Les nationales N154 et N12 sont accessibles à moins de 8 km.Elle est à vendre pour la somme de 155 000 €.Contactez notre agence (Aurélien LEOVANT : (Numéro supprimé)) pour plus de renseignements sur la propriété ou sur les démarches à suivre.Annonce proposée par un Agent Commercial Partenaire.
Marcilly-la-Campagne
TERRAIN ET MAISONVENTE : maison de 6 pièces (115 m²) à Marcilly-la-CampagneIDÉALEMENT SITUÉE – MAISON 6 PIÈCES NEUVEÀ vendre à deux pas d’Évreux, nous sommes ravis de vous proposer cette maison de 6 pièces de 115 m² idéalement située dans Marcilly-la-Campagne (27320).Il s’agit d’une maison de 2 niveaux. Elle comporte quatre chambres, une cuisine et deux salles de bains. La maison est neuve.Le terrain du bien est de 803 m².Cette maison se trouve dans un quartier recherché. Une école primaire y est implantée. Niveau transports en commun, il y a la gare Nonancourt à moins de 10 minutes en voiture. Les nationales N154 et N12 sont accessibles à moins de 8 km.Elle est proposée à l’achat pour 241 700 €.Prenez contact avec notre agence (LEOVANT Aurélien : (Numéro supprimé)) pour tout renseignement sur la maison.Annonce proposée par un Agent Commercial Partenaire.
Saint-Laurent-des-Bois
TERRAINSaint-Laurent-des-Bois : terrain de 779 m² à vendreEMPLACEMENT PRIVILÉGIÉ – VUE DÉGAGÉEÀ Saint-Laurent-des-Bois (27220) à 23 km d’Évreux, projetez la maison de vos rêves sur ce terrain de 779 m². Il profite d’une vue dégagée. Il se situe dans un quartier recherché. Il y a des établissements scolaires du primaire et du secondaire à moins de 10 minutes en voiture, tout comme deux structures d’accueil pour la petite enfance à moins de 10 minutes à pied. Il y a un accès à la nationale N154 à 10 km. On trouve des tennis, deux bibliothèques, des boulangeries, des commerces, des supermarchés, des supérettes et des bureaux de poste à quelques minutes. Le marché Place Gambetta a lieu chaque vendredi matin.Ce terrain est proposé à l’achat pour 55 000 €. Contactez Romain COURTONNE (tél : (Numéro supprimé)) pour plus de renseignements sur ce terrain ou sur les démarches à suivre. Donnez vie à vos projets immobiliers avec Maisons France Confort Gravigny.Annonce proposée par un Agent Commercial Partenaire.
Marcilly-la-Campagne
TERRAIN ET MAISONMaison T4 (90 m²) en vente à Marcilly-la-CampagneIDÉALEMENT SITUÉE – MAISON 4 PIÈCES NEUVEÀ deux pas d’Évreux, votre agence Maisons Balency Boos est heureuse de vous proposer cette maison de 4 pièces de plain-pied de 90 m² et de 803 m² de terrain idéalement située dans Marcilly-la-Campagne (27320).Elle comporte trois chambres, une cuisine et une salle de bains. Cette maison est neuve.Cette maison se situe dans un quartier recherché. Une école primaire y est implantée. Niveau transports en commun, il y a la gare Nonancourt à moins de 10 minutes en voiture. Les nationales N154 et N12 sont accessibles à moins de 8 km.Elle est proposée à l’achat pour 205 000 €.Contactez Aurélien LEOVANT ((Numéro supprimé)) pour tout renseignement sur la maison ou sur les démarches à suivre. Maisons Balency Boos est là pour vous accompagner dans tous vos projets immobiliers.Annonce proposée par un Agent Commercial Partenaire.
Marcilly-la-Campagne
TERRAINTerrain de 803 m² à vendre à Marcilly-la-CampagneIDÉALEMENT SITUÉ – PROCHE D’ÉVREUXÀ quelques kilomètres d’Évreux à Marcilly-la-Campagne (27320), grand terrain. Réalisez-y votre projet immobilier. Il donne sur un jardin. Dans un quartier prisé, ce terrain idéalement situé est proche des écoles et des commerces. Une école primaire est implantée dans le quartier. Côté transports en commun, il y a la gare Nonancourt à moins de 10 minutes en voiture. Les nationales N154 et N12 sont accessibles à moins de 8 km.Son prix de vente est de 50 000 €. N’hésitez pas à prendre contact avec notre agence (Aurélien LEOVANT : (Numéro supprimé)) pour toute information sur le terrain ou sur les modalités de vente.Annonce proposée par un Agent Commercial Partenaire.
Mesnil-sur-l'Estrée
TERRAINMesnil-sur-l’Estrée : terrain de 835 m² en ventePROCHE D’ÉVREUXGrand terrain proche de la gare de Dreux (Paris à 60 min par le Transilien N). De 835 m², ce terrain se situe dans Mesnil-sur-l’Estrée (27650). Une école primaire est implantée dans le quartier. Côté transports en commun, il y a deux gares (Dreux et Nonancourt) à moins de 10 minutes en voiture. Les nationales N12 et N154 sont accessibles à moins de 8 km et Évreux est située à 29 km. On trouve une boulangerie et deux supérettes à quelques minutes à peine.Son prix de vente est de 62 000 €. Prenez contact avec notre agence (PINTO BARRETO Orlando : (Numéro supprimé)) pour toute question sur ce terrain, sur les modalités de vente ou sur les démarches à suivre.Annonce proposée par un Agent Commercial Partenaire.
Courdemanche
TERRAINTerrain de 2 345 m² disponible pour la construction sur la commune de Courdemanche, offrant des commerces de proximité et des écoles. 1 086 m² en zone agricole.Plat, non clôturé, en retrait de la route, non viabilisé mais réseaux en limite de propriété à venir, environnement calme.Situé à 1h de Versailles et 1h40 de Deauville.Lot B, en bleu, sur le plan.Possibilité de voir deux autres terrains.A bientôt pour une visite ! Les honoraires sont à la charge du vendeur.Les informations sur les risques auxquels ce bien est exposé sont disponibles sur le site Géorisques : www. georisques. gouv. fr.Réseau Immobilier CAPIFRANCE – Votre agent commercial (RSAC N(Numéro supprimé) – Greffe de EVREUX) Mélanie MIRABEL Entrepreneur Individuel (Numéro supprimé) – Réf.931951
L’actualité immobilière à Marcilly-la-Campagne
27/11/2023
02/11/2023
30/10/2023
20/10/2023
16/10/2023
16/10/2023