Maison à construire à Menneval (27300)
Images
Description
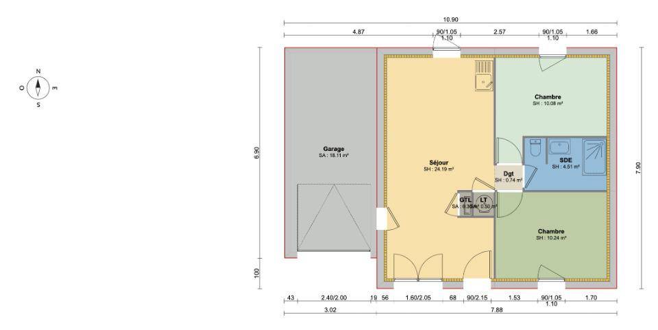
VENTE : maison F4 (49 m²) à Menneval
MAISON 4 PIÈCES NEUVE
À vendre : à 45 km de la Manche, à Menneval (27300), ayez le coup de coeur pour cette maison de 4 pièces de plain-pied de 49 m² et de 700 m² de terrain. Son intérieur est composé de deux chambres, d'une cuisine et d'une salle de bains.
La maison est neuve.
Il y a une école primaire dans la commune. Niveau transports en commun, on trouve deux gares (Bernay et Serquigny) à moins de 10 minutes en voiture. Il y a un accès à l'autoroute A28 à 6 km. Il y a une boucherie-charcuterie à proximité.
Son prix de vente est de 147 000 €.
Contactez notre agence (MASSON Sébastien : (Numéro supprimé)) pour obtenir de plus amples informations sur cette maison. Maisons Balency Boos vous accompagne dans tous vos projets immobiliers et dans toutes vos démarches.
Annonce proposée par un Agent Commercial Partenaire.
Logement susceptibles de vous intéresser
Nous vous proposons de découvrir aussi cette sélection de logements situés à moins de 10km de Menneval et qui seraient susceptibles de vous intéresser.
Grand-Camp
TERRAINÀ vendre – Terrain à bâtir de 1 500 m² à 8 minutes de Bernay (27)Situé dans un environnement paisible, à seulement huit minutes du centre-ville et de la gare de Bernay, ce superbe terrain plat de 1 500 m² offre un cadre idéal pour réaliser votre projet de construction.En lisière d’un bois, il bénéficie d’un environnement calme et verdoyant, parfait pour ceux qui recherchent la tranquillité tout en restant proches des commodités. Le certificat d’urbanisme est positif. Le terrain est à viabiliser, avec les réseaux situés en limite de propriété (eau, électricité, etc.).La commune dispose d’une école primaire, du ramassage scolaire pour les établissements environnants, ainsi que de la fibre optique, garantissant un cadre de vie pratique et moderne.Grâce à sa belle superficie et sa situation privilégiée, ce terrain conviendra parfaitement à un projet familial ou à la construction d’une résidence principale dans un secteur recherché.Prix de vente : 37000 € frais d’agence inclus (honoraires à la charge du vendeur).Une opportunité rare pour bâtir dans un environnement naturel et préservé, à proximité immédiate de Bernay et de tous ses services.Pour tout renseignement complémentaire ou pour organiser une visite, contactez-nous dès aujourd’hui. Les honoraires sont à la charge du vendeur.Les informations sur les risques auxquels ce bien est exposé sont disponibles sur le site Géorisques : www. georisques. gouv. fr.Contactez Richard LENOIR Entrepreneur Individuel à Responsabilité Limitée, Agent commercial OptimHome (RSAC N(Numéro supprimé) Greffe de BERNAY) (Numéro supprimé) (réf. 595901 )
Grand-Camp
TERRAINÀ vendre – Terrain à bâtir de 8 400 m² à 8 minutes de Bernay (27)Situé dans un environnement paisible, à seulement huit minutes du centre-ville et de la gare de Bernay, ce superbe terrain plat de 8 400 m² offre un cadre exceptionnel pour concrétiser votre projet immobilier.En lisière d’un bois, il bénéficie d’un environnement calme et verdoyant, idéal pour ceux qui recherchent la tranquillité sans renoncer à la proximité des services. Le certificat d’urbanisme est positif. Le terrain est à viabiliser, avec les réseaux situés en limite de propriété (eau, électricité, etc.).La commune dispose d’une école primaire, du ramassage scolaire pour les établissements environnants ainsi que de la fibre optique, garantissant un confort de vie moderne.Grâce à sa superficie et à sa situation géographique privilégiée, ce terrain conviendra parfaitement à un projet familial, à une construction contemporaine ou à une division parcellaire (sous réserve des autorisations nécessaires).Prix de vente : 132 000 € frais d’agence inclus (honoraires à la charge du vendeur).Une belle opportunité à saisir pour bâtir dans un cadre naturel et préservé, à proximité immédiate de Bernay et de ses commodités.Pour plus d’informations ou pour organiser une visite, contactez-nous dès aujourd’hui. Les honoraires sont à la charge du vendeur.Les informations sur les risques auxquels ce bien est exposé sont disponibles sur le site Géorisques : www. georisques. gouv. fr.Contactez Richard LENOIR Entrepreneur Individuel à Responsabilité Limitée, Agent commercial OptimHome (RSAC N(Numéro supprimé) Greffe de BERNAY) (Numéro supprimé) (réf. 595881 )
Treis-Sants-en-Ouche
TERRAINVENTE d’un terrain de 1 400 m² à Saint-Clair-d’ArceyIDÉALEMENT SITUÉ – PROCHE DE FONTAINE-L’ABBÉEn vente collé à Fontaine-l’Abbé à Saint-Clair-d’Arcey (27300), grand terrain. Réalisez-y votre résidence principale ou secondaire. Il se situe dans un quartier convoité. On trouve des écoles de tous types à moins de 10 minutes en voiture, tout comme une crèche à moins de 10 minutes à pied. Côté transports, il y a trois gares (Bernay, Serquigny et Beaumont-le-Roger) à moins de 10 minutes en voiture. On trouve des tennis, un bassin de natation, deux bibliothèques, des commerces, des supermarchés, des boulangeries, deux supérettes et quatre bureaux de poste à proximité. 3 marchés animent les environs.Il est à vendre pour la somme de 28 000 €. N’hésitez pas à prendre contact avec Juliette PETIT ((Numéro supprimé)) pour toute information sur ce terrain ou sur les modalités de vente. Les Maisons Extraco Pont-Audemer vous accompagne dans toutes vos démarches et dans tous vos projets immobiliers.
Treis-Sants-en-Ouche
TERRAIN ET MAISONVENTE : maison de 4 pièces (80 m²) à Saint-Clair-d’ArceyIDÉALEMENT SITUÉE – MAISON 4 PIÈCES NEUVEEn vente : collé à Fontaine-l’Abbé, idéalement située dans Saint-Clair-d’Arcey (27300), nous sommes ravis de vous présenter cette maison de 4 pièces de plain-pied de 80 m². Son intérieur dispose de trois chambres, d’une cuisine et d’une salle de bains.Le terrain de cette maison s’étend sur 1 400 m².La maison est neuve.Cette maison se trouve dans un secteur attractif. Des écoles de tous niveaux sont implantées à moins de 10 minutes en voiture, tout comme une structure d’accueil pour les tout-petits à moins de 10 minutes à pied. Niveau transports, il y a les gares Bernay, Serquigny et Beaumont-le-Roger à moins de 10 minutes en voiture. On trouve des tennis, un bassin de natation, deux bibliothèques, des commerces, des supermarchés, des boulangeries, deux supérettes et des épiceries à quelques minutes du bien. Enfin, 3 marchés animent les environs.Son prix de vente est de 171 000 €.Contactez Juliette PETIT ((Numéro supprimé)) pour toute question sur la propriété ou sur les démarches à suivre. Les Maisons Extraco Pont-Audemer est là pour vous accompagner dans tous vos projets immobiliers.
Treis-Sants-en-Ouche
TERRAINVENTE d’un terrain de 1 700 m² à Saint-Clair-d’ArceyPROCHE DE FONTAINE-L’ABBÉGrand terrain à vendre collé à Fontaine-l’Abbé. De 1 700 m², ce terrain se situe dans Saint-Clair-d’Arcey (27300). Il y a des écoles de tous niveaux à moins de 10 minutes en voiture, tout comme une structure d’accueil pour les enfants en bas âge à moins de 10 minutes à pied. Côté transports, on trouve les gares Bernay, Serquigny et Beaumont-le-Roger à moins de 10 minutes en voiture. Il y a des tennis, un bassin de natation, deux bibliothèques, des commerces, des supermarchés, des boulangeries, quatre bureaux de poste et une poissonnerie dans les environs. 3 marchés animent le quartier.Son prix de vente est de 30 000 €. N’hésitez pas à prendre contact avec Juliette PETIT (tél : (Numéro supprimé)) pour toute information sur ce terrain. Concrétisez vos projets immobiliers avec Les Maisons Extraco Pont-Audemer.
Treis-Sants-en-Ouche
TERRAIN ET MAISONVENTE d’une maison de 4 pièces (81 m²) à Saint-Clair-d’ArceyIDÉALEMENT SITUÉE – MAISON 4 PIÈCES NEUVEEn vente collé à Fontaine-l’Abbé, idéalement située dans Saint-Clair-d’Arcey (27300), notre agence Les Maisons Extraco Pont-Audemer est ravie de vous présenter cette maison de 4 pièces de 81 m² et de 1 400 m² de terrain. Elle propose deux chambres, une cuisine et une salle de bains.Cette maison comporte 2 niveaux. Elle est neuve.Cette maison se situe dans un secteur prisé. Des écoles du primaire et du secondaire sont implantées à moins de 10 minutes en voiture, tout comme une crèche à moins de 10 minutes à pied. Niveau transports, on trouve les gares Bernay, Serquigny et Beaumont-le-Roger à moins de 10 minutes en voiture. Il y a des tennis, un bassin de natation, deux bibliothèques, des commerces, des supermarchés, des boulangeries, quatre bureaux de poste et des épiceries dans les environs. 3 marchés animent le quartier.Elle est à vendre pour la somme de 187 000 €.Contactez Juliette PETIT (tél : (Numéro supprimé)) pour toute question sur la maison ou sur les démarches à suivre.
Treis-Sants-en-Ouche
TERRAIN ET MAISONVENTE d’une maison T5 (105 m²) à Saint-Clair-d’ArceyPROCHE DE FONTAINE-L’ABBÉ – MAISON 5 PIÈCES NEUVEEn vente collé à Fontaine-l’Abbé, nous vous proposons à Saint-Clair-d’Arcey (27300), cette maison de 5 pièces de 105 m². Elle comporte quatre chambres, une cuisine et deux salles de bains.Le terrain de cette maison s’étend sur 1 700 m².Il s’agit d’une maison de 2 niveaux. Elle est neuve.On trouve des établissements scolaires de tous types (de la maternelle au lycée) à moins de 10 minutes en voiture, tout comme une structure d’accueil pour les enfants en bas âge à moins de 10 minutes à pied. Niveau transports, il y a les gares Bernay, Serquigny et Beaumont-le-Roger à moins de 10 minutes en voiture. On trouve des tennis, un bassin de natation, deux bibliothèques, des commerces, des supermarchés, des boulangeries, une poissonnerie et des boucheries-charcuteries dans les environs. 3 marchés animent les environs.Elle est proposée à l’achat pour 216 000 €.Contactez notre agence (PETIT Juliette : (Numéro supprimé)) pour toute question sur ce bien.
Treis-Sants-en-Ouche
TERRAIN ET MAISONVENTE : maison de 5 pièces (114 m²) à Saint-Clair-d’ArceyPROCHE DE FONTAINE-L’ABBÉ – MAISON 5 PIÈCES NEUVEÀ vendre : située en limite de Fontaine-l’Abbé, nous vous proposons à Saint-Clair-d’Arcey (27300), cette maison de 5 pièces de 114 m² et de 1 700 m² de terrain. Elle est composée de quatre chambres, d’une cuisine et d’une salle de bains.C’est une maison de 2 niveaux. Elle est neuve.On trouve tous les types d’établissements scolaires (maternelle, élémentaire et secondaire) à moins de 10 minutes en voiture, tout comme une structure d’accueil pour les enfants en bas âge à moins de 10 minutes à pied. Côté transports, il y a les gares Bernay, Serquigny et Beaumont-le-Roger à moins de 10 minutes en voiture. On trouve des tennis, un bassin de natation, deux bibliothèques, des commerces, des supermarchés, des boulangeries, deux supérettes et quatre bureaux de poste dans les environs. 3 marchés animent le quartier.Elle est à vendre pour la somme de 311 000 €.N’hésitez pas à prendre contact avec notre agence (Juliette PETIT : (Numéro supprimé)) pour obtenir de plus amples informations sur cette maison ou sur les démarches à suivre. Les Maisons Extraco Pont-Audemer est là pour vous accompagner dans tous vos projets immobiliers.
Treis-Sants-en-Ouche
TERRAIN ET MAISONVENTE d’une maison T4 (120 m²) à Saint-Clair-d’ArceyMAISON 4 PIÈCES NEUVE – PROCHE DE FONTAINE-L’ABBÉEn vente : localisée en limite de Fontaine-l’Abbé, Les Maisons Extraco Pont-Audemer vous présente à Saint-Clair-d’Arcey (27300), cette maison de 4 pièces de plain-pied de 120 m² et de 1 700 m² de terrain. Conçue de plain-pied, elle offre trois chambres, une cuisine et deux salles de bains.Cette maison est neuve.Des établissements scolaires de tous niveaux sont implantés à moins de 10 minutes en voiture, tout comme une structure d’accueil pour les tout-petits à moins de 10 minutes à pied. Niveau transports en commun, il y a les gares Bernay, Serquigny et Beaumont-le-Roger à moins de 10 minutes en voiture. On trouve des tennis, un bassin de natation, deux bibliothèques, des commerces, des supermarchés, des boulangeries, des boucheries-charcuteries et des épiceries à quelques minutes à peine. 3 marchés animent le quartier.Son prix de vente est de 277 000 €.Contactez Juliette PETIT (tél : (Numéro supprimé)) pour obtenir de plus amples renseignements sur la maison, sur les démarches à suivre ou sur les modalités de vente.
L’actualité immobilière à Menneval
27/11/2023
02/11/2023
30/10/2023
20/10/2023
16/10/2023
16/10/2023