Maison à construire à Menneval (27300)
Images
Description
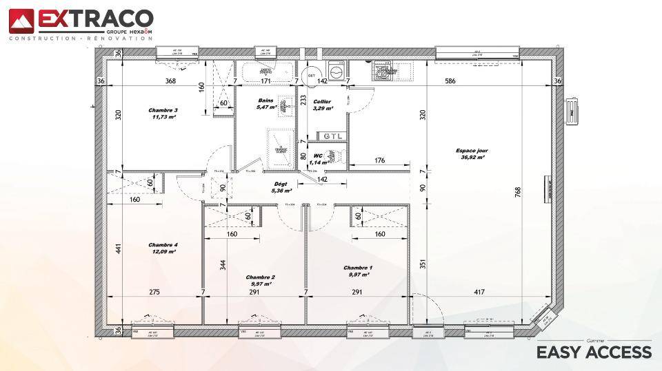
Menneval : maison T5 (95 m²) à vendre
QUARTIER RECHERCHÉ - MAISON 5 PIÈCES NEUVE
À vendre : localisée à 45 km de la Manche, nichée dans un quartier convoité de Menneval (27300), nous sommes heureux de vous proposer cette maison de 5 pièces de plain-pied de 95 m². Conçue de plain-pied, elle inclut quatre chambres, une cuisine et une salle de bains.
Le terrain de la maison s'étend sur 656 m².
Cette maison est neuve.
La maison est située dans un secteur attractif. On y trouve une école primaire. Côté transports, il y a les gares Bernay et Serquigny à moins de 10 minutes en voiture. L'autoroute A28 est accessible à 6 km. On trouve une boucherie-charcuterie à quelques minutes à peine.
Elle est à vendre pour la somme de 188 000 €.
Contactez notre agence (PETIT Juliette : (Numéro supprimé)) pour tout renseignement sur la propriété. Les Maisons Extraco Pont-Audemer est là pour vous accompagner dans toutes vos démarches.
Logement susceptibles de vous intéresser
Nous vous proposons de découvrir aussi cette sélection de logements situés à moins de 10km de Menneval et qui seraient susceptibles de vous intéresser.
Caorches-Saint-Nicolas
TERRAIN ET MAISONVENTE d’une maison F4 (84 m²) à Caorches-Saint-NicolasMAISON 4 PIÈCES NEUVEÀ 43 km de la Manche, votre agence Les Maisons Extraco Pont-Audemer est ravie de vous présenter en vente à Caorches-Saint-Nicolas (27300), cette maison de 4 pièces de plain-pied de 84 m² et de 1 476 m² de terrain. Son intérieur compte trois chambres, une cuisine et une salle de bains.La maison est neuve.Plusieurs écoles (élémentaire, collège et lycée) sont implantées à moins de 10 minutes en voiture, tout comme deux structures d’accueil pour les enfants en bas âge à moins de 10 minutes à pied. Côté transports, on trouve la gare Bernay à moins de 10 minutes en voiture. L’autoroute A28 est accessible à 7 km. Il y a des tennis, un bassin de natation, une bibliothèque, des commerces, des supermarchés, des boulangeries, deux poissonneries et des épiceries à proximité. Ne manquez pas le marché Place Héon chaque samedi matin.Elle est proposée à l’achat pour 193 000 €.Contactez notre constructeur (Juliette PETIT : (Numéro supprimé)) pour obtenir de plus amples renseignements sur cette maison. Les Maisons Extraco Pont-Audemer est là pour vous accompagner dans toutes vos démarches.
Courbépine
TERRAIN ET MAISONVENTE d’une maison de 5 pièces (105 m²) à CourbépineMAISON 5 PIÈCES NEUVEÀ 39 km de la Manche, Les Maisons Extraco Pont-Audemer vous propose cette maison de 5 pièces de 105 m² et de 1 400 m² de terrain en vente à Courbépine (27300). Elle dispose de quatre chambres, d’une cuisine et de deux salles de bains.Cette maison comporte 2 niveaux. Elle est neuve.L’École Primaire Ernest Anquetil est implantée à moins de 10 minutes à pied. Côté transports, on trouve la gare Bernay à moins de 10 minutes en voiture. L’autoroute A28 est accessible à 2 km. Il y a un tennis dans les environs.Son prix de vente est de 228 000 €.Contactez Juliette PETIT (tél : (Numéro supprimé)) pour toute information sur cette maison, sur les modalités de vente ou sur les démarches à suivre. Les Maisons Extraco Pont-Audemer vous accompagne dans tous vos projets immobiliers et dans toutes vos démarches.
Ferrières-Saint-Hilaire
TERRAIN ET MAISONFerrières-Saint-Hilaire : maison T4 (71 m²) en venteMAISON 4 PIÈCES NEUVEÀ 49 km de la Manche, nous sommes ravis de vous présenter cette maison de 4 pièces de plain-pied de 71 m² à vendre à Ferrières-Saint-Hilaire (27270).Conçue de plain-pied, elle propose deux chambres, une cuisine et une salle de bains. Cette maison est neuve.Le terrain du bien est de 1 321 m².On trouve des établissements scolaires (de la maternelle au lycée) à moins de 10 minutes en voiture, tout comme une structure d’accueil pour les enfants en bas âge à moins de 10 minutes à pied. Côté transports, il y a la gare Bernay à moins de 10 minutes en voiture. On trouve un accès à l’autoroute A28 à 9 km. On trouve des tennis, un bassin de natation, une bibliothèque, des commerces, des supermarchés, des boulangeries, une poissonnerie et des épiceries dans les environs. Enfin, le marché Place Héon a lieu chaque samedi matin.Elle est à vendre pour la somme de 170 000 €.Contactez Juliette PETIT ((Numéro supprimé)) pour tout renseignement sur la maison et sur les modalités de vente.
Caorches-Saint-Nicolas
TERRAIN ET MAISONVENTE d’une maison de 4 pièces (82 m²) à Caorches-Saint-NicolasMAISON 4 PIÈCES NEUVEEn vente à 43 km de la Manche, nous sommes heureux de vous proposer cette maison de 4 pièces de plain-pied de 82 m² et de 1 476 m² de terrain à Caorches-Saint-Nicolas (27300).Elle dispose de trois chambres, d’une cuisine et d’une salle de bains. La maison est neuve.Il y a plusieurs établissements scolaires (élémentaire, collège et lycée) à moins de 10 minutes en voiture, tout comme deux structures d’accueil pour les enfants en bas âge à moins de 10 minutes à pied. Côté transports en commun, on trouve la gare Bernay à moins de 10 minutes en voiture. L’autoroute A28 est accessible à 7 km. Il y a des tennis, un bassin de natation, une bibliothèque, des commerces, des supermarchés, des boulangeries, deux poissonneries et une supérette dans les environs. Enfin, le marché Place Héon a lieu chaque samedi matin.Elle est à vendre pour la somme de 192 000 €.N’hésitez pas à prendre contact avec Juliette PETIT (tél : (Numéro supprimé)) pour obtenir de plus amples renseignements sur la maison, sur les démarches à suivre ou sur les modalités de vente.
Caorches-Saint-Nicolas
TERRAIN ET MAISONVENTE : maison de 5 pièces (92 m²) à Caorches-Saint-NicolasMAISON 5 PIÈCES NEUVEÀ vendre : localisée à 43 km de la Manche, notre agence Les Maisons Extraco Pont-Audemer est ravie de vous présenter cette maison de 5 pièces de plain-pied de 92 m² à Caorches-Saint-Nicolas (27300).Son intérieur est composé de quatre chambres, d’une cuisine et d’une salle de bains. Cette maison est neuve.Le terrain de la propriété est de 1 584 m².Plusieurs écoles (élémentaire, collège et lycée) se trouvent à moins de 10 minutes en voiture, tout comme deux structures d’accueil pour la petite enfance à moins de 10 minutes à pied. Niveau transports en commun, il y a la gare Bernay à moins de 10 minutes en voiture. L’autoroute A28 est accessible à 7 km. On trouve des tennis, un bassin de natation, une bibliothèque, des commerces, des supermarchés, des boulangeries, des boucheries-charcuteries et une supérette dans les environs. Le marché Place Héon anime le quartier chaque samedi matin.Elle est proposée à l’achat pour 208 000 €.N’hésitez pas à prendre contact avec notre agence (PETIT Juliette : (Numéro supprimé)) pour toute question sur la maison, sur les démarches à suivre ou sur les modalités de vente. Les Maisons Extraco Pont-Audemer est là pour vous accompagner dans tous vos projets immobiliers.
Ferrières-Saint-Hilaire
TERRAINVENTE d’un terrain de 1 321 m² à Ferrières-Saint-HilaireÀ vendre à 49 km de la Manche à Ferrières-Saint-Hilaire (27270), grand terrain. Des écoles (de la maternelle au lycée) sont implantées à moins de 10 minutes en voiture, tout comme une structure d’accueil pour les enfants en bas âge à moins de 10 minutes à pied. Niveau transports en commun, on trouve la gare Bernay à moins de 10 minutes en voiture. Il y a un accès à l’autoroute A28 à 9 km. Il y a des tennis, un bassin de natation, une bibliothèque, des commerces, des supermarchés, des boulangeries, des épiceries et deux bureaux de poste dans les environs. Le marché Place Héon anime le quartier tous les samedis matin.Il est à vendre pour la somme de 330 000 €. N’hésitez pas à prendre contact avec notre agence (PETIT Juliette : (Numéro supprimé)) pour obtenir de plus amples renseignements sur ce terrain et sur les démarches à suivre.
Menneval
TERRAIN ET MAISONMenneval : maison T5 (95 m²) à vendreQUARTIER RECHERCHÉ – MAISON 5 PIÈCES NEUVEÀ vendre : localisée à 45 km de la Manche, nichée dans un quartier convoité de Menneval (27300), nous sommes heureux de vous proposer cette maison de 5 pièces de plain-pied de 95 m². Conçue de plain-pied, elle inclut quatre chambres, une cuisine et une salle de bains.Le terrain de la maison s’étend sur 656 m².Cette maison est neuve.La maison est située dans un secteur attractif. On y trouve une école primaire. Côté transports, il y a les gares Bernay et Serquigny à moins de 10 minutes en voiture. L’autoroute A28 est accessible à 6 km. On trouve une boucherie-charcuterie à quelques minutes à peine.Elle est à vendre pour la somme de 188 000 €.Contactez notre agence (PETIT Juliette : (Numéro supprimé)) pour tout renseignement sur la propriété. Les Maisons Extraco Pont-Audemer est là pour vous accompagner dans toutes vos démarches.
Caorches-Saint-Nicolas
TERRAIN ET MAISONCaorches-Saint-Nicolas : maison de 5 pièces (85 m²) à vendreMAISON 5 PIÈCES NEUVEÀ vendre à 43 km de la Manche, à Caorches-Saint-Nicolas (27300), nous vous présentons cette maison de 5 pièces de 85 m².Cette maison comporte 2 niveaux. Elle comporte quatre chambres, une cuisine et deux salles de bains. La maison est neuve.Le terrain du bien est de 1 584 m².Il y a plusieurs écoles (élémentaire, collège et lycée) à moins de 10 minutes en voiture, tout comme deux structures d’accueil pour la petite enfance à moins de 10 minutes à pied. Niveau transports en commun, on trouve la gare Bernay à moins de 10 minutes en voiture. Il y a un accès à l’autoroute A28 à 7 km. Il y a des tennis, un bassin de natation, une bibliothèque, des commerces, des supermarchés, des boulangeries, une supérette et des boucheries-charcuteries dans les environs. Ne manquez pas le marché Place Héon chaque samedi matin.Elle est proposée à l’achat pour 203 000 €.Contactez notre agence (Juliette PETIT : (Numéro supprimé)) pour tout renseignement sur cette propriété ou sur les démarches à suivre.
Courbépine
TERRAIN ET MAISONCourbépine : maison de 4 pièces (120 m²) à vendreMAISON 4 PIÈCES NEUVEÀ vendre : à 39 km de la Manche, venez découvrir cette maison de 4 pièces de plain-pied de 120 m² et de 1 400 m² de terrain à Courbépine (27300).Elle inclut trois chambres, une cuisine et deux salles de bains. La maison est neuve.On trouve l’École Primaire Ernest Anquetil à moins de 10 minutes à pied. Niveau transports en commun, il y a la gare Bernay à moins de 10 minutes en voiture. Il y a un accès à l’autoroute A28 à 2 km. On trouve un tennis à proximité du logement.Son prix de vente est de 289 000 €.N’hésitez pas à prendre contact avec notre agence (Juliette PETIT : (Numéro supprimé)) pour obtenir de plus amples informations sur la maison ou sur les modalités de vente. Les Maisons Extraco Pont-Audemer est là pour vous accompagner dans tous vos projets immobiliers.
L’actualité immobilière à Menneval
27/11/2023
02/11/2023
30/10/2023
20/10/2023
16/10/2023
16/10/2023