Maison à construire à Mesnils-Sur-Iton (27240)
Images
Description
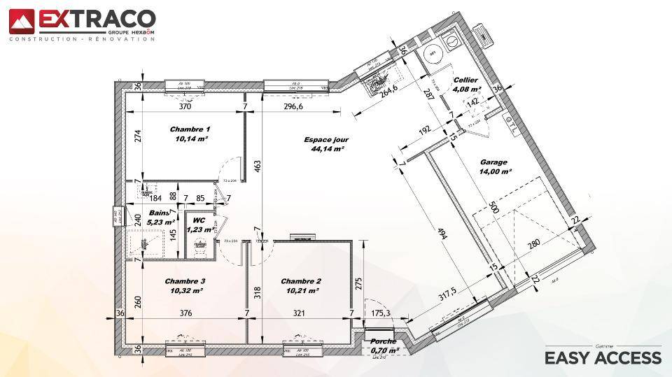
VENTE : maison de 4 pièces (85 m²) à Mesnils-Sur-Iton
EMPLACEMENT PRIVILÉGIÉ - MAISON 4 PIÈCES NEUVE
En vente : à deux pas d'Évreux, laissez vous charmer par cette maison de 4 pièces de plain-pied de 85 m², bénéficiant d'un emplacement d'exception dans Mesnils-Sur-Iton (27240).
Elle offre trois chambres, une cuisine et une salle de bains. La maison est neuve.
Le terrain du bien est de 800 m².
La maison se trouve dans un secteur recherché. Des établissements scolaires de tous types (de la maternelle au lycée) y sont implantés. Les nationales N154 et N12 sont accessibles à moins de 10 km. Il y a un tennis à proximité.
Elle est proposée à l'achat pour 181 000 €.
Prenez contact avec notre agence (Oumayma SONMEZ : (Numéro supprimé)) pour toute question sur la propriété. Les Maisons Extraco Gravigny vous accompagne dans toutes vos démarches et à toutes les étapes de l'achat.
Logement susceptibles de vous intéresser
Nous vous proposons de découvrir aussi cette sélection de logements situés à moins de 10km de Mesnils-sur-Iton et qui seraient susceptibles de vous intéresser.
Mesnils-sur-Iton
TERRAINLe Sacq : terrain de 960 m² à vendrePROCHE DAMVILLEAu Sacq (27240) en vente à quelques kilomètres d’Évreux, donnez vie à votre projet de construction sur ce terrain de 960 m². Des écoles de tous types sont implantées à moins de 10 minutes en voiture, tout comme une crèche à moins de 10 minutes à pied. On trouve un accès à la nationale N154 à 8 km. On trouve des tennis, des boulangeries, des commerces, un supermarché, quatre boucheries-charcuteries et un bureau de poste dans les environs. Enfin, le marché Place de la Halle a lieu tous les mardis matin.Il est proposé à l’achat pour 29 000 €. N’hésitez pas à prendre contact avec notre agence (Aurélie KTARI : (Numéro supprimé)) pour plus de renseignements sur ce terrain. Les Maisons Extraco Gravigny vous accompagne à toutes les étapes de l’achat et dans tous vos projets immobiliers.
Mesnils-sur-Iton
TERRAINVENTE d’un terrain de 800 m² à Mesnils-Sur-ItonEMPLACEMENT PRIVILÉGIÉ – VUE SANS VIS-À-VISÀ 17 km d’Évreux à Mesnils-Sur-Iton (27240), grand terrain. Réalisez-y votre résidence principale ou secondaire. Il profite d’une vue sans vis-à-vis et est orienté plein sud. Dans un secteur attractif, ce terrain bénéficiant d’un emplacement d’exception est proche des écoles et des commerces. Il y a des écoles (de la maternelle au lycée) dans la commune. Les nationales N154 et N12 sont accessibles à moins de 10 km. On trouve un tennis dans les environs.Son prix de vente est de 32 000 €. N’hésitez pas à prendre contact avec Oumayma SONMEZ (tél : (Numéro supprimé)) pour toute information sur ce terrain ou sur les modalités de vente.
Mesnils-sur-Iton
TERRAIN ET MAISONVENTE : maison de 4 pièces (85 m²) à Mesnils-Sur-ItonEMPLACEMENT PRIVILÉGIÉ – MAISON 4 PIÈCES NEUVEEn vente : à deux pas d’Évreux, laissez vous charmer par cette maison de 4 pièces de plain-pied de 85 m², bénéficiant d’un emplacement d’exception dans Mesnils-Sur-Iton (27240).Elle offre trois chambres, une cuisine et une salle de bains. La maison est neuve.Le terrain du bien est de 800 m².La maison se trouve dans un secteur recherché. Des établissements scolaires de tous types (de la maternelle au lycée) y sont implantés. Les nationales N154 et N12 sont accessibles à moins de 10 km. Il y a un tennis à proximité.Elle est proposée à l’achat pour 181 000 €.Prenez contact avec notre agence (Oumayma SONMEZ : (Numéro supprimé)) pour toute question sur la propriété. Les Maisons Extraco Gravigny vous accompagne dans toutes vos démarches et à toutes les étapes de l’achat.
Mesnils-sur-Iton
TERRAIN ET MAISONMaison de 5 pièces (86 m²) à vendre à Mesnils-Sur-ItonEMPLACEMENT PRIVILÉGIÉ – MAISON 5 PIÈCES NEUVEÀ 17 km d’Évreux, Les Maisons Extraco Gravigny vous présente cette maison de 5 pièces de 86 m² bénéficiant d’un emplacement d’exception dans Mesnils-Sur-Iton (27240). Son intérieur comporte trois chambres, une cuisine et une salle de bains.Le terrain de cette maison s’étend sur 800 m².Cette maison possède 2 niveaux. Elle est neuve.La maison se trouve dans un quartier recherché. Des établissements scolaires de tous niveaux y sont implantés. Les nationales N154 et N12 sont accessibles à moins de 10 km. Il y a un tennis dans les environs.Elle est à vendre pour la somme de 171 200 €.Contactez notre agence (Oumayma SONMEZ : (Numéro supprimé)) pour obtenir de plus amples renseignements sur la maison, sur les démarches à suivre et sur les modalités de vente. Les Maisons Extraco Gravigny est là pour vous accompagner dans tous vos projets immobiliers.
Mesnils-sur-Iton
TERRAIN ET MAISONVENTE d’une maison T5 (92 m²) à Mesnils-Sur-ItonEMPLACEMENT PRIVILÉGIÉ – MAISON 5 PIÈCES NEUVEÀ quelques kilomètres d’Évreux, en vente bénéficiant d’un emplacement privilégié dans Mesnils-Sur-Iton (27240), nous vous proposons cette maison de 5 pièces de plain-pied de 92 m² et de 800 m² de terrain. Elle comporte quatre chambres, une cuisine et une salle de bains.Cette maison est neuve.La maison se situe dans un secteur convoité. On y trouve des établissements scolaires (de la maternelle au lycée). Les nationales N154 et N12 sont accessibles à moins de 10 km. Il y a un tennis à proximité.Elle est à vendre pour la somme de 186 900 €.Contactez Oumayma SONMEZ (tél : (Numéro supprimé)) pour toute information sur la maison ou sur les démarches à suivre.
Mesnils-sur-Iton
TERRAIN ET MAISONMaison de 5 pièces (100 m²) en vente à Mesnils-Sur-ItonEMPLACEMENT PRIVILÉGIÉ – MAISON 5 PIÈCES NEUVEÀ vendre à deux pas d’Évreux, découvrez cette maison de 5 pièces de 100 m² et de 800 m² de terrain bénéficiant d’un emplacement privilégié dans Mesnils-Sur-Iton (27240).Cette maison comporte 2 niveaux. Elle dispose de quatre chambres, d’une cuisine et d’une salle de bains. La maison est neuve.Cette propriété se trouve dans un secteur recherché. On y trouve des établissements scolaires de tous niveaux. Les nationales N154 et N12 sont accessibles à moins de 10 km. Il y a un tennis à quelques minutes du logement.Son prix de vente est de 201 800 €.Contactez Oumayma SONMEZ (tél : (Numéro supprimé)) pour toute question sur la maison, sur les démarches à suivre ou sur les modalités de vente.
Droisy
TERRAINDroisy : terrain de 1 175 m² à vendreIDÉALEMENT SITUÉ – VUE DÉGAGÉEÀ Droisy (27320) à quelques kilomètres d’Évreux, découvrez ce terrain de 1 175 m². Ce terrain, avec vue dégagée, bénéficie d’une exposition sud-ouest. Dans un secteur prisé, ce terrain idéalement situé est proche des commerces et des écoles. Des écoles du primaire et du secondaire sont implantées à moins de 10 minutes en voiture, tout comme deux crèches à moins de 10 minutes à pied. Niveau transports en commun, il y a la gare Nonancourt à moins de 10 minutes en voiture. Les nationales N154 et N12 sont accessibles à moins de 7 km. On trouve des tennis, trois bibliothèques, deux bassins de natation, des commerces, des boulangeries, quatre supermarchés, des épiceries et des boucheries-charcuteries à quelques minutes du terrain. Enfin, 2 marchés animent le quartier.Son prix de vente est de 47 000 €. Prenez contact avec Oumayma SONMEZ (tél : (Numéro supprimé)) pour toute information sur le terrain ou sur les modalités de vente. Concrétisez vos projets immobiliers avec Les Maisons Extraco Gravigny.
Droisy
TERRAIN ET MAISONVENTE : maison F4 (71 m²) à DroisyIDÉALEMENT SITUÉE – MAISON 4 PIÈCES NEUVEEn vente à quelques kilomètres d’Évreux, nous vous présentons cette maison de 4 pièces de plain-pied de 71 m² idéalement située dans Droisy (27320). Son intérieur est composé de deux chambres, d’une cuisine et d’une salle de bains.Le terrain du bien est de 1 175 m².La maison est neuve.La maison se situe dans un quartier attractif. On trouve des écoles du primaire et du secondaire à moins de 10 minutes en voiture, tout comme deux crèches à moins de 10 minutes à pied. Niveau transports, il y a la gare Nonancourt à moins de 10 minutes en voiture. Les nationales N154 et N12 sont accessibles à moins de 7 km. On trouve des tennis, trois bibliothèques, deux bassins de natation, des commerces, des boulangeries, quatre supermarchés, des épiceries et deux supérettes à proximité. Enfin, 2 marchés animent le quartier.Elle est proposée à l’achat pour 166 500 €.Contactez Oumayma SONMEZ (tél : (Numéro supprimé)) pour toute information sur la maison ou sur les démarches à suivre. Donnez vie à vos projets immobiliers avec Les Maisons Extraco Gravigny.
Droisy
TERRAIN ET MAISONVENTE d’une maison de 5 pièces (85 m²) à DroisyIDÉALEMENT SITUÉE – MAISON 5 PIÈCES NEUVEÀ vendre : située à deux pas d’Évreux, nous sommes heureux de vous proposer cette maison de 5 pièces de 85 m² et de 1 175 m² de terrain idéalement située dans Droisy (27320). Son intérieur comporte quatre chambres, une cuisine et deux salles de bains.Cette maison compte 2 niveaux. Elle est neuve.La maison se trouve dans un quartier recherché. Des écoles du primaire et du secondaire sont implantées à moins de 10 minutes en voiture, tout comme deux structures d’accueil pour les tout-petits à moins de 10 minutes à pied. Niveau transports, il y a la gare Nonancourt à moins de 10 minutes en voiture. Les nationales N154 et N12 sont accessibles à moins de 7 km. On trouve des tennis, trois bibliothèques, deux bassins de natation, des commerces, des boulangeries, quatre supermarchés, deux supérettes et quatre bureaux de poste à proximité. 2 marchés animent le quartier.Elle est à vendre pour la somme de 192 500 €.Contactez notre agence (SONMEZ Oumayma : (Numéro supprimé)) pour toute information sur la propriété ou sur les démarches à suivre. Les Maisons Extraco Gravigny est là pour vous accompagner à toutes les étapes de l’achat.
L’actualité immobilière à Mesnils-sur-Iton
27/11/2023
02/11/2023
30/10/2023
20/10/2023
16/10/2023
16/10/2023