Maison à construire à Miserey (27930)
Images
Description
Miserey : maison de 5 pièces (100 m²) en vente
PROCHE D'ÉVREUX - MAISON 5 PIÈCES NEUVE
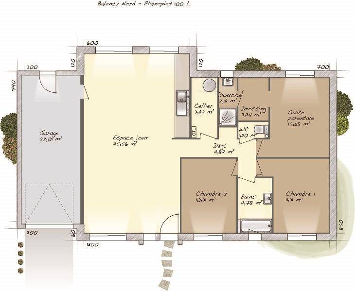
Pavillon de plain pied de 92m² habitables, disposant de 4 chambres. Idéal pour que chaque membre de la famille ai son espace personnel. Une belle pièce de vie toute ouverte, avec cuisine, séjour et salon, permet de se retrouver et de partager les moments de vie. Une entrée avec un placard de rangement, une belle salle de bain et un WC indépendant viennent compléter la disposition de cette maison. Chauffage par pompe à chaleur plancher chauffant. Equipements de qualité et finitions soignées, ce joli modèle vous séduira et saura répondre a tous vos besoins.
Contactez Karen GOHIER au (Numéro supprimé) pour plus de renseignements sur les possibilités de plans, d'agencement et sur votre projet de construction.
Annonce proposée par un Agent Commercial Partenaire.
Logement susceptibles de vous intéresser
Nous vous proposons de découvrir aussi cette sélection de logements situés à moins de 10km de Miserey et qui seraient susceptibles de vous intéresser.
Évreux
TERRAINTerrain de 404 m² à vendre à GuichainvillePROCHE D’ÉVREUXÀ Guichainville (27930) à deux pas d’Évreux, découvrez ce terrain de 404 m². Des écoles maternelles et élémentaires sont implantées dans le quartier. Niveau transports en commun, il y a la gare Évreux Normandie à moins de 10 minutes en voiture. Les nationales N13 et N154 sont accessibles à moins de 3 km. On trouve un tennis, cinq commerces et une boulangerie à proximité.Il est proposé à l’achat pour 54 000 €. Prenez contact avec Aurélie KTARI (tél : (Numéro supprimé)) pour plus d’informations sur le terrain. Donnez vie à vos projets immobiliers avec Les Maisons Extraco Gravigny.
Angerville-la-Campagne
TERRAINTerrain de 471 m² à vendre à Angerville-la-CampagnePROCHE D’ÉVREUXÀ Angerville-la-Campagne (27930) à quelques kilomètres d’Évreux, découvrez ce terrain de 471 m². L’École Primaire Alphonse Cosme est implantée à moins de 10 minutes à pied. Niveau transports en commun, on trouve les gares Évreux Normandie et La Bonneville-sur-Iton à moins de 10 minutes en voiture. Les nationales N13 et N154 sont accessibles à moins de 4 km. Il y a un commerce à quelques minutes à peine.Il est proposé à l’achat pour 61 000 €. Prenez contact avec Aurélie KTARI (tél : (Numéro supprimé)) pour plus de renseignements sur ce terrain, sur les démarches à suivre ou sur les modalités de vente.
Gravigny
TERRAINVENTE : terrain de 520 m² au Boulay-MorinPROCHE D’ÉVREUXAu Boulay-Morin (27930) à quelques kilomètres d’Évreux, imaginez la maison de vos rêves sur ce terrain de 520 m². Il y a des écoles primaires dans le quartier. Niveau transports en commun, on trouve la gare Évreux Normandie à moins de 10 minutes en voiture. Les nationales N154 et N13 sont accessibles à moins de 8 km.Son prix de vente est de 60 000 €. Contactez Aurélie KTARI ((Numéro supprimé)) pour plus de renseignements sur le terrain, sur les démarches à suivre ou sur les modalités de vente. Les Maisons Extraco Gravigny vous accompagne dans tous vos projets immobiliers et à toutes les étapes de votre projet.
Le Val-David
TERRAINVENTE : terrain de 668 m² au Val-DavidPROCHE D’ÉVREUXGrand terrain à quelques kilomètres d’Évreux. De 668 m², ce terrain se situe dans Le Val-David (27120). On trouve une école primaire dans le quartier. Niveau transports, il y a la gare Évreux Normandie à moins de 10 minutes en voiture. Les nationales N13 et N154 sont accessibles à moins de 6 km.Il est à vendre pour la somme de 62 300 €. Contactez Aurélie KTARI ((Numéro supprimé)) pour toute information sur ce terrain ou sur les démarches à suivre.
Miserey
TERRAINTerrain de 500 m² à vendre à MisereyPROCHE D’ÉVREUXÀ 8 km d’Évreux à Miserey (27930), terrain de 500 m². Il est prêt à accueillir votre résidence principale ou secondaire pour toute la famille. Une école primaire est implantée dans le quartier. Côté transports en commun, on trouve la gare Évreux Normandie à moins de 10 minutes en voiture. Les nationales N13 et N154 sont accessibles à moins de 6 km. Il y a un commerce dans les environs.Il est proposé à l’achat pour 60 000 €. Contactez notre agence (KTARI Aurélie : (Numéro supprimé)) pour toute information sur ce terrain, sur les modalités de vente ou sur les démarches à suivre. Les Maisons Extraco Gravigny vous accompagne dans tous vos projets immobiliers et à toutes les étapes de votre projet.
Cierrey
TERRAINVENTE : terrain de 723 m² à CierreyPROCHE D’ÉVREUXEn vente à deux pas d’Évreux à Cierrey (27930), grand terrain. Il est prêt à accueillir la maison de vos rêves pour toute la famille. Il y a une école primaire dans le quartier. Côté transports, on trouve la gare Évreux Normandie à moins de 10 minutes en voiture. Les nationales N13 et N154 sont accessibles à moins de 5 km.Ce terrain est proposé à l’achat pour 66 000 €. Contactez Aurélie KTARI ((Numéro supprimé)) pour tout renseignement sur le terrain ou sur les démarches à suivre. Les Maisons Extraco Gravigny est là pour vous accompagner dans tous vos projets immobiliers.
Le Vieil-Évreux
TERRAINVENTE : terrain de 848 m² au Vieil-ÉvreuxIDÉALEMENT SITUÉ – PROCHE D’ÉVREUXÀ vendre à 5 km d’Évreux au Vieil-Évreux (27930), grand terrain. Réalisez-y la maison de vos rêves. Il est exposé au sud. Dans un secteur recherché, le terrain idéalement situé est proche des écoles et des commerces. Il y a une école maternelle dans le quartier. Niveau transports, on trouve la gare Évreux Normandie à moins de 10 minutes en voiture. Les nationales N13 et N154 sont accessibles à moins de 4 km. Il y a un commerce dans les environs.Ce terrain est proposé à l’achat pour 59 500 €. Contactez Benjamin GRZESKOWIAK (tél : (Numéro supprimé)) pour obtenir de plus amples informations sur le terrain. Faites de vos projets immobiliers une réalité avec Les Maisons Extraco Gravigny.
Pacy-sur-Eure
TERRAINVENTE d’un terrain de 1 514 m² à MénillesIDÉALEMENT SITUÉ – PROCHE D’ÉVREUXÀ vendre à 17 km d’Évreux à Ménilles (27120), grand terrain. Il est prêt à accueillir votre résidence principale ou secondaire pour toute la famille. Il bénéficie d’une exposition sud-ouest. Dans un secteur convoité, ce terrain idéalement situé est proche des commerces et des écoles. L’École Primaire Couleurs Arc-En-En est implantée à moins de 10 minutes à pied. L’autoroute A13 et la nationale N13 sont accessibles à moins de 6 km. Il y a un tennis, une boulangerie, un bureau de poste et une boucherie-charcuterie à quelques minutes du terrain.Son prix de vente est de 148 400 €. Prenez contact avec notre agence (Benjamin GRZESKOWIAK : (Numéro supprimé)) pour obtenir de plus amples informations sur ce terrain et sur les modalités de vente.
Pacy-sur-Eure
TERRAINPacy-sur-Eure : terrain de 571 m² à vendreEMPLACEMENT PRIVILÉGIÉ – PROCHE D’ÉVREUXÀ quelques kilomètres d’Évreux à Pacy-sur-Eure (27120), grand terrain. Il est exposé au sud. Dans un quartier prisé, ce terrain bénéficiant d’un emplacement d’exception est proche des écoles et des commerces. Plusieurs écoles (maternelle, élémentaire, primaire et collège) se trouvent à moins de 10 minutes à pied. La nationale N13 est accessible à 1 km. Il y a deux tennis, un bassin de natation, des commerces, trois supermarchés, quatre boulangeries, une épicerie et quatre boucheries-charcuteries à proximité du bien. Le marché Place de la Mairie anime les environs tous les jeudis matin.Ce terrain est à vendre pour la somme de 71 000 €. Contactez notre agence (GRZESKOWIAK Benjamin : (Numéro supprimé)) pour plus de renseignements sur le terrain, sur les modalités de vente ou sur les démarches à suivre.
L’actualité immobilière à Miserey
27/11/2023
02/11/2023
30/10/2023
20/10/2023
16/10/2023
16/10/2023