Maison à construire à Nassandres (27550)
Images
Description
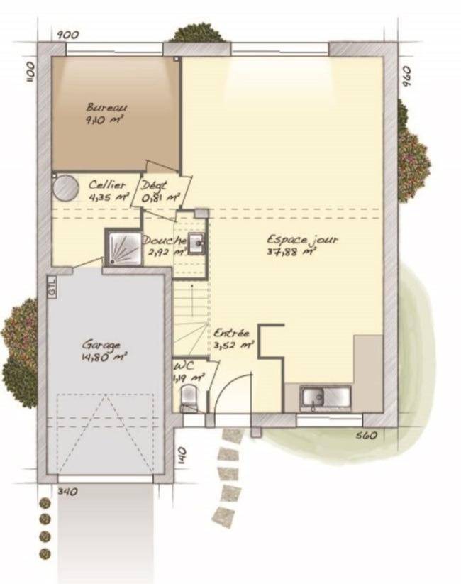
VENTE : maison T6 (115 m²) à Nassandres
EMPLACEMENT PRIVILÉGIÉ - MAISON 6 PIÈCES NEUVE
À 48 km de la Manche, notre agence Maisons Balency Boos est heureuse de vous présenter cette maison de 6 pièces de 115 m² à vendre bénéficiant d'un emplacement d'exception dans Nassandres (27550).
Cette maison possède 2 niveaux. Elle inclut quatre chambres, une cuisine et deux salles de bains. La maison est neuve.
Le terrain de la propriété s'étend sur 1 078 m².
Cette propriété se situe dans un secteur convoité. On trouve l'École Primaire Yann Arthus-Bertrand à moins de 10 minutes à pied. Niveau transports, il y a trois gares (Serquigny, Beaumont-le-Roger et Brionne) à moins de 10 minutes en voiture. L'autoroute A28 est accessible à 12 km. On trouve un tennis, un commerce et une épicerie à proximité du bien.
Elle est à vendre pour la somme de 237 200 €.
Prenez contact avec Aurélien LEOVANT (tél : (Numéro supprimé)) pour toute question sur la maison, sur les modalités de vente ou sur les démarches à suivre. Donnez vie à vos projets immobiliers avec Maisons Balency Boos.
Annonce proposée par un Agent Commercial Partenaire.
Logement susceptibles de vous intéresser
Nous vous proposons de découvrir aussi cette sélection de logements situés à moins de 10km de Nassandres sur Risle et qui seraient susceptibles de vous intéresser.
Menneval
TERRAINMAISONS FRANCE CONFORT VOUS PROPOSE DE CONSTRUIRE SUR LE LOTISEMENT DOMAINE DES COQUELICOTSSITUER A 2 MIN DE BERNAY ET 17 MIN DE THIBERVILLESUR UNE PARCELLE DE 702M² AU PRIX DE 47 000€POUR UNE VISITE DE TERRAIN ET POUR UNE ETUDE DE VOTRE FUTUR MAISON, PRENEZ RENDEZ-VOUS AU (Numéro supprimé) ANGELIQUE
Menneval
TERRAIN ET MAISONMaisons France Confort Lisieux vous propose de construire ce plain pied de 100m².Il se compose d’une entrée sur une belle pièce de vie, un accès au cellier et au garage depuis la cuisine.Dans l’espace nuit, 4 chambres dont une suite parentale avec salle de bain privée et une salle de bain indépendante.Belle prestation :- carrelage 45*45- menuiserie encastrer à la maçonnerie – volet roulant électrique somfy- système de chauffage très économiquePour une étude de construction, merci de prendre rdv avec Mme Vaudry Angélique (Numéro supprimé)
La Neuville-du-Bosc
TERRAINTerrain viabilisé – Idéal projet de constructionVous souhaitez vivre dans un environnement calme en toute tranquillité, profiter de votre jardin paisiblement installé au soleil sur votre terrasse. Ce terrain est fait pour vous !Terrain plat d’environ 2 207 m² situé dans un environnement calme et verdoyant à LA NEUVILLE DU BOSC.Ce terrain viabilisé offre un fort potentiel pour la construction de votre future maison individuelle.Caractéristiques :Superficie : environ 2 207 m²Type de terrain : viabiliséSituation : LA NEUVILLE DU BOSCEnvironnement : Campagne, calme, 10mins de Le NeubourgPossibilité de construction : Libre de constructeurCertificat d’urbanisme : Disponible sur demandeBornage : OuiArrêt de bus à 100mVoie verte pour vos ballades à 2 mins en voitureN’hésitez pas à me contacter. Les honoraires sont à la charge du vendeur.Les informations sur les risques auxquels ce bien est exposé sont disponibles sur le site Géorisques : www. georisques. gouv. fr.Réseau Immobilier CAPIFRANCE – Votre agent commercial (RSAC N(Numéro supprimé) – Greffe de BERNAY) Gregory HUET Entrepreneur Individuel (Numéro supprimé) – Réf.928287
Saint-Léger-de-Rôtes
TERRAINVENTE d’un terrain de 1 500 m² à Saint-Léger-de-RôtesIDÉALEMENT SITUÉÀ 45 km de la Manche à Saint-Léger-de-Rôtes (27300), grand terrain. Il est prêt à accueillir votre projet immobilier pour toute la famille. Il donne sur un bois. Ce terrain est situé dans un quartier convoité. Niveau transports en commun, il y a les gares Serquigny, Bernay et Beaumont-le-Roger à moins de 10 minutes en voiture. L’autoroute A28 est accessible à 7 km. On trouve un tennis à quelques minutes du terrain.Il est à vendre pour la somme de 35 500 €. N’hésitez pas à prendre contact avec notre agence (PETIT Juliette : (Numéro supprimé)) pour plus de renseignements sur le terrain, sur les démarches à suivre ou sur les modalités de vente. Donnez vie à vos projets immobiliers avec Les Maisons Extraco Pont-Audemer.
Saint-Léger-de-Rôtes
TERRAIN ET MAISONSaint-Léger-de-Rôtes : maison de 5 pièces (114 m²) à vendreIDÉALEMENT SITUÉE – MAISON 5 PIÈCES NEUVEÀ vendre : à 45 km de la Manche, nous vous proposons, idéalement située dans Saint-Léger-de-Rôtes (27300), cette maison de 5 pièces de plain-pied de 114 m² et de 1 500 m² de terrain. Conçue de plain-pied, elle offre quatre chambres, une cuisine et une salle de bains.Cette maison est neuve.La maison se trouve dans un quartier convoité. Côté transports en commun, il y a les gares Serquigny, Bernay et Beaumont-le-Roger à moins de 10 minutes en voiture. L’autoroute A28 est accessible à 7 km. On trouve un tennis à quelques minutes du logement.Elle est à vendre pour la somme de 206 000 €.N’hésitez pas à prendre contact avec notre agence (Juliette PETIT : (Numéro supprimé)) pour toute information sur la maison. Concrétisez vos projets immobiliers avec Les Maisons Extraco Pont-Audemer.
Saint-Léger-de-Rôtes
TERRAIN ET MAISONVENTE : maison de 5 pièces (92 m²) à Saint-Léger-de-RôtesIDÉALEMENT SITUÉE – MAISON 5 PIÈCES NEUVEÀ vendre : à 45 km de la Manche, Les Maisons Extraco Pont-Audemer vous présente cette maison de 5 pièces de 92 m² et de 1 500 m² de terrain avec vue sur bois idéalement située dans Saint-Léger-de-Rôtes (27300).Cette maison est de plain-pied. Elle se divise en quatre chambres, une cuisine et une salle de bains. Cette maison est neuve.Ce bien se situe dans un quartier attractif. Côté transports, il y a trois gares (Serquigny, Bernay et Beaumont-le-Roger) à moins de 10 minutes en voiture. On trouve un accès à l’autoroute A28 à 7 km. On trouve un tennis dans les environs.Son prix de vente est de 202 000 €.Contactez Juliette PETIT (tél : (Numéro supprimé)) pour toute information sur la maison, sur les modalités de vente ou sur les démarches à suivre. Les Maisons Extraco Pont-Audemer vous accompagne dans tous vos projets immobiliers et à toutes les étapes de votre projet.
Saint-Léger-de-Rôtes
TERRAIN ET MAISONVENTE d’une maison T6 (120 m²) à Saint-Léger-de-RôtesIDÉALEMENT SITUÉE – MAISON 6 PIÈCES NEUVEÀ 45 km de la Manche, à vendre idéalement située dans Saint-Léger-de-Rôtes (27300), notre agence Les Maisons Extraco Pont-Audemer est ravie de vous présenter cette maison de 6 pièces de 120 m². Son intérieur se divise en quatre chambres, une cuisine et deux salles de bains.Le terrain du bien est de 1 500 m².Il s’agit d’une maison de 2 niveaux. Elle est neuve.Cette maison se trouve dans un quartier prisé. Côté transports, il y a les gares Serquigny, Bernay et Beaumont-le-Roger à moins de 10 minutes en voiture. Il y a un accès à l’autoroute A28 à 7 km. On trouve un tennis à proximité du logement.Elle est proposée à l’achat pour 272 000 €.Contactez Juliette PETIT ((Numéro supprimé)) pour toute question sur la maison. Les Maisons Extraco Pont-Audemer est là pour vous accompagner à toutes les étapes de votre projet.
Thibouville
TERRAINThibouville : terrain de 1 230 m² à vendreEMPLACEMENT PRIVILÉGIÉ – VUE SANS VIS-À-VISÀ vendre à quelques kilomètres d’Évreux à Thibouville (27800), grand terrain. Il est prêt à accueillir la maison de vos rêves pour toute la famille. Ce terrain, exposé plein sud-ouest, profite d’une vue sans vis-à-vis. Dans un quartier convoité, le terrain bénéficiant d’un emplacement privilégié est proche des écoles et des commerces. Il y a des établissements scolaires de tous types à moins de 10 minutes en voiture, tout comme une crèche à moins de 10 minutes à pied. Niveau transports, on trouve les gares Serquigny, Brionne et Beaumont-le-Roger à moins de 10 minutes en voiture. Il y a des tennis, trois bibliothèques, un bassin de natation, des boulangeries, des commerces, des supermarchés, une poissonnerie et des épiceries à quelques minutes. 3 marchés animent le quartier.Son prix de vente est de 49 500 €. Contactez notre agence (GARCIA Cécilia : (Numéro supprimé)) pour tout renseignement sur le terrain et sur les modalités de vente.
Nassandres sur Risle
TERRAINTerrain de 974 m² en vente à NassandresIDÉALEMENT SITUÉ – VUE DÉGAGÉEÀ Nassandres (27550) à 48 km de la Manche, venez découvrir ce terrain de 974 m². Ce terrain, avec vue dégagée, bénéficie d’une exposition sud-ouest. Dans un quartier attractif, ce terrain idéalement situé est proche des commerces et des écoles. L’École Primaire Yann Arthus-Bertrand est implantée à moins de 10 minutes à pied. Niveau transports, on trouve les gares Serquigny, Beaumont-le-Roger et Brionne à moins de 10 minutes en voiture. L’autoroute A28 est accessible à 12 km. Il y a un tennis, un commerce et une épicerie à quelques minutes.Ce terrain est à vendre pour la somme de 29 500 €. Prenez contact avec Cécilia GARCIA ((Numéro supprimé)) pour toute question sur le terrain, sur les démarches à suivre ou sur les modalités de vente. Les Maisons Extraco Pont-Audemer est là pour vous accompagner dans tous vos projets immobiliers.
L’actualité immobilière à Nassandres sur Risle
27/11/2023
02/11/2023
30/10/2023
20/10/2023
16/10/2023
16/10/2023