Maison à construire à Pîtres (27590)
Images
Description
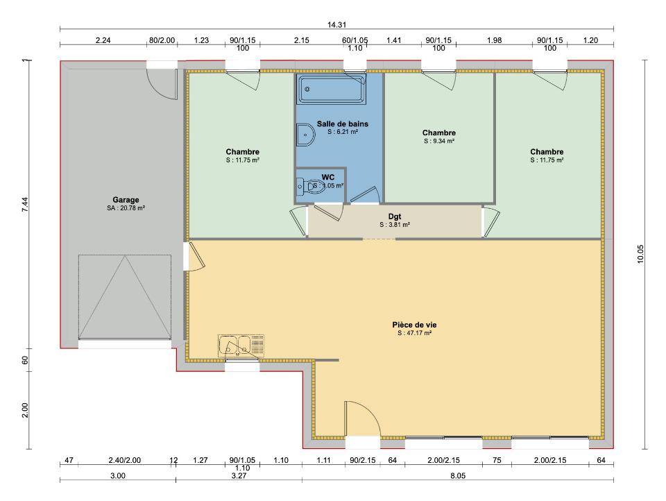
VENTE : maison F5 (90 m²) à Pîtres
IDÉALEMENT SITUÉE - MAISON 5 PIÈCES NEUVE
En vente : à quelques kilomètres de Rouen, idéalement située dans Pîtres (27590), nous vous présentons cette maison de 5 pièces de plain-pied de 90 m². Son intérieur dispose de trois chambres, d'une cuisine et d'une salle de bains.
Le terrain de cette maison s'étend sur 525 m².
Cette maison est neuve.
La maison est située dans un quartier convoité. L'École Primaire Jacques Prévert y est implantée. Niveau transports en commun, on trouve cinq gares à moins de 10 minutes en voiture. Les autoroutes A13 et A154 sont accessibles à moins de 10 km. Il y a une bibliothèque à proximité.
Elle est à vendre pour la somme de 200 000 €.
Contactez Dany LEOVANT (tél : (Numéro supprimé)) pour tout renseignement sur le bien, sur les démarches à suivre ou sur les modalités de vente.
Annonce proposée par un Agent Commercial Partenaire.
Logement susceptibles de vous intéresser
Nous vous proposons de découvrir aussi cette sélection de logements situés à moins de 10km de Pîtres et qui seraient susceptibles de vous intéresser.
Le Vaudreuil
TERRAINAccolé à la commune du VAUDREUIL, sur la commune de SAINT ETIENNE DU VAUVRAY, dans un quartier résidentiel, terrain à bâtir prêt à accueillir votre future maison individuelle
Incarville
TERRAINSur la commune de INCARVILLE, dans un quartier résidentiel, terrain à bâtir prêt à accueillir votre future maison individuelle
Le Vaudreuil
TERRAIN ET MAISONVENTE d’une maison de 4 pièces (135 m²) accolée au VaudreuilPROCHE DE ROUEN – MAISON 4 PIÈCES NEUVEEn vente à 22 km de Rouen, nous vous présentons cette maison de 4 pièces de 135 m² accolée au Vaudreuil (27100).Cette maison possède 2 niveaux. Elle propose cinq chambres, une cuisine et deux salles de bains. La maison est neuve.Le terrain du bien est de 1 723 m².Quatre établissements scolaires se trouvent à moins de 10 minutes à pied, tout comme dont l’École Maternelle les Tilleuls, le Collège Michel de Montaigne et l’École Primaire Privée Saint Henri. Côté transports en commun, il y a trois gares (Val-de-Reuil, Saint-Pierre-du-Vauvray et Pont-de-l’Arche) à moins de 10 minutes en voiture. Les autoroutes A13 et A154 et la nationale N154 sont accessibles à moins de 9 km. On trouve trois tennis, une bibliothèque, des commerces, une boulangerie, une boucherie-charcuterie, une épicerie et un bureau de poste à quelques minutes.Elle est à vendre pour la somme de 317 900 €.Contactez notre agence (MORIN Peter : (Numéro supprimé)) pour plus de renseignements sur cette maison ou sur les modalités de vente. Les Maisons Extraco Pont-de-l’Arche est là pour vous accompagner à toutes les étapes de votre projet.
Le Vaudreuil
TERRAIN ET MAISONVENTE d’une maison T4 (141 m²) accolée au VaudreuilMAISON 4 PIÈCES NEUVE – PROCHE DE ROUENÀ vendre : située à deux pas de Rouen, Les Maisons Extraco Pont-de-l’Arche vous présente cette maison de 4 pièces de 141 m² accolée au Vaudreuil (27100).Il s’agit d’une maison de 2 niveaux. Son intérieur se divise en quatre chambres, une cuisine et deux salles de bains. La maison est neuve.Le terrain de la propriété est de 1 723 m².Il y a quatre établissements scolaires à moins de 10 minutes à pied et dont l’École Maternelle les Tilleuls, le Collège Michel de Montaigne et l’École Primaire Privée Saint Henri. Côté transports, on trouve trois gares (Val-de-Reuil, Saint-Pierre-du-Vauvray et Pont-de-l’Arche) à moins de 10 minutes en voiture. Les autoroutes A13 et A154 et la nationale N154 sont accessibles à moins de 9 km. Il y a trois tennis, une bibliothèque, des commerces, une boulangerie, un bureau de poste, une boucherie-charcuterie et une épicerie dans les environs.Son prix de vente est de 351 700 €.Prenez contact avec notre agence (MORIN Peter : (Numéro supprimé)) pour toute question sur cette propriété ou sur les modalités de vente.
Le Vaudreuil
TERRAIN ET MAISONMaison T5 (183 m²) à vendre accolée au VaudreuilMAISON 5 PIÈCES NEUVE – PROCHE DE ROUENÀ vendre : à deux pas de Rouen, Les Maisons Extraco Pont-de-l’Arche vous présente cette maison de 5 pièces de 183 m² et de 1 723 m² de terrain accolée au Vaudreuil (27100).Cette maison compte 2 niveaux. Son intérieur se divise en trois chambres, une cuisine et trois salles de bains. La maison est neuve.Il y a quatre établissements scolaires à moins de 10 minutes à pied et, parmi lesquels l’École Maternelle les Tilleuls, le Collège Michel de Montaigne et l’École Primaire Privée Saint Henri. Niveau transports en commun, on trouve trois gares (Val-de-Reuil, Saint-Pierre-du-Vauvray et Pont-de-l’Arche) à moins de 10 minutes en voiture. Les autoroutes A13 et A154 et la nationale N154 sont accessibles à moins de 9 km. Il y a trois tennis, une bibliothèque, des commerces, une boulangerie, une épicerie, un bureau de poste et une boucherie-charcuterie à proximité du bien.Elle est à vendre pour la somme de 431 200 €.Contactez notre agence (MORIN Peter : (Numéro supprimé)) pour obtenir de plus amples informations sur la maison, sur les démarches à suivre ou sur les modalités de vente.
Incarville
TERRAIN ET MAISONVENTE : maison de 6 pièces (151 m²) à IncarvilleMAISON 6 PIÈCES NEUVE – PROCHE DE ROUENEn vente : à 21 km de Rouen, Les Maisons Extraco Pont-de-l’Arche vous propose à Incarville (27400), cette maison de 6 pièces de 151 m². Elle inclut cinq chambres, une cuisine et deux salles de bains.Le terrain de la maison est de 732 m².Cette maison compte 2 niveaux. Elle est neuve.Il y a des écoles maternelles et élémentaires dans le quartier. Niveau transports, on trouve trois gares (Saint-Pierre-du-Vauvray, Val-de-Reuil et Pont-de-l’Arche) à moins de 10 minutes en voiture. On trouve un accès à l’autoroute A154 à 1 km. Il y a un tennis, quatre commerces, une boulangerie et deux épiceries à proximité du bien.Elle est proposée à l’achat pour 377 300 €.Contactez Peter MORIN ((Numéro supprimé)) pour toute information sur cette maison, sur les démarches à suivre ou sur les modalités de vente. Concrétisez vos projets immobiliers avec Les Maisons Extraco Pont-de-l’Arche.
Incarville
TERRAIN ET MAISONVENTE d’une maison T6 (139 m²) à IncarvillePROCHE DE ROUEN – MAISON 6 PIÈCES NEUVEÀ vendre à quelques kilomètres de Rouen, nous vous présentons à Incarville (27400), cette maison de 6 pièces de 139 m². Elle propose quatre chambres, une cuisine et deux salles de bains.Le terrain de la maison s’étend sur 732 m².Il s’agit d’une maison de 2 niveaux. Elle est neuve.Des écoles maternelles et élémentaires sont implantées dans le quartier. Niveau transports, il y a les gares Saint-Pierre-du-Vauvray, Val-de-Reuil et Pont-de-l’Arche à moins de 10 minutes en voiture. On trouve un accès à l’autoroute A154 à 1 km. On trouve un tennis, quatre commerces, une boulangerie et deux épiceries dans les environs.Son prix de vente est de 388 900 €.Contactez notre agence (MORIN Peter : (Numéro supprimé)) pour toute question sur cette maison.
Incarville
TERRAIN ET MAISONVENTE : maison F6 (149 m²) à IncarvillePROCHE DE ROUEN – MAISON 6 PIÈCES NEUVEÀ quelques kilomètres de Rouen, nous vous proposons cette maison de 6 pièces de 149 m² en vente à Incarville (27400).Il s’agit d’une maison de 2 niveaux. Elle compte quatre chambres, une cuisine et deux salles de bains. La maison est neuve.Le terrain du bien est de 732 m².On trouve des écoles maternelles et élémentaires dans le quartier. Niveau transports en commun, il y a trois gares (Saint-Pierre-du-Vauvray, Val-de-Reuil et Pont-de-l’Arche) à moins de 10 minutes en voiture. Il y a un accès à l’autoroute A154 à 1 km. On trouve un tennis, quatre commerces, une boulangerie et deux épiceries à quelques minutes à peine.Elle est à vendre pour la somme de 392 600 €.Contactez notre agence (Peter MORIN : (Numéro supprimé)) pour toute question sur la maison.
L’actualité immobilière à Pîtres
27/11/2023
02/11/2023
30/10/2023
20/10/2023
16/10/2023
16/10/2023