Maison à construire à Pont-Audemer (27500)
Images
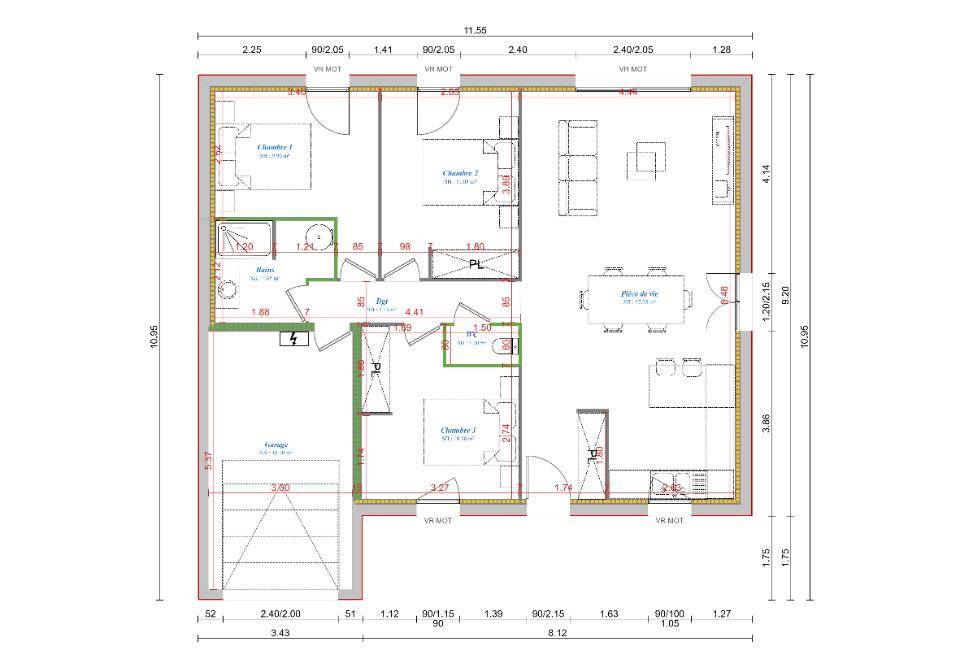
Description
Maisons France Confort Lisieux vous propose de construire cette maison de plain pied de 78m².
Il se compose d'une entrée avec placard, une belle pièce de vie lumineuse
Dans l'espace nuit, 3 chambres et une salle de bain.
Un accès au garage depuis la maison.
Belles prestations :
- carrelage 45*45
- menuiserie encastrer à la maçonnerie
- volet roulant électrique somfy
- système de chauffage très économique
Pour une étude de construction, merci de prendre rdv avec Mme Vaudry Angélique (Numéro supprimé)
Logement susceptibles de vous intéresser
Nous vous proposons de découvrir aussi cette sélection de logements situés à moins de 10km de Pont-Audemer et qui seraient susceptibles de vous intéresser.
Corneville-sur-Risle
TERRAIN ET MAISONCorneville-sur-Risle : maison T4 (120 m²) à vendreMAISON 4 PIÈCES NEUVEÀ vendre : située à 20 km de la Manche, nous sommes ravis de vous proposer cette maison de 4 pièces de plain-pied de 120 m² à Corneville-sur-Risle (27500). Conçue de plain-pied, elle dispose de trois chambres, d’une cuisine et de deux salles de bains.Le terrain de la propriété est de 1 858 m².Cette maison est neuve.Des établissements scolaires maternelles et élémentaires sont implantés dans le quartier. Côté transports, il y a la gare Glos-Montfort à moins de 10 minutes en voiture. Les autoroutes A13 et A131 sont accessibles à moins de 6 km. On trouve un tennis à proximité.Elle est à vendre pour la somme de 297 000 €.Contactez notre agence (Juliette PETIT : (Numéro supprimé)) pour obtenir de plus amples informations sur la maison.
Corneville-sur-Risle
TERRAINCorneville-sur-Risle : terrain de 1 858 m² à vendreÀ Corneville-sur-Risle (27500) à 20 km de la Manche, découvrez ce terrain de 1 858 m². Il y a des écoles primaires dans le quartier. Côté transports, on trouve la gare Glos-Montfort à moins de 10 minutes en voiture. Les autoroutes A13 et A131 sont accessibles à moins de 6 km. Il y a un tennis à proximité du bien.Son prix de vente est de 49 000 €. N’hésitez pas à prendre contact avec notre agence (Juliette PETIT : (Numéro supprimé)) pour toute question sur ce terrain.
Pont-Audemer
TERRAINVENTE : terrain de 1 072 m² à Saint-Germain-VillagePROCHE DES PRÉAUXGrand terrain à 14 km de la Manche et collé aux Préaux. De 1 072 m², ce terrain se situe dans Saint-Germain-Village (27500). Il y a des établissements scolaires de tous niveaux à moins de 10 minutes à pied. Les autoroutes A13 et A131 sont accessibles à moins de 9 km. On trouve un tennis, des commerces, un supermarché, deux boulangeries, quatre boucheries-charcuteries et deux épiceries dans les environs.Il est à vendre pour la somme de 65 000 €. Contactez Juliette PETIT (tél : (Numéro supprimé)) pour toute information sur ce terrain et sur les modalités de vente. Les Maisons Extraco Pont-Audemer est là pour vous accompagner à toutes les étapes de votre projet.
Pont-Audemer
TERRAIN ET MAISONVENTE d’une maison de 4 pièces (84 m²) à Saint-Germain-VillageMAISON 4 PIÈCES NEUVE – PROCHE DES PRÉAUXÀ 14 km de la Manche et collé aux Préaux, nous sommes heureux de vous proposer cette maison de 4 pièces de plain-pied de 84 m² et de 1 072 m² de terrain en vente à Saint-Germain-Village (27500). Elle est composée de trois chambres, d’une cuisine et d’une salle de bains.Cette maison est neuve.Des établissements scolaires de tous niveaux (de la maternelle au lycée) se trouvent à moins de 10 minutes à pied. Les autoroutes A13 et A131 sont accessibles à moins de 9 km. Il y a un tennis, des commerces, un supermarché, deux boulangeries, deux épiceries et quatre boucheries-charcuteries à proximité du logement.Elle est proposée à l’achat pour 214 000 €.Contactez Juliette PETIT ((Numéro supprimé)) pour toute question sur la maison.
Corneville-sur-Risle
TERRAIN ET MAISONVENTE : maison F5 (114 m²) à Corneville-sur-RisleMAISON 5 PIÈCES NEUVEÀ 20 km de la Manche, laissez vous charmer par cette maison de 5 pièces de 114 m² en vente à Corneville-sur-Risle (27500).Cette maison possède 2 niveaux. Son intérieur offre quatre chambres, une cuisine et une salle de bains. Cette maison est neuve.Le terrain de la propriété s’étend sur 1 858 m².On trouve des écoles maternelles et élémentaires dans le quartier. Niveau transports en commun, il y a la gare Glos-Montfort à moins de 10 minutes en voiture. Les autoroutes A13 et A131 sont accessibles à moins de 6 km. On trouve un tennis à proximité de la maison.Elle est à vendre pour la somme de 318 000 €.N’hésitez pas à prendre contact avec notre agence (Juliette PETIT : (Numéro supprimé)) pour toute question sur la maison ou sur les démarches à suivre. Faites de vos projets immobiliers une réalité avec Les Maisons Extraco Pont-Audemer.
Pont-Audemer
TERRAIN ET MAISONVENTE : maison de 6 pièces (120 m²) à Saint-Germain-VillageMAISON 6 PIÈCES NEUVE – PROCHE DES PRÉAUXEn vente : à 14 km de la Manche et en limite des Préaux, ayez le coup de coeur pour à Saint-Germain-Village (27500), cette maison de 6 pièces de 120 m². Elle se divise en quatre chambres, une cuisine et deux salles de bains.Le terrain de la propriété est de 1 072 m².Cette maison compte 2 niveaux. Elle est neuve.Il y a des écoles de tous types (de la maternelle au lycée) à moins de 10 minutes à pied. Les autoroutes A13 et A131 sont accessibles à moins de 9 km. On trouve un tennis, des commerces, un supermarché, deux boulangeries, deux épiceries et quatre boucheries-charcuteries dans les environs.Elle est proposée à l’achat pour 295 000 €.Prenez contact avec notre agence (PETIT Juliette : (Numéro supprimé)) pour toute question sur la maison, sur les démarches à suivre ou sur les modalités de vente. Donnez vie à vos projets immobiliers avec Les Maisons Extraco Pont-Audemer.
Corneville-sur-Risle
TERRAIN ET MAISONCorneville-sur-Risle : maison de 6 pièces (120 m²) à vendreMAISON 6 PIÈCES NEUVEEn vente : à 20 km de la Manche, notre agence Les Maisons Extraco Pont-Audemer est heureuse de vous proposer cette maison de 6 pièces de 120 m² à Corneville-sur-Risle (27500). Elle offre quatre chambres, une cuisine et deux salles de bains.Le terrain de la propriété s’étend sur 1 858 m².C’est une maison de 2 niveaux. Elle est neuve.Des écoles maternelles et élémentaires sont implantées dans le quartier. Côté transports, il y a la gare Glos-Montfort à moins de 10 minutes en voiture. Les autoroutes A13 et A131 sont accessibles à moins de 6 km. On trouve un tennis à quelques minutes à peine.Elle est proposée à l’achat pour 287 000 €.N’hésitez pas à prendre contact avec notre agence (PETIT Juliette : (Numéro supprimé)) pour obtenir de plus amples renseignements sur le bien, sur les modalités de vente ou sur les démarches à suivre. Les Maisons Extraco Pont-Audemer est là pour vous accompagner dans tous vos projets immobiliers.
Pont-Audemer
TERRAIN ET MAISONSaint-Germain-Village : maison T4 (120 m²) à vendreMAISON 4 PIÈCES NEUVE – PROCHE DES PRÉAUXEn vente à 14 km de la Manche et en limite des Préaux, nous vous présentons cette maison de 4 pièces de plain-pied de 120 m² à Saint-Germain-Village (27500).Son intérieur comporte trois chambres, une cuisine et deux salles de bains. Cette maison est neuve.Le terrain de la propriété s’étend sur 1 072 m².Des écoles de tous types (de la maternelle au lycée) sont implantées à moins de 10 minutes à pied. Les autoroutes A13 et A131 sont accessibles à moins de 9 km. Il y a un tennis, des commerces, un supermarché, deux boulangeries, quatre boucheries-charcuteries et deux épiceries dans les environs.Elle est proposée à l’achat pour 305 000 €.N’hésitez pas à prendre contact avec Juliette PETIT (tél : (Numéro supprimé)) pour obtenir de plus amples renseignements sur la maison.
Pont-Audemer
TERRAIN ET MAISONMaison de 89m² habitableElle se compose d’une belle pièces de vie ouverte, avec un cellier et une chambre au rdc.A l’étage 3 chambres et une salle de bain.Prestations :Carrelage 45*45volets roulants encastrée à la maçonnerie + électrique SomfyParquet dans les chambresPour une étude de votre projet de construction merci de prendre rdv au (Numéro supprimé) Angélique Vaudry
L’actualité immobilière à Pont-Audemer
27/11/2023
02/11/2023
30/10/2023
20/10/2023
16/10/2023
16/10/2023