Maison à construire à Portes (27190)
Images
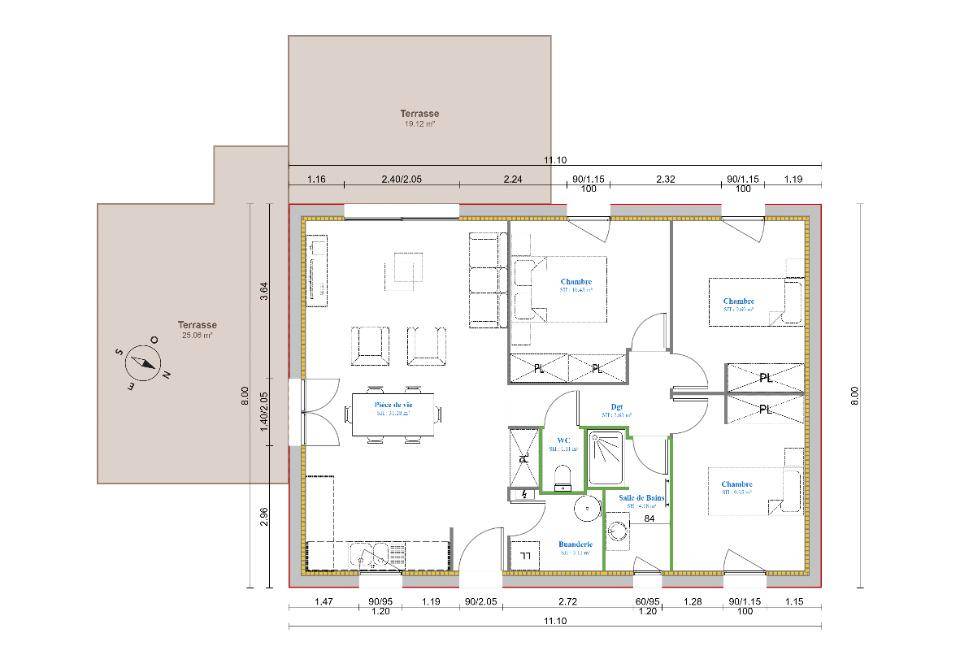
Description
Maisons France Confort Lisieux vous propose de construire ce plain pied de 73m².
Il se compose d'une entrée sur une belle pièce de vie, un accès au cellier.
Dans l'espace nuit, 3 chambres et une salle de bain indépendante.
Belle prestation :
- carrelage 45*45
- menuiserie encastrer à la maçonnerie
- volet roulant électrique somfy
- système de chauffage très économique
Pour une étude de construction, merci de prendre rdv avec Mme Vaudry Angélique (Numéro supprimé)
Logement susceptibles de vous intéresser
Nous vous proposons de découvrir aussi cette sélection de logements situés à moins de 10km de Portes et qui seraient susceptibles de vous intéresser.
Aulnay-sur-Iton
TERRAINVENTE d’un terrain de 654 m² à Aulnay-sur-ItonIDÉALEMENT SITUÉ – PROCHE D’ÉVREUXÀ Aulnay-sur-Iton (27180) à quelques kilomètres d’Évreux, imaginez la maison de vos rêves sur ce terrain de 654 m². Il est orienté plein sud. Dans un secteur prisé, le terrain idéalement situé est proche des commerces et des écoles. L’École Primaire Paul Vezain est implantée à moins de 10 minutes à pied. Niveau transports, il y a trois gares (La Bonneville-sur-Iton, Évreux Normandie et Conches-en-Ouche) à moins de 10 minutes en voiture. Les nationales N13 et N154 sont accessibles à moins de 10 km. On trouve deux tennis dans les environs.Ce terrain est à vendre pour la somme de 45 000 €. Contactez Benjamin GRZESKOWIAK ((Numéro supprimé)) pour toute information sur le terrain ou sur les démarches à suivre.
Ormes
TERRAINVENTE d’un terrain de 1 000 m² à OrmesPROCHE D’ÉVREUXEn vente à quelques kilomètres d’Évreux à Ormes (27190), grand terrain. Il est prêt à accueillir la maison de vos rêves pour toute la famille. Il y a une école élémentaire dans le quartier. Niveau transports en commun, on trouve deux gares (La Bonneville-sur-Iton et Romilly-la-Puthenaye) à moins de 10 minutes en voiture. La nationale N13 est accessible à 10 km.Son prix de vente est de 38 000 €. Contactez notre agence (GRZESKOWIAK Benjamin : (Numéro supprimé)) pour plus d’informations sur ce terrain ou sur les modalités de vente. Les Maisons Extraco Gravigny vous accompagne dans tous vos projets immobiliers et dans toutes vos démarches.
Aulnay-sur-Iton
TERRAIN ET MAISONVENTE : maison F4 (141 m²) à Aulnay-sur-ItonIDÉALEMENT SITUÉE – MAISON 4 PIÈCES NEUVEEn vente à deux pas d’Évreux, nous vous proposons cette maison de 4 pièces de 141 m² et de 654 m² de terrain idéalement située dans Aulnay-sur-Iton (27180). Elle est composée de quatre chambres, d’une cuisine et de deux salles de bains.Cette maison comporte 2 niveaux. Elle est neuve.Cette maison se situe dans un secteur prisé. Il y a l’École Primaire Paul Vezain à moins de 10 minutes à pied. Niveau transports, on trouve trois gares (La Bonneville-sur-Iton, Évreux Normandie et Conches-en-Ouche) à moins de 10 minutes en voiture. Les nationales N13 et N154 sont accessibles à moins de 10 km. Il y a deux tennis à proximité.Son prix de vente est de 329 141 €.Contactez Benjamin GRZESKOWIAK ((Numéro supprimé)) pour plus d’informations sur le bien. Les Maisons Extraco Gravigny vous accompagne dans tous vos projets immobiliers et dans toutes vos démarches.
Aulnay-sur-Iton
TERRAIN ET MAISONMaison de 4 pièces (97 m²) en vente à Aulnay-sur-ItonIDÉALEMENT SITUÉE – MAISON 4 PIÈCES NEUVEÀ vendre : située à quelques kilomètres d’Évreux, votre agence Les Maisons Extraco Gravigny est ravie de vous présenter cette maison de 4 pièces de plain-pied de 97 m² idéalement située dans Aulnay-sur-Iton (27180).Conçue de plain-pied, elle se divise en trois chambres, une cuisine et une salle de bains. Cette maison est neuve.Le terrain de la propriété s’étend sur 654 m².Cette maison se situe dans un secteur prisé. L’École Primaire Paul Vezain se trouve à moins de 10 minutes à pied. Côté transports, il y a trois gares (La Bonneville-sur-Iton, Évreux Normandie et Conches-en-Ouche) à moins de 10 minutes en voiture. Les nationales N13 et N154 sont accessibles à moins de 10 km. On trouve deux tennis à quelques minutes à peine.Elle est à vendre pour la somme de 202 860 €.Contactez notre agence (Benjamin GRZESKOWIAK : (Numéro supprimé)) pour tout renseignement sur la maison ou sur les démarches à suivre.
Aulnay-sur-Iton
TERRAIN ET MAISONAulnay-sur-Iton : maison de 4 pièces (80 m²) en venteIDÉALEMENT SITUÉE – MAISON 4 PIÈCES NEUVEÀ vendre à 7 km d’Évreux, nous vous proposons, idéalement située dans Aulnay-sur-Iton (27180), cette maison de 4 pièces de plain-pied de 80 m².Conçue de plain-pied, elle se divise en trois chambres, une cuisine et une salle de bains. Cette maison est neuve.Le terrain de la propriété s’étend sur 654 m².La maison est située dans un quartier convoité. L’École Primaire Paul Vezain se trouve à moins de 10 minutes à pied. Niveau transports en commun, il y a trois gares (La Bonneville-sur-Iton, Évreux Normandie et Conches-en-Ouche) à moins de 10 minutes en voiture. Les nationales N13 et N154 sont accessibles à moins de 10 km. On trouve deux tennis à quelques minutes du logement.Elle est proposée à l’achat pour 186 200 €.N’hésitez pas à prendre contact avec notre agence (GRZESKOWIAK Benjamin : (Numéro supprimé)) pour obtenir de plus amples renseignements sur la maison.
Aulnay-sur-Iton
TERRAIN ET MAISONVENTE d’une maison de 4 pièces (71 m²) à Aulnay-sur-ItonIDÉALEMENT SITUÉE – MAISON 4 PIÈCES NEUVEÀ vendre : localisée à deux pas d’Évreux, nous sommes ravis de vous présenter cette maison de 4 pièces de plain-pied de 71 m² et de 654 m² de terrain idéalement située dans Aulnay-sur-Iton (27180).Conçue de plain-pied, elle inclut deux chambres, une cuisine et une salle de bains. Cette maison est neuve.La maison est située dans un secteur recherché. L’École Primaire Paul Vezain est implantée à moins de 10 minutes à pied. Niveau transports en commun, on trouve trois gares (La Bonneville-sur-Iton, Évreux Normandie et Conches-en-Ouche) à moins de 10 minutes en voiture. Les nationales N13 et N154 sont accessibles à moins de 10 km. Il y a deux tennis à proximité.Elle est proposée à l’achat pour 169 676 €.Contactez notre agence (Benjamin GRZESKOWIAK : (Numéro supprimé)) pour obtenir de plus amples informations sur la maison, sur les démarches à suivre ou sur les modalités de vente. Concrétisez vos projets immobiliers avec Les Maisons Extraco Gravigny.
Ormes
TERRAIN ET MAISONVENTE d’une maison de 3 pièces (65 m²) à OrmesMAISON 3 PIÈCES NEUVE – PROCHE D’ÉVREUXEn vente : localisée à 14 km d’Évreux, nous sommes heureux de vous présenter cette maison de 3 pièces de plain-pied de 65 m² et de 1 000 m² de terrain à Ormes (27190).Conçue de plain-pied, elle compte deux chambres, une cuisine et une salle de bains. La maison est neuve.Une école élémentaire est implantée dans le quartier. Côté transports en commun, il y a deux gares (La Bonneville-sur-Iton et Romilly-la-Puthenaye) à moins de 10 minutes en voiture. Il y a un accès à la nationale N13 à 10 km.Elle est à vendre pour la somme de 151 300 €.Contactez notre agence (Benjamin GRZESKOWIAK : (Numéro supprimé)) pour plus de renseignements sur cette maison.
Ormes
TERRAIN ET MAISONMaison T4 (81 m²) en vente à OrmesMAISON 4 PIÈCES NEUVE – PROCHE D’ÉVREUXEn vente à quelques kilomètres d’Évreux, nous sommes heureux de vous proposer à Ormes (27190), cette maison de 4 pièces de 81 m².C’est une maison de 2 niveaux. Son intérieur inclut deux chambres, une cuisine et une salle de bains. La maison est neuve.Le terrain du bien est de 1 000 m².On trouve une école élémentaire dans le quartier. Côté transports en commun, il y a deux gares (La Bonneville-sur-Iton et Romilly-la-Puthenaye) à moins de 10 minutes en voiture. La nationale N13 est accessible à 10 km.Elle est proposée à l’achat pour 173 512 €.Contactez Benjamin GRZESKOWIAK ((Numéro supprimé)) pour plus d’informations sur la maison. Les Maisons Extraco Gravigny est là pour vous accompagner dans tous vos projets immobiliers.
Ormes
TERRAIN ET MAISONVENTE : maison T3 (99 m²) à OrmesMAISON 3 PIÈCES NEUVE – PROCHE D’ÉVREUXÀ vendre : à quelques kilomètres d’Évreux, à Ormes (27190), notre agence Les Maisons Extraco Gravigny est heureuse de vous présenter cette maison de 3 pièces de plain-pied de 99 m² et de 1 000 m² de terrain. Elle propose trois chambres, une cuisine et deux salles de bains.La maison est neuve.Une école élémentaire est implantée dans le quartier. Côté transports, il y a deux gares (La Bonneville-sur-Iton et Romilly-la-Puthenaye) à moins de 10 minutes en voiture. La nationale N13 est accessible à 10 km.Elle est à vendre pour la somme de 223 000 €.Contactez notre agence (Benjamin GRZESKOWIAK : (Numéro supprimé)) pour plus d’informations sur cette maison ou sur les modalités de vente.
L’actualité immobilière à Portes
27/11/2023
02/11/2023
30/10/2023
20/10/2023
16/10/2023
16/10/2023