Maison à construire à Quittebeuf (27110)
Images
Description
Maison T5 (76 m²) à vendre à Quittebeuf
PROCHE D'ÉVREUX - MAISON 5 PIÈCES NEUVE
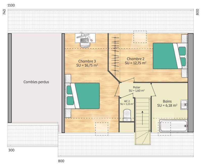
À vendre à quelques kilomètres d'Évreux, à Quittebeuf (27110), votre agence Maisons Balency Gravigny est ravie de vous présenter cette maison de 5 pièces de 76 m².
Cette maison comporte 2 niveaux. Son intérieur inclut trois chambres, une cuisine et une salle de bains. Cette maison est neuve.
Le terrain de la propriété s'étend sur 1 800 m².
Une école primaire est implantée dans le quartier. La nationale N13 est accessible à 10 km. Il y a une boulangerie dans les environs.
Elle est proposée à l'achat pour 200 409 €.
N'hésitez pas à prendre contact avec notre agence (Karen DELELIS : (Numéro supprimé)) pour plus de renseignements sur la maison ou sur les démarches à suivre. Donnez vie à vos projets immobiliers avec Maisons Balency Gravigny.
Annonce proposée par un Agent Commercial Partenaire.
Logement susceptibles de vous intéresser
Nous vous proposons de découvrir aussi cette sélection de logements situés à moins de 10km de Quittebeuf et qui seraient susceptibles de vous intéresser.
Tourneville
TERRAIN ET MAISONVENTE d’une maison de 4 pièces (110 m²) à SacquenvilleIDÉALEMENT SITUÉE -À vendre : à 9 km d’Évreux, idéalement située dans Sacquenville (27930), Maisons Balency Louviers vous propose cette maison de 4 pièces de 110 m² et de 1 300 m² de terrain. Son intérieur compte trois chambres, une cuisine ouverte sur l’espace de vie, d’un cellier et une salle de bains.Cette maison possède 2 niveaux. Elle est neuve.Son prix de vente est de 256 137 €.Prenez contact avec notre agence (GATINAULT Fanny : (Numéro supprimé)) pour toute question sur la maison ou sur les démarches à suivre. Maisons Balency Louviers est là pour vous accompagner dans tous vos projets immobiliers.Annonce proposée par un Agent Commercial Partenaire.
Sacquenville
TERRAIN ET MAISONSacquenville : maison T4 (85 m²) en venteMAISON 4 PIÈCES NEUVE – PROCHE D’ÉVREUXÀ vendre : localisée à 9 km d’Évreux, à Sacquenville (27930), nous vous présentons cette maison de 4 pièces de plain-pied de 85 m². Son intérieur comporte trois chambres, une cuisine sur le séjour, deux salles de bains, un cellier et un garage.Le terrain de la propriété est de 1 053 m².Cette maison est neuve.Il y a une école primaire dans le quartier. Côté transports en commun, on trouve la gare Évreux Normandie à moins de 10 minutes en voiture. Les nationales N13 et N154 sont accessibles à moins de 8 km. Il y a deux épiceries à proximité.Son prix de vente est de 212 000 €.N’hésitez pas à prendre contact avec notre agence (KTARI Aurélie : (Numéro supprimé)) pour toute question sur la propriété.
Sacquenville
TERRAIN ET MAISONVENTE : maison F6 (120 m²) à SacquenvillePROCHE D’ÉVREUX – MAISON 6 PIÈCES NEUVEÀ vendre à deux pas d’Évreux, nous vous présentons cette maison de 6 pièces de 120 m² et de 1 053 m² de terrain à Sacquenville (27930). Son intérieur se divise en quatre chambres, une cuisine sur le séjour, deux salles de bains, un cellier et un garage.Il s’agit d’une maison de 2 niveaux. Elle est neuve.Il y a une école primaire dans le quartier. Côté transports, on trouve la gare Évreux Normandie à moins de 10 minutes en voiture. Les nationales N13 et N154 sont accessibles à moins de 8 km. Il y a deux épiceries à quelques minutes du bien.Elle est proposée à l’achat pour 289 000 €.Contactez Aurélie KTARI ((Numéro supprimé)) pour toute question sur cette maison. Donnez vie à vos projets immobiliers avec Les Maisons Extraco Gravigny.
Sacquenville
TERRAIN ET MAISONGAMME BOISSacquenville : maison de 5 pièces (113 m²) à vendreMAISON 5 PIÈCES NEUVE – PROCHE D’ÉVREUXÀ vendre à quelques kilomètres d’Évreux, nous sommes heureux de vous proposer cette maison de 5 pièces de plain-pied de 113 m² à Sacquenville (27930).Elle propose quatre chambres, une cuisine sur le séjour, deux salles de bains, un cellier et un garage. La maison est neuve.Le terrain de la propriété s’étend sur 1 053 m².Il y a une école primaire dans le quartier. Côté transports, on trouve la gare Évreux Normandie à moins de 10 minutes en voiture. Les nationales N13 et N154 sont accessibles à moins de 8 km. Il y a deux épiceries à proximité de la maison.Elle est proposée à l’achat pour 279 000 €.Contactez Aurélie KTARI ((Numéro supprimé)) pour tout renseignement sur cette maison ou sur les modalités de vente.
Sacquenville
TERRAIN ET MAISONMaison de 6 pièces (159 m²) en vente à SacquenvilleMAISON 6 PIÈCES NEUVE – PROCHE D’ÉVREUXÀ vendre à quelques kilomètres d’Évreux, notre agence Les Maisons Extraco Gravigny est heureuse de vous proposer cette maison de 6 pièces de plain-pied de 159 m² et de 1 053 m² de terrain à Sacquenville (27930).Son intérieur dispose de cinq chambres, d’une cuisine sur le séjour, deux salles de bains, un cellier et un garage. Cette maison est neuve.Une école primaire est implantée dans le quartier. Niveau transports, il y a la gare Évreux Normandie à moins de 10 minutes en voiture. Les nationales N13 et N154 sont accessibles à moins de 8 km. On trouve deux épiceries dans les environs.Elle est proposée à l’achat pour 389 000 €.Contactez notre agence (Aurélie KTARI : (Numéro supprimé)) pour plus d’informations sur cette propriété. Concrétisez vos projets immobiliers avec Les Maisons Extraco Gravigny.
Tourneville
TERRAINVENTE : terrain de 1 300 m² à SacquenvilleIDÉALEMENT SITUÉ -À Sacquenville (27930) à quelques kilomètres d’Évreux, venez découvrir ce terrain de 1 300 m². Ce terrain, orienté à l’ouest, donne sur un jardin. Il se situe dans un environnement calme hors lotissement. Ce terrain est proposé à l’achat pour 52 000 €. Contactez notre agence (GATINAULT Fanny : (Numéro supprimé)) pour plus de renseignements sur ce terrain, sur les démarches à suivre et sur les modalités de vente. Maisons Balency Louviers vous accompagne dans tous vos projets immobiliers et à toutes les étapes de l’achat.Annonce proposée par un Agent Commercial Partenaire.
Le Neubourg
TERRAINSur la commune du NEUBOURG, dans un quartier résidentiel, terrain à bâtir prêt à accueillir votre future maison individuelle
Le Neubourg
TERRAIN ET MAISONMaison F4 (74 m²) à vendre au NeubourgMAISON 4 PIÈCES NEUVE – PROCHE D’ÉVREUXÀ vendre : localisée à deux pas d’Évreux, Les Maisons Extraco Pont-de-l’Arche vous propose cette maison de 4 pièces de plain-pied de 74 m² et de 540 m² de terrain au Neubourg (27110). Son intérieur inclut trois chambres, une cuisine et une salle de bains.Cette maison est neuve.Cinq établissements scolaires sont implantés à moins de 10 minutes à pied. L’autoroute A28 et la nationale N13 sont accessibles à moins de 19 km. On trouve une bibliothèque, un tennis, un bassin de natation, un supermarché, des commerces, des boulangeries, une poissonnerie et quatre boucheries-charcuteries à proximité. Enfin, le marché Place du Chateau anime le quartier chaque mercredi matin.Elle est à vendre pour la somme de 208 400 €.Contactez Peter MORIN ((Numéro supprimé)) pour toute question sur cette maison.
Le Neubourg
TERRAIN ET MAISONVENTE d’une maison de 5 pièces (92 m²) au NeubourgPROCHE D’ÉVREUX – MAISON 5 PIÈCES NEUVEÀ vendre à deux pas d’Évreux, Les Maisons Extraco Pont-de-l’Arche vous présente au Neubourg (27110), cette maison de 5 pièces de plain-pied de 92 m². Son intérieur inclut quatre chambres, une cuisine et une salle de bains.Le terrain de la propriété est de 540 m².La maison est neuve.Cinq établissements scolaires sont implantés à moins de 10 minutes à pied. L’autoroute A28 et la nationale N13 sont accessibles à moins de 19 km. On trouve une bibliothèque, un tennis, un bassin de natation, un supermarché, des commerces, des boulangeries, une poissonnerie et quatre boucheries-charcuteries à proximité de la maison. Enfin, le marché Place du Chateau anime les environs chaque mercredi matin.Son prix de vente est de 226 100 €.Contactez Peter MORIN ((Numéro supprimé)) pour toute question sur cette maison, sur les modalités de vente et sur les démarches à suivre.
L’actualité immobilière à Quittebeuf
27/11/2023
02/11/2023
30/10/2023
20/10/2023
16/10/2023
16/10/2023