Maison à construire à Reuilly (27930)
Images
Description
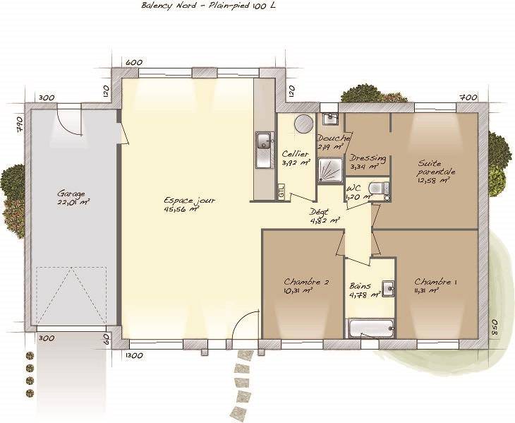
VENTE d'une maison F5 (100 m²) à Reuilly
À vendre : située à quelques kilomètres d'Évreux, ayez le coup de coeur pour cette maison de 5 pièces de plain-pied de 100 m² et de 1 440 m² de terrain bénéficiant d'un emplacement privilégié dans Reuilly (27930).
Son intérieur inclut trois chambres dont une suite parentale, une cuisine ouverte sur l'espace de vie , d'un cellier donnant sur le garage et deux salles de bains.
Cette maison est neuve alliant le confort et la performance énergétique.
Elle est proposée à l'achat pour 271 780 €.
Contactez Fanny GATINAULT ((Numéro supprimé)) pour plus de renseignements sur la propriété, sur les démarches à suivre ou sur les modalités de vente.
Annonce proposée par un Agent Commercial Partenaire.
Logement susceptibles de vous intéresser
Nous vous proposons de découvrir aussi cette sélection de logements situés à moins de 10km de Reuilly et qui seraient susceptibles de vous intéresser.
Évreux
TERRAINTerrain de 404 m² à vendre à GuichainvillePROCHE D’ÉVREUXÀ Guichainville (27930) à deux pas d’Évreux, découvrez ce terrain de 404 m². Des écoles maternelles et élémentaires sont implantées dans le quartier. Niveau transports en commun, il y a la gare Évreux Normandie à moins de 10 minutes en voiture. Les nationales N13 et N154 sont accessibles à moins de 3 km. On trouve un tennis, cinq commerces et une boulangerie à proximité.Il est proposé à l’achat pour 54 000 €. Prenez contact avec Aurélie KTARI (tél : (Numéro supprimé)) pour plus d’informations sur le terrain. Donnez vie à vos projets immobiliers avec Les Maisons Extraco Gravigny.
Gravigny
TERRAINVENTE : terrain de 520 m² au Boulay-MorinPROCHE D’ÉVREUXAu Boulay-Morin (27930) à quelques kilomètres d’Évreux, imaginez la maison de vos rêves sur ce terrain de 520 m². Il y a des écoles primaires dans le quartier. Niveau transports en commun, on trouve la gare Évreux Normandie à moins de 10 minutes en voiture. Les nationales N154 et N13 sont accessibles à moins de 8 km.Son prix de vente est de 60 000 €. Contactez Aurélie KTARI ((Numéro supprimé)) pour plus de renseignements sur le terrain, sur les démarches à suivre ou sur les modalités de vente. Les Maisons Extraco Gravigny vous accompagne dans tous vos projets immobiliers et à toutes les étapes de votre projet.
Miserey
TERRAINTerrain de 500 m² à vendre à MisereyPROCHE D’ÉVREUXÀ 8 km d’Évreux à Miserey (27930), terrain de 500 m². Il est prêt à accueillir votre résidence principale ou secondaire pour toute la famille. Une école primaire est implantée dans le quartier. Côté transports en commun, on trouve la gare Évreux Normandie à moins de 10 minutes en voiture. Les nationales N13 et N154 sont accessibles à moins de 6 km. Il y a un commerce dans les environs.Il est proposé à l’achat pour 60 000 €. Contactez notre agence (KTARI Aurélie : (Numéro supprimé)) pour toute information sur ce terrain, sur les modalités de vente ou sur les démarches à suivre. Les Maisons Extraco Gravigny vous accompagne dans tous vos projets immobiliers et à toutes les étapes de votre projet.
Cierrey
TERRAINVENTE : terrain de 723 m² à CierreyPROCHE D’ÉVREUXEn vente à deux pas d’Évreux à Cierrey (27930), grand terrain. Il est prêt à accueillir la maison de vos rêves pour toute la famille. Il y a une école primaire dans le quartier. Côté transports, on trouve la gare Évreux Normandie à moins de 10 minutes en voiture. Les nationales N13 et N154 sont accessibles à moins de 5 km.Ce terrain est proposé à l’achat pour 66 000 €. Contactez Aurélie KTARI ((Numéro supprimé)) pour tout renseignement sur le terrain ou sur les démarches à suivre. Les Maisons Extraco Gravigny est là pour vous accompagner dans tous vos projets immobiliers.
Champenard
TERRAINChampenard : terrain de 970 m² en venteEMPLACEMENT PRIVILÉGIÉ – PROCHE D’ÉVREUXÀ deux pas d’Évreux à Champenard (27600), grand terrain. Il est orienté plein sud. Dans un quartier attractif, ce terrain bénéficiant d’un emplacement d’exception est proche des commerces et des écoles. Des établissements scolaires du primaire et du secondaire sont implantés à moins de 10 minutes en voiture, tout comme six crèches à moins de 10 minutes à pied. Côté transports en commun, on trouve la gare Gaillon-Aubevoye à moins de 10 minutes en voiture. L’autoroute A13 est accessible à 4 km. Il y a des tennis, deux bibliothèques, deux bassins de natation, des commerces, des boulangeries, des supermarchés, des boucheries-charcuteries et deux épiceries à proximité. Le marché Rue de Gaulle a lieu tous les mardis matin.Ce terrain est à vendre pour la somme de 72 500 €. Contactez notre agence (GRZESKOWIAK Benjamin : (Numéro supprimé)) pour toute information sur le terrain. Les Maisons Extraco Gravigny vous accompagne à toutes les étapes de l’achat et dans tous vos projets immobiliers.
Le Vieil-Évreux
TERRAINVENTE : terrain de 848 m² au Vieil-ÉvreuxIDÉALEMENT SITUÉ – PROCHE D’ÉVREUXÀ vendre à 5 km d’Évreux au Vieil-Évreux (27930), grand terrain. Réalisez-y la maison de vos rêves. Il est exposé au sud. Dans un secteur recherché, le terrain idéalement situé est proche des écoles et des commerces. Il y a une école maternelle dans le quartier. Niveau transports, on trouve la gare Évreux Normandie à moins de 10 minutes en voiture. Les nationales N13 et N154 sont accessibles à moins de 4 km. Il y a un commerce dans les environs.Ce terrain est proposé à l’achat pour 59 500 €. Contactez Benjamin GRZESKOWIAK (tél : (Numéro supprimé)) pour obtenir de plus amples informations sur le terrain. Faites de vos projets immobiliers une réalité avec Les Maisons Extraco Gravigny.
Champenard
TERRAIN ET MAISONVENTE d’une maison de 4 pièces (81 m²) à ChampenardEMPLACEMENT PRIVILÉGIÉ – MAISON 4 PIÈCES NEUVEEn vente à 17 km d’Évreux, bénéficiant d’un emplacement privilégié dans Champenard (27600), Les Maisons Extraco Gravigny vous propose cette maison de 4 pièces de 81 m² et de 970 m² de terrain. Son intérieur inclut deux chambres, une cuisine et une salle de bains.Cette maison comporte 2 niveaux. Elle est neuve.La maison se trouve dans un secteur recherché. Tous les types d’établissements scolaires (de la maternelle au lycée) sont implantés à moins de 10 minutes en voiture, tout comme six crèches à moins de 10 minutes à pied. Côté transports, il y a la gare Gaillon-Aubevoye à moins de 10 minutes en voiture. On trouve un accès à l’autoroute A13 à 4 km. On trouve des tennis, deux bibliothèques, deux bassins de natation, des commerces, des boulangeries, des supermarchés, trois supérettes et une poissonnerie à proximité. Le marché Rue de Gaulle anime les environs tous les mardis matin.Son prix de vente est de 217 736 €.Contactez notre agence (GRZESKOWIAK Benjamin : (Numéro supprimé)) pour obtenir de plus amples renseignements sur la maison, sur les démarches à suivre ou sur les modalités de vente.
Champenard
TERRAIN ET MAISONVENTE : maison T4 (110 m²) à ChampenardEMPLACEMENT PRIVILÉGIÉ – MAISON 4 PIÈCES NEUVEÀ 17 km d’Évreux, nous vous présentons cette maison de 4 pièces de plain-pied de 110 m² à vendre, bénéficiant d’un emplacement privilégié dans Champenard (27600).Elle est composée de deux chambres, d’une cuisine et d’une salle de bains. Cette maison est neuve.Le terrain du bien est de 970 m².Cette maison se trouve dans un secteur convoité. Il y a des écoles du primaire et du secondaire à moins de 10 minutes en voiture, tout comme six structures d’accueil pour les enfants en bas âge à moins de 10 minutes à pied. Niveau transports, on trouve la gare Gaillon-Aubevoye à moins de 10 minutes en voiture. Il y a un accès à l’autoroute A13 à 4 km. Il y a des tennis, deux bibliothèques, deux bassins de natation, des commerces, des boulangeries, des supermarchés, deux épiceries et une poissonnerie à proximité du logement. Ne manquez pas le marché Rue de Gaulle tous les mardis matin.Elle est à vendre pour la somme de 270 390 €.Contactez Benjamin GRZESKOWIAK (tél : (Numéro supprimé)) pour toute question sur la maison.
Champenard
TERRAIN ET MAISONVENTE d’une maison de 5 pièces (113 m²) à ChampenardEMPLACEMENT PRIVILÉGIÉ – MAISON 5 PIÈCES NEUVEÀ vendre : située à quelques kilomètres d’Évreux, bénéficiant d’un emplacement privilégié dans Champenard (27600), nous vous présentons cette maison de 5 pièces de 113 m² et de 970 m² de terrain. Son intérieur propose trois chambres, une cuisine et deux salles de bains.Il s’agit d’une maison de 2 niveaux. Elle est neuve.Cette maison se trouve dans un quartier convoité. Des écoles de tous niveaux sont implantées à moins de 10 minutes en voiture, tout comme six crèches à moins de 10 minutes à pied. Côté transports, il y a la gare Gaillon-Aubevoye à moins de 10 minutes en voiture. On trouve un accès à l’autoroute A13 à 4 km. On trouve des tennis, deux bibliothèques, deux bassins de natation, des commerces, des boulangeries, des supermarchés, deux épiceries et trois supérettes à proximité. Le marché Rue de Gaulle anime le quartier tous les mardis matin.Elle est proposée à l’achat pour 282 888 €.N’hésitez pas à prendre contact avec Benjamin GRZESKOWIAK (tél : (Numéro supprimé)) pour tout renseignement sur la maison ou sur les démarches à suivre.
L’actualité immobilière à Reuilly
27/11/2023
02/11/2023
30/10/2023
20/10/2023
16/10/2023
16/10/2023