Maison à construire à Romilly-sur-Andelle (27610)
Images
Description
Romilly-sur-Andelle : maison F5 (90 m²) en vente
PROCHE DE ROUEN - MAISON 5 PIÈCES NEUVE
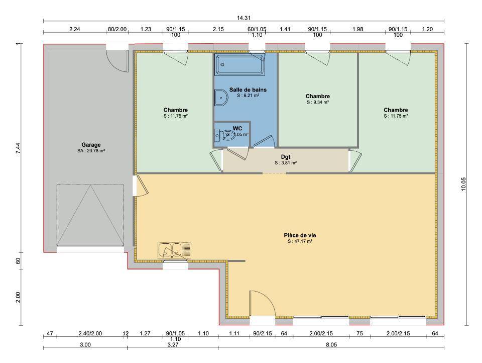
En vente : située à deux pas de Rouen, nous sommes heureux de vous présenter cette maison de 5 pièces de plain-pied de 90 m² et de 610 m² de terrain à Romilly-sur-Andelle (27610). Son intérieur se divise en trois chambres, une cuisine et une salle de bains.
La maison est neuve.
Il y a l'École Primaire Louise Michel-Maurice Genevoix à moins de 10 minutes à pied et deux structures d'accueil pour les enfants en bas âge. Niveau transports, on trouve les gares Val-de-Reuil et Pont-de-l'Arche à moins de 10 minutes en voiture. Des autoroutes et des nationales sont accessibles à moins de 19 km. Il y a une bibliothèque, un commerce, deux boucheries-charcuteries et un bureau de poste à quelques minutes.
Elle est à vendre pour la somme de 204 500 €.
Contactez notre agence (Kévin XAVIER ALVES : (Numéro supprimé)) pour obtenir de plus amples informations sur cette maison.
Annonce proposée par un Agent Commercial Partenaire.
Logement susceptibles de vous intéresser
Nous vous proposons de découvrir aussi cette sélection de logements situés à moins de 10km de Romilly-sur-Andelle et qui seraient susceptibles de vous intéresser.
Bacqueville
TERRAIN ET MAISONMaison F4 (84 m²) en vente à BacquevilleEMPLACEMENT PRIVILÉGIÉ – MAISON 4 PIÈCES NEUVEEn vente à 24 km de Rouen, bénéficiant d’un emplacement privilégié dans Bacqueville (27440), Les Maisons Extraco Les Andelys vous présente cette maison de 4 pièces de plain-pied de 84 m².Son intérieur se divise en trois chambres, une cuisine et une salle de bains. Cette maison est neuve.Le terrain de la propriété s’étend sur 840 m².La maison est située dans un secteur recherché. Une école primaire y est implantée. Les autoroutes A13 et A154 sont accessibles à moins de 16 km. On trouve un commerce à proximité de la maison.Son prix de vente est de 217 300 €.Contactez Carole GOITA ((Numéro supprimé)) pour toute question sur le bien ou sur les démarches à suivre. Donnez vie à vos projets immobiliers avec Extraco Construction Rénovation Les Andelys.
Fresne-le-Plan
TERRAIN ET MAISONMaison idéalement située à FRESNE LE PLAN sur un terrain de 650 m². À proximité, dans le bourg : école, boulangerie, parc pour enfants, bus vert. Cette maison contemporaine bénéficie d’un agencement agréable : – Salon/séjour avec cuisine ouverte de 45 m², avec une grande baie coulissante de 2,20 m en alu, – cellier, – 3 chambres avec placards, – suite parentale avec dressing et douche à l’italienne, – salle de bains avec baignoire et douche, – garage de 15 m². Isolation renforcée avec système de chauffage très économique par pompe à chaleur. Maison certifiée RE20. DPE : A / GSE : B.Venez nous rencontrer et visiter notre showroom : Maisons Extraco – 3 Rue de la Scierie – 76530 LES ESSARTS Personnalisée sur les secteurs de votre choix. Étude gratuite auprès de votre conseiller : Alexis RINGOT ((Numéro supprimé) / a.ringot at extraco.fr). (Premier échange par SMS possible)
Fresne-le-Plan
TERRAIN ET MAISONMaison idéalement située à FRESNE LE PLAN sur un terrain de 650 m². À proximité, dans le bourg : école, boulangerie, parc pour enfants, bus vert. Cette maison contemporaine bénéficie d’un agencement agréable : – Salon/séjour avec cuisine ouverte de 45 m², avec une grande baie coulissante de 2,20 m en alu, – cellier, – 3 chambres avec placards, – suite parentale avec dressing et douche à l’italienne, – salle de bains avec baignoire et douche, – garage de 15 m². Isolation renforcée avec système de chauffage très économique par pompe à chaleur. Maison certifiée RE20. DPE : A / GSE : B.Venez nous rencontrer et visiter notre showroom : Maisons Extraco – 3 Rue de la Scierie – 76530 LES ESSARTS Personnalisée sur les secteurs de votre choix. Étude gratuite auprès de votre conseiller : Alexis RINGOT ((Numéro supprimé) / a.ringot at extraco.fr). (Premier échange par SMS possible)
Fresne-le-Plan
TERRAINÀ FRESNE LE PLAN, terrain constructible à acheter.Sur la commune de FRESNE LE PLAN, opportunité à saisir avec ce terrain. Vous pourrez exploiter une surface de 600 m2 pour créer votre future maison. N’hésitez pas à contacter Alexis RINGOT ((Numéro supprimé)) des Maisons Extraco Les Essarts si vous avez des questions. Premiers échanges par SMS ou mail possible.RINGOT Alexis(Numéro supprimé)a.ringot at extraco.fr
Heuqueville
TERRAIN ET MAISONMaison F6 (114 m²) en vente à HeuquevilleIDÉALEMENT SITUÉE – MAISON 6 PIÈCES NEUVEEn vente : à 24 km de Rouen, découvrez cette maison de 6 pièces de 114 m² idéalement située dans Heuqueville (27700).Cette maison compte 2 niveaux. Elle est composée de cinq chambres, d’une cuisine et de deux salles de bains. La maison est neuve.Le terrain de la propriété est de 800 m².Cette maison est située dans un secteur prisé. On y trouve une école primaire. Côté transports, on trouve la gare Val-de-Reuil à moins de 10 minutes en voiture. Les autoroutes A13 et A154 et la nationale N154 sont accessibles à moins de 18 km.Elle est à vendre pour la somme de 221 800 €.Prenez contact avec notre agence (Gilles BOREAU : (Numéro supprimé)) pour toute question sur la propriété. Donnez vie à vos projets immobiliers avec Les Maisons Extraco Les Andelys.
Heuqueville
TERRAINTerrain de 800 m² en vente à HeuquevilleIDÉALEMENT SITUÉ Eligible au prêt à taux zéroÀ Heuqueville (27700) à vendre à deux pas de Rouen, donnez vie à votre résidence principale ou secondaire sur ce terrain de 800 m². Une école primaire est implantée dans le quartier. Côté transports, il y a la gare Val-de-Reuil à moins de 10 minutes en voiture. Les autoroutes A13 et A154 et la nationale N154 sont accessibles à moins de 18 km.Il est proposé à l’achat pour 43 000 €. N’hésitez pas à prendre contact avec Gilles BOREAU ((Numéro supprimé)) pour plus de renseignements sur le terrain, sur les démarches à suivre ou sur les modalités de vente.
Fresne-le-Plan
TERRAIN ET MAISONMaison idéalement située à FRESNE LE PLAN sur un terrain de 650 m². À proximité, dans le bourg : école, boulangerie, parc pour enfants, bus vert. Cette maison contemporaine bénéficie d’un agencement agréable : – Salon/séjour avec cuisine ouverte de 45 m², avec une grande baie coulissante de 2,20 m en alu, – cellier, – 3 chambres avec placards, – suite parentale avec dressing et douche à l’italienne, – salle de bains avec baignoire et douche, – garage de 15 m². Isolation renforcée avec système de chauffage très économique par pompe à chaleur. Maison certifiée RE20. DPE : A / GSE : B.Venez nous rencontrer et visiter notre showroom : Maisons Extraco – 3 Rue de la Scierie – 76530 LES ESSARTS Personnalisée sur les secteurs de votre choix. Étude gratuite auprès de votre conseiller : Alexis RINGOT ((Numéro supprimé) / a.ringot at extraco.fr). (Premier échange par SMS possible)
Bacqueville
TERRAIN ET MAISONMaison de 4 pièces (135 m²) à vendre à BacquevilleEMPLACEMENT PRIVILÉGIÉ – MAISON 4 PIÈCES NEUVEÀ vendre : à deux pas de Rouen, nous vous proposons cette maison de 4 pièces de 135 m² et de 840 m² de terrain bénéficiant d’un emplacement privilégié dans Bacqueville (27440).Cette maison comporte 2 niveaux. Elle est composée de cinq chambres, d’une cuisine et de deux salles de bains. La maison est neuve.Cette maison se trouve dans un quartier recherché. On y trouve une école primaire. Les autoroutes A13 et A154 sont accessibles à moins de 16 km. Il y a un commerce à proximité du logement.Elle est à vendre pour la somme de 292 300 €.Contactez Carole GOITA ((Numéro supprimé)) pour plus de renseignements sur la maison ou sur les modalités de vente.
Bacqueville
TERRAINVENTE : terrain de 840 m² à BacquevilleEMPLACEMENT PRIVILÉGIÉ – PROCHE DE ROUENÀ vendre à 24 km de Rouen à Bacqueville (27440), grand terrain. Il donne sur un jardin. Dans un quartier recherché, le terrain bénéficiant d’un emplacement privilégié est proche des commerces et des écoles. Une école primaire est implantée dans le quartier. Les autoroutes A13 et A154 sont accessibles à moins de 16 km. Il y a un commerce dans les environs.Ce terrain est à vendre pour la somme de 53 000 €. Contactez notre agence (Carole GOITA : (Numéro supprimé)) pour toute information sur le terrain.
L’actualité immobilière à Romilly-sur-Andelle
27/11/2023
02/11/2023
30/10/2023
20/10/2023
16/10/2023
16/10/2023