Maison à construire à Saint-Georges-du-Vièvre (27450)
Images
Description
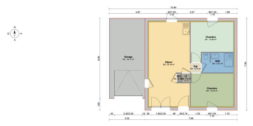
Saint-Georges-du-Vièvre : maison F4 (49 m²) à vendre
IDÉALEMENT SITUÉE - MAISON 4 PIÈCES NEUVE
En vente : à 28 km de la Manche, venez découvrir, idéalement située dans Saint-Georges-du-Vièvre (27450), cette maison de 4 pièces de plain-pied de 49 m² et de 695 m² de terrain.
Elle compte deux chambres, une cuisine et une salle de bains. Cette maison est neuve.
La maison se situe dans un quartier attractif. On y trouve une école primaire. Niveau transports en commun, il y a la gare Glos-Montfort à moins de 10 minutes en voiture. Les autoroutes A28, A13 et A131 sont accessibles à moins de 17 km. On trouve un tennis, un bassin de natation, une boulangerie, deux commerces, une boucherie-charcuterie et une épicerie dans les environs.
Elle est à vendre pour la somme de 146 700 €.
Contactez notre agence (Aurélien LEOVANT : (Numéro supprimé)) pour tout renseignement sur le bien ou sur les démarches à suivre. Maisons Balency Boos vous accompagne dans tous vos projets immobiliers et dans toutes vos démarches.
Annonce proposée par un Agent Commercial Partenaire.
Logement susceptibles de vous intéresser
Nous vous proposons de découvrir aussi cette sélection de logements situés à moins de 10km de Saint-Georges-du-Vièvre et qui seraient susceptibles de vous intéresser.
Saint-Georges-du-Vièvre
TERRAINVENTE : terrain de 1 874 m² à Saint-Georges-du-VièvreIDÉALEMENT SITUÉÀ 28 km de la Manche à Saint-Georges-du-Vièvre (27450), grand terrain. Il est prêt à accueillir votre résidence principale ou secondaire pour toute la famille. Il se situe dans un secteur prisé. On y trouve une école primaire. Niveau transports en commun, il y a la gare Glos-Montfort à moins de 10 minutes en voiture. Les autoroutes A28, A13 et A131 sont accessibles à moins de 17 km. On trouve un tennis, un bassin de natation, une boulangerie, deux commerces, une boucherie-charcuterie et une épicerie à quelques minutes à peine.Ce terrain est proposé à l’achat pour 66 000 €. N’hésitez pas à prendre contact avec Juliette PETIT ((Numéro supprimé)) pour toute information sur le terrain, sur les démarches à suivre et sur les modalités de vente.
Saint-Georges-du-Vièvre
TERRAIN ET MAISONSaint-Georges-du-Vièvre : maison de 5 pièces (113 m²) en venteIDÉALEMENT SITUÉE – MAISON 5 PIÈCES NEUVEEn vente : située à 28 km de la Manche, Les Maisons Extraco Pont-Audemer vous présente cette maison de 5 pièces de plain-pied de 113 m² idéalement située dans Saint-Georges-du-Vièvre (27450).Son intérieur dispose de quatre chambres, d’une cuisine et de deux salles de bains. Cette maison est neuve.Le terrain de la propriété s’étend sur 1 874 m².La propriété se situe dans un quartier recherché. On y trouve une école primaire. Niveau transports en commun, il y a la gare Glos-Montfort à moins de 10 minutes en voiture. Les autoroutes A28, A13 et A131 sont accessibles à moins de 17 km. On trouve un tennis, un bassin de natation, une boulangerie, deux commerces, une boucherie-charcuterie et une épicerie à proximité.Elle est à vendre pour la somme de 289 000 €.Prenez contact avec Juliette PETIT (tél : (Numéro supprimé)) pour plus de renseignements sur la maison et sur les modalités de vente.
Saint-Georges-du-Vièvre
TERRAIN ET MAISONSaint-Georges-du-Vièvre : maison F4 (84 m²) en venteIDÉALEMENT SITUÉE – MAISON 4 PIÈCES NEUVEEn vente : à 28 km de la Manche, notre agence Les Maisons Extraco Pont-Audemer est ravie de vous proposer, idéalement située dans Saint-Georges-du-Vièvre (27450), cette maison de 4 pièces de plain-pied de 84 m² et de 1 874 m² de terrain. Elle est composée de trois chambres, d’une cuisine et d’une salle de bains.La maison est neuve.Cette maison se trouve dans un secteur recherché. On y trouve une école primaire. Côté transports en commun, il y a la gare Glos-Montfort à moins de 10 minutes en voiture. Les autoroutes A28, A13 et A131 sont accessibles à moins de 17 km. On trouve un tennis, un bassin de natation, une boulangerie, deux commerces, une boucherie-charcuterie et une épicerie à proximité du logement.Son prix de vente est de 221 000 €.Prenez contact avec Juliette PETIT (tél : (Numéro supprimé)) pour plus de renseignements sur le bien ou sur les modalités de vente. Faites de vos projets immobiliers une réalité avec Les Maisons Extraco Pont-Audemer.
Saint-Georges-du-Vièvre
TERRAIN ET MAISONSaint-Georges-du-Vièvre : maison de 4 pièces (83 m²) en venteIDÉALEMENT SITUÉE – MAISON 4 PIÈCES NEUVEEn vente : à 28 km de la Manche, nous sommes heureux de vous proposer cette maison de 4 pièces de plain-pied de 83 m² et de 1 874 m² de terrain idéalement située dans Saint-Georges-du-Vièvre (27450). Elle est composée de trois chambres, d’une cuisine et d’une salle de bains.La maison est neuve.La maison se situe dans un quartier attractif. On y trouve une école primaire. Niveau transports en commun, on trouve la gare Glos-Montfort à moins de 10 minutes en voiture. Les autoroutes A28, A13 et A131 sont accessibles à moins de 17 km. Il y a un tennis, un bassin de natation, une boulangerie, deux commerces, une épicerie et une boucherie-charcuterie dans les environs.Son prix de vente est de 241 000 €.Contactez Juliette PETIT ((Numéro supprimé)) pour plus d’informations sur la propriété ou sur les modalités de vente. Faites de vos projets immobiliers une réalité avec Les Maisons Extraco Pont-Audemer.
Campigny
TERRAINVENTE d’un terrain de 2 397 m² à CampignyVUE DÉGAGÉEÀ vendre à 20 km de la Manche à Campigny (27500), grand terrain. Il profite d’une vue dégagée. On trouve une école primaire dans le quartier. Les autoroutes A13 et A131 sont accessibles à moins de 10 km.Il est à vendre pour la somme de 50 000 €. N’hésitez pas à prendre contact avec notre agence (Juliette PETIT : (Numéro supprimé)) pour tout renseignement sur ce terrain. Les Maisons Extraco Pont-Audemer vous accompagne dans tous vos projets immobiliers et dans toutes vos démarches.
Campigny
TERRAIN ET MAISONMaison T5 (95 m²) en vente à CampignyMAISON 5 PIÈCES NEUVEEn vente : située à 20 km de la Manche, à Campigny (27500), Les Maisons Extraco Pont-Audemer vous présente cette maison de 5 pièces de plain-pied de 95 m².Son intérieur offre quatre chambres, une cuisine et une salle de bains. Cette maison est neuve.Le terrain de la propriété s’étend sur 2 397 m².Une école primaire est implantée dans le quartier. Les autoroutes A13 et A131 sont accessibles à moins de 10 km.Son prix de vente est de 209 000 €.Contactez notre agence (Juliette PETIT : (Numéro supprimé)) pour tout renseignement sur la propriété.
Campigny
TERRAIN ET MAISONVENTE d’une maison de 5 pièces (86 m²) à CampignyMAISON 5 PIÈCES NEUVE – VUE DÉGAGÉEEn vente : située à 20 km de la Manche, nous sommes heureux de vous présenter cette maison de 5 pièces de 86 m² avec vue dégagée à Campigny (27500). Son intérieur se divise en trois chambres, une cuisine et une salle de bains.Le terrain de la propriété s’étend sur 2 397 m².C’est une maison de 2 niveaux. Elle est neuve.Il y a une école primaire dans le quartier. Les autoroutes A13 et A131 sont accessibles à moins de 10 km.Elle est à vendre pour la somme de 207 000 €.Contactez Juliette PETIT (tél : (Numéro supprimé)) pour obtenir de plus amples renseignements sur cette maison, sur les modalités de vente ou sur les démarches à suivre. Les Maisons Extraco Pont-Audemer est là pour vous accompagner dans tous vos projets immobiliers.
Campigny
TERRAIN ET MAISONCampigny : maison de 3 pièces (99 m²) en venteMAISON 3 PIÈCES NEUVEÀ 20 km de la Manche, à vendre à Campigny (27500), Les Maisons Extraco Pont-Audemer vous présente cette maison de 3 pièces de plain-pied de 99 m². Conçue de plain-pied, elle inclut trois chambres, une cuisine et deux salles de bains.Le terrain de la maison s’étend sur 2 397 m².La maison est neuve.Une école primaire est implantée dans le quartier. Les autoroutes A13 et A131 sont accessibles à moins de 10 km.Elle est à vendre pour la somme de 252 000 €.Contactez notre agence (PETIT Juliette : (Numéro supprimé)) pour plus d’informations sur ce bien. Les Maisons Extraco Pont-Audemer est là pour vous accompagner dans tous vos projets immobiliers.
La Noë-Poulain
TERRAINVENTE d’un terrain de 3 725 m² à La Noë-PoulainEMPLACEMENT PRIVILÉGIÉEn vente à 23 km de la Manche à La Noë-Poulain (27560), grand terrain. Les autoroutes A13, A131 et A28 sont accessibles à moins de 15 km. Il y a un commerce dans les environs.Il est à vendre pour la somme de 42 000 €. Contactez Juliette PETIT ((Numéro supprimé)) pour tout renseignement sur le terrain. Les Maisons Extraco Pont-Audemer est là pour vous accompagner à toutes les étapes de votre projet.
L’actualité immobilière à Saint-Georges-du-Vièvre
27/11/2023
02/11/2023
30/10/2023
20/10/2023
16/10/2023
16/10/2023