Maison à construire à Saint-Georges-du-Vièvre (27450)
Images
Description
VENTE : maison F6 (115 m²) à Saint-Georges-du-Vièvre
IDÉALEMENT SITUÉE - MAISON 6 PIÈCES NEUVE
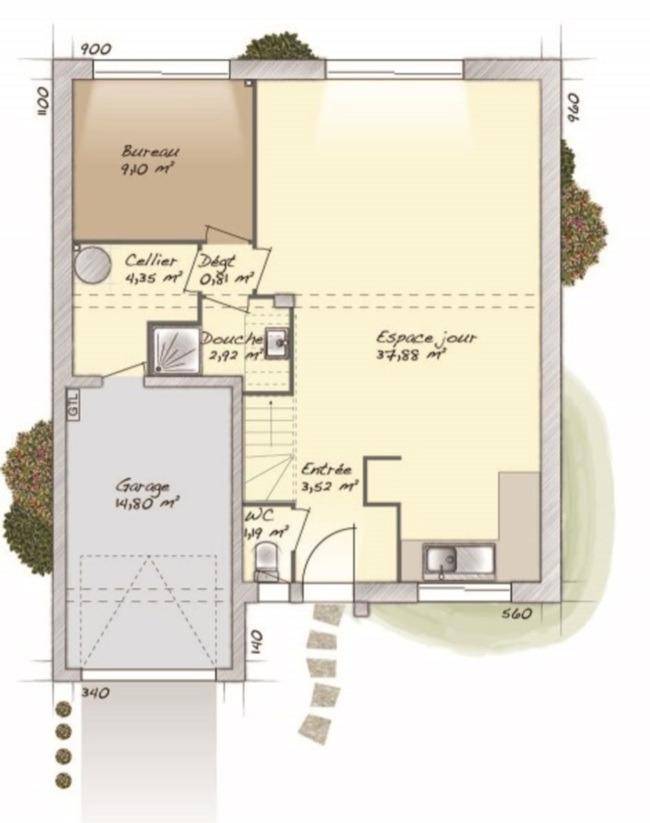
À vendre : localisée à 28 km de la Manche, Maisons Balency Boos vous propose, idéalement située dans Saint-Georges-du-Vièvre (27450), cette maison de 6 pièces de 115 m².
Il s'agit d'une maison de 2 niveaux. Elle est composée de quatre chambres, d'une cuisine et de deux salles de bains. La maison est neuve.
Le terrain du bien s'étend sur 695 m².
Cette maison se trouve dans un secteur prisé. On y trouve une école primaire. Niveau transports, il y a la gare Glos-Montfort à moins de 10 minutes en voiture. Les autoroutes A28, A13 et A131 sont accessibles à moins de 17 km. On trouve un tennis, un bassin de natation, une boulangerie, deux commerces, une boucherie-charcuterie et une épicerie à proximité.
Son prix de vente est de 233 400 €.
Contactez notre agence (LEOVANT Aurélien : (Numéro supprimé)) pour toute question sur le bien, sur les modalités de vente et sur les démarches à suivre.
Annonce proposée par un Agent Commercial Partenaire.
Logement susceptibles de vous intéresser
Nous vous proposons de découvrir aussi cette sélection de logements situés à moins de 10km de Saint-Georges-du-Vièvre et qui seraient susceptibles de vous intéresser.
Saint-Georges-du-Vièvre
TERRAINVENTE : terrain de 1 874 m² à Saint-Georges-du-VièvreIDÉALEMENT SITUÉÀ 28 km de la Manche à Saint-Georges-du-Vièvre (27450), grand terrain. Il est prêt à accueillir votre résidence principale ou secondaire pour toute la famille. Il se situe dans un secteur prisé. On y trouve une école primaire. Niveau transports en commun, il y a la gare Glos-Montfort à moins de 10 minutes en voiture. Les autoroutes A28, A13 et A131 sont accessibles à moins de 17 km. On trouve un tennis, un bassin de natation, une boulangerie, deux commerces, une boucherie-charcuterie et une épicerie à quelques minutes à peine.Ce terrain est proposé à l’achat pour 66 000 €. N’hésitez pas à prendre contact avec Juliette PETIT ((Numéro supprimé)) pour toute information sur le terrain, sur les démarches à suivre et sur les modalités de vente.
Saint-Georges-du-Vièvre
TERRAIN ET MAISONSaint-Georges-du-Vièvre : maison de 5 pièces (113 m²) en venteIDÉALEMENT SITUÉE – MAISON 5 PIÈCES NEUVEEn vente : située à 28 km de la Manche, Les Maisons Extraco Pont-Audemer vous présente cette maison de 5 pièces de plain-pied de 113 m² idéalement située dans Saint-Georges-du-Vièvre (27450).Son intérieur dispose de quatre chambres, d’une cuisine et de deux salles de bains. Cette maison est neuve.Le terrain de la propriété s’étend sur 1 874 m².La propriété se situe dans un quartier recherché. On y trouve une école primaire. Niveau transports en commun, il y a la gare Glos-Montfort à moins de 10 minutes en voiture. Les autoroutes A28, A13 et A131 sont accessibles à moins de 17 km. On trouve un tennis, un bassin de natation, une boulangerie, deux commerces, une boucherie-charcuterie et une épicerie à proximité.Elle est à vendre pour la somme de 289 000 €.Prenez contact avec Juliette PETIT (tél : (Numéro supprimé)) pour plus de renseignements sur la maison et sur les modalités de vente.
Saint-Georges-du-Vièvre
TERRAIN ET MAISONSaint-Georges-du-Vièvre : maison F4 (84 m²) en venteIDÉALEMENT SITUÉE – MAISON 4 PIÈCES NEUVEEn vente : à 28 km de la Manche, notre agence Les Maisons Extraco Pont-Audemer est ravie de vous proposer, idéalement située dans Saint-Georges-du-Vièvre (27450), cette maison de 4 pièces de plain-pied de 84 m² et de 1 874 m² de terrain. Elle est composée de trois chambres, d’une cuisine et d’une salle de bains.La maison est neuve.Cette maison se trouve dans un secteur recherché. On y trouve une école primaire. Côté transports en commun, il y a la gare Glos-Montfort à moins de 10 minutes en voiture. Les autoroutes A28, A13 et A131 sont accessibles à moins de 17 km. On trouve un tennis, un bassin de natation, une boulangerie, deux commerces, une boucherie-charcuterie et une épicerie à proximité du logement.Son prix de vente est de 221 000 €.Prenez contact avec Juliette PETIT (tél : (Numéro supprimé)) pour plus de renseignements sur le bien ou sur les modalités de vente. Faites de vos projets immobiliers une réalité avec Les Maisons Extraco Pont-Audemer.
Saint-Georges-du-Vièvre
TERRAIN ET MAISONSaint-Georges-du-Vièvre : maison de 4 pièces (83 m²) en venteIDÉALEMENT SITUÉE – MAISON 4 PIÈCES NEUVEEn vente : à 28 km de la Manche, nous sommes heureux de vous proposer cette maison de 4 pièces de plain-pied de 83 m² et de 1 874 m² de terrain idéalement située dans Saint-Georges-du-Vièvre (27450). Elle est composée de trois chambres, d’une cuisine et d’une salle de bains.La maison est neuve.La maison se situe dans un quartier attractif. On y trouve une école primaire. Niveau transports en commun, on trouve la gare Glos-Montfort à moins de 10 minutes en voiture. Les autoroutes A28, A13 et A131 sont accessibles à moins de 17 km. Il y a un tennis, un bassin de natation, une boulangerie, deux commerces, une épicerie et une boucherie-charcuterie dans les environs.Son prix de vente est de 241 000 €.Contactez Juliette PETIT ((Numéro supprimé)) pour plus d’informations sur la propriété ou sur les modalités de vente. Faites de vos projets immobiliers une réalité avec Les Maisons Extraco Pont-Audemer.
Campigny
TERRAINVENTE d’un terrain de 2 397 m² à CampignyVUE DÉGAGÉEÀ vendre à 20 km de la Manche à Campigny (27500), grand terrain. Il profite d’une vue dégagée. On trouve une école primaire dans le quartier. Les autoroutes A13 et A131 sont accessibles à moins de 10 km.Il est à vendre pour la somme de 50 000 €. N’hésitez pas à prendre contact avec notre agence (Juliette PETIT : (Numéro supprimé)) pour tout renseignement sur ce terrain. Les Maisons Extraco Pont-Audemer vous accompagne dans tous vos projets immobiliers et dans toutes vos démarches.
Campigny
TERRAIN ET MAISONMaison T5 (95 m²) en vente à CampignyMAISON 5 PIÈCES NEUVEEn vente : située à 20 km de la Manche, à Campigny (27500), Les Maisons Extraco Pont-Audemer vous présente cette maison de 5 pièces de plain-pied de 95 m².Son intérieur offre quatre chambres, une cuisine et une salle de bains. Cette maison est neuve.Le terrain de la propriété s’étend sur 2 397 m².Une école primaire est implantée dans le quartier. Les autoroutes A13 et A131 sont accessibles à moins de 10 km.Son prix de vente est de 209 000 €.Contactez notre agence (Juliette PETIT : (Numéro supprimé)) pour tout renseignement sur la propriété.
Campigny
TERRAIN ET MAISONVENTE d’une maison de 5 pièces (86 m²) à CampignyMAISON 5 PIÈCES NEUVE – VUE DÉGAGÉEEn vente : située à 20 km de la Manche, nous sommes heureux de vous présenter cette maison de 5 pièces de 86 m² avec vue dégagée à Campigny (27500). Son intérieur se divise en trois chambres, une cuisine et une salle de bains.Le terrain de la propriété s’étend sur 2 397 m².C’est une maison de 2 niveaux. Elle est neuve.Il y a une école primaire dans le quartier. Les autoroutes A13 et A131 sont accessibles à moins de 10 km.Elle est à vendre pour la somme de 207 000 €.Contactez Juliette PETIT (tél : (Numéro supprimé)) pour obtenir de plus amples renseignements sur cette maison, sur les modalités de vente ou sur les démarches à suivre. Les Maisons Extraco Pont-Audemer est là pour vous accompagner dans tous vos projets immobiliers.
Campigny
TERRAIN ET MAISONCampigny : maison de 3 pièces (99 m²) en venteMAISON 3 PIÈCES NEUVEÀ 20 km de la Manche, à vendre à Campigny (27500), Les Maisons Extraco Pont-Audemer vous présente cette maison de 3 pièces de plain-pied de 99 m². Conçue de plain-pied, elle inclut trois chambres, une cuisine et deux salles de bains.Le terrain de la maison s’étend sur 2 397 m².La maison est neuve.Une école primaire est implantée dans le quartier. Les autoroutes A13 et A131 sont accessibles à moins de 10 km.Elle est à vendre pour la somme de 252 000 €.Contactez notre agence (PETIT Juliette : (Numéro supprimé)) pour plus d’informations sur ce bien. Les Maisons Extraco Pont-Audemer est là pour vous accompagner dans tous vos projets immobiliers.
La Noë-Poulain
TERRAINVENTE d’un terrain de 3 725 m² à La Noë-PoulainEMPLACEMENT PRIVILÉGIÉEn vente à 23 km de la Manche à La Noë-Poulain (27560), grand terrain. Les autoroutes A13, A131 et A28 sont accessibles à moins de 15 km. Il y a un commerce dans les environs.Il est à vendre pour la somme de 42 000 €. Contactez Juliette PETIT ((Numéro supprimé)) pour tout renseignement sur le terrain. Les Maisons Extraco Pont-Audemer est là pour vous accompagner à toutes les étapes de votre projet.
L’actualité immobilière à Saint-Georges-du-Vièvre
27/11/2023
02/11/2023
30/10/2023
20/10/2023
16/10/2023
16/10/2023