Maison à construire à Saint-Georges-Motel (27710)
Images
Description
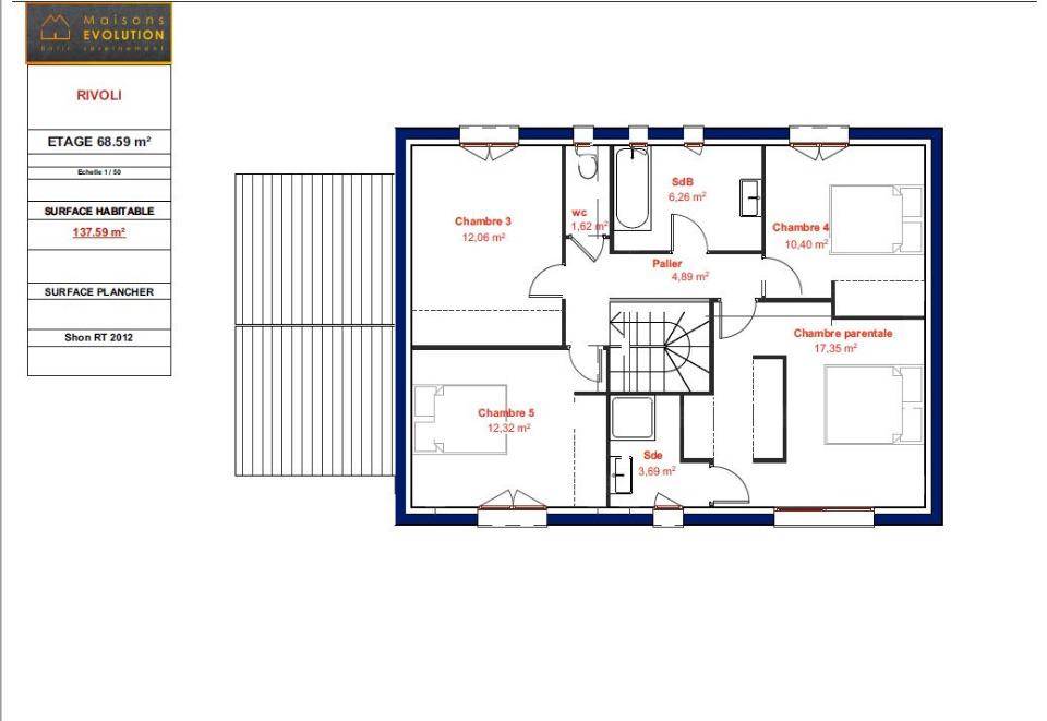
Maisons Evolution vous présente le modèle Rivoli d'une surface habitable de 137,59 m².
Retrouvez au rez-de-chaussée une entrée, un séjour/cuisine de plus de 43 m², un cellier, des WC indépendants, un bureau pouvant également servir de chambre sans oublier le garage attenant au cellier.
A l'étage, cette maison vous offre 3 chambres, une salle de bain, des toilettes indépendantes ainsi qu'une suite parentale ayant dressing et salle d'eau.
Annonce proposée par un Agent Commercial Partenaire.
Logement susceptibles de vous intéresser
Nous vous proposons de découvrir aussi cette sélection de logements situés à moins de 10km de Saint-Georges-Motel et qui seraient susceptibles de vous intéresser.
Anet
TERRAINTerrain de 623 m² à vendre à AnetIDÉALEMENT SITUÉ – PROCHE D’ÉVREUXEn vente à 29 km d’Évreux à Anet (28260), grand terrain. Il est prêt à accueillir votre résidence principale ou secondaire pour toute la famille. Dans un secteur prisé, ce terrain idéalement situé est proche des commerces et des écoles. Tous les types d’établissements scolaires (maternelle, élémentaire et secondaire) sont implantés à moins de 10 minutes à pied. Niveau transports, on trouve la gare Bueil à moins de 10 minutes en voiture. L’autoroute A13 et les nationales N12, N154 et N13 sont accessibles à moins de 20 km. Il y a une bibliothèque, des commerces, deux boulangeries, une boucherie-charcuterie, une supérette et un bureau de poste dans les environs.Ce terrain est proposé à l’achat pour 99 000 €. N’hésitez pas à prendre contact avec Benjamin GRZESKOWIAK (tél : (Numéro supprimé)) pour plus d’informations sur le terrain. Donnez vie à vos projets immobiliers avec Les Maisons Extraco Gravigny.
Mesnil-sur-l'Estrée
TERRAINTerrain de 730 m² à vendre à Mesnil-sur-l’EstréePROCHE D’ÉVREUXGrand terrain à deux pas du Transilien N (gare de Dreux, 60 min de Paris). De 730 m², ce terrain se situe dans Mesnil-sur-l’Estrée (27650). Le terrain est proche des écoles et des commerces. Une école primaire est implantée dans le quartier. Niveau transports en commun, il y a les gares Dreux et Nonancourt à moins de 10 minutes en voiture. Les nationales N12 et N154 sont accessibles à moins de 8 km et Évreux se situe à 29 km. On trouve une boulangerie et deux supérettes à quelques minutes.Ce terrain est proposé à l’achat pour 66 000 €. Prenez contact avec notre agence (Benjamin GRZESKOWIAK : (Numéro supprimé)) pour obtenir de plus amples renseignements sur le terrain ou sur les démarches à suivre. Les Maisons Extraco Gravigny vous accompagne à toutes les étapes de l’achat et dans tous vos projets immobiliers.
Anet
TERRAIN ET MAISONAnet : maison T4 (112 m²) à vendreIDÉALEMENT SITUÉE – MAISON 4 PIÈCES NEUVEEn vente à quelques kilomètres d’Évreux, notre agence Les Maisons Extraco Gravigny est heureuse de vous proposer cette maison de 4 pièces de 112 m² et de 623 m² de terrain idéalement située dans Anet (28260). Son intérieur offre quatre chambres, une cuisine et deux salles de bains.Il s’agit d’une maison de 2 niveaux. Elle est neuve.La maison se trouve dans un quartier recherché. Il y a des établissements scolaires de tous niveaux à moins de 10 minutes à pied. Côté transports en commun, on trouve la gare Bueil à moins de 10 minutes en voiture. L’autoroute A13 et les nationales N12, N154 et N13 sont accessibles à moins de 20 km. Il y a une bibliothèque, des commerces, deux boulangeries, un bureau de poste, une épicerie et une boucherie-charcuterie dans les environs.Elle est à vendre pour la somme de 310 027 €.Prenez contact avec notre constructeur (GRZESKOWIAK Benjamin : (Numéro supprimé)) pour tout renseignement sur la maison. Faites de vos projets immobiliers une réalité avec Les Maisons Extraco Gravigny.
Anet
TERRAIN ET MAISONAnet : maison F6 (118 m²) en venteIDÉALEMENT SITUÉE – MAISON 6 PIÈCES NEUVEÀ 29 km d’Évreux, nous sommes ravis de vous proposer en vente, idéalement située dans Anet (28260), cette maison de 6 pièces de 118 m². Son intérieur se divise en quatre chambres, une cuisine et deux salles de bains.Le terrain de cette maison s’étend sur 623 m².Cette maison comporte 2 niveaux. Elle est neuve.La maison est située dans un quartier prisé. On trouve tous les types d’établissements scolaires à moins de 10 minutes à pied. Niveau transports, il y a la gare Bueil à moins de 10 minutes en voiture. L’autoroute A13 et les nationales N12, N154 et N13 sont accessibles à moins de 20 km. On trouve une bibliothèque, des commerces, deux boulangeries, une supérette, un bureau de poste et une boucherie-charcuterie à proximité du bien.Elle est proposée à l’achat pour 351 520 €.Prenez contact avec notre agence (GRZESKOWIAK Benjamin : (Numéro supprimé)) pour tout renseignement sur la propriété.
Anet
TERRAIN ET MAISONAnet : maison F6 (160 m²) à vendreIDÉALEMENT SITUÉE – MAISON 6 PIÈCES NEUVEÀ deux pas d’Évreux, Les Maisons Extraco Gravigny vous présente à vendre, idéalement située dans Anet (28260), cette maison de 6 pièces de 160 m² et de 623 m² de terrain.Cette maison compte 2 niveaux. Son intérieur compte quatre chambres, une cuisine et deux salles de bains. La maison est neuve.Cette maison se trouve dans un quartier recherché. Il y a tous les types d’établissements scolaires (de la maternelle au lycée) à moins de 10 minutes à pied. Côté transports, on trouve la gare Bueil à moins de 10 minutes en voiture. L’autoroute A13 et les nationales N12, N154 et N13 sont accessibles à moins de 20 km. Il y a une bibliothèque, des commerces, deux boulangeries, une supérette, un bureau de poste et une épicerie dans les environs.Elle est à vendre pour la somme de 401 806 €.N’hésitez pas à prendre contact avec notre agence (Benjamin GRZESKOWIAK : (Numéro supprimé)) pour toute information sur la maison ou sur les modalités de vente. Les Maisons Extraco Gravigny vous accompagne dans tous vos projets immobiliers et dans toutes vos démarches.
Mesnil-sur-l'Estrée
TERRAIN ET MAISONMesnil-sur-l’Estrée : maison de 4 pièces (85 m²) en ventePROCHE D’ÉVREUX – MAISON 4 PIÈCES NEUVEÀ quelques minutes de la gare de Dreux (Paris à 60 min avec le Transilien N), votre agence Les Maisons Extraco Gravigny est ravie de vous proposer en vente à Mesnil-sur-l’Estrée (27650), cette maison de 4 pièces de 85 m² et de 730 m² de terrain. Son intérieur comporte trois chambres, une cuisine et une salle de bains.Cette maison compte 2 niveaux. Elle est neuve.Une école primaire est implantée dans le quartier. Niveau transports en commun, il y a les gares Dreux et Nonancourt à moins de 10 minutes en voiture. Les nationales N12 et N154 sont accessibles à moins de 8 km et Évreux se situe à 29 km. On trouve une boulangerie et deux supérettes à quelques minutes.Son prix de vente est de 210 500 €.N’hésitez pas à prendre contact avec Benjamin GRZESKOWIAK (tél : (Numéro supprimé)) pour obtenir de plus amples renseignements sur la maison, sur les modalités de vente ou sur les démarches à suivre. Les Maisons Extraco Gravigny vous accompagne à toutes les étapes de votre projet et dans tous vos projets immobiliers.
Mesnil-sur-l'Estrée
TERRAIN ET MAISONMesnil-sur-l’Estrée : maison F4 (110 m²) en venteMAISON 4 PIÈCES NEUVE – PROCHE D’ÉVREUXEn vente : à deux pas du Transilien N (gare de Dreux, 60 min de Paris), nous sommes ravis de vous présenter cette maison de 4 pièces de plain-pied de 110 m² à Mesnil-sur-l’Estrée (27650). Son intérieur est composé de deux chambres, d’une cuisine et d’une salle de bains.Le terrain de la propriété est de 730 m².Cette maison est neuve.On trouve une école primaire dans le quartier. Côté transports, il y a deux gares (Dreux et Nonancourt) à moins de 10 minutes en voiture. Les nationales N12 et N154 sont accessibles à moins de 8 km et Évreux est située à 29 km. Il y a une boulangerie et deux supérettes dans les environs.Son prix de vente est de 262 790 €.Contactez Benjamin GRZESKOWIAK ((Numéro supprimé)) pour toute question sur la maison, sur les modalités de vente ou sur les démarches à suivre. Les Maisons Extraco Gravigny vous accompagne à toutes les étapes de l’achat et dans tous vos projets immobiliers.
Mesnil-sur-l'Estrée
TERRAIN ET MAISONVENTE : maison de 6 pièces (118 m²) à Mesnil-sur-l’EstréePROCHE D’ÉVREUX – MAISON 6 PIÈCES NEUVEProche de la gare de Dreux (Paris à 60 min par le Transilien N), en vente à Mesnil-sur-l’Estrée (27650), nous vous proposons cette maison de 6 pièces de 118 m² et de 730 m² de terrain.Cette maison compte 2 niveaux. Son intérieur offre quatre chambres, une cuisine et deux salles de bains. La maison est neuve.Une école primaire est implantée dans le quartier. Côté transports, il y a deux gares (Dreux et Nonancourt) à moins de 10 minutes en voiture. Les nationales N12 et N154 sont accessibles à moins de 8 km et Évreux est située à 29 km. On trouve une boulangerie et deux supérettes à proximité.Elle est proposée à l’achat pour 314 200 €.N’hésitez pas à prendre contact avec notre agence (GRZESKOWIAK Benjamin : (Numéro supprimé)) pour tout renseignement sur cette propriété. Les Maisons Extraco Gravigny est là pour vous accompagner à toutes les étapes de l’achat.
Mesnil-sur-l'Estrée
TERRAIN ET MAISONMaison de 6 pièces (160 m²) en vente à Mesnil-sur-l’EstréePROCHE D’ÉVREUX – MAISON 6 PIÈCES NEUVEEn vente : à côté de la gare de Dreux (Paris à 60 min par le Transilien N), nous sommes heureux de vous proposer à Mesnil-sur-l’Estrée (27650), cette maison de 6 pièces de 160 m².Cette maison comporte 2 niveaux. Son intérieur propose quatre chambres, une cuisine et deux salles de bains. La maison est neuve.Le terrain du bien est de 730 m².Une école primaire est implantée dans le quartier. Niveau transports en commun, il y a deux gares (Dreux et Nonancourt) à moins de 10 minutes en voiture. Les nationales N12 et N154 sont accessibles à moins de 8 km et Évreux est située à 29 km. On trouve une boulangerie et deux supérettes à quelques minutes du logement.Son prix de vente est de 343 344 €.Prenez contact avec Benjamin GRZESKOWIAK (tél : (Numéro supprimé)) pour toute information sur cette maison. Donnez vie à vos projets immobiliers avec Les Maisons Extraco Gravigny.
L’actualité immobilière à Saint-Georges-Motel
27/11/2023
02/11/2023
30/10/2023
20/10/2023
16/10/2023
16/10/2023