Maison à construire à Saint-Marcel (27950)
Images
Description
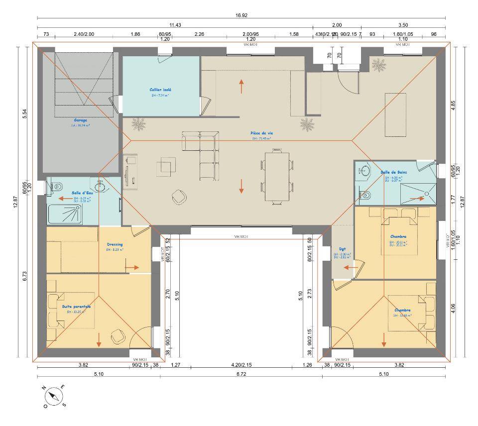
Maison F5 (130 m²) à vendre à Saint-Marcel
QUARTIER RECHERCHÉ - MAISON 5 PIÈCES NEUVE
En vente : à côté du Transilien J (gare de Vernon-Giverny, 1 h de Paris), notre agence Maisons France Confort Vernon est heureuse de vous proposer cette maison de 5 pièces de plain-pied de 130 m² et de 720 m² de terrain dans un quartier recherché de Saint-Marcel (27950). Son intérieur offre trois chambres, une cuisine et deux salles de bains.
Cette maison est neuve.
Cette maison se trouve dans un secteur attractif. L'École Élémentaire Jules Ferry et l'École Maternelle Maria Montessori sont implantées à moins de 10 minutes à pied, tout comme une crèche. Niveau transports, on trouve la gare Vernon-Giverny à moins de 10 minutes en voiture. L'autoroute A13 et la nationale N13 sont accessibles à moins de 9 km et Évreux est située à 23 km. Il y a un bassin de natation, deux tennis, des commerces, quatre boulangeries, un supermarché, une boucherie-charcuterie et une poissonnerie à proximité.
Elle est à vendre pour la somme de 357 840 €.
Prenez contact avec notre constructeur (Murielle DEBART : (Numéro supprimé)) pour plus d'informations sur la maison ou sur les démarches à suivre. Maisons France Confort Vernon est là pour vous accompagner dans tous vos projets immobiliers.
Logement susceptibles de vous intéresser
Nous vous proposons de découvrir aussi cette sélection de logements situés à moins de 10km de Saint-Marcel et qui seraient susceptibles de vous intéresser.
Aigleville
TERRAINAigleville : terrain de 1 009 m² à vendreEMPLACEMENT PRIVILÉGIÉ – À deux pas de Pacy sur Eure à Aigleville (27120), grand terrain. Il donne sur un jardin et est exposé au sud-est. La nationale N13 est accessible à 1 km. On trouve un commerce à quelques minutes de la propriété.Ce terrain est proposé à l’achat pour 126 158 €. Prenez contact avec Fanny GATINAULT (tél : (Numéro supprimé)) pour tout renseignement sur ce terrain. Donnez vie à vos projets immobiliers avec Maisons Balency Louviers.Annonce proposée par un Agent Commercial Partenaire.
Aigleville
TERRAIN ET MAISONAigleville : maison T5 (120 m²) en venteEMPLACEMENT PRIVILÉGIÉ – Localisée à deux pas de Pacy sur eure , bénéficiant d’un emplacement privilégié dans Aigleville (27120), votre agence Maisons Balency Louviers est heureuse de vous proposer cette maison de 5 pièces de plain-pied de 120 m² et de 1 009 m² de terrain.Conçue de plain-pied, elle dispose de trois chambres dont une suite parentale, d’une cuisine ouverte sur l’espace de vie , d’un cellier donnant sur le garage et de deux salles de bains. La maison est neuve.Cette maison se situe dans un secteur attractif. Son prix de vente est de 397 493 €.N’hésitez pas à prendre contact avec notre agence (GATINAULT Fanny : (Numéro supprimé)) pour tout renseignement sur la maison ou sur les modalités de vente. Maisons Balency Louviers est là pour vous accompagner à toutes les étapes de votre projet.Annonce proposée par un Agent Commercial Partenaire.
Aigleville
TERRAIN ET MAISONVENTE d’une maison de 5 pièces (95 m²) à AiglevilleEMPLACEMENT PRIVILÉGIÉ – Nous sommes ravis de vous présenter cette maison de 5 pièces de plain-pied de 95 m² et de 1 009 m² de terrain bénéficiant d’un emplacement d’exception dans Aigleville (27120). Son intérieur se divise en quatre chambres, une cuisine ouverte sur l’espace de vie, d’un cellier donnant sur le garage et une salle de bains.Cette maison est neuve alliant le confort, la modernité et la performance énergétique. Elle est à vendre pour la somme de 277 295 €.Prenez contact avec Fanny GATINAULT ((Numéro supprimé)) pour toute information sur la maison ou sur les démarches à suivre. Maisons Balency Louviers est là pour vous accompagner dans tous vos projets immobiliers.Annonce proposée par un Agent Commercial Partenaire.
Aigleville
TERRAINVENTE : terrain de 972 m² à 10 min de Pacy-sur-EureEMPLACEMENT PRIVILÉGIÉ – En vente à deux pas de Pacy-sur-Eure (27120), grand terrain. Il est prêt à accueillir votre projet immobilier pour toute la famille. Ce terrain, exposé sud-ouest, donne sur un jardin. Son prix de vente est de 121 807 €. N’hésitez pas à prendre contact avec Fanny GATINAULT ((Numéro supprimé)) pour plus d’informations sur le terrain, sur les modalités de vente ou sur les démarches à suivre. Concrétisez vos projets immobiliers avec Maisons Balency Louviers.Annonce proposée par un Agent Commercial Partenaire.
Aigleville
TERRAIN ET MAISONEMPLACEMENT PRIVILÉGIÉ – MAISON 7 PIÈCES NEUVE Localisée à quelques kilomètres de Pacy sur Eure sur la commune AIGLEVILLE, nous vous proposons cette maison de 7 pièces de 125 m² bénéficiant d’un emplacement d’exception .C’est une maison de 2 niveaux. Son intérieur est composé de quatre chambres dont une suite parentale, d’une cuisine ouverte sur l’espace de vie, d’un cellier donnant sur la garage et de trois salles de bains. La maison est neuve.Le terrain du bien est de 972 m².Elle est proposée à l’achat pour 386 070 €.N’hésitez pas à prendre contact avec notre agence (GATINAULT Fanny : (Numéro supprimé)) pour obtenir de plus amples informations sur la maison.Annonce proposée par un Agent Commercial Partenaire.
Aigleville
TERRAIN ET MAISONVENTE : maison F5 (100 m²) à 10min de Pacy-sur-EureEMPLACEMENT PRIVILÉGIÉ – En vente à quelques kilomètres d’Évreux, découvrez cette maison de 5 pièces de plain-pied de 100 m² bénéficiant d’un emplacement d’exception à Aigleville (27120). Son intérieur propose trois chambres dont une suite parentale, une cuisine ouverte sur l’espace de vie, d’un cellier, deux salles de bains et d’un garage.Le terrain du bien est de 972 m².La maison est aux normes RE2020 permettant d’allier le confort et la performance énergique. La maison se trouve dans un secteur attractif. Elle est à vendre pour la somme de 324 828 €.Contactez notre agence (Fanny GATINAULT : (Numéro supprimé)) pour toute question sur la propriété et sur les modalités de vente. Maisons Balency Louviers est là pour vous accompagner dans toutes vos démarches.Annonce proposée par un Agent Commercial Partenaire.
Vernon
TERRAINVENTE : terrain de 1 000 m² à VernonQUARTIER RECHERCHÉGrand terrain proche de la gare de Vernon-Giverny (Paris à 1 h avec le Transilien J). De 1 000 m², ce terrain se situe situé dans un secteur recherché de Vernon (27200). Il donne sur un jardin. Dans un quartier convoité, ce terrain est proche des commerces et des écoles. Il y a des écoles (de la maternelle au lycée) à moins de 10 minutes à pied, tout comme une crèche. Niveau transports en commun, on trouve les gares Vernon-Giverny et Bonnières-sur-Seine à moins de 10 minutes en voiture. L’autoroute A13 et la nationale N13 sont accessibles à moins de 7 km. Il y a une bibliothèque, des boulangeries, quatre commerces, trois épiceries et une supérette à quelques minutes.Il est à vendre pour la somme de 135 000 €. Prenez contact avec notre agence (GOITA Carole : (Numéro supprimé)) pour tout renseignement sur le terrain ou sur les modalités de vente. Donnez vie à vos projets immobiliers avec Extraco Construction Rénovation Les Andelys.
Vernon
TERRAIN ET MAISONVENTE : maison F5 (105 m²) à VernonQUARTIER RECHERCHÉ – MAISON 5 PIÈCES NEUVEÀ vendre : proche de la gare de Vernon-Giverny (Paris à 1 h par le Transilien J), dans un quartier attractif de Vernon (27200), Les Maisons Extraco Les Andelys vous propose cette maison de 5 pièces de 105 m². Son intérieur est composé de quatre chambres, d’une cuisine et de deux salles de bains.Le terrain de la maison est de 1 000 m².Cette maison compte 2 niveaux. Elle est neuve.Cette maison se trouve dans un secteur prisé. Des établissements scolaires du primaire et du secondaire sont implantés à moins de 10 minutes à pied, tout comme une crèche. Côté transports en commun, on trouve deux gares (Vernon-Giverny et Bonnières-sur-Seine) à moins de 10 minutes en voiture. L’autoroute A13 et la nationale N13 sont accessibles à moins de 7 km. Il y a une bibliothèque, des boulangeries, quatre commerces, trois épiceries et une supérette à proximité.Elle est à vendre pour la somme de 329 000 €.Contactez notre agence (Carole GOITA : (Numéro supprimé)) pour plus d’informations sur la maison. Extraco Construction Rénovation Les Andelys vous accompagne dans tous vos projets immobiliers et dans toutes vos démarches.
Vernon
TERRAIN ET MAISONMaison F5 (92 m²) en vente à VernonQUARTIER RECHERCHÉ – MAISON 5 PIÈCES NEUVEÀ deux pas de la gare de Vernon-Giverny (Paris à 1 h par le Transilien J), nous sommes ravis de vous présenter cette maison de 5 pièces de plain-pied de 92 m² à vendre, dans un quartier attractif de Vernon (27200).Elle offre quatre chambres, une cuisine et une salle de bains. La maison est neuve.Le terrain de la propriété s’étend sur 1 000 m².La maison est située dans un secteur convoité. Il y a des établissements scolaires de tous niveaux (de la maternelle au lycée) à moins de 10 minutes à pied, tout comme une crèche. Niveau transports, on trouve les gares Vernon-Giverny et Bonnières-sur-Seine à moins de 10 minutes en voiture. L’autoroute A13 et la nationale N13 sont accessibles à moins de 7 km. Il y a une bibliothèque, des boulangeries, quatre commerces, trois épiceries et une supérette à proximité.Elle est proposée à l’achat pour 319 000 €.Contactez notre agence (GOITA Carole : (Numéro supprimé)) pour obtenir de plus amples informations sur la maison ou sur les modalités de vente. Extraco Construction Rénovation Les Andelys vous accompagne dans toutes vos démarches et dans tous vos projets immobiliers.
L’actualité immobilière à Saint-Marcel
27/11/2023
02/11/2023
30/10/2023
20/10/2023
16/10/2023
16/10/2023