Maison à construire à Thiberville (27230)
Images
Description
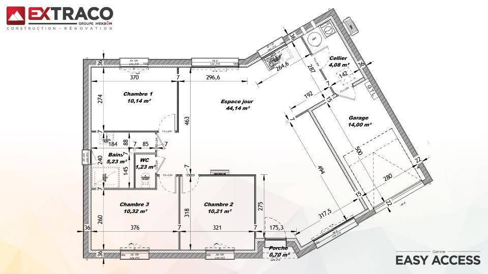
Thiberville : maison F4 (85 m²) à vendre
EMPLACEMENT PRIVILÉGIÉ - MAISON 4 PIÈCES NEUVE
À 35 km de la Manche, ayez le coup de coeur pour cette maison de 4 pièces de plain-pied de 85 m² en vente, bénéficiant d'un emplacement d'exception dans Thiberville (27230). Son intérieur est composé de trois chambres, d'une cuisine et d'une salle de bains.
Le terrain de la maison s'étend sur 1 076 m².
Cette maison est neuve.
La maison est située dans un quartier attractif. Il y a quatre établissements scolaires à moins de 10 minutes à pied et, parmi lesquels l'École Primaire Privée Notre-Dame du Sacré Coeur et le Collège Jeanine Vancayzéele. Il y a un accès à l'autoroute A28 à 9 km. On trouve un tennis, des commerces, deux boulangeries, un supermarché, trois boucheries-charcuteries et une poissonnerie dans les environs.
Elle est proposée à l'achat pour 222 500 €.
Prenez contact avec notre agence (PETIT Juliette : (Numéro supprimé)) pour toute information sur la maison ou sur les modalités de vente.
Logement susceptibles de vous intéresser
Nous vous proposons de découvrir aussi cette sélection de logements situés à moins de 10km de Thiberville et qui seraient susceptibles de vous intéresser.
Moyaux
TERRAINMoyaux : terrain de 539 m² en venteIDÉALEMENT SITUÉÀ Moyaux (14590), imaginez la maison de vos rêves sur ce terrain de 539 m². Il y a l’École Primaire Madame René Coty à moins de 10 minutes à pied. Les autoroutes A13, A132 et A28 sont accessibles à moins de 18 km. On trouve un tennis, un commerce, une boulangerie, une épicerie et un bureau de poste à quelques minutes.Il est à vendre pour la somme de 55 000 €. Contactez notre agence (Angélique CUVILLIERS : (Numéro supprimé)) pour plus de renseignements sur ce terrain ou sur les modalités de vente. EXTRACO Construction Rénovation Pont-l’Évêque est là pour vous accompagner à toutes les étapes de l’achat.
Moyaux
TERRAINVENTE : terrain de 841 m² à MoyauxIDÉALEMENT SITUÉÀ Moyaux (14590), grand terrain. Réalisez-y la maison de vos rêves. Dans un secteur convoité, ce terrain idéalement situé est proche des commerces et des écoles. L’École Primaire Madame René Coty se trouve à moins de 10 minutes à pied. Les autoroutes A13, A132 et A28 sont accessibles à moins de 18 km. Il y a un tennis, un commerce, une boulangerie, une épicerie et un bureau de poste à quelques minutes.Il est à vendre pour la somme de 65 000 €. Contactez notre agence (Angélique CUVILLIERS : (Numéro supprimé)) pour toute information sur ce terrain.
Moyaux
TERRAIN ET MAISONOSSATURE BOIS VENTE d’une maison de 4 pièces (83 m²) à MoyauxIDÉALEMENT SITUÉE – MAISON 4 PIÈCES NEUVEVenez découvrir à vendre, idéalement située dans Moyaux (14590), cette maison de 4 pièces de plain-pied de 83 m².Conçue de plain-pied, elle se divise en trois chambres, une cuisine et une salle de bains. Cette maison est neuve.Le terrain de la propriété s’étend sur 539 m².La propriété est située dans un quartier convoité. L’École Primaire Madame René Coty se trouve à moins de 10 minutes à pied. Les autoroutes A13, A132 et A28 sont accessibles à moins de 18 km. Il y a un tennis, un commerce, une boulangerie, une épicerie et un bureau de poste à quelques minutes.Elle est à vendre pour la somme de 222 300 €.Contactez Angélique CUVILLIERS (tél : (Numéro supprimé)) pour plus de renseignements sur la maison et sur les modalités de vente.EXTRACO Construction Rénovation Pont-l’Évêque vous accompagne dans toutes vos démarches et à toutes les étapes de votre projet.
Moyaux
TERRAIN ET MAISONMaison de 5 pièces (92 m²) à vendre à MoyauxIDÉALEMENT SITUÉE – MAISON 5 PIÈCES NEUVEEXTRACO Construction Rénovation Pont-l’Évêque vous présente, idéalement située dans Moyaux (14590), cette maison de 5 pièces de plain-pied de 92 m². Son intérieur est composé de quatre chambres, d’une cuisine et d’une salle de bains.Le terrain de cette maison s’étend sur 539 m².La maison est neuve.Cette maison se situe dans un secteur convoité. L’École Primaire Madame René Coty se trouve à moins de 10 minutes à pied. Les autoroutes A13, A132 et A28 sont accessibles à moins de 18 km. Il y a un tennis, un commerce, une boulangerie, un bureau de poste et une épicerie à proximité du logement.Elle est à vendre pour la somme de 208 700 €.Contactez Angélique CUVILLIERS (tél : (Numéro supprimé)) pour plus d’informations sur la propriété.
Moyaux
TERRAIN ET MAISONMoyaux : maison F4 (85 m²) à vendreIDÉALEMENT SITUÉE – MAISON 4 PIÈCES NEUVEEn vente : Idéalement située dans Moyaux (14590), nous vous présentons cette maison de 4 pièces de 85 m². Elle se divise en trois chambres, une cuisine et une salle de bains.Le terrain du bien est de 539 m².Cette maison possède 2 niveaux. Elle est neuve.La maison se situe dans un quartier convoité. On trouve l’École Primaire Madame René Coty à moins de 10 minutes à pied. Les autoroutes A13, A132 et A28 sont accessibles à moins de 18 km. Il y a un tennis, un commerce, une boulangerie, une épicerie et un bureau de poste à quelques minutes à peine.Elle est proposée à l’achat pour 195 800 €.N’hésitez pas à prendre contact avec Angélique CUVILLIERS ((Numéro supprimé)) pour plus de renseignements sur la maison. EXTRACO Construction Rénovation Pont-l’Évêque est là pour vous accompagner dans tous vos projets immobiliers.
Moyaux
TERRAIN ET MAISONMoyaux : maison de 4 pièces (74 m²) à vendreIDÉALEMENT SITUÉE – MAISON 4 PIÈCES NEUVENous vous présentons cette maison de 4 pièces de plain-pied de 74 m² idéalement située dans Moyaux (14590).Conçue de plain-pied, elle propose trois chambres, une cuisine et une salle de bains. Cette maison est neuve.Le terrain du bien est de 539 m².Cette maison se trouve dans un secteur attractif. L’École Primaire Madame René Coty est implantée à moins de 10 minutes à pied. Les autoroutes A13, A132 et A28 sont accessibles à moins de 18 km. On trouve un tennis, un commerce, une boulangerie, un bureau de poste et une épicerie dans les environs.Son prix de vente est de 204 500 €.Contactez Angélique CUVILLIERS ((Numéro supprimé)) pour obtenir de plus amples informations sur le bien. EXTRACO Construction Rénovation Pont-l’Évêque vous accompagne dans tous vos projets immobiliers et à toutes les étapes de l’achat.
Moyaux
TERRAIN ET MAISONOSSATURE BOIS Moyaux : maison T5 (104 m²) en venteIDÉALEMENT SITUÉE – MAISON 5 PIÈCES NEUVEEXTRACO Construction Rénovation Pont-l’Évêque vous présente à vendre, idéalement située dans Moyaux (14590), cette maison de 5 pièces de plain-pied de 104 m².Son intérieur dispose de quatre chambres, d’une cuisine et de deux salles de bains. Cette maison est neuve.Le terrain du bien s’étend sur 841 m².Cette maison se situe dans un quartier attractif. L’École Primaire Madame René Coty se trouve à moins de 10 minutes à pied. Les autoroutes A13, A132 et A28 sont accessibles à moins de 18 km. Il y a un tennis, un commerce, une boulangerie, un bureau de poste et une épicerie dans les environs.Son prix de vente est de 263 500 €.Prenez contact avec notre agence (CUVILLIERS Angélique : (Numéro supprimé)) pour obtenir de plus amples renseignements sur la propriété.
Moyaux
TERRAIN ET MAISONVENTE d’une maison F4 (98 m²) à MoyauxIDÉALEMENT SITUÉE – MAISON 4 PIÈCES NEUVEVotre agence EXTRACO Construction Rénovation Pont-l’Évêque est heureuse de vous présenter cette maison de 4 pièces de plain-pied de 98 m² à vendre, idéalement située dans Moyaux (14590). Elle propose trois chambres, une cuisine et une salle de bains.Le terrain du bien est de 841 m².Cette maison est neuve.Le bien est situé dans un quartier recherché. Il y a l’École Primaire Madame René Coty à moins de 10 minutes à pied. Les autoroutes A13, A132 et A28 sont accessibles à moins de 18 km. On trouve un tennis, un commerce, une boulangerie, un bureau de poste et une épicerie à proximité.Son prix de vente est de 206 800 €.Prenez contact avec notre constructeur (Angélique CUVILLIERS : (Numéro supprimé)) pour tout renseignement sur la maison ou sur les démarches à suivre.
Moyaux
TERRAIN ET MAISONVENTE : maison T5 (105 m²) à MoyauxIDÉALEMENT SITUÉE – MAISON 5 PIÈCES NEUVEÀ vendre :EXTRACO Construction Rénovation Pont-l’Évêque vous présente, idéalement située dans Moyaux (14590), cette maison de 5 pièces de 105 m² et de 841 m² de terrain. Son intérieur se divise en quatre chambres, une cuisine et deux salles de bains.C’est une maison de 2 niveaux. Elle est neuve.Cette maison est située dans un quartier attractif. Il y a l’École Primaire Madame René Coty à moins de 10 minutes à pied. Les autoroutes A13, A132 et A28 sont accessibles à moins de 18 km. On trouve un tennis, un commerce, une boulangerie, un bureau de poste et une épicerie à proximité de la maison.Elle est proposée à l’achat pour 238 900 €.Contactez Angélique CUVILLIERS (tél : (Numéro supprimé)) pour toute question sur la propriété. Faites de vos projets immobiliers une réalité avec EXTRACO Construction Rénovation Pont-l’Évêque.
L’actualité immobilière à Thiberville
27/11/2023
02/11/2023
30/10/2023
20/10/2023
16/10/2023
16/10/2023