Maison à construire à Val-de-Reuil (27100)
Images
Description
VENTE : maison T5 (90 m²) à Val-de-Reuil
PROCHE DE ROUEN - MAISON 5 PIÈCES NEUVE
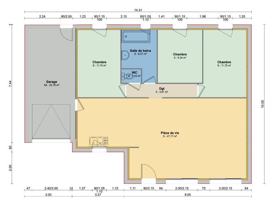
À vendre à 21 km de Rouen, votre agence Maisons Balency Boos est heureuse de vous présenter cette maison de 5 pièces de plain-pied de 90 m² et de 549 m² de terrain à Val-de-Reuil (27100). Elle compte trois chambres, une cuisine et une salle de bains.
Cette maison est neuve.
Des établissements scolaires primaires sont implantés à moins de 10 minutes à pied. Niveau transports en commun, on trouve les gares Val-de-Reuil, Saint-Pierre-du-Vauvray et Pont-de-l'Arche à moins de 10 minutes en voiture. Les autoroutes A13 et A154 sont accessibles à moins de 4 km. Il y a un bassin de natation, une bibliothèque, des commerces, quatre boulangeries, un supermarché, deux boucheries-charcuteries et une poissonnerie à proximité du logement.
Elle est à vendre pour la somme de 234 500 €.
Prenez contact avec Kévin XAVIER ALVES (tél : (Numéro supprimé)) pour toute question sur la maison, sur les modalités de vente ou sur les démarches à suivre. Maisons Balency Boos vous accompagne dans tous vos projets immobiliers et à toutes les étapes de votre projet.
Annonce proposée par un Agent Commercial Partenaire.
Logement susceptibles de vous intéresser
Nous vous proposons de découvrir aussi cette sélection de logements situés à moins de 10km de Val-de-Reuil et qui seraient susceptibles de vous intéresser.
Heuqueville
TERRAIN ET MAISONMaison F6 (114 m²) en vente à HeuquevilleIDÉALEMENT SITUÉE – MAISON 6 PIÈCES NEUVEEn vente : à 24 km de Rouen, découvrez cette maison de 6 pièces de 114 m² idéalement située dans Heuqueville (27700).Cette maison compte 2 niveaux. Elle est composée de cinq chambres, d’une cuisine et de deux salles de bains. La maison est neuve.Le terrain de la propriété est de 800 m².Cette maison est située dans un secteur prisé. On y trouve une école primaire. Côté transports, on trouve la gare Val-de-Reuil à moins de 10 minutes en voiture. Les autoroutes A13 et A154 et la nationale N154 sont accessibles à moins de 18 km.Elle est à vendre pour la somme de 221 800 €.Prenez contact avec notre agence (Gilles BOREAU : (Numéro supprimé)) pour toute question sur la propriété. Donnez vie à vos projets immobiliers avec Les Maisons Extraco Les Andelys.
Heuqueville
TERRAINTerrain de 800 m² en vente à HeuquevilleIDÉALEMENT SITUÉ Eligible au prêt à taux zéroÀ Heuqueville (27700) à vendre à deux pas de Rouen, donnez vie à votre résidence principale ou secondaire sur ce terrain de 800 m². Une école primaire est implantée dans le quartier. Côté transports, il y a la gare Val-de-Reuil à moins de 10 minutes en voiture. Les autoroutes A13 et A154 et la nationale N154 sont accessibles à moins de 18 km.Il est proposé à l’achat pour 43 000 €. N’hésitez pas à prendre contact avec Gilles BOREAU ((Numéro supprimé)) pour plus de renseignements sur le terrain, sur les démarches à suivre ou sur les modalités de vente.
Heuqueville
TERRAIN ET MAISONHeuqueville : maison de 4 pièces (75 m²) à vendreIDÉALEMENT SITUÉE – MAISON 4 PIÈCES NEUVEEn vente : localisée à deux pas de Rouen, venez découvrir cette maison de 4 pièces de plain-pied de 75 m² idéalement située dans Heuqueville (27700). Son intérieur inclut trois chambres, une cuisine et une salle de bains.Le terrain de la propriété s’étend sur 800 m².Cette maison est neuve.La maison se situe dans un quartier convoité. On y trouve une école primaire. Côté transports, il y a la gare Val-de-Reuil à moins de 10 minutes en voiture. Les autoroutes A13 et A154 et la nationale N154 sont accessibles à moins de 18 km.Son prix de vente est de 172 000 €.Prenez contact avec notre agence (BOREAU Gilles : (Numéro supprimé)) pour toute question sur la propriété, sur les démarches à suivre ou sur les modalités de vente.
Heuqueville
TERRAIN ET MAISONMaison de 4 pièces (94 m²) en vente à HeuquevilleIDÉALEMENT SITUÉE – MAISON 4 PIÈCES NEUVEEn vente à deux pas de Rouen, nous vous proposons cette maison de 4 pièces de plain-pied de 94 m² et de 800 m² de terrain, idéalement située dans Heuqueville (27700).Son intérieur dispose de trois chambres, d’une cuisine et de deux salles de bains. Cette maison est neuve.La maison est située dans un quartier prisé. On y trouve une école primaire. Côté transports, il y a la gare Val-de-Reuil à moins de 10 minutes en voiture. Les autoroutes A13 et A154 et la nationale N154 sont accessibles à moins de 18 km.Son prix de vente est de 250 000 €.Prenez contact avec Gilles BOREAU (tél : (Numéro supprimé)) pour plus de renseignements sur la propriété ou sur les modalités de vente. Les Maisons Extraco Les Andelys vous accompagne dans toutes vos démarches et à toutes les étapes de l’achat.
Heuqueville
TERRAIN ET MAISONVENTE : maison de 5 pièces (95 m²) à HeuquevilleIDÉALEMENT SITUÉE – MAISON 5 PIÈCES NEUVEEn vente à 24 km de Rouen, idéalement située dans Heuqueville (27700), ayez le coup de coeur pour cette maison de 5 pièces de plain-pied de 95 m².Son intérieur est composé de quatre chambres, d’une cuisine et d’une salle de bains. Cette maison est neuve.Le terrain du bien s’étend sur 800 m².La maison se trouve dans un quartier convoité. Une école primaire y est implantée. Côté transports en commun, il y a la gare Val-de-Reuil à moins de 10 minutes en voiture. Les autoroutes A13 et A154 et la nationale N154 sont accessibles à moins de 18 km.Son prix de vente est de 188 500 €.Contactez Gilles BOREAU (tél : (Numéro supprimé)) pour toute information sur la maison ou sur les modalités de vente.
Heudebouville
TERRAINVENTE d’un terrain de 589 m² à HeudebouvillePROCHE DE ROUENEn vente à deux pas de Rouen à Heudebouville (27600), grand terrain. Réalisez-y votre résidence principale ou secondaire. L’École Primaire les Coteaux Fleuris se trouve à moins de 10 minutes à pied. Niveau transports en commun, il y a trois gares (Saint-Pierre-du-Vauvray, Gaillon-Aubevoye et Val-de-Reuil) à moins de 10 minutes en voiture. L’autoroute A13 est accessible à 1 km. On trouve un tennis, une boulangerie et une boucherie-charcuterie à proximité du bien.Il est à vendre pour la somme de 73 500 €. Prenez contact avec notre agence (Karen DELELIS : (Numéro supprimé)) pour tout renseignement sur ce terrain et sur les modalités de vente.Annonce proposée par un Agent Commercial Partenaire.
Le Vaudreuil
TERRAIN ET MAISONMaison de 5 pièces (148 m²) en vente accolée au VaudreuilMAISON 5 PIÈCES NEUVE – PROCHE DE ROUENÀ vendre : à 22 km de Rouen, accolée au Vaudreuil (27100), votre agence Les Maisons Extraco Pont-de-l’Arche est heureuse de vous proposer cette maison de 5 pièces de 148 m². Son intérieur comporte quatre chambres, une cuisine et deux salles de bains.Le terrain de cette maison s’étend sur 2 090 m².C’est une maison de 2 niveaux. Elle est neuve.Il y a quatre établissements scolaires à moins de 10 minutes à pied et, comme l’École Maternelle les Tilleuls, le Collège Michel de Montaigne ou l’École Primaire Privée Saint Henri. Niveau transports en commun, on trouve les gares Val-de-Reuil, Saint-Pierre-du-Vauvray et Pont-de-l’Arche à moins de 10 minutes en voiture. Les autoroutes A13 et A154 et la nationale N154 sont accessibles à moins de 9 km. Il y a trois tennis, une bibliothèque, des commerces, une boulangerie, une boucherie-charcuterie, un bureau de poste et une épicerie dans les environs.Elle est proposée à l’achat pour 426 560 €.Prenez contact avec Peter MORIN (tél : (Numéro supprimé)) pour obtenir de plus amples renseignements sur la maison ou sur les démarches à suivre. Les Maisons Extraco Pont-de-l’Arche est là pour vous accompagner à toutes les étapes de l’achat.
Le Vaudreuil
TERRAIN ET MAISONMaison de 7 pièces (158 m²) en vente accolée au VaudreuilPROCHE DE ROUEN – MAISON 7 PIÈCES NEUVEÀ vendre : localisée à deux pas de Rouen, nous vous proposons cette maison de 7 pièces de 158 m² accolée au Vaudreuil (27100).Cette maison compte 2 niveaux. Elle offre quatre chambres, une cuisine et trois salles de bains. Cette maison est neuve.Le terrain de la propriété est de 2 090 m².Quatre établissements scolaires sont implantés à moins de 10 minutes à pied, tout comme dont l’École Maternelle les Tilleuls, le Collège Michel de Montaigne et l’École Primaire Privée Saint Henri. Niveau transports en commun, il y a les gares Val-de-Reuil, Saint-Pierre-du-Vauvray et Pont-de-l’Arche à moins de 10 minutes en voiture. Les autoroutes A13 et A154 et la nationale N154 sont accessibles à moins de 9 km. On trouve trois tennis, une bibliothèque, des commerces, une boulangerie, un bureau de poste, une épicerie et une boucherie-charcuterie à proximité du logement.Elle est à vendre pour la somme de 448 680 €.Contactez notre agence (MORIN Peter : (Numéro supprimé)) pour plus d’informations sur cette maison, sur les démarches à suivre et sur les modalités de vente. Concrétisez vos projets immobiliers avec Les Maisons Extraco Pont-de-l’Arche.
Les Damps
TERRAIN ET MAISONAccolée Les Damps : maison T4 (82 m²) en venteMAISON 4 PIÈCES NEUVE – PROCHE DE ROUENEn vente à deux pas de Rouen, accolée aux Damps (27340), notre agence Les Maisons Extraco Pont-de-l’Arche est ravie de vous proposer cette maison de 4 pièces de plain-pied de 82 m².Conçue de plain-pied, elle dispose de trois chambres, d’une cuisine et d’une salle de bains. Cette maison est neuve.Le terrain de la propriété est de 607 m².Il y a l’École Primaire Jules Verne à moins de 10 minutes à pied. Niveau transports en commun, on trouve six gares à moins de 10 minutes en voiture. Les autoroutes A13 et A154 sont accessibles à moins de 7 km. Il y a un supermarché à quelques minutes à peine.Elle est proposée à l’achat pour 223 900 €.N’hésitez pas à prendre contact avec Peter MORIN ((Numéro supprimé)) pour toute question sur la maison, sur les démarches à suivre ou sur les modalités de vente. Faites de vos projets immobiliers une réalité avec Les Maisons Extraco Pont-de-l’Arche.
L’actualité immobilière à Val-de-Reuil
27/11/2023
02/11/2023
30/10/2023
20/10/2023
16/10/2023
16/10/2023