Maison à construire à Vernon (27200)
Images
Description
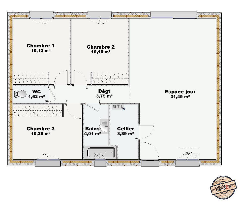
VENTE d'une maison de 4 pièces (75 m²) à Vernon
EMPLACEMENT PRIVILÉGIÉ - MAISON 4 PIÈCES NEUVE
En vente : à deux pas de la gare de Vernon-Giverny (Paris à 1 h par le Transilien J), bénéficiant d'un emplacement privilégié dans Vernon (27200), venez découvrir cette maison de 4 pièces de plain-pied de 75 m². Elle compte trois chambres, une cuisine et une salle de bains.
Le terrain de cette maison est de 1 000 m².
Cette maison est neuve.
La maison est située dans un quartier recherché. On trouve des écoles de tous niveaux (de la maternelle au lycée) à moins de 10 minutes à pied, tout comme une structure d'accueil pour les tout-petits. Niveau transports, il y a les gares Vernon-Giverny et Bonnières-sur-Seine à moins de 10 minutes en voiture. L'autoroute A13 et la nationale N13 sont accessibles à moins de 7 km. On trouve une bibliothèque, des boulangeries, quatre commerces, une supérette et trois épiceries à quelques minutes.
Son prix de vente est de 309 000 €.
Prenez contact avec Carole GOITA ((Numéro supprimé)) pour obtenir de plus amples renseignements sur le bien. Concrétisez vos projets immobiliers avec Extraco Construction Rénovation Les Andelys.
Logement susceptibles de vous intéresser
Nous vous proposons de découvrir aussi cette sélection de logements situés à moins de 10km de Vernon et qui seraient susceptibles de vous intéresser.
Mézières-en-Vexin
TERRAIN ET MAISONVENTE d’une maison de 3 pièces (70 m²) à Mézières-en-VexinIDÉALEMENT SITUÉE – MAISON 3 PIÈCES NEUVEÀ quelques minutes de la gare de Vernon-Giverny (Paris à 1 h avec le Transilien J), nous sommes heureux de vous présenter à vendre, idéalement située dans Mézières-en-Vexin (27510), cette maison de 3 pièces de plain-pied de 70 m² et de 1 000 m² de terrain.Conçue de plain-pied, elle compte deux chambres, une cuisine et une salle de bains. Cette maison est neuve.Cette maison est située dans un secteur recherché. Une école primaire y est implantée. Niveau transports en commun, il y a la gare Vernon-Giverny à moins de 10 minutes en voiture. L’autoroute A13 et la nationale N13 sont accessibles à moins de 18 km et Mantes-la-Jolie est située à 25 km. On trouve un commerce à quelques minutes.Elle est proposée à l’achat pour 182 200 €.Contactez notre agence (Gilles BOREAU : (Numéro supprimé)) pour tout renseignement sur la maison, sur les modalités de vente ou sur les démarches à suivre.
Mézières-en-Vexin
TERRAINMézières-en-Vexin : terrain de 1 000 m² en venteIDÉALEMENT SITUÉ – PROCHE DE VERNONÀ Mézières-en-Vexin (27510) à proximité du Transilien J (gare de Vernon-Giverny, 1 h de Paris), découvrez ce terrain de 1 000 m². Il est situé dans un quartier attractif. On y trouve une école primaire. Côté transports en commun, il y a la gare Vernon-Giverny à moins de 10 minutes en voiture. L’autoroute A13 et la nationale N13 sont accessibles à moins de 18 km et Mantes-la-Jolie se trouve à 25 km. Il y a un commerce à proximité du bien.Il est proposé à l’achat pour 60 000 €. Contactez Gilles BOREAU ((Numéro supprimé)) pour tout renseignement sur ce terrain, sur les modalités de vente ou sur les démarches à suivre. Faites de vos projets immobiliers une réalité avec Les Maisons Extraco Les Andelys.
Mézières-en-Vexin
TERRAIN ET MAISONMaison F4 (89 m²) en vente à Mézières-en-VexinIDÉALEMENT SITUÉE – MAISON 4 PIÈCES NEUVEEn vente : à quelques minutes de la gare de Vernon-Giverny (Paris à 1 h par le Transilien J), Les Maisons Extraco Les Andelys vous présente cette maison de 4 pièces de 89 m² idéalement située dans Mézières-en-Vexin (27510).Cette maison possède 2 niveaux. Elle se divise en trois chambres, une cuisine et une salle de bains. Cette maison est neuve.Le terrain de la propriété s’étend sur 1 000 m².La maison est située dans un secteur attractif. Une école primaire y est implantée. Niveau transports en commun, on trouve la gare Vernon-Giverny à moins de 10 minutes en voiture. L’autoroute A13 et la nationale N13 sont accessibles à moins de 18 km et Mantes-la-Jolie est située à 25 km. Il y a un commerce à proximité du logement.Son prix de vente est de 203 400 €.Contactez notre agence (BOREAU Gilles : (Numéro supprimé)) pour obtenir de plus amples renseignements sur la maison ou sur les modalités de vente.
Mézières-en-Vexin
TERRAIN ET MAISONVENTE d’une maison de 5 pièces (108 m²) à Mézières-en-VexinIDÉALEMENT SITUÉE – MAISON 5 PIÈCES NEUVEÀ vendre : à côté de la gare de Vernon-Giverny (Paris à 1 h avec le Transilien J), nous vous présentons cette maison de 5 pièces de 108 m² idéalement située dans Mézières-en-Vexin (27510). Son intérieur dispose de quatre chambres, d’une cuisine et de deux salles de bains.Le terrain de la propriété s’étend sur 1 000 m².Cette maison comporte 2 niveaux. Elle est neuve.Cette propriété est située dans un secteur attractif. On y trouve une école primaire. Niveau transports en commun, on trouve la gare Vernon-Giverny à moins de 10 minutes en voiture. L’autoroute A13 et la nationale N13 sont accessibles à moins de 18 km et Mantes-la-Jolie est située à 25 km. Il y a un commerce dans les environs.Son prix de vente est de 254 400 €.Contactez Gilles BOREAU ((Numéro supprimé)) pour toute information sur la maison, sur les modalités de vente ou sur les démarches à suivre. Les Maisons Extraco Les Andelys vous accompagne à toutes les étapes de votre projet et dans tous vos projets immobiliers.
Heubécourt-Haricourt
TERRAIN ET MAISONMaison de 3 pièces en structure bois (65 m²) à vendre à Heubécourt-HaricourtIDÉALEMENT SITUÉE – MAISON 3 PIÈCES NEUVEEn vente : proche de la gare de Vernon-Giverny (Paris à 1 h par le Transilien J), idéalement située dans Heubécourt-Haricourt (27630), découvrez cette maison de 3 pièces de plain-pied de 65 m² et de 750 m² de terrain.Son intérieur propose deux chambres, une cuisine et une salle de bains. La maison est neuve.Cette maison se situe dans un quartier recherché. On y trouve une école élémentaire. Côté transports, il y a la gare Vernon-Giverny à moins de 10 minutes en voiture. L’autoroute A13 et la nationale N13 sont accessibles à moins de 14 km et Mantes-la-Jolie se situe à 18 km.Son prix de vente est de 231 000 €.Prenez contact avec notre agence (Carole GOITA : (Numéro supprimé)) pour toute question sur la propriété ou sur les modalités de vente.
Heubécourt-Haricourt
TERRAIN ET MAISONVENTE d’une maison de 4 pièces (81 m²) à Heubécourt-HaricourtIDÉALEMENT SITUÉE – MAISON 4 PIÈCES NEUVEÀ vendre : à proximité du Transilien J (gare de Vernon-Giverny, 1 h de Paris), nous vous présentons, idéalement située dans Heubécourt-Haricourt (27630), cette maison de 4 pièces de 81 m².Cette maison comporte 2 niveaux. Son intérieur propose deux chambres, une cuisine et une salle de bains. Cette maison est neuve.Le terrain de la propriété s’étend sur 750 m².Cette maison se trouve dans un secteur prisé. Une école élémentaire y est implantée. Niveau transports, il y a la gare Vernon-Giverny à moins de 10 minutes en voiture. L’autoroute A13 et la nationale N13 sont accessibles à moins de 14 km et Mantes-la-Jolie se situe à 18 km.Elle est proposée à l’achat pour 246 000 €.Contactez notre agence (Carole GOITA : (Numéro supprimé)) pour toute question sur la propriété ou sur les modalités de vente. Extraco Construction Rénovation Les Andelys est là pour vous accompagner dans toutes vos démarches.
Bennecourt
TERRAIN ET MAISONVENTE : maison T5 (76 m²) à BennecourtPROCHE DE MANTES-LA-JOLIE – MAISON 5 PIÈCES NEUVEÀ proximité du Transilien J (gare de Rosny-sur-Seine, 45 min de Paris), nous sommes heureux de vous proposer cette maison de 5 pièces de 76 m² à Bennecourt (78270).C’est une maison de 2 niveaux. Elle compte trois chambres, une cuisine et une salle de bains. La maison est neuve.Le terrain du bien s’étend sur 745 m².Trois établissements scolaires sont implantés à moins de 10 minutes à pied, tout comme, comme le Collège Privé Saint Louis. Côté transports, il y a trois gares (Bonnières-sur-Seine, Rosny-sur-Seine et Vernon-Giverny) à moins de 10 minutes en voiture. On trouve un port de plaisance, une bibliothèque, des commerces, trois boulangeries, une épicerie, un bureau de poste et deux boucheries-charcuteries dans les environs.Il est à vendre pour la somme de 238 540 €.Contactez notre agence (Karen DELELIS : (Numéro supprimé)) pour obtenir de plus amples informations sur la maison, sur les démarches à suivre ou sur les modalités de vente. Maisons Balency Gravigny vous accompagne dans tous vos projets immobiliers et dans toutes vos démarches.Annonce proposée par un Agent Commercial Partenaire.
Ménilles
TERRAIN ET MAISONMénilles : maison de 5 pièces (120 m²) à vendreMAISON 5 PIÈCES NEUVE – PROCHE D’ÉVREUXÀ deux pas d’Évreux, découvrez cette maison de 5 pièces de plain-pied de 120 m² à Ménilles (27120).Elle inclut trois chambres, une cuisine et deux salles de bains. La maison est neuve.Le terrain de la propriété est de 683 m².L’École Primaire Couleurs Arc-En-En est implantée à moins de 10 minutes à pied. L’autoroute A13 et la nationale N13 sont accessibles à moins de 6 km. On trouve un tennis, une boulangerie, un bureau de poste et une boucherie-charcuterie dans les environs.Elle est proposée à l’achat pour 341 410 €.Prenez contact avec notre agence (Karen DELELIS : (Numéro supprimé)) pour toute information sur la maison. Donnez vie à vos projets immobiliers avec Maisons Balency Gravigny.Annonce proposée par un Agent Commercial Partenaire.
Vernon
TERRAIN ET MAISONVENTE d’une maison de 5 pièces (86 m²) à VernonEMPLACEMENT PRIVILÉGIÉ – MAISON 5 PIÈCES NEUVEÀ vendre : à deux pas de la gare de Vernon-Giverny (Paris à 1 h par le Transilien J), laissez vous charmer par, bénéficiant d’un emplacement d’exception dans Vernon (27200), cette maison de 5 pièces de 86 m² et de 1 000 m² de terrain. Elle propose trois chambres, une cuisine et une salle de bains.Cette maison possède 2 niveaux. Elle est neuve.Cette maison se trouve dans un quartier convoité. Il y a tous les types d’établissements scolaires (maternelle, élémentaire et secondaire) à moins de 10 minutes à pied, tout comme une structure d’accueil pour la petite enfance. Niveau transports, on trouve deux gares (Vernon-Giverny et Bonnières-sur-Seine) à moins de 10 minutes en voiture. L’autoroute A13 et la nationale N13 sont accessibles à moins de 7 km. Il y a une bibliothèque, des boulangeries, quatre commerces, une supérette et trois épiceries dans les environs.Son prix de vente est de 304 000 €.Contactez Carole GOITA (tél : (Numéro supprimé)) pour tout renseignement sur la maison. Extraco Construction Rénovation Les Andelys est là pour vous accompagner dans tous vos projets immobiliers.
L’actualité immobilière à Vernon
27/11/2023
02/11/2023
30/10/2023
20/10/2023
16/10/2023
16/10/2023