Maison à construire à Vitot (27110)
Images
Description
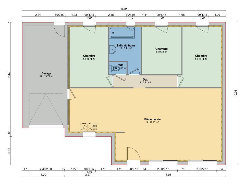
VENTE : maison F5 (90 m²) à Vitot
PROCHE D'ÉVREUX - MAISON 5 PIÈCES NEUVE
En vente : située à deux pas d'Évreux, Maisons Balency Boos vous présente cette maison de 5 pièces de plain-pied de 90 m² à Vitot (27110). Elle est composée de trois chambres, d'une cuisine et d'une salle de bains.
Le terrain de la maison est de 600 m².
Cette maison est neuve.
Il y a une école maternelle dans le quartier. Les autoroutes A28 et A154 et les nationales N13 et N154 sont accessibles à moins de 20 km.
Il est à vendre pour la somme de 204 000 €.
Contactez Sébastien MASSON (tél : (Numéro supprimé)) pour tout renseignement sur cette maison, sur les modalités de vente ou sur les démarches à suivre.
Annonce proposée par un Agent Commercial Partenaire.
Logement susceptibles de vous intéresser
Nous vous proposons de découvrir aussi cette sélection de logements situés à moins de 10km de Vitot et qui seraient susceptibles de vous intéresser.
Graveron-Sémerville
TERRAIN ET MAISONGraveron-Sémerville : maison T4 (71 m²) à vendreEMPLACEMENT PRIVILÉGIÉ – MAISON 4 PIÈCES NEUVEÀ vendre : à deux pas d’Évreux, notre agence Les Maisons Extraco Gravigny est ravie de vous présenter cette maison de 4 pièces de plain-pied de 71 m² bénéficiant d’un emplacement d’exception dans Graveron-Sémerville (27110). Elle offre deux chambres, une cuisine et une salle de bains.Le terrain du bien est de 1 089 m².Cette maison est neuve.La maison se trouve dans un quartier prisé. On y trouve une école élémentaire. L’autoroute A154 et les nationales N13 et N154 sont accessibles à moins de 19 km.Son prix de vente est de 152 000 €.Contactez Benjamin GRZESKOWIAK (tél : (Numéro supprimé)) pour tout renseignement sur la maison, sur les démarches à suivre et sur les modalités de vente. Les Maisons Extraco Gravigny vous accompagne dans tous vos projets immobiliers et à toutes les étapes de votre projet.
Graveron-Sémerville
TERRAIN ET MAISONVENTE d’une maison de 4 pièces (135 m²) à Graveron-SémervilleEMPLACEMENT PRIVILÉGIÉ – MAISON 4 PIÈCES NEUVEEn vente à quelques kilomètres d’Évreux, bénéficiant d’un emplacement d’exception dans Graveron-Sémerville (27110), laissez vous charmer par cette maison de 4 pièces de 135 m².Cette maison compte 2 niveaux. Elle dispose de cinq chambres, d’une cuisine et de deux salles de bains. Cette maison est neuve.Le terrain de la propriété s’étend sur 1 089 m².La maison se trouve dans un secteur recherché. On y trouve une école élémentaire. L’autoroute A154 et les nationales N13 et N154 sont accessibles à moins de 19 km.Son prix de vente est de 285 520 €.N’hésitez pas à prendre contact avec notre agence (GRZESKOWIAK Benjamin : (Numéro supprimé)) pour plus de renseignements sur la maison ou sur les démarches à suivre.
Graveron-Sémerville
TERRAIN ET MAISONVENTE : maison T4 (79 m²) à Graveron-SémervilleEMPLACEMENT PRIVILÉGIÉ – MAISON 4 PIÈCES NEUVEÀ vendre : à deux pas d’Évreux, Les Maisons Extraco Gravigny vous présente cette maison de 4 pièces de plain-pied de 79 m² et de 1 089 m² de terrain bénéficiant d’un emplacement privilégié dans Graveron-Sémerville (27110). Son intérieur offre trois chambres, une cuisine et une salle de bains.La maison est neuve.Cette maison est située dans un quartier convoité. On y trouve une école élémentaire. L’autoroute A154 et les nationales N13 et N154 sont accessibles à moins de 19 km.Elle est proposée à l’achat pour 161 200 €.Contactez Benjamin GRZESKOWIAK ((Numéro supprimé)) pour toute question sur la maison, sur les modalités de vente ou sur les démarches à suivre. Donnez vie à vos projets immobiliers avec Les Maisons Extraco Gravigny.
Graveron-Sémerville
TERRAIN ET MAISONMaison de 4 pièces (83 m²) à vendre à Graveron-SémervilleEMPLACEMENT PRIVILÉGIÉ – MAISON 4 PIÈCES NEUVEEn vente : située à deux pas d’Évreux, venez découvrir, bénéficiant d’un emplacement d’exception dans Graveron-Sémerville (27110), cette maison de 4 pièces de plain-pied de 83 m² et de 1 089 m² de terrain. Elle propose deux chambres, une cuisine et une salle de bains.La maison est neuve.Cette maison se trouve dans un quartier prisé. On y trouve une école élémentaire. L’autoroute A154 et les nationales N13 et N154 sont accessibles à moins de 19 km.Son prix de vente est de 193 620 €.Contactez Benjamin GRZESKOWIAK (tél : (Numéro supprimé)) pour tout renseignement sur la maison. Les Maisons Extraco Gravigny vous accompagne à toutes les étapes de l’achat et dans toutes vos démarches.
Graveron-Sémerville
TERRAINVENTE : terrain de 1 089 m² à Graveron-SémervilleEMPLACEMENT PRIVILÉGIÉ – PROCHE D’ÉVREUXÀ Graveron-Sémerville (27110) en vente à deux pas d’Évreux, découvrez ce terrain de 1 089 m². Il bénéficie d’une exposition sud. Dans un secteur convoité, le terrain bénéficiant d’un emplacement d’exception est proche des commerces et des écoles. Il y a une école élémentaire dans le quartier. L’autoroute A154 et les nationales N13 et N154 sont accessibles à moins de 19 km.Ce terrain est proposé à l’achat pour 49 500 €. Prenez contact avec notre agence (Benjamin GRZESKOWIAK : (Numéro supprimé)) pour plus d’informations sur le terrain ou sur les démarches à suivre. Les Maisons Extraco Gravigny vous accompagne dans tous vos projets immobiliers et à toutes les étapes de votre projet.
Le Neubourg
TERRAINSur la commune même du NEUBOURG, à proximité de nombreux commerces, terrain à bâtir prêt à accueillir votre future maison individuelle
Le Neubourg
TERRAIN ET MAISONLe Neubourg : maison T4 (112 m²) en venteMAISON 4 PIÈCES NEUVE – PROCHE D’ÉVREUXÀ vendre à 23 km d’Évreux, nous sommes ravis de vous présenter cette maison de 4 pièces de 112 m² et de 600 m² de terrain au Neubourg (27110). Elle propose quatre chambres, une cuisine et deux salles de bains.Cette maison comporte 2 niveaux. Elle est neuve.Il y a cinq établissements scolaires à moins de 10 minutes à pied. L’autoroute A28 et la nationale N13 sont accessibles à moins de 19 km. On trouve une bibliothèque, un tennis, un bassin de natation, un supermarché, des commerces, des boulangeries, quatre boucheries-charcuteries et une supérette à proximité. Ne manquez pas le marché Place du Chateau chaque mercredi matin.Elle est à vendre pour la somme de 257 640 €.Prenez contact avec Peter MORIN (tél : (Numéro supprimé)) pour toute information sur cette propriété ou sur les démarches à suivre. Les Maisons Extraco Pont-de-l’Arche vous accompagne dans tous vos projets immobiliers et à toutes les étapes de votre projet.
Le Neubourg
TERRAIN ET MAISONVENTE d’une maison F4 (81 m²) au NeubourgMAISON 4 PIÈCES NEUVE – PROCHE D’ÉVREUXÀ deux pas d’Évreux, à vendre au Neubourg (27110), notre agence Les Maisons Extraco Pont-de-l’Arche est heureuse de vous proposer cette maison de 4 pièces de 81 m² et de 600 m² de terrain. Elle offre trois chambres, une cuisine et une salle de bains.Cette maison possède 2 niveaux. Elle est neuve.Il y a cinq établissements scolaires à moins de 10 minutes à pied. L’autoroute A28 et la nationale N13 sont accessibles à moins de 19 km. On trouve une bibliothèque, un tennis, un bassin de natation, un supermarché, des commerces, des boulangeries, quatre épiceries et une poissonnerie à proximité. Le marché Place du Chateau anime les environs chaque mercredi matin.Elle est à vendre pour la somme de 222 590 €.Contactez Peter MORIN ((Numéro supprimé)) pour toute question sur cette maison. Faites de vos projets immobiliers une réalité avec Les Maisons Extraco Pont-de-l’Arche.
Le Neubourg
TERRAIN ET MAISONVENTE d’une maison de 5 pièces (105 m²) au NeubourgMAISON 5 PIÈCES NEUVE – PROCHE D’ÉVREUXÀ vendre à 23 km d’Évreux, ayez le coup de coeur pour cette maison de 5 pièces de 105 m² au Neubourg (27110).C’est une maison de 2 niveaux. Elle compte quatre chambres, une cuisine et deux salles de bains. Cette maison est neuve.Le terrain du bien est de 600 m².On trouve cinq établissements scolaires à moins de 10 minutes à pied. L’autoroute A28 et la nationale N13 sont accessibles à moins de 19 km. Il y a une bibliothèque, un tennis, un bassin de natation, un supermarché, des commerces, des boulangeries, quatre épiceries et une poissonnerie à quelques minutes. Ne manquez pas le marché Place du Chateau chaque mercredi matin.Elle est proposée à l’achat pour 250 880 €.N’hésitez pas à prendre contact avec notre agence (MORIN Peter : (Numéro supprimé)) pour obtenir de plus amples informations sur la maison, sur les modalités de vente et sur les démarches à suivre. Les Maisons Extraco Pont-de-l’Arche vous accompagne dans tous vos projets immobiliers et à toutes les étapes de votre projet.
L’actualité immobilière à Vitot
27/11/2023
02/11/2023
30/10/2023
20/10/2023
16/10/2023
16/10/2023