Maison à construire à Bû (28410)
Images
Description
La maison Canopée 120 est une spacieuse habitation à étage, conçue avec une ossature bois, offrant une surface habitable totale de 120,40 m². Son plan intègre un garage et une suite parentale au rez-de-chaussée, assurant confort et praticité.
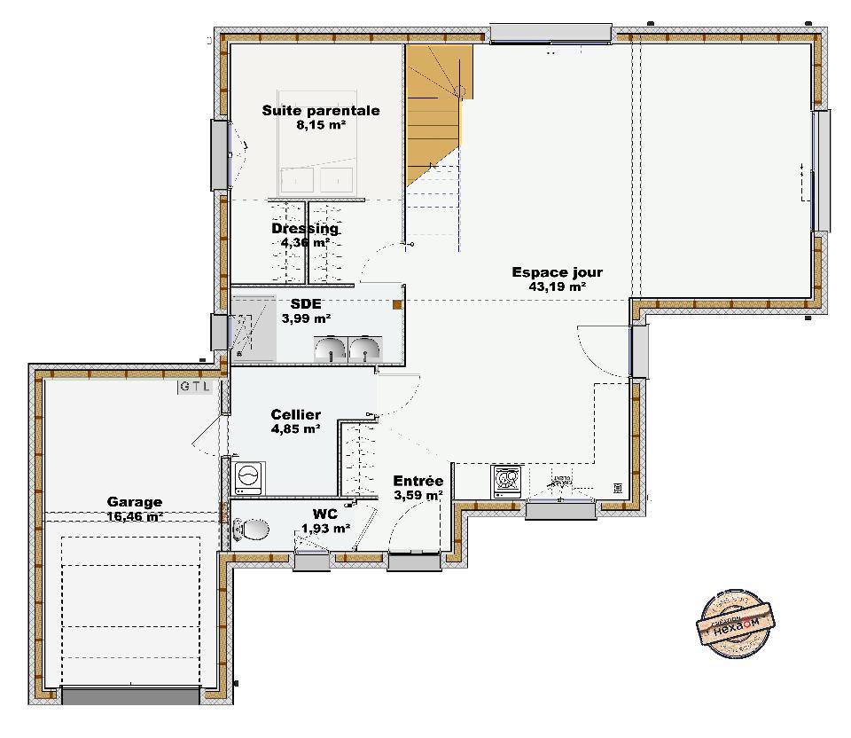
Au rez-de-chaussée, la maison propose un vaste espace jour de 43,19 m², idéal pour la vie de famille et les réceptions. On y trouve également une suite parentale complète (chambre de 8,15 m², dressing de 4,36 m² et salle d'eau de 3,99 m²), ainsi qu'un WC (1,93 m²), un cellier (4,85 m²), une entrée (3,59 m²) et un garage intégré de 16,46 m².
L'étage est dédié aux espaces de repos, avec quatre chambres confortables (10,80 m², 10,38 m², 9,92 m² et 10,07 m²), une salle d'eau (4,44 m²), un WC (1,65 m²) et un dégagement (2,73 m²).
La construction en ossature bois de la Canopée 120 lui confère de nombreux avantages : elle assure une isolation thermique et phonique de très haute performance, ce qui se traduit par des économies d'énergie significatives et un confort intérieur optimal. L'utilisation du bois, un matériau renouvelable et peu énergivore en production, en fait un choix écologique qui réduit l'empreinte carbone de l'habitat. De plus, la rapidité de mise en oeuvre et l'ambiance saine qu'offre le bois sont des atouts indéniables pour cette maison familiale et fonctionnelle.
Annonce proposée par un Agent Commercial Partenaire.
Logement susceptibles de vous intéresser
Nous vous proposons de découvrir aussi cette sélection de logements situés à moins de 10km de Bû et qui seraient susceptibles de vous intéresser.
Oulins
TERRAIN ET MAISONMaison F3 (65 m²) à vendre à OulinsMAISON 3 PIÈCES NEUVE – PROCHE BREVALEn vente à 31 km d’Évreux, nous vous proposons cette maison de 3 pièces de plain-pied de 65 m² et de 313 m² de terrain à Oulins (28260).Son intérieur inclut deux chambres, une cuisine ouverte sur le séjour et une salle de bains. Cette maison est neuve.L’École Primaire Michel Brunel est implantée à moins de 10 minutes à pied. Niveau transports, on trouve deux gares (Bueil et Bréval) à moins de 10 minutes en voiture. L’autoroute A13 et les nationales N12, N154 et N13 sont accessibles à moins de 18 km. Il y a une boulangerie et plusieurs commerces dans les environs.Elle est à vendre pour la somme de 191 900 €.Prenez contact avec Aurélie KTARI (tél : (Numéro supprimé)) pour tout renseignement sur la maison, sur les démarches à suivre ou sur les modalités de vente. Les Maisons Extraco Gravigny vous accompagne dans tous vos projets immobiliers et à toutes les étapes de l’achat.
Oulins
TERRAIN ET MAISONVENTE : maison F5 (105 m²) à OulinsPROCHE BREVAL – MAISON 5 PIÈCES NEUVEÀ vendre à 31 km d’Évreux, Les Maisons Extraco Gravigny vous propose à Oulins (28260), cette maison de 5 pièces de 105 m² et de 313 m² de terrain. Son intérieur inclut quatre chambres, une cuisine ouverte sur le séjour, deux salles de bains, un cellier et un garage.Cette maison possède 2 niveaux. Elle est neuve.Il y a l’École Primaire Michel Brunel à moins de 10 minutes à pied. Niveau transports en commun, on trouve les gares Bueil et Bréval à moins de 10 minutes en voiture. L’autoroute A13 et les nationales N12, N154 et N13 sont accessibles à moins de 18 km. Il y a une boulangerie et huit commerces dans les environs.Son prix de vente est de 245 900 €.Contactez notre agence (KTARI Aurélie : (Numéro supprimé)) pour plus de renseignements sur cette maison. Les Maisons Extraco Gravigny vous accompagne dans tous vos projets immobiliers et à toutes les étapes de l’achat.
Oulins
TERRAIN ET MAISONGAMME BOISVENTE : maison F5 (97 m²) à OulinsPROCHE BREVAL – MAISON 5 PIÈCES NEUVEEn vente : à deux pas d’Évreux, notre agence Les Maisons Extraco Gravigny est heureuse de vous présenter cette maison de 5 pièces de 97 m² à Oulins (28260). Son intérieur dispose de quatre chambres, d’une cuisine ouverte sur le séjour, deux salles de bains, un cellier et un garage.Le terrain de cette maison est de 313 m².C’est une maison de 2 niveaux. Elle est neuve.Il y a l’École Primaire Michel Brunel à moins de 10 minutes à pied. Niveau transports en commun, on trouve deux gares (Bueil et Bréval) à moins de 10 minutes en voiture. L’autoroute A13 et les nationales N12, N154 et N13 sont accessibles à moins de 18 km. Il y a une boulangerie et plusieurs commerces dans les environs.Elle est à vendre pour la somme de 299 000 €.N’hésitez pas à prendre contact avec notre constructeur (KTARI Aurélie : (Numéro supprimé)) pour toute question sur cette maison.
Oulins
TERRAIN ET MAISONMaison de 6 pièces (211 m²) en vente à OulinsMAISON 6 PIÈCES NEUVE – PROCHE BREVALÀ deux pas d’Évreux, nous sommes heureux de vous présenter en vente à Oulins (28260), cette maison de 6 pièces de 211 m². Son intérieur est composé de quatre chambres, d’une cuisine ouverte sur le séjour, trois salles de bains, un cellier et un garage.Le terrain de la maison s’étend sur 313 m².C’est une maison de 2 niveaux. Elle est neuve.L’École Primaire Michel Brunel est implantée à moins de 10 minutes à pied. Côté transports en commun, on trouve deux gares (Bueil et Bréval) à moins de 10 minutes en voiture. L’autoroute A13 et les nationales N12, N154 et N13 sont accessibles à moins de 18 km. Il y a une boulangerie et des commerces à proximité de la maison.Son prix de vente est de 529 000 €.N’hésitez pas à prendre contact avec Aurélie KTARI (tél : (Numéro supprimé)) pour plus de renseignements sur cette maison, sur les démarches à suivre ou sur les modalités de vente.
Oulins
TERRAINVENTE : terrain de 313 m² à OulinsPROCHE BREVALTerrain de 313 m² en vente à quelques kilomètres de BREVAL. Ce terrain se situe dans Oulins (28260). L’École Primaire Michel Brunel est implantée à moins de 10 minutes à pied. Côté transports, on trouve les gares Bueil et Bréval à moins de 10 minutes en voiture. L’autoroute A13 et les nationales N12, N154 et N13 sont accessibles à moins de 18 km. Il y a une boulangerie et plusieurs commerces à quelques minutes.Il est proposé à l’achat pour 69 900 €. N’hésitez pas à prendre contact avec notre agence (KTARI Aurélie : (Numéro supprimé)) pour obtenir de plus amples renseignements sur ce terrain. Donnez vie à vos projets immobiliers avec Les Maisons Extraco Gravigny.
Houdan
TERRAINVENTE d’un terrain de 635 m² à NeauphlettePROCHE HOUDANÀ vendre à deux pas d’Évreux à Neauphlette (78980), grand terrain. Réalisez-y votre projet immobilier. Il y a plusieurs écoles (maternelle, élémentaire, primaire et collège) à moins de 10 minutes en voiture, tout comme une crèche à moins de 10 minutes à pied. Côté transports en commun, on trouve deux gares (Bréval et Bueil) à moins de 10 minutes en voiture. Il y a des tennis, des bibliothèques, des commerces, quatre supermarchés, des boulangeries, des boucheries-charcuteries et une poissonnerie à proximité du bien. Le marché Boulevard de la Gare a lieu chaque samedi matin.Son prix de vente est de 105 900 €. Prenez contact avec notre agence (Aurélie KTARI : (Numéro supprimé)) pour plus de renseignements sur ce terrain, sur les modalités de vente ou sur les démarches à suivre.
Houdan
TERRAIN ET MAISONLa Queue-les-Yvelines : maison F6 (120 m²) en venteEMPLACEMENT PRIVILÉGIÉ – MAISON 6 PIÈCES NEUVEEn vente : au pied du Transilien N (gare de Garancières-La Queue, 40 min de Paris), notre agence Les Maisons Extraco Chambourcy est heureuse de vous proposer, bénéficiant d’un emplacement privilégié dans La Queue-les-Yvelines (78940), cette maison de 6 pièces de 120 m².Cette maison compte 2 niveaux. Elle offre quatre chambres, une cuisine et deux salles de bains. La maison est neuve.Le terrain du bien s’étend sur 554 m².La propriété se situe dans un secteur convoité. On y trouve trois établissements scolaires ainsi que, comme le Lycée Polyvalent Jean Monnet, Lycée des Métiers de la Vente et de la Gestion ou l’École Élémentaire Marcel Bouquet. Niveau transports, on trouve cinq gares à moins de 10 minutes en voiture. Il y a un tennis à proximité.Elle est à vendre pour la somme de 404 430 €.Prenez contact avec notre agence (Morgane KUD : (Numéro supprimé)) pour plus d’informations sur la maison, sur les modalités de vente et sur les démarches à suivre.
Houdan
TERRAIN ET MAISONVENTE : maison F5 (92 m²) à La Queue-les-YvelinesEMPLACEMENT PRIVILÉGIÉ – MAISON 5 PIÈCES NEUVEÀ quelques minutes du Transilien N (gare de Garancières-La Queue, 40 min de Paris), découvrez cette maison de 5 pièces de plain-pied de 92 m² et de 554 m² de terrain bénéficiant d’un emplacement d’exception dans La Queue-les-Yvelines (78940). Son intérieur offre quatre chambres, une cuisine et une salle de bains.Cette maison est neuve.La maison se trouve dans un secteur prisé. On y trouve trois établissements scolaires ainsi que, parmi lesquels le Lycée Polyvalent Jean Monnet, Lycée des Métiers de la Vente et de la Gestion et l’École Élémentaire Marcel Bouquet. Niveau transports, il y a cinq gares à moins de 10 minutes en voiture. On trouve un tennis à quelques minutes.Elle est proposée à l’achat pour 338 788 €.Contactez notre agence (KUD Morgane : (Numéro supprimé)) pour obtenir de plus amples informations sur la maison. Les Maisons Extraco Chambourcy vous accompagne dans tous vos projets immobiliers et dans toutes vos démarches.
Houdan
TERRAIN ET MAISONLa Queue-les-Yvelines : maison de 3 pièces (142 m²) en venteEMPLACEMENT PRIVILÉGIÉ – MAISON 3 PIÈCES NEUVEEn vente : à proximité de la gare de Garancières-La Queue (Paris à 40 min par le Transilien N), nous sommes heureux de vous proposer, bénéficiant d’un emplacement d’exception dans La Queue-les-Yvelines (78940), cette maison de 3 pièces de 142 m². Son intérieur compte une chambre, une cuisine et une salle de bains.Le terrain de la propriété est de 554 m².Il s’agit d’une maison de 2 niveaux. Elle est neuve.La maison est située dans un quartier attractif. Trois établissements scolaires y sont implantés et, comme le Lycée Polyvalent Jean Monnet, Lycée des Métiers de la Vente et de la Gestion ou l’École Élémentaire Marcel Bouquet. Côté transports, il y a cinq gares à moins de 10 minutes en voiture. Il y a un tennis dans les environs.Elle est à vendre pour la somme de 459 000 €.N’hésitez pas à prendre contact avec Morgane KUD ((Numéro supprimé)) pour plus de renseignements sur la maison, sur les modalités de vente ou sur les démarches à suivre.
L’actualité immobilière à Bû
02/11/2023
30/10/2023
20/10/2023
16/10/2023