Maison à construire à Chartres (28000)
Images
Description
Opportunité à saisir ! Projet de construction d'une maison d'exception BALENCY sur mesure
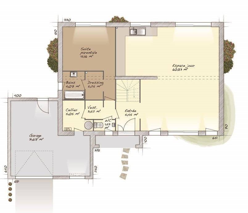
Dans un cadre privilégié, découvrez ce projet unique de construction d'une maison sur mesure, pensée pour allier élégance, confort et prestations haut de gamme. Sur un terrain de 1460 m², cette future propriété offrira une surface habitable de 200 m², conçue selon vos envies et vos exigences.
Caractéristiques principales :
- Architecture contemporaine ou classique selon vos préférences
- Matériaux nobles et finitions de qualité supérieure
- Grands volumes lumineux avec baies vitrées et hauteurs sous plafond
- Cuisine équipée haut de gamme ouverte sur un vaste espace de vie
- Suites parentales avec dressing et salle de bain privative
- Espaces personnalisables : bureau, salle de sport, home cinéma...
- Système de chauffage et climatisation gainable pour un confort thermique optimal et une intégration discrète digne d'un palace
- Domotique intégrée pour un confort optimal
- Jardin paysager avec possibilité de piscine, terrasse, pool house...
Localisation idéale :
Située dans un environnement calme et résidentiel, à proximité des commodités, écoles, transports et axes principaux, cette maison incarne le parfait équilibre entre tranquillité et vie active.
Un projet clé en main :
Accompagnement complet par des professionnels reconnus : architectes, artisans, décorateurs. Vous choisissez, nous réalisons.
Pour plus d'informations, merci de nous contacter au (Numéro supprimé)
Annonce proposée par un Agent Commercial Partenaire.
Logement susceptibles de vous intéresser
Nous vous proposons de découvrir aussi cette sélection de logements situés à moins de 10km de Chartres et qui seraient susceptibles de vous intéresser.
Champhol
TERRAIN ET MAISONVENTE d’une maison F3 (71 m²) à ChampholQUARTIER RECHERCHÉ – MAISON 3 PIÈCES NEUVEÀ vendre : à 2 km de Chartres, nichée dans un quartier prisé de Champhol (28300), laissez vous charmer par cette maison de 3 pièces de plain-pied de 71 m² et de 425 m² de terrain. Conçue de plain-pied, elle offre deux chambres, une cuisine et une salle de bains.Cette maison est neuve.Cette maison se situe dans un secteur attractif. L’École Élémentaire la Mihoue et l’École Maternelle les Alouettes se trouvent à moins de 10 minutes à pied. Côté transports en commun, il y a cinq gares à moins de 10 minutes en voiture. L’autoroute A11 et les nationales N154 et N123 sont accessibles à moins de 5 km. On trouve deux tennis, une boulangerie, un commerce, un supermarché et un bureau de poste dans les environs.Son prix de vente est de 234 600 €.Contactez Laurent VALLIN (tél : (Numéro supprimé)) pour plus de renseignements sur la maison, sur les modalités de vente ou sur les démarches à suivre.Annonce proposée par un Agent Commercial Partenaire.
Champhol
TERRAIN ET MAISONMaison F4 (85 m²) à vendre à ChampholQUARTIER RECHERCHÉ – MAISON 4 PIÈCES NEUVEÀ deux pas de Chartres, en vente dans un quartier prisé de Champhol (28300), nous vous proposons cette maison de 4 pièces de plain-pied de 85 m².Conçue de plain-pied, elle compte trois chambres, une cuisine et une salle de bains. La maison est neuve.Le terrain du bien est de 425 m².Cette maison est située dans un secteur recherché. On trouve l’École Élémentaire la Mihoue et l’École Maternelle les Alouettes à moins de 10 minutes à pied. Niveau transports, il y a cinq gares à moins de 10 minutes en voiture. L’autoroute A11 et les nationales N154 et N123 sont accessibles à moins de 5 km. On trouve deux tennis, une boulangerie, un commerce, un supermarché et un bureau de poste à proximité.Elle est proposée à l’achat pour 248 200 €.Prenez contact avec Laurent VALLIN ((Numéro supprimé)) pour obtenir de plus amples informations sur la propriété, sur les modalités de vente ou sur les démarches à suivre.Annonce proposée par un Agent Commercial Partenaire.
Champhol
TERRAIN ET MAISONChamphol : maison de 5 pièces (101 m²) à vendreQUARTIER RECHERCHÉ – MAISON 5 PIÈCES NEUVEÀ vendre à quelques kilomètres de Chartres, dans un secteur convoité de Champhol (28300), votre agence Maisons France Confort Nogent-le-Phaye est ravie de vous proposer cette maison de 5 pièces de plain-pied de 101 m². Conçue de plain-pied, elle compte quatre chambres, une cuisine et une salle de bains.Le terrain du bien s’étend sur 425 m².La maison est neuve.La maison se trouve dans un quartier recherché. Il y a l’École Élémentaire la Mihoue et l’École Maternelle les Alouettes à moins de 10 minutes à pied. Côté transports en commun, on trouve cinq gares à moins de 10 minutes en voiture. L’autoroute A11 et les nationales N154 et N123 sont accessibles à moins de 5 km. Il y a deux tennis, une boulangerie, un commerce, un supermarché et un bureau de poste dans les environs.Elle est proposée à l’achat pour 274 500 €.Contactez Laurent VALLIN (tél : (Numéro supprimé)) pour tout renseignement sur le bien, sur les modalités de vente ou sur les démarches à suivre. Maisons France Confort Nogent-le-Phaye vous accompagne dans tous vos projets immobiliers et dans toutes vos démarches.Annonce proposée par un Agent Commercial Partenaire.
Champhol
TERRAIN ET MAISONVENTE d’une maison de 4 pièces (81 m²) à ChampholQUARTIER RECHERCHÉ – MAISON 4 PIÈCES NEUVEEn vente à deux pas de Chartres, nous vous présentons cette maison de 4 pièces de plain-pied de 81 m², construite dans un quartier recherché de Champhol (28300). Elle offre trois chambres, une cuisine et une salle de bains.Le terrain du bien est de 425 m².Cette maison est neuve.Cette maison se situe dans un secteur convoité. Il y a l’École Élémentaire la Mihoue et l’École Maternelle les Alouettes à moins de 10 minutes à pied. Niveau transports, on trouve cinq gares à moins de 10 minutes en voiture. L’autoroute A11 et les nationales N154 et N123 sont accessibles à moins de 5 km. Il y a deux tennis, une boulangerie, un commerce, un supermarché et un bureau de poste dans les environs.Elle est à vendre pour la somme de 234 300 €.Contactez notre agence (Laurent VALLIN : (Numéro supprimé)) pour obtenir de plus amples renseignements sur la maison, sur les démarches à suivre ou sur les modalités de vente. Maisons France Confort Nogent-le-Phaye est là pour vous accompagner à toutes les étapes de votre projet.Annonce proposée par un Agent Commercial Partenaire.
Champhol
TERRAIN ET MAISONVENTE d’une maison T4 (78 m²) à ChampholQUARTIER RECHERCHÉ – MAISON 4 PIÈCES NEUVEÀ 2 km de Chartres, en vente construite dans un quartier prisé de Champhol (28300), Maisons France Confort Nogent-le-Phaye vous présente cette maison de 4 pièces de 78 m². Elle se divise en trois chambres, une cuisine et une salle de bains.Le terrain de la maison est de 425 m².C’est une maison de 2 niveaux. Elle est neuve.La propriété est située dans un secteur recherché. Il y a l’École Élémentaire la Mihoue et l’École Maternelle les Alouettes à moins de 10 minutes à pied. Niveau transports, on trouve cinq gares à moins de 10 minutes en voiture. L’autoroute A11 et les nationales N154 et N123 sont accessibles à moins de 5 km. Il y a deux tennis, une boulangerie, un commerce, un supermarché et un bureau de poste à quelques minutes du logement.Son prix de vente est de 259 100 €.Contactez Laurent VALLIN ((Numéro supprimé)) pour obtenir de plus amples informations sur la maison ou sur les modalités de vente. Maisons France Confort Nogent-le-Phaye est là pour vous accompagner à toutes les étapes de votre projet.Annonce proposée par un Agent Commercial Partenaire.
Champhol
TERRAIN ET MAISONMaison T5 (98 m²) en vente à ChampholQUARTIER RECHERCHÉ – MAISON 5 PIÈCES NEUVEEn vente : localisée à 2 km de Chartres, construite dans un quartier prisé de Champhol (28300), votre agence Maisons France Confort Nogent-le-Phaye est heureuse de vous proposer cette maison de 5 pièces de 98 m². Elle propose quatre chambres, une cuisine et une salle de bains.Le terrain de cette maison est de 425 m².Cette maison comporte 2 niveaux. Elle est neuve.La maison se situe dans un secteur attractif. Il y a l’École Élémentaire la Mihoue et l’École Maternelle les Alouettes à moins de 10 minutes à pied. Côté transports, on trouve cinq gares à moins de 10 minutes en voiture. L’autoroute A11 et les nationales N154 et N123 sont accessibles à moins de 5 km. Il y a deux tennis, une boulangerie, un commerce, un supermarché et un bureau de poste à proximité.Elle est à vendre pour la somme de 284 800 €.Contactez Laurent VALLIN ((Numéro supprimé)) pour tout renseignement sur la maison ou sur les modalités de vente. Maisons France Confort Nogent-le-Phaye vous accompagne dans toutes vos démarches et à toutes les étapes de votre projet.Annonce proposée par un Agent Commercial Partenaire.
Champhol
TERRAIN ET MAISONChamphol : maison T5 (90 m²) en venteQUARTIER RECHERCHÉ – MAISON 5 PIÈCES NEUVEEn vente à 2 km de Chartres, Maisons France Confort Nogent-le-Phaye vous présente, construite dans un quartier attractif de Champhol (28300), cette maison de 5 pièces de plain-pied de 90 m².Elle propose trois chambres, une cuisine et une salle de bains. Cette maison est neuve.Le terrain de la propriété s’étend sur 425 m².La maison se trouve dans un secteur convoité. L’École Élémentaire la Mihoue et l’École Maternelle les Alouettes sont implantées à moins de 10 minutes à pied. Côté transports en commun, on trouve cinq gares à moins de 10 minutes en voiture. L’autoroute A11 et les nationales N154 et N123 sont accessibles à moins de 5 km. Il y a deux tennis, une boulangerie, un commerce, un supermarché et un bureau de poste à proximité de la maison.Elle est proposée à l’achat pour 276 900 €.Contactez Laurent VALLIN (tél : (Numéro supprimé)) pour toute question sur la maison.Annonce proposée par un Agent Commercial Partenaire.
Champhol
TERRAIN ET MAISONVENTE : maison de 4 pièces (82 m²) à ChampholQUARTIER RECHERCHÉ – MAISON 4 PIÈCES NEUVEÀ vendre : située à deux pas de Chartres, nous vous proposons, construite dans un quartier attractif de Champhol (28300), cette maison de 4 pièces de 82 m². Elle compte trois chambres, une cuisine et une salle de bains.Le terrain de cette maison est de 425 m².Il s’agit d’une maison de 2 niveaux. Elle est neuve.La maison se trouve dans un secteur recherché. L’École Élémentaire la Mihoue et l’École Maternelle les Alouettes sont implantées à moins de 10 minutes à pied. Côté transports en commun, on trouve cinq gares à moins de 10 minutes en voiture. L’autoroute A11 et les nationales N154 et N123 sont accessibles à moins de 5 km. Il y a deux tennis, une boulangerie, un commerce, un supermarché et un bureau de poste à proximité de la maison.Son prix de vente est de 265 100 €.Contactez notre agence (Laurent VALLIN : (Numéro supprimé)) pour obtenir de plus amples informations sur la maison et sur les démarches à suivre. Maisons France Confort Nogent-le-Phaye vous accompagne dans tous vos projets immobiliers et dans toutes vos démarches.Annonce proposée par un Agent Commercial Partenaire.
Champhol
TERRAIN ET MAISONVENTE d’une maison de 5 pièces (96 m²) à ChampholQUARTIER RECHERCHÉ – MAISON 5 PIÈCES NEUVEÀ 2 km de Chartres, Maisons France Confort Nogent-le-Phaye vous présente cette maison de 5 pièces de 96 m² et de 425 m² de terrain nichée dans un quartier attractif de Champhol (28300).C’est une maison de 2 niveaux. Elle se divise en quatre chambres, une cuisine et une salle de bains. La maison est neuve.Cette propriété est située dans un secteur recherché. L’École Élémentaire la Mihoue et l’École Maternelle les Alouettes sont implantées à moins de 10 minutes à pied. Niveau transports, il y a cinq gares à moins de 10 minutes en voiture. L’autoroute A11 et les nationales N154 et N123 sont accessibles à moins de 5 km. On trouve deux tennis, une boulangerie, un commerce, un supermarché et un bureau de poste à quelques minutes à peine.Son prix de vente est de 278 500 €.Prenez contact avec Laurent VALLIN (tél : (Numéro supprimé)) pour toute information sur la maison ou sur les modalités de vente. Maisons France Confort Nogent-le-Phaye est là pour vous accompagner à toutes les étapes de l’achat.Annonce proposée par un Agent Commercial Partenaire.
L’actualité immobilière à Chartres
27/11/2023
02/11/2023
30/10/2023
20/10/2023
16/10/2023
16/10/2023