Maison à construire à Droue-sur-Drouette (28230)
Images
Description
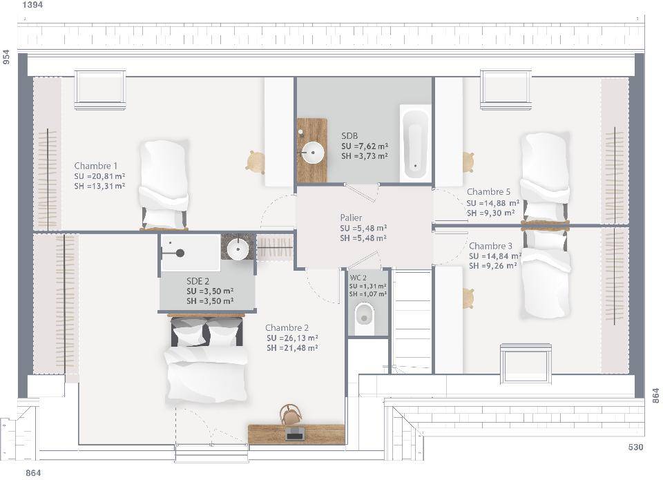
VENTE : maison de 7 pièces (150 m²) à Droue-sur-Drouette
EMPLACEMENT PRIVILÉGIÉ - MAISON 7 PIÈCES NEUVE
À vendre à deux pas de Chartres, nous sommes heureux de vous proposer, bénéficiant d'un emplacement privilégié dans Droue-sur-Drouette (28230), cette maison de 7 pièces de 150 m². Elle offre cinq chambres, une cuisine et deux salles de bains.
Le terrain de la propriété s'étend sur 729 m².
Cette maison compte 2 niveaux. Elle est neuve.
Cette maison se trouve dans un secteur prisé. L'École Maternelle la Chevalerie et l'École Élémentaire la Chevalerie y sont implantées. Côté transports en commun, il y a trois gares (Épernon, Gazeran et Maintenon) à moins de 10 minutes en voiture. La nationale N10 est accessible à 10 km. On trouve un tennis, un commerce et une boulangerie à proximité.
Elle est à vendre pour la somme de 395 488 €.
Contactez notre agence (PINTO Enzo : (Numéro supprimé)) pour toute question sur la maison, sur les modalités de vente ou sur les démarches à suivre. Donnez vie à vos projets immobiliers avec Maisons France Confort Nogent-le-Phaye.
Annonce proposée par un Agent Commercial Partenaire.
Logement susceptibles de vous intéresser
Nous vous proposons de découvrir aussi cette sélection de logements situés à moins de 10km de Droue-sur-Drouette et qui seraient susceptibles de vous intéresser.
Droue-sur-Drouette
TERRAIN ET MAISONVENTE : maison T7 (120 m²) à Droue-sur-DrouetteEMPLACEMENT PRIVILÉGIÉ – MAISON 7 PIÈCES NEUVEEn vente à deux pas de Chartres, Maisons France Confort Nogent-le-Phaye vous présente cette maison de 7 pièces de 120 m² bénéficiant d’un emplacement d’exception dans Droue-sur-Drouette (28230).Cette maison comporte 2 niveaux. Elle dispose de quatre chambres, d’une cuisine et de deux salles de bains. La maison est neuve.Le terrain de la propriété s’étend sur 729 m².Cette maison est située dans un secteur attractif. On y trouve l’École Maternelle la Chevalerie et l’École Élémentaire la Chevalerie. Niveau transports, il y a trois gares (Épernon, Gazeran et Maintenon) à moins de 10 minutes en voiture. La nationale N10 est accessible à 10 km. On trouve un tennis, un commerce et une boulangerie à quelques minutes du logement.Elle est à vendre pour la somme de 384 062 €.N’hésitez pas à prendre contact avec notre agence (Enzo PINTO : (Numéro supprimé)) pour obtenir de plus amples renseignements sur la maison, sur les modalités de vente ou sur les démarches à suivre.Annonce proposée par un Agent Commercial Partenaire.
Droue-sur-Drouette
TERRAIN ET MAISONMaison de 4 pièces (81 m²) à vendre à Droue-sur-DrouetteEMPLACEMENT PRIVILÉGIÉ – MAISON 4 PIÈCES NEUVEEn vente : située à deux pas de Chartres, Maisons France Confort Nogent-le-Phaye vous présente, bénéficiant d’un emplacement d’exception dans Droue-sur-Drouette (28230), cette maison de 4 pièces de plain-pied de 81 m² et de 729 m² de terrain.Son intérieur comporte trois chambres, une cuisine et une salle de bains. La maison est neuve.Cette maison se trouve dans un quartier attractif. On y trouve l’École Maternelle la Chevalerie et l’École Élémentaire la Chevalerie. Niveau transports en commun, il y a trois gares (Épernon, Gazeran et Maintenon) à moins de 10 minutes en voiture. La nationale N10 est accessible à 10 km. On trouve un tennis, un commerce et une boulangerie dans les environs.Son prix de vente est de 272 950 €.Contactez Enzo PINTO (tél : (Numéro supprimé)) pour toute question sur la maison, sur les démarches à suivre ou sur les modalités de vente. Maisons France Confort Nogent-le-Phaye est là pour vous accompagner à toutes les étapes de l’achat.Annonce proposée par un Agent Commercial Partenaire.
Droue-sur-Drouette
TERRAIN ET MAISONDroue-sur-Drouette : maison de 5 pièces (90 m²) à vendreEMPLACEMENT PRIVILÉGIÉ – MAISON 5 PIÈCES NEUVEÀ vendre : localisée à 22 km de Chartres, nous vous proposons, bénéficiant d’un emplacement d’exception dans Droue-sur-Drouette (28230), cette maison de 5 pièces de plain-pied de 90 m² et de 729 m² de terrain. Conçue de plain-pied, elle se divise en trois chambres, une cuisine et une salle de bains.Cette maison est neuve.La maison se situe dans un secteur attractif. L’École Maternelle la Chevalerie et l’École Élémentaire la Chevalerie y sont implantées. Côté transports en commun, on trouve trois gares (Épernon, Gazeran et Maintenon) à moins de 10 minutes en voiture. La nationale N10 est accessible à 10 km. Il y a un tennis, un commerce et une boulangerie à proximité.Son prix de vente est de 305 109 €.Contactez Enzo PINTO ((Numéro supprimé)) pour toute question sur la maison ou sur les modalités de vente. Maisons France Confort Nogent-le-Phaye vous accompagne dans tous vos projets immobiliers et dans toutes vos démarches.Annonce proposée par un Agent Commercial Partenaire.
Droue-sur-Drouette
TERRAIN ET MAISONDroue-sur-Drouette : maison T5 (98 m²) à vendreEMPLACEMENT PRIVILÉGIÉ – MAISON 5 PIÈCES NEUVEEn vente à 22 km de Chartres, nous vous présentons cette maison de 5 pièces de 98 m² et de 729 m² de terrain bénéficiant d’un emplacement privilégié dans Droue-sur-Drouette (28230). Son intérieur inclut quatre chambres, une cuisine et une salle de bains.Cette maison comporte 2 niveaux. Elle est neuve.Cette maison se situe dans un quartier attractif. L’École Maternelle la Chevalerie et l’École Élémentaire la Chevalerie y sont implantées. Niveau transports en commun, on trouve les gares Épernon, Gazeran et Maintenon à moins de 10 minutes en voiture. La nationale N10 est accessible à 10 km. Il y a un tennis, un commerce et une boulangerie à proximité du logement.Son prix de vente est de 300 540 €.Contactez Enzo PINTO ((Numéro supprimé)) pour plus de renseignements sur la maison. Maisons France Confort Nogent-le-Phaye vous accompagne dans tous vos projets immobiliers et dans toutes vos démarches.Annonce proposée par un Agent Commercial Partenaire.
Droue-sur-Drouette
TERRAIN ET MAISONMaison de 5 pièces (89 m²) à vendre à Droue-sur-DrouetteEMPLACEMENT PRIVILÉGIÉ – MAISON 5 PIÈCES NEUVEÀ vendre à 22 km de Chartres, nous vous présentons, bénéficiant d’un emplacement d’exception dans Droue-sur-Drouette (28230), cette maison de 5 pièces de plain-pied de 89 m². Conçue de plain-pied, elle comporte trois chambres, une cuisine et une salle de bains.Le terrain du bien s’étend sur 729 m².La maison est neuve.La maison se trouve dans un quartier recherché. L’École Maternelle la Chevalerie et l’École Élémentaire la Chevalerie y sont implantées. Niveau transports, il y a trois gares (Épernon, Gazeran et Maintenon) à moins de 10 minutes en voiture. La nationale N10 est accessible à 10 km. On trouve un tennis, un commerce et une boulangerie à proximité.Son prix de vente est de 310 388 €.N’hésitez pas à prendre contact avec Enzo PINTO ((Numéro supprimé)) pour plus de renseignements sur la propriété ou sur les démarches à suivre. Concrétisez vos projets immobiliers avec Maisons France Confort Nogent-le-Phaye.Annonce proposée par un Agent Commercial Partenaire.
Droue-sur-Drouette
TERRAIN ET MAISONVENTE : maison de 7 pièces (150 m²) à Droue-sur-DrouetteEMPLACEMENT PRIVILÉGIÉ – MAISON 7 PIÈCES NEUVEÀ vendre à deux pas de Chartres, nous sommes heureux de vous proposer, bénéficiant d’un emplacement privilégié dans Droue-sur-Drouette (28230), cette maison de 7 pièces de 150 m². Elle offre cinq chambres, une cuisine et deux salles de bains.Le terrain de la propriété s’étend sur 729 m².Cette maison compte 2 niveaux. Elle est neuve.Cette maison se trouve dans un secteur prisé. L’École Maternelle la Chevalerie et l’École Élémentaire la Chevalerie y sont implantées. Côté transports en commun, il y a trois gares (Épernon, Gazeran et Maintenon) à moins de 10 minutes en voiture. La nationale N10 est accessible à 10 km. On trouve un tennis, un commerce et une boulangerie à proximité.Elle est à vendre pour la somme de 395 488 €.Contactez notre agence (PINTO Enzo : (Numéro supprimé)) pour toute question sur la maison, sur les modalités de vente ou sur les démarches à suivre. Donnez vie à vos projets immobiliers avec Maisons France Confort Nogent-le-Phaye.Annonce proposée par un Agent Commercial Partenaire.
Droue-sur-Drouette
TERRAIN ET MAISONVENTE d’une maison de 5 pièces (90 m²) à Droue-sur-DrouetteEMPLACEMENT PRIVILÉGIÉ – MAISON 5 PIÈCES NEUVEÀ quelques kilomètres de Chartres, votre agence Maisons France Confort Nogent-le-Phaye est heureuse de vous proposer cette maison de 5 pièces de plain-pied de 90 m² bénéficiant d’un emplacement privilégié dans Droue-sur-Drouette (28230). Elle inclut trois chambres, une cuisine et deux salles de bains.Le terrain de la propriété est de 729 m².Cette maison est neuve.Cette maison se trouve dans un quartier convoité. L’École Maternelle la Chevalerie et l’École Élémentaire la Chevalerie y sont implantées. Côté transports en commun, il y a trois gares (Épernon, Gazeran et Maintenon) à moins de 10 minutes en voiture. La nationale N10 est accessible à 10 km. On trouve un tennis, un commerce et une boulangerie à quelques minutes.Elle est proposée à l’achat pour 298 389 €.Prenez contact avec notre agence (Enzo PINTO : (Numéro supprimé)) pour obtenir de plus amples informations sur la maison.Annonce proposée par un Agent Commercial Partenaire.
Droue-sur-Drouette
TERRAIN ET MAISONMaison F6 (125 m²) à vendre à Droue-sur-DrouetteEMPLACEMENT PRIVILÉGIÉ – MAISON 6 PIÈCES NEUVEEn vente : à quelques kilomètres de Chartres, nous vous proposons cette maison de 6 pièces de 125 m² bénéficiant d’un emplacement d’exception dans Droue-sur-Drouette (28230). Elle comporte quatre chambres, une cuisine et deux salles de bains.Le terrain de la maison s’étend sur 729 m².Cette maison possède 2 niveaux. Elle est neuve.Ce bien est situé dans un secteur attractif. L’École Maternelle la Chevalerie et l’École Élémentaire la Chevalerie y sont implantées. Côté transports, il y a trois gares (Épernon, Gazeran et Maintenon) à moins de 10 minutes en voiture. Il y a un accès à la nationale N10 à 10 km. On trouve un tennis, un commerce et une boulangerie dans les environs.Il est à vendre pour la somme de 371 548 €.Prenez contact avec notre agence (PINTO Enzo : (Numéro supprimé)) pour obtenir de plus amples informations sur la maison ou sur les modalités de vente. Maisons France Confort Nogent-le-Phaye vous accompagne dans tous vos projets immobiliers et dans toutes vos démarches.Annonce proposée par un Agent Commercial Partenaire.
Droue-sur-Drouette
TERRAIN ET MAISONVENTE : maison F6 (100 m²) à Droue-sur-DrouetteEMPLACEMENT PRIVILÉGIÉ – MAISON 6 PIÈCES NEUVEÀ vendre à 22 km de Chartres, bénéficiant d’un emplacement d’exception dans Droue-sur-Drouette (28230), Maisons France Confort Nogent-le-Phaye vous propose cette maison de 6 pièces de 100 m². Elle propose quatre chambres, une cuisine et une salle de bains.Le terrain de la propriété s’étend sur 729 m².C’est une maison de 2 niveaux. Elle est neuve.Cette maison se situe dans un quartier prisé. On y trouve l’École Maternelle la Chevalerie et l’École Élémentaire la Chevalerie. Niveau transports en commun, il y a trois gares (Épernon, Gazeran et Maintenon) à moins de 10 minutes en voiture. Il y a un accès à la nationale N10 à 10 km. On trouve un tennis, un commerce et une boulangerie dans les environs.Elle est à vendre pour la somme de 324 694 €.N’hésitez pas à prendre contact avec Enzo PINTO (tél : (Numéro supprimé)) pour tout renseignement sur la maison, sur les modalités de vente ou sur les démarches à suivre.Annonce proposée par un Agent Commercial Partenaire.
L’actualité immobilière à Droue-sur-Drouette
27/11/2023
02/11/2023
30/10/2023
20/10/2023
16/10/2023
16/10/2023