Maison à construire à Saint-Piat (28130)
Images
Description
« Je me baladais sur l'avenue, le coeur ouvert à l'inconnu... »
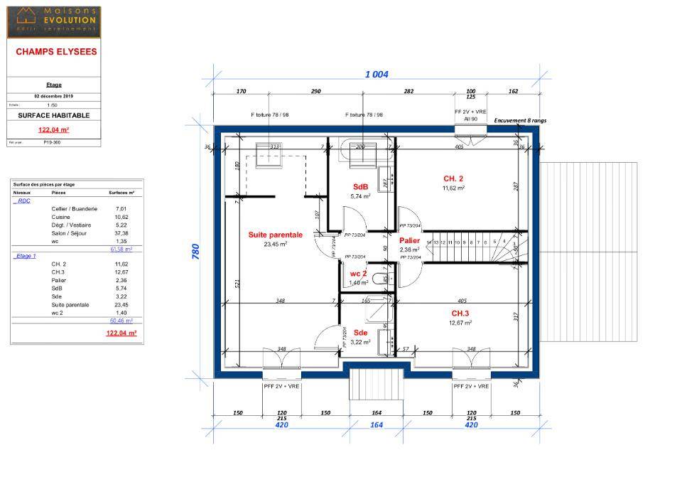
Ou le modèle CHAMPS ELYSEES est caractéristique de par son architecture toute en hauteur : des matériaux nobles, des volumes impressionnants mais surtout une configuration classique avec au rdc, une pièce à vivre de + de 40m², une entrée d'environ 5m² sur un vestibule dégageant de l'espace et offrant de la lumière dans toute la pièce.
La suite parentale de 25m² ainsi que les 2 autres chambres de 11m² environ chacune à l'étage s'articulent autour de 2 salles d'eau/bain et permettent ainsi de vivre en communauté, avec chacun son espace de vie.
En tout, 122m² à modeler selon ses goûts.
Les maîtres-mots de ce modèle : la modernité et l'unicité. MAISONS EVOLUTION (Numéro supprimé)
Annonce proposée par un Agent Commercial Partenaire.
Logement susceptibles de vous intéresser
Nous vous proposons de découvrir aussi cette sélection de logements situés à moins de 10km de Saint-Piat et qui seraient susceptibles de vous intéresser.
Gas
TERRAIN ET MAISONMaison T3 (71 m²) à vendre à GasIDÉALEMENT SITUÉE – MAISON 3 PIÈCES NEUVEEn vente : située à deux pas de Chartres, idéalement située dans Gas (28320), découvrez cette maison de 3 pièces de plain-pied de 71 m² et de 403 m² de terrain.Elle comporte deux chambres, une cuisine et une salle de bains. La maison est neuve.Cette maison se trouve dans un secteur prisé. Des écoles maternelles et élémentaires sont implantées à moins de 10 minutes à pied, tout comme, comme l’École Maternelle École Maternelle de Gas. Côté transports en commun, il y a les gares Épernon, Maintenon et Saint-Piat à moins de 10 minutes en voiture. Les autoroutes A11 et A10 et des nationales sont accessibles à moins de 20 km.Son prix de vente est de 217 100 €.Prenez contact avec notre agence (Laurent VALLIN : (Numéro supprimé)) pour plus de renseignements sur le bien ou sur les modalités de vente. Maisons France Confort Nogent-le-Phaye vous accompagne dans tous vos projets immobiliers et à toutes les étapes de votre projet.Annonce proposée par un Agent Commercial Partenaire.
Gas
TERRAIN ET MAISONVENTE d’une maison T4 (85 m²) à GasIDÉALEMENT SITUÉE – MAISON 4 PIÈCES NEUVEEn vente à quelques kilomètres de Chartres, Maisons France Confort Nogent-le-Phaye vous propose cette maison de 4 pièces de plain-pied de 85 m² et de 403 m² de terrain, idéalement située dans Gas (28320). Elle inclut trois chambres, une cuisine et une salle de bains.Cette maison est neuve.Cette maison se situe dans un quartier attractif. Des écoles primaires sont implantées à moins de 10 minutes à pied, tout comme dont l’École Maternelle École Maternelle de Gas. Niveau transports en commun, il y a trois gares (Épernon, Maintenon et Saint-Piat) à moins de 10 minutes en voiture. Les autoroutes A11 et A10 et des nationales sont accessibles à moins de 20 km.Son prix de vente est de 230 700 €.Contactez Laurent VALLIN (tél : (Numéro supprimé)) pour plus d’informations sur la maison.Annonce proposée par un Agent Commercial Partenaire.
Gas
TERRAIN ET MAISONVENTE d’une maison de 5 pièces (101 m²) à GasIDÉALEMENT SITUÉE – MAISON 5 PIÈCES NEUVEEn vente : à quelques kilomètres de Chartres, laissez vous charmer par cette maison de 5 pièces de plain-pied de 101 m² et de 403 m² de terrain idéalement située dans Gas (28320). Elle compte quatre chambres, une cuisine et une salle de bains.Cette maison est neuve.Cette maison est située dans un quartier prisé. Il y a des écoles maternelles et élémentaires à moins de 10 minutes à pied et dont l’École Maternelle École Maternelle de Gas. Niveau transports en commun, on trouve les gares Épernon, Maintenon et Saint-Piat à moins de 10 minutes en voiture. Les autoroutes A11 et A10 et des nationales sont accessibles à moins de 20 km.Elle est à vendre pour la somme de 257 000 €.Contactez Laurent VALLIN ((Numéro supprimé)) pour toute question sur la maison, sur les démarches à suivre ou sur les modalités de vente.Annonce proposée par un Agent Commercial Partenaire.
Gas
TERRAIN ET MAISONVENTE d’une maison T4 (81 m²) à GasIDÉALEMENT SITUÉE – MAISON 4 PIÈCES NEUVEÀ deux pas de Chartres, à vendre idéalement située dans Gas (28320), nous sommes heureux de vous présenter cette maison de 4 pièces de plain-pied de 81 m² et de 403 m² de terrain.Elle compte trois chambres, une cuisine et une salle de bains. Cette maison est neuve.La maison se trouve dans un secteur convoité. Des écoles maternelles et élémentaires sont implantées à moins de 10 minutes à pied, tout comme dont l’École Maternelle École Maternelle de Gas. Niveau transports en commun, on trouve trois gares (Épernon, Maintenon et Saint-Piat) à moins de 10 minutes en voiture. Les autoroutes A11 et A10 et des nationales sont accessibles à moins de 20 km.Elle est proposée à l’achat pour 216 800 €.N’hésitez pas à prendre contact avec Laurent VALLIN (tél : (Numéro supprimé)) pour plus de renseignements sur le bien, sur les démarches à suivre ou sur les modalités de vente. Faites de vos projets immobiliers une réalité avec Maisons France Confort Nogent-le-Phaye.Annonce proposée par un Agent Commercial Partenaire.
Gas
TERRAIN ET MAISONGas : maison de 4 pièces (78 m²) en venteIDÉALEMENT SITUÉE – MAISON 4 PIÈCES NEUVEÀ 17 km de Chartres, en vente idéalement située dans Gas (28320), ayez le coup de coeur pour cette maison de 4 pièces de 78 m² et de 403 m² de terrain. Elle offre trois chambres, une cuisine et une salle de bains.Cette maison compte 2 niveaux. Elle est neuve.La maison se trouve dans un quartier attractif. Des écoles maternelles et élémentaires sont implantées à moins de 10 minutes à pied, tout comme dont l’École Maternelle École Maternelle de Gas. Niveau transports, on trouve trois gares (Épernon, Maintenon et Saint-Piat) à moins de 10 minutes en voiture. Les autoroutes A11 et A10 et des nationales sont accessibles à moins de 20 km.Elle est à vendre pour la somme de 241 500 €.Contactez Laurent VALLIN (tél : (Numéro supprimé)) pour toute question sur la maison ou sur les démarches à suivre.Annonce proposée par un Agent Commercial Partenaire.
Gas
TERRAIN ET MAISONGas : maison F5 (98 m²) à vendreIDÉALEMENT SITUÉE – MAISON 5 PIÈCES NEUVEÀ vendre : à quelques kilomètres de Chartres, nous sommes heureux de vous présenter cette maison de 5 pièces de 98 m² idéalement située dans Gas (28320).Il s’agit d’une maison de 2 niveaux. Elle offre quatre chambres, une cuisine et une salle de bains. La maison est neuve.Le terrain du bien s’étend sur 403 m².Cette maison se trouve dans un quartier prisé. Des écoles maternelles et élémentaires sont implantées à moins de 10 minutes à pied, tout comme, comme l’École Maternelle École Maternelle de Gas. Niveau transports en commun, on trouve trois gares (Épernon, Maintenon et Saint-Piat) à moins de 10 minutes en voiture. Les autoroutes A11 et A10 et des nationales sont accessibles à moins de 20 km.Elle est à vendre pour la somme de 267 200 €.Contactez notre agence (Laurent VALLIN : (Numéro supprimé)) pour obtenir de plus amples renseignements sur la maison ou sur les démarches à suivre.Annonce proposée par un Agent Commercial Partenaire.
Gas
TERRAIN ET MAISONVENTE d’une maison de 5 pièces (90 m²) à GasIDÉALEMENT SITUÉE – MAISON 5 PIÈCES NEUVEÀ vendre : située à quelques kilomètres de Chartres, notre agence Maisons France Confort Nogent-le-Phaye est ravie de vous proposer cette maison de 5 pièces de plain-pied de 90 m², idéalement située dans Gas (28320).Conçue de plain-pied, elle compte trois chambres, une cuisine et une salle de bains. La maison est neuve.Le terrain du bien s’étend sur 403 m².La maison se situe dans un quartier prisé. Des écoles maternelles et élémentaires sont implantées à moins de 10 minutes à pied, tout comme dont l’École Maternelle École Maternelle de Gas. Côté transports en commun, on trouve les gares Épernon, Maintenon et Saint-Piat à moins de 10 minutes en voiture. Les autoroutes A11 et A10 et des nationales sont accessibles à moins de 20 km.Elle est proposée à l’achat pour 259 500 €.Contactez notre constructeur (Laurent VALLIN : (Numéro supprimé)) pour toute information sur le bien ou sur les démarches à suivre. Maisons France Confort Nogent-le-Phaye est là pour vous accompagner dans tous vos projets immobiliers.Annonce proposée par un Agent Commercial Partenaire.
Gas
TERRAIN ET MAISONGas : maison de 4 pièces (82 m²) à vendreIDÉALEMENT SITUÉE – MAISON 4 PIÈCES NEUVEEn vente : à deux pas de Chartres, idéalement située dans Gas (28320), nous sommes ravis de vous proposer cette maison de 4 pièces de 82 m². Son intérieur offre trois chambres, une cuisine et une salle de bains.Le terrain de la propriété s’étend sur 403 m².Il s’agit d’une maison de 2 niveaux. Elle est neuve.Cette maison est située dans un quartier convoité. Des écoles primaires sont implantées à moins de 10 minutes à pied, tout comme, parmi lesquelles l’École Maternelle École Maternelle de Gas. Niveau transports en commun, il y a trois gares (Épernon, Maintenon et Saint-Piat) à moins de 10 minutes en voiture. Les autoroutes A11 et A10 et des nationales sont accessibles à moins de 20 km.Elle est à vendre pour la somme de 247 600 €.Contactez notre agence (Laurent VALLIN : (Numéro supprimé)) pour obtenir de plus amples renseignements sur la maison.Annonce proposée par un Agent Commercial Partenaire.
Gas
TERRAIN ET MAISONVENTE d’une maison F5 (96 m²) à GasIDÉALEMENT SITUÉE – MAISON 5 PIÈCES NEUVEEn vente : à 17 km de Chartres, idéalement située dans Gas (28320), découvrez cette maison de 5 pièces de 96 m² et de 403 m² de terrain.Il s’agit d’une maison de 2 niveaux. Elle est composée de quatre chambres, d’une cuisine et d’une salle de bains. La maison est neuve.La maison se situe dans un secteur recherché. On trouve des écoles primaires à moins de 10 minutes à pied et, comme l’École Maternelle École Maternelle de Gas. Niveau transports en commun, il y a les gares Épernon, Maintenon et Saint-Piat à moins de 10 minutes en voiture. Les autoroutes A11 et A10 et des nationales sont accessibles à moins de 20 km.Elle est proposée à l’achat pour 261 000 €.Contactez Laurent VALLIN ((Numéro supprimé)) pour toute information sur la maison.Annonce proposée par un Agent Commercial Partenaire.
L’actualité immobilière à Saint-Piat
27/11/2023
02/11/2023
30/10/2023
20/10/2023
16/10/2023
16/10/2023