Maison à construire à Saint-Piat (28130)
Images
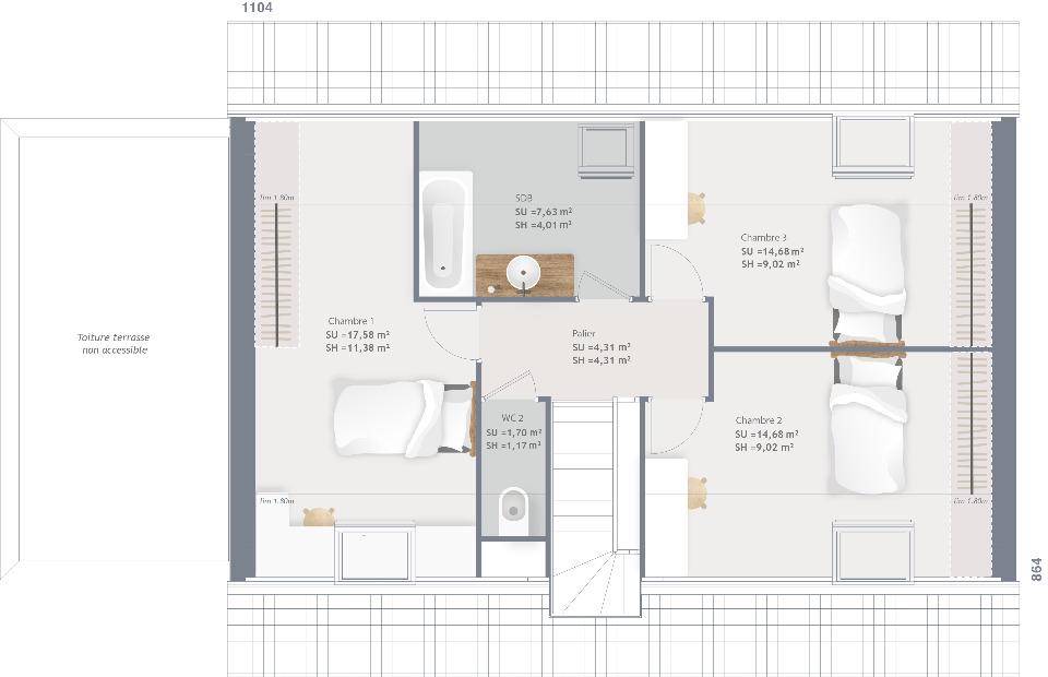
Description
L'agence Maisons France Confort de Coignières propose ce magnifique projet, très attractif pour son lieu, ses prestations et son prix avec par exemple ce modèle R+combles aménagés (photo non contractuelle). Au rez-de-chaussée, une cuisine ouverte sur le séjour qui offre un espace de vie spacieux et harmonieux de plus de 45 m². Un cellier, un WC et une suite parentale avec dressing et salle d'eau privative complète ce rez-de-chaussée. La distribution de l'étage optimise l'espace autour d'un palier, 3 grandes chambres, 1 salle de bains et 1 WC indépendant. Norme RE2020, chauffage PAC plancher chauffant, domotique sur les volets roulants... Modèle personnalisable en fonction de votre mode de vie, vos envies et budget.
Les plus Maisons France Confort : une expérience solide de presque 100 ans, la maitrise de projets sur mesure, la sécurité du premier constructeur national.
Le prix de cette annonce inclus le terrain, le modèle de maison proposé en exemple ainsi que tous les frais de viabilisation, raccordements, évacuation de terres excédentaires, accès chantier etc...pour rappel les frais de notaire sur le terrain et les taxes, les clôtures, l'ameublement et la décoration ne sont pas inclus.
Pour d'avantage de précisions et pour un devis de construction personnalisé avant visite du terrain contactez votre agence Maisons France Confort de Coignières au (Numéro supprimé) ou (Numéro supprimé)
Annonce proposée par un Agent Commercial Partenaire.
Logement susceptibles de vous intéresser
Nous vous proposons de découvrir aussi cette sélection de logements situés à moins de 10km de Saint-Piat et qui seraient susceptibles de vous intéresser.
Berchères-Saint-Germain
TERRAIN ET MAISONImaginez votre maison Natishen sur ce beau terrain de 595 m² à Berchères-Saint-Germain, un cadre paisible à deux pas de Chartres.Alliant modernité et confort, la Natishen est une maison ossature bois au design élégant, pensée pour s’adapter harmonieusement à son environnement. Sa pièce de vie lumineuse s’ouvre largement sur le jardin grâce à ses grandes baies vitrées, offrant un espace convivial et chaleureux au quotidien.Le coin nuit, bien séparé, se compose de 3 chambres confortables, d’une salle de bain spacieuse, et de rangements optimisés pour un quotidien pratique.Le tout est complété par un poêle à granulés, garantissant une chaleur douce et homogène tout au long de l’année, tout en maîtrisant votre consommation énergétique.Un cocon moderne et respectueux de l’environnement, idéal pour une vie de famille épanouie à la campagne, sans renoncer à la proximité de la ville. Le prix comprend le terrain (71 000 €) et la construction de la maison sur vide sanitaire (hors frais de notaire, VRD et aménagements extérieurs). Terrain sous réserve de disponibilité auprès de notre partenaire foncier.
Berchères-Saint-Germain
TERRAINSitué dans un charmant village de l’Eure-et-Loir, à seulement 10 minutes de Chartres, ce beau terrain à bâtir de 595 m² vous offre l’opportunité de concrétiser votre projet de construction dans un cadre calme et verdoyant.Berchères-Saint-Germain bénéficie d’un environnement privilégié : école maternelle et primaire sur place, commerces et services à proximité, et accès rapide à la RN154 pour rejoindre Chartres ou Dreux. La gare de Chartres, à moins de 15 minutes, permet de rallier Paris-Montparnasse en une heure environ.Ce terrain, bien proportionné et idéalement exposé, offre une façade agréable permettant de nombreuses configurations de construction. Parfait pour accueillir votre future maison dans un secteur recherché, entre nature et commodités.Prix : 71 000 €Terrain proposé par notre partenaire foncier. En tant que constructeur, nous ne réalisons pas la vente du terrain seul.
Saint-Piat
TERRAINL’agence Maisons France Confort de Coignières propose en partenariat avec un aménageur foncier ce superbe terrain sur la charmante commune de Saint Piat – Maintenon, à 500 m de la Gare, entre Chartres et Rambouillet et à 6 min d’Epernon, cette commune très recherchée attire par son charme, son calme et sa proximité des commodités, superbe produit !Terrain plat, vendu entièrement viabilisé, projet sur mesure à réaliser.Pour d’avantage de précisions, un devis de construction personnalisé tout compris et une visite de ce terrain contactez sans tarder votre agence Maisons France Confort de Coignières au (Numéro supprimé) ou (Numéro supprimé)Annonce proposée par un Agent Commercial Partenaire.
Saint-Piat
TERRAIN ET MAISONL’agence Maisons France Confort de Coignières propose ce magnifique projet, très attractif pour son lieu, ses prestations et son prix avec par exemple ce modèle R+combles aménagés (photo non contractuelle). Au rez-de-chaussée, une cuisine ouverte sur le séjour qui offre un espace de vie spacieux et harmonieux de plus de 45 m². Un cellier, un WC et une suite parentale avec dressing et salle d’eau privative complète ce rez-de-chaussée. La distribution de l’étage optimise l’espace autour d’un palier, 3 grandes chambres, 1 salle de bains et 1 WC indépendant. Norme RE2020, chauffage PAC plancher chauffant, domotique sur les volets roulants… Modèle personnalisable en fonction de votre mode de vie, vos envies et budget.Les plus Maisons France Confort : une expérience solide de presque 100 ans, la maitrise de projets sur mesure, la sécurité du premier constructeur national.Le prix de cette annonce inclus le terrain, le modèle de maison proposé en exemple ainsi que tous les frais de viabilisation, raccordements, évacuation de terres excédentaires, accès chantier etc…pour rappel les frais de notaire sur le terrain et les taxes, les clôtures, l’ameublement et la décoration ne sont pas inclus.Pour d’avantage de précisions et pour un devis de construction personnalisé avant visite du terrain contactez votre agence Maisons France Confort de Coignières au (Numéro supprimé) ou (Numéro supprimé)Annonce proposée par un Agent Commercial Partenaire.
Saint-Piat
TERRAIN ET MAISONL’agence Maisons France Confort de Coignières propose ce magnifique projet, très attractif pour son lieu, ses prestations et son prix avec par exemple ce modèle R+combles aménagés (photo non contractuelle). Au rez-de-chaussée, une cuisine ouverte sur le séjour qui offre un espace de vie spacieux et harmonieux de plus de 40 m². Un cellier, un WC et un bureau complète ce rez-de-chaussée. La distribution de l’étage optimise l’espace autour d’un palier, 3 chambres, 1 salle de bains et 1 WC indépendant. Norme RE2020, chauffage PAC, domotique sur les volets roulants… Modèle personnalisable en fonction de votre mode de vie, vos envies et budget.Les plus Maisons France Confort : une expérience solide de presque 100 ans, la maitrise de projets sur mesure, la sécurité du premier constructeur national.Le prix de cette annonce inclus le terrain, le modèle de maison proposé en exemple ainsi que tous les frais de viabilisation, raccordements, évacuation de terres excédentaires, accès chantier etc…pour rappel les frais de notaire sur le terrain et les taxes, les clôtures, l’ameublement et la décoration ne sont pas inclus.Pour d’avantage de précisions et pour un devis de construction personnalisé avant visite du terrain contactez votre agence Maisons France Confort de Coignières au (Numéro supprimé) ou (Numéro supprimé)Annonce proposée par un Agent Commercial Partenaire.
Gas
TERRAIN ET MAISONMaison T3 (71 m²) à vendre à GasIDÉALEMENT SITUÉE – MAISON 3 PIÈCES NEUVEEn vente : située à deux pas de Chartres, idéalement située dans Gas (28320), découvrez cette maison de 3 pièces de plain-pied de 71 m² et de 403 m² de terrain.Elle comporte deux chambres, une cuisine et une salle de bains. La maison est neuve.Cette maison se trouve dans un secteur prisé. Des écoles maternelles et élémentaires sont implantées à moins de 10 minutes à pied, tout comme, comme l’École Maternelle École Maternelle de Gas. Côté transports en commun, il y a les gares Épernon, Maintenon et Saint-Piat à moins de 10 minutes en voiture. Les autoroutes A11 et A10 et des nationales sont accessibles à moins de 20 km.Son prix de vente est de 217 100 €.Prenez contact avec notre agence (Laurent VALLIN : (Numéro supprimé)) pour plus de renseignements sur le bien ou sur les modalités de vente. Maisons France Confort Nogent-le-Phaye vous accompagne dans tous vos projets immobiliers et à toutes les étapes de votre projet.Annonce proposée par un Agent Commercial Partenaire.
Gas
TERRAIN ET MAISONVENTE d’une maison T4 (85 m²) à GasIDÉALEMENT SITUÉE – MAISON 4 PIÈCES NEUVEEn vente à quelques kilomètres de Chartres, Maisons France Confort Nogent-le-Phaye vous propose cette maison de 4 pièces de plain-pied de 85 m² et de 403 m² de terrain, idéalement située dans Gas (28320). Elle inclut trois chambres, une cuisine et une salle de bains.Cette maison est neuve.Cette maison se situe dans un quartier attractif. Des écoles primaires sont implantées à moins de 10 minutes à pied, tout comme dont l’École Maternelle École Maternelle de Gas. Niveau transports en commun, il y a trois gares (Épernon, Maintenon et Saint-Piat) à moins de 10 minutes en voiture. Les autoroutes A11 et A10 et des nationales sont accessibles à moins de 20 km.Son prix de vente est de 230 700 €.Contactez Laurent VALLIN (tél : (Numéro supprimé)) pour plus d’informations sur la maison.Annonce proposée par un Agent Commercial Partenaire.
Gas
TERRAIN ET MAISONVENTE d’une maison de 5 pièces (101 m²) à GasIDÉALEMENT SITUÉE – MAISON 5 PIÈCES NEUVEEn vente : à quelques kilomètres de Chartres, laissez vous charmer par cette maison de 5 pièces de plain-pied de 101 m² et de 403 m² de terrain idéalement située dans Gas (28320). Elle compte quatre chambres, une cuisine et une salle de bains.Cette maison est neuve.Cette maison est située dans un quartier prisé. Il y a des écoles maternelles et élémentaires à moins de 10 minutes à pied et dont l’École Maternelle École Maternelle de Gas. Niveau transports en commun, on trouve les gares Épernon, Maintenon et Saint-Piat à moins de 10 minutes en voiture. Les autoroutes A11 et A10 et des nationales sont accessibles à moins de 20 km.Elle est à vendre pour la somme de 257 000 €.Contactez Laurent VALLIN ((Numéro supprimé)) pour toute question sur la maison, sur les démarches à suivre ou sur les modalités de vente.Annonce proposée par un Agent Commercial Partenaire.
Gas
TERRAIN ET MAISONVENTE d’une maison T4 (81 m²) à GasIDÉALEMENT SITUÉE – MAISON 4 PIÈCES NEUVEÀ deux pas de Chartres, à vendre idéalement située dans Gas (28320), nous sommes heureux de vous présenter cette maison de 4 pièces de plain-pied de 81 m² et de 403 m² de terrain.Elle compte trois chambres, une cuisine et une salle de bains. Cette maison est neuve.La maison se trouve dans un secteur convoité. Des écoles maternelles et élémentaires sont implantées à moins de 10 minutes à pied, tout comme dont l’École Maternelle École Maternelle de Gas. Niveau transports en commun, on trouve trois gares (Épernon, Maintenon et Saint-Piat) à moins de 10 minutes en voiture. Les autoroutes A11 et A10 et des nationales sont accessibles à moins de 20 km.Elle est proposée à l’achat pour 216 800 €.N’hésitez pas à prendre contact avec Laurent VALLIN (tél : (Numéro supprimé)) pour plus de renseignements sur le bien, sur les démarches à suivre ou sur les modalités de vente. Faites de vos projets immobiliers une réalité avec Maisons France Confort Nogent-le-Phaye.Annonce proposée par un Agent Commercial Partenaire.
L’actualité immobilière à Saint-Piat
27/11/2023
02/11/2023
30/10/2023
20/10/2023
16/10/2023
16/10/2023