Maison à construire à Ver-lès-Chartres (28630)
Images
Description
Maison F7 (150 m²) en vente à Ver-lès-Chartres
EMPLACEMENT PRIVILÉGIÉ - MAISON 7 PIÈCES NEUVE
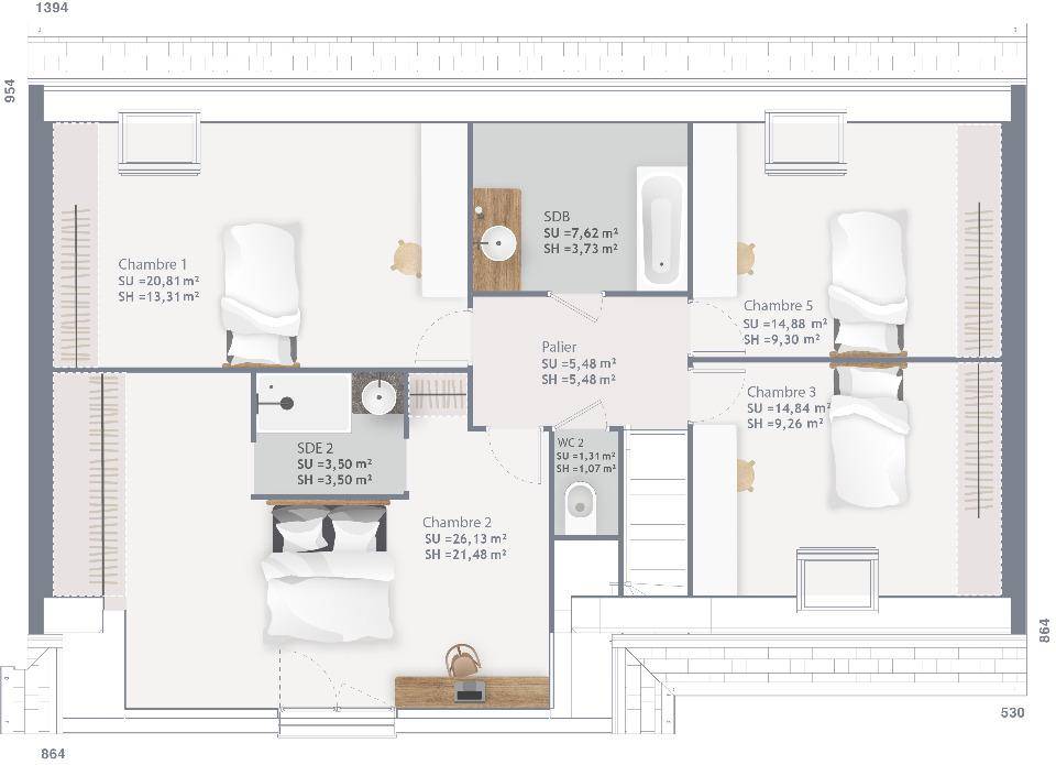
À vendre à quelques kilomètres de Chartres, ayez le coup de coeur pour cette maison de 7 pièces de 150 m² et de 511 m² de terrain bénéficiant d'un emplacement d'exception dans Ver-lès-Chartres (28630). Son intérieur dispose de cinq chambres, d'une cuisine et de deux salles de bains.
Cette maison compte 2 niveaux. Elle est neuve.
Cette maison se trouve dans un quartier prisé. On y trouve une école primaire. Niveau transports en commun, il y a quatre gares à moins de 10 minutes en voiture. L'autoroute A11 et les nationales N123 et N154 sont accessibles à moins de 6 km. On trouve un tennis et une boulangerie à quelques minutes.
Son prix de vente est de 370 276 €.
Prenez contact avec Enzo PINTO ((Numéro supprimé)) pour obtenir de plus amples informations sur le bien ou sur les démarches à suivre.
Annonce proposée par un Agent Commercial Partenaire.
Logement susceptibles de vous intéresser
Nous vous proposons de découvrir aussi cette sélection de logements situés à moins de 10km de Ver-lès-Chartres et qui seraient susceptibles de vous intéresser.
Mignières
TERRAINMignières : terrain de 750 m² en venteIDÉALEMENT SITUÉ – PROCHE DE CHARTRESÀ deux pas de Chartres à Mignières (28630), grand terrain. Dans un secteur prisé, le terrain idéalement situé est proche des commerces et des écoles. Le Collège Privé Saint-Jacques de Compostelle, le Lycée Agricole Privé Franz Stock de Mignières et l’École Primaire les Blés En Herbe sont implantés à moins de 10 minutes à pied. Côté transports, il y a quatre gares à moins de 10 minutes en voiture. L’autoroute A11 et les nationales N123 et N154 sont accessibles à moins de 10 km. On trouve une boulangerie à quelques minutes à peine.Il est proposé à l’achat pour 98 900 €. Prenez contact avec Laurent VALLIN (tél : (Numéro supprimé)) pour toute question sur ce terrain ou sur les démarches à suivre.Annonce proposée par un Agent Commercial Partenaire.
Chartres
TERRAIN ET MAISONVENTE d’une maison de 3 pièces (71 m²) à ChartresEMPLACEMENT PRIVILÉGIÉ – MAISON 3 PIÈCES NEUVENous sommes heureux de vous proposer à vendre, bénéficiant d’un emplacement privilégié dans Chartres (28000), cette maison de 3 pièces de plain-pied de 71 m². Elle compte deux chambres, une cuisine et une salle de bains.Le terrain du bien s’étend sur 844 m².La maison est neuve.Cette maison se trouve dans un quartier convoité. Il y a tous les types d’établissements scolaires (maternelle, élémentaire et secondaire) à moins de 10 minutes à pied, tout comme une structure d’accueil pour la petite enfance. Côté transports en commun, on trouve la gare Chartres à proximité. L’autoroute A11 et les nationales N123 et N154 sont accessibles à moins de 4 km. Il y a des commerces, des boulangeries, deux supermarchés, une supérette et deux bureaux de poste dans les environs. Enfin, le marché Place Billard anime les environs tous les samedis matin.Elle est à vendre pour la somme de 290 181 €.Contactez notre agence (PINTO Enzo : (Numéro supprimé)) pour plus de renseignements sur la maison. Maisons France Confort Nogent-le-Phaye vous accompagne dans toutes vos démarches et à toutes les étapes de votre projet.Annonce proposée par un Agent Commercial Partenaire.
Chartres
TERRAIN ET MAISONVENTE d’une maison F7 (120 m²) à ChartresEMPLACEMENT PRIVILÉGIÉ – MAISON 7 PIÈCES NEUVEEn vente : nous sommes heureux de vous présenter cette maison de 7 pièces de 120 m² et de 844 m² de terrain bénéficiant d’un emplacement d’exception dans Chartres (28000).C’est une maison de 2 niveaux. Son intérieur compte quatre chambres, une cuisine et deux salles de bains. La maison est neuve.La maison est située dans un secteur prisé. Des écoles de tous niveaux se trouvent à moins de 10 minutes à pied, tout comme une crèche. Côté transports, il y a la gare Chartres dans un rayon de 1 km. L’autoroute A11 et les nationales N123 et N154 sont accessibles à moins de 4 km. On trouve des commerces, des boulangeries, deux supermarchés, des boucheries-charcuteries et une poissonnerie à proximité du bien. Ne manquez pas le marché Place Billard chaque samedi matin.Elle est proposée à l’achat pour 419 372 €.Contactez Enzo PINTO ((Numéro supprimé)) pour toute information sur la maison ou sur les démarches à suivre. Faites de vos projets immobiliers une réalité avec Maisons France Confort Nogent-le-Phaye.Annonce proposée par un Agent Commercial Partenaire.
Chartres
TERRAIN ET MAISONMaison de 4 pièces (81 m²) à vendre à ChartresEMPLACEMENT PRIVILÉGIÉ – MAISON 4 PIÈCES NEUVEEn vente bénéficiant d’un emplacement privilégié dans Chartres (28000), Maisons France Confort Nogent-le-Phaye vous présente cette maison de 4 pièces de plain-pied de 81 m².Son intérieur dispose de trois chambres, d’une cuisine et d’une salle de bains. La maison est neuve.Le terrain du bien est de 844 m².Cette maison se situe dans un quartier recherché. On trouve tous les types d’écoles à moins de 10 minutes à pied, tout comme une structure d’accueil pour les enfants en bas âge. Côté transports, il y a la gare Chartres juste à côté. L’autoroute A11 et les nationales N123 et N154 sont accessibles à moins de 4 km. On trouve des commerces, des boulangeries, deux supermarchés, une poissonnerie et une supérette dans les environs. Le marché Place Billard anime les environs tous les samedis matin.Son prix de vente est de 308 260 €.Contactez Enzo PINTO (tél : (Numéro supprimé)) pour obtenir de plus amples informations sur la maison.Annonce proposée par un Agent Commercial Partenaire.
Chartres
TERRAIN ET MAISONMaison F5 (90 m²) à vendre à ChartresEMPLACEMENT PRIVILÉGIÉ – MAISON 5 PIÈCES NEUVEEn vente bénéficiant d’un emplacement privilégié dans Chartres (28000), nous sommes heureux de vous proposer cette maison de 5 pièces de plain-pied de 90 m² et de 844 m² de terrain. Son intérieur se divise en trois chambres, une cuisine et une salle de bains.Cette maison est neuve.Cette propriété est située dans un secteur attractif. Des établissements scolaires de tous niveaux (de la maternelle au lycée) se trouvent à moins de 10 minutes à pied, tout comme une crèche. Niveau transports, il y a la gare Chartres juste à côté. L’autoroute A11 et les nationales N123 et N154 sont accessibles à moins de 4 km. On trouve des commerces, des boulangeries, deux supermarchés, des épiceries et une poissonnerie à proximité de la maison. Le marché Place Billard a lieu chaque samedi matin.Son prix de vente est de 340 419 €.N’hésitez pas à prendre contact avec Enzo PINTO (tél : (Numéro supprimé)) pour toute information sur la maison.Annonce proposée par un Agent Commercial Partenaire.
Chartres
TERRAIN ET MAISONMaison de 5 pièces (98 m²) à vendre à ChartresEMPLACEMENT PRIVILÉGIÉ – MAISON 5 PIÈCES NEUVENotre agence Maisons France Confort Nogent-le-Phaye est ravie de vous présenter cette maison de 5 pièces de 98 m² et de 844 m² de terrain bénéficiant d’un emplacement privilégié dans Chartres (28000).C’est une maison de 2 niveaux. Son intérieur comporte quatre chambres, une cuisine et une salle de bains. Cette maison est neuve.Cette maison est située dans un quartier attractif. Des écoles de tous niveaux se trouvent à moins de 10 minutes à pied, tout comme une structure d’accueil pour la petite enfance. Niveau transports en commun, il y a la gare Chartres à proximité. L’autoroute A11 et les nationales N123 et N154 sont accessibles à moins de 4 km. On trouve des commerces, des boulangeries, deux supermarchés, deux bureaux de poste et des boucheries-charcuteries à quelques minutes du bien. Ne manquez pas le marché Place Billard chaque samedi matin.Elle est à vendre pour la somme de 335 850 €.Prenez contact avec notre constructeur (Enzo PINTO : (Numéro supprimé)) pour tout renseignement sur la maison ou sur les démarches à suivre. Maisons France Confort Nogent-le-Phaye vous accompagne à toutes les étapes de l’achat et dans tous vos projets immobiliers.Annonce proposée par un Agent Commercial Partenaire.
Chartres
TERRAIN ET MAISONMaison F5 (89 m²) à vendre à ChartresEMPLACEMENT PRIVILÉGIÉ – MAISON 5 PIÈCES NEUVEEn vente : nous sommes heureux de vous présenter, bénéficiant d’un emplacement d’exception dans Chartres (28000), cette maison de 5 pièces de plain-pied de 89 m² et de 844 m² de terrain. Son intérieur dispose de trois chambres, d’une cuisine et d’une salle de bains.La maison est neuve.Cette maison se situe dans un quartier convoité. Des établissements scolaires du primaire et du secondaire sont implantés à moins de 10 minutes à pied, tout comme une crèche. Niveau transports en commun, on trouve la gare Chartres à proximité. L’autoroute A11 et les nationales N123 et N154 sont accessibles à moins de 4 km. Il y a des commerces, des boulangeries, deux supermarchés, des épiceries et des boucheries-charcuteries dans les environs. Enfin, le marché Place Billard anime les environs chaque samedi matin.Elle est proposée à l’achat pour 345 698 €.Prenez contact avec notre agence (PINTO Enzo : (Numéro supprimé)) pour toute information sur le bien. Maisons France Confort Nogent-le-Phaye est là pour vous accompagner à toutes les étapes de votre projet.Annonce proposée par un Agent Commercial Partenaire.
Chartres
TERRAIN ET MAISONChartres : maison de 7 pièces (150 m²) en venteEMPLACEMENT PRIVILÉGIÉ – MAISON 7 PIÈCES NEUVEEn vente : votre agence Maisons France Confort Nogent-le-Phaye est ravie de vous proposer, bénéficiant d’un emplacement d’exception dans Chartres (28000), cette maison de 7 pièces de 150 m².Il s’agit d’une maison de 2 niveaux. Elle est composée de cinq chambres, d’une cuisine et de deux salles de bains. Cette maison est neuve.Le terrain de la propriété s’étend sur 844 m².La maison se situe dans un secteur prisé. On trouve des écoles de tous niveaux à moins de 10 minutes à pied, tout comme une structure d’accueil pour la petite enfance. Niveau transports, il y a la gare Chartres dans les environs. L’autoroute A11 et les nationales N123 et N154 sont accessibles à moins de 4 km. On trouve des commerces, des boulangeries, deux supermarchés, une supérette et deux bureaux de poste à quelques minutes à peine. Ne manquez pas le marché Place Billard tous les samedis matin.Elle est à vendre pour la somme de 430 798 €.Prenez contact avec notre agence (Enzo PINTO : (Numéro supprimé)) pour toute question sur la maison, sur les démarches à suivre et sur les modalités de vente. Faites de vos projets immobiliers une réalité avec Maisons France Confort Nogent-le-Phaye.Annonce proposée par un Agent Commercial Partenaire.
Chartres
TERRAIN ET MAISONVENTE d’une maison de 5 pièces (90 m²) à ChartresEMPLACEMENT PRIVILÉGIÉ – MAISON 5 PIÈCES NEUVEEn vente : bénéficiant d’un emplacement d’exception dans Chartres (28000), votre agence Maisons France Confort Nogent-le-Phaye est heureuse de vous présenter cette maison de 5 pièces de plain-pied de 90 m² et de 844 m² de terrain.Conçue de plain-pied, elle est composée de trois chambres, d’une cuisine et de deux salles de bains. Cette maison est neuve.La propriété est située dans un quartier attractif. On trouve tous les types d’écoles (de la maternelle au lycée) à moins de 10 minutes à pied, tout comme une crèche. Côté transports en commun, il y a la gare Chartres juste à côté. L’autoroute A11 et les nationales N123 et N154 sont accessibles à moins de 4 km. On trouve des commerces, des boulangeries, deux supermarchés, une supérette et des boucheries-charcuteries dans les environs. Le marché Place Billard anime le quartier chaque samedi matin.Elle est proposée à l’achat pour 333 699 €.Contactez notre agence (Enzo PINTO : (Numéro supprimé)) pour plus d’informations sur la maison, sur les démarches à suivre ou sur les modalités de vente. Concrétisez vos projets immobiliers avec Maisons France Confort Nogent-le-Phaye.Annonce proposée par un Agent Commercial Partenaire.
L’actualité immobilière à Ver-lès-Chartres
27/11/2023
02/11/2023
30/10/2023
20/10/2023
16/10/2023
16/10/2023