Maison à construire à Baye (29300)
Images
Description
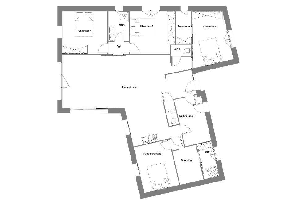
VENTE : maison de 5 pièces (145 m²) à Baye
MAISON 5 PIÈCES NEUVE - PROCHE DE LORIENT
À 9 km de l'océan Atlantique et à deux pas de Lorient, laissez vous charmer par cette maison de 5 pièces de plain-pied de 145 m² à Baye (29300). Son intérieur propose quatre chambres, une cuisine et deux salles de bains.
Le terrain de la propriété s'étend sur 650 m².
Cette maison est neuve.
Il y a l'École Primaire Publique de Baye à moins de 10 minutes à pied. Niveau transports, on trouve la gare Quimperlé à moins de 10 minutes en voiture. Il y a un accès à la nationale N165 à 2 km. Il y a une bibliothèque, une boulangerie, un commerce et une boucherie-charcuterie à proximité de la maison.
Elle est à vendre pour la somme de 373 335 €.
N'hésitez pas à prendre contact avec Marie LAURENT (tél : (Numéro supprimé)) pour toute information sur la maison, sur les démarches à suivre ou sur les modalités de vente. Maisons de l'Avenir Quimper vous accompagne dans tous vos projets immobiliers et dans toutes vos démarches.
Logement susceptibles de vous intéresser
Nous vous proposons de découvrir aussi cette sélection de logements situés à moins de 10km de Baye et qui seraient susceptibles de vous intéresser.
Riec-sur-Bélon
TERRAINVENTE d’un terrain de 1 462 m² à Riec-sur-BélonPROCHE DE LORIENTÀ Riec-sur-Bélon (29340) à 10 km de la côte atlantique et à quelques kilomètres de Lorient, venez découvrir ce terrain de 1 462 m². Il bénéficie d’une exposition sud-ouest. Des écoles maternelles et élémentaires sont implantées dans la commune. Niveau transports, il y a la gare Bannalec à moins de 10 minutes en voiture. On trouve un accès à la nationale N165 à 4 km. On trouve une bibliothèque et un supermarché dans les environs.Il est proposé à l’achat pour 146 300 €. Contactez Marie LAURENT (tél : (Numéro supprimé)) pour toute question sur ce terrain ou sur les démarches à suivre.
Riec-sur-Bélon
TERRAIN ET MAISONMaison de 4 pièces (125 m²) à vendre à Riec-sur-BélonMAISON 4 PIÈCES NEUVE – PROCHE DE LORIENTÀ vendre : localisée à 10 km de la côte atlantique et à deux pas de Lorient, votre agence Maisons de l’Avenir Quimper est ravie de vous proposer cette maison de 4 pièces de plain-pied de 125 m² et de 1 462 m² de terrain à Riec-sur-Bélon (29340).Son intérieur dispose de trois chambres, d’une cuisine et de deux salles de bains. Cette maison est neuve.Il y a des écoles primaires dans la commune. Côté transports, on trouve la gare Bannalec à moins de 10 minutes en voiture. Il y a un accès à la nationale N165 à 4 km. Il y a une bibliothèque et un supermarché à quelques minutes de la maison.Son prix de vente est de 417 500 €.N’hésitez pas à prendre contact avec Marie LAURENT (tél : (Numéro supprimé)) pour toute question sur cette maison ou sur les modalités de vente.
Riec-sur-Bélon
TERRAIN ET MAISONVENTE : maison de 5 pièces (150 m²) à Riec-sur-BélonPROCHE DE LORIENT – MAISON 5 PIÈCES NEUVEEn vente : à 10 km de l’océan Atlantique et à 25 km de Lorient, à Riec-sur-Bélon (29340), Maisons de l’Avenir Quimper vous présente cette maison de 5 pièces de 150 m² et de 1 462 m² de terrain.Il s’agit d’une maison de 2 niveaux. Son intérieur se divise en quatre chambres, une cuisine et deux salles de bains. La maison est neuve.Il y a des écoles maternelles et élémentaires dans la commune. Côté transports en commun, on trouve la gare Bannalec à moins de 10 minutes en voiture. Il y a un accès à la nationale N165 à 4 km. Il y a une bibliothèque et un supermarché à quelques minutes à peine.Elle est à vendre pour la somme de 476 300 €.Contactez notre agence (LAURENT Marie : (Numéro supprimé)) pour toute question sur cette maison. Faites de vos projets immobiliers une réalité avec Maisons de l’Avenir Quimper.
Riec-sur-Bélon
TERRAIN ET MAISONVENTE : maison F5 (139 m²) à Riec-sur-BélonPROCHE DE LORIENT – MAISON 5 PIÈCES NEUVEÀ 10 km de la côte atlantique et à 25 km de Lorient, nous vous proposons en vente à Riec-sur-Bélon (29340), cette maison de 5 pièces de plain-pied de 139 m² et de 1 462 m² de terrain.Son intérieur propose quatre chambres, une cuisine et deux salles de bains. La maison est neuve.Il y a des écoles maternelles et élémentaires dans la commune. Côté transports, on trouve la gare Bannalec à moins de 10 minutes en voiture. La nationale N165 est accessible à 4 km. Il y a une bibliothèque et un supermarché à proximité de la maison.Elle est proposée à l’achat pour 453 200 €.Prenez contact avec Marie LAURENT ((Numéro supprimé)) pour toute question sur la maison, sur les modalités de vente ou sur les démarches à suivre. Donnez vie à vos projets immobiliers avec Maisons de l’Avenir Quimper.
Riec-sur-Bélon
TERRAIN ET MAISONVENTE d’une maison de 4 pièces (95 m²) à Riec-sur-BélonMAISON 4 PIÈCES NEUVE – PROCHE DE LORIENTÀ vendre à 10 km de la côte atlantique et à deux pas de Lorient, ayez le coup de coeur pour à Riec-sur-Bélon (29340), cette maison de 4 pièces de 95 m². Son intérieur se divise en trois chambres, une cuisine et deux salles de bains.Le terrain du bien est de 1 462 m².Cette maison comporte 2 niveaux. Elle est neuve.Des écoles maternelles et élémentaires sont implantées dans la commune. Niveau transports en commun, il y a la gare Bannalec à moins de 10 minutes en voiture. La nationale N165 est accessible à 4 km. On trouve une bibliothèque et un supermarché à quelques minutes.Son prix de vente est de 360 800 €.Contactez notre agence (Marie LAURENT : (Numéro supprimé)) pour toute question sur la maison ou sur les démarches à suivre. Donnez vie à vos projets immobiliers avec Maisons de l’Avenir Quimper.
Baye
TERRAIN ET MAISONVENTE : maison de 4 pièces (75 m²) à BayeMAISON 4 PIÈCES NEUVE – PROCHE DE LORIENTÀ 9 km de l’océan Atlantique et à deux pas de Lorient, en vente à Baye (29300), laissez vous charmer par cette maison de 4 pièces de plain-pied de 75 m². Elle inclut trois chambres, une cuisine et une salle de bains.Le terrain de la maison est de 650 m².Cette maison est neuve.Il y a l’École Primaire Publique de Baye à moins de 10 minutes à pied. Côté transports, on trouve la gare Quimperlé à moins de 10 minutes en voiture. La nationale N165 est accessible à 2 km. Il y a une bibliothèque, une boulangerie, un commerce et une boucherie-charcuterie à proximité.Elle est à vendre pour la somme de 219 600 €.Prenez contact avec Marie LAURENT (tél : (Numéro supprimé)) pour plus de renseignements sur cette maison ou sur les démarches à suivre.
Baye
TERRAINBaye : terrain de 650 m² en ventePROCHE DE LORIENTGrand terrain en vente à 9 km de l’océan Atlantique et à deux pas de Lorient. De 650 m², ce terrain se situe dans Baye (29300). Il bénéficie d’une exposition sud-ouest. L’École Primaire Publique de Baye est implantée à moins de 10 minutes à pied. Côté transports en commun, on trouve la gare Quimperlé à moins de 10 minutes en voiture. La nationale N165 est accessible à 2 km. Il y a une bibliothèque, une boulangerie, un commerce et une boucherie-charcuterie à quelques minutes à peine.Ce terrain est proposé à l’achat pour 68 835 €. Prenez contact avec notre agence (LAURENT Marie : (Numéro supprimé)) pour obtenir de plus amples informations sur ce terrain. Maisons de l’Avenir Quimper vous accompagne dans toutes vos démarches et à toutes les étapes de l’achat.
Baye
TERRAIN ET MAISONVENTE : maison de 5 pièces (145 m²) à BayeMAISON 5 PIÈCES NEUVE – PROCHE DE LORIENTÀ 9 km de l’océan Atlantique et à deux pas de Lorient, laissez vous charmer par cette maison de 5 pièces de plain-pied de 145 m² à Baye (29300). Son intérieur propose quatre chambres, une cuisine et deux salles de bains.Le terrain de la propriété s’étend sur 650 m².Cette maison est neuve.Il y a l’École Primaire Publique de Baye à moins de 10 minutes à pied. Niveau transports, on trouve la gare Quimperlé à moins de 10 minutes en voiture. Il y a un accès à la nationale N165 à 2 km. Il y a une bibliothèque, une boulangerie, un commerce et une boucherie-charcuterie à proximité de la maison.Elle est à vendre pour la somme de 373 335 €.N’hésitez pas à prendre contact avec Marie LAURENT (tél : (Numéro supprimé)) pour toute information sur la maison, sur les démarches à suivre ou sur les modalités de vente. Maisons de l’Avenir Quimper vous accompagne dans tous vos projets immobiliers et dans toutes vos démarches.
Baye
TERRAIN ET MAISONMaison de 4 pièces (95 m²) à vendre à BayePROCHE DE LORIENT – MAISON 4 PIÈCES NEUVEÀ vendre : située à 9 km de l’océan Atlantique et à 21 km de Lorient, nous vous proposons cette maison de 4 pièces de 95 m² à Baye (29300). Son intérieur comporte trois chambres, une cuisine et une salle de bains.Le terrain de la propriété s’étend sur 650 m².Cette maison possède 2 niveaux. Elle est neuve.Il y a l’École Primaire Publique de Baye à moins de 10 minutes à pied. Niveau transports en commun, on trouve la gare Quimperlé à moins de 10 minutes en voiture. La nationale N165 est accessible à 2 km. Il y a une bibliothèque, une boulangerie, un commerce et une boucherie-charcuterie à quelques minutes du bien.Elle est proposée à l’achat pour 284 600 €.Contactez notre agence (Marie LAURENT : (Numéro supprimé)) pour toute question sur ce bien, sur les démarches à suivre ou sur les modalités de vente. Donnez vie à vos projets immobiliers avec Maisons de l’Avenir Quimper.
L’actualité immobilière à Baye
27/11/2023
02/11/2023
30/10/2023
20/10/2023
16/10/2023
16/10/2023