Maison à construire à Baye (29300)
Images
Description
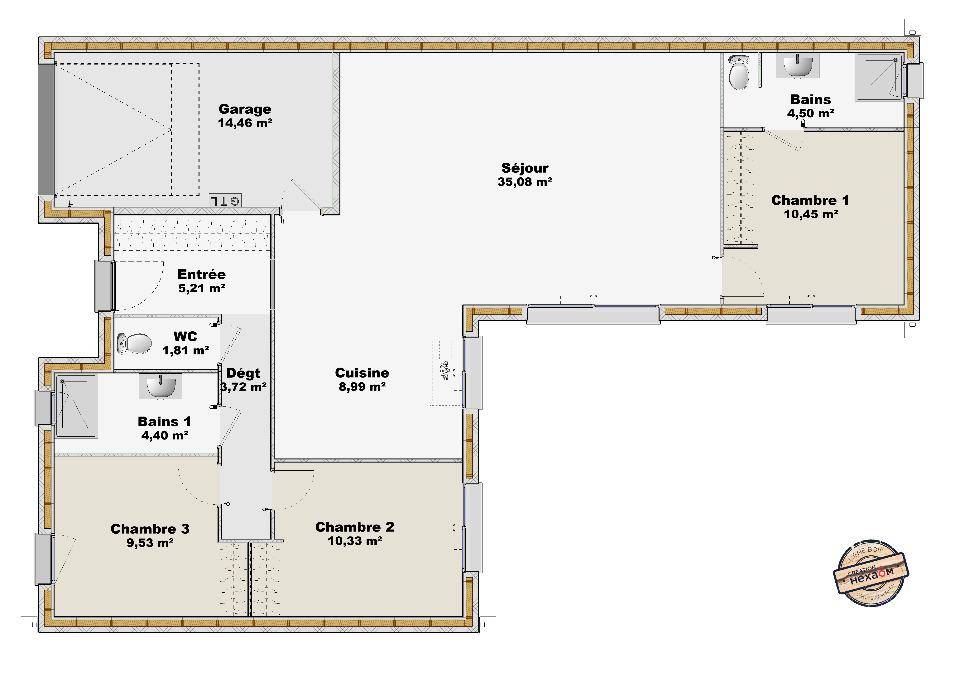
VENTE d'une maison T4 (94 m²) à Baye
QUARTIER RECHERCHÉ - MAISON 4 PIÈCES NEUVE
À vendre : à 9 km de l'océan Atlantique et à quelques kilomètres de Lorient, nous vous présentons, située dans un quartier recherché de Baye (29300), cette maison de 4 pièces de plain-pied de 94 m².
Conçue de plain-pied, elle offre trois chambres, une cuisine et deux salles de bains. La maison est neuve.
Le terrain de la propriété s'étend sur 390 m².
La maison se trouve dans un secteur prisé. Il y a l'École Primaire Publique de Baye à moins de 10 minutes à pied. Côté transports, on trouve la gare Quimperlé à moins de 10 minutes en voiture. La nationale N165 est accessible à 2 km. Il y a une bibliothèque, une boulangerie, un commerce et une boucherie-charcuterie dans les environs.
Son prix de vente est de 326 000 €.
Contactez Christophe COLLOCH (tél : (Numéro supprimé)) pour plus de renseignements sur la maison.
Logement susceptibles de vous intéresser
Nous vous proposons de découvrir aussi cette sélection de logements situés à moins de 10km de Baye et qui seraient susceptibles de vous intéresser.
Mellac
TERRAIN ET MAISONDEVENEZ PROPRIÉTAIRE À MELLAC – MAISON NEUVE conforme à la dernière norme basse consommation RE-2020 !Vivez dans un cadre de vie privilégié à Mellac, commune recherchée pour son calme, son environnement naturel et sa proximité avec Quimperlé, ses commerces, ses services et ses écoles. Un lieu idéal pour accueillir votre famille dans un cadre serein et agréable !Votre future maison comprend 😮 3 chambres spacieuses et lumineuseso Un grand salon-séjour traversant ouvert sur le jardino Une cuisine moderne et fonctionnelleo Salle de bain et WC séparésLes atouts du projet 😮 Maison neuve RE2020, à faible consommation d’énergieo Plan personnalisable selon vos besoinso Environnement calme et familialo Prestations de qualité, finitions soignéesCe projet s’implante sur un terrain idéalement situé à Mellac, d’environ 563 m² (surface selon disponibilité des partenaires fonciers).Accession à la propriété possible avec ou sans apport, étude de financement gratuite.Photos à titre d’illustration (photos d’une de nos réalisations – non contractuelles).Nous trouvons l’adresse idéale parmi un large choix de terrains disponibles pour votre future demeure.Ne manquez pas cette belle opportunité de devenir propriétaire d’une maison neuve moderne et économique à Mellac !Contactez-nous dès maintenant pour découvrir les plans et étudier votre projet personnalisé.Armorique Immos, franchise d’un constructeur national de maisons individuelles depuis plus de 40 ans, propose en collaboration avec ses partenaires fonciers une sélection de terrains constructibles, selon disponibilité, pour la construction de maisons neuves définies par le constructeur, avec un contrat de construction de maison individuelle, dans le cadre de la loi du 19/12/1990.Prix net, hors frais notariés, d’enregistrement et de publicité foncière.Étude financière réalisée par nos partenaires en courtage (IOSB inscrit à l’Orias).
Clohars-Carnoët
TERRAINDEVENEZ PROPRIÉTAIRE D’UN TERRAIN À CLOHARS-CARNOËT !Vivez dans un cadre de vie privilégié à Clohars-Carnoët, charmante commune du Sud-Finistère, reconnue pour ses plages et son environnement naturel préservé.Profitez du calme de la campagne et de la proximité du littoral, tout en restant proche des commerces, écoles et services – un cadre idéal pour votre futur projet ! Votre terrain comprend 😮 Une surface de 330 m², bien orientéeo Possibilité de construire la maison de vos rêves selon vos envies Les atouts du projet 😮 Terrain viabilisé ou proche des réseauxo Cadre de vie paisible, à proximité de Quimperlé, Guidel et des plages de la Cornouailleo Liberté de construction, avec plan personnalisable selon vos besoins Prix indiqué hors frais Photos non contractuelles à titre d’illustration Accession possible avec ou sans apportNe manquez pas cette opportunité unique de devenir propriétaire d’un terrain à Clohars-Carnoët et de réaliser votre projet sur-mesure ! Contactez-nous dès maintenant pour plus d’informations et étudier votre projet.
Moëlan-sur-Mer
TERRAINTerrain de 545 m² à vendre à Moëlan-sur-MerPROCHE DE LORIENTGrand terrain en vente à 4 km de la côte atlantique et à quelques kilomètres de Lorient. De 545 m², ce terrain se situe dans Moëlan-sur-Mer (29350). Niveau transports en commun, on trouve la gare Quimperlé à moins de 10 minutes en voiture. La nationale N165 est accessible à 7 km. Il y a un tennis, des commerces, trois boulangeries, un supermarché et un bureau de poste à quelques minutes à peine. Son prix de vente est de 80 000 €. Contactez Mathieu DEROUET ((Numéro supprimé)) pour plus de renseignements sur ce terrain.
Riec-sur-Bélon
TERRAIN ET MAISONRiec-sur-Bélon : maison de 4 pièces (75 m²) en ventePROCHE DE LORIENT – MAISON 4 PIÈCES NEUVEEn vente : à 10 km de la côte atlantique et à deux pas de Lorient, à Riec-sur-Bélon (29340), Maisons de l’Avenir Quimper vous présente cette maison de 4 pièces de plain-pied de 75 m² et de 315 m² de terrain.Elle compte trois chambres, une cuisine et une salle de bains.Elle est à vendre pour la somme de 260 000 €.N’hésitez pas à prendre contact avec notre agence (Mathieu DEROUET : (Numéro supprimé)) pour plus d’informations sur la propriété, sur les démarches à suivre ou sur les modalités de vente. Maisons de l’Avenir Quimper vous accompagne à toutes les étapes de votre projet et dans tous vos projets immobiliers.
Moëlan-sur-Mer
TERRAIN ET MAISONMaison de 5 pièces (140 m²) à vendre à Moëlan-sur-MerEMPLACEMENT PRIVILÉGIÉ – MAISON 5 PIÈCES NEUVESur la côte atlantique et à deux pas de Lorient, nous vous présentons cette maison de 5 pièces de 140 m² bénéficiant d’un emplacement d’exception dans Moëlan-sur-Mer (29350). Elle se divise en quatre chambres, une cuisine et deux salles de bains.Le terrain de la propriété est de 440 m².C’est une maison de 2 niveaux. Elle est neuve.Cette maison est située dans un secteur convoité. On trouve l’École Primaire Privée Immaculée-Conception, l’École Élémentaire Publique de Moëlan-Sur-Sur et le Collège Parc-Ar-Ar-Ar Cotty à moins de 10 minutes à pied et deux structures d’accueil pour les enfants en bas âge. Côté transports, il y a la gare Quimperlé à moins de 10 minutes en voiture. Il y a un accès à la nationale N165 à 7 km. On trouve un tennis, des commerces, trois boulangeries, un supermarché et un bureau de poste dans les environs. Ne manquez pas le marché Place de l’Eglise chaque mardi matin.Elle est proposée à l’achat pour 440 000 €.N’hésitez pas à prendre contact avec Christophe COLLOCH ((Numéro supprimé)) pour obtenir de plus amples renseignements sur la maison ou sur les modalités de vente. Concrétisez vos projets immobiliers avec Maisons de l’Avenir Lorient.
Baye
TERRAIN ET MAISONVENTE d’une maison T3 (55 m²) à BayeQUARTIER RECHERCHÉ – MAISON 3 PIÈCES NEUVEÀ 9 km de la côte atlantique et à quelques kilomètres de Lorient, en vente située dans un quartier attractif de Baye (29300), votre agence Maisons de l’Avenir Lorient est ravie de vous proposer cette maison de 3 pièces de plain-pied de 55 m² et de 390 m² de terrain. Son intérieur compte deux chambres, une cuisine et une salle de bains.La maison est neuve.Cette maison est située dans un secteur recherché. L’École Primaire Publique de Baye se trouve à moins de 10 minutes à pied. Niveau transports, il y a la gare Quimperlé à moins de 10 minutes en voiture. La nationale N165 est accessible à 2 km. On trouve une bibliothèque, une boulangerie, un commerce et une boucherie-charcuterie dans les environs.Son prix de vente est de 216 000 €.Prenez contact avec notre constructeur (COLLOCH Christophe : (Numéro supprimé)) pour obtenir de plus amples renseignements sur le bien, sur les démarches à suivre ou sur les modalités de vente.
Clohars-Carnoët
TERRAIN ET MAISONMaison T4 (95 m²) en vente à Clohars-CarnoëtQUARTIER RECHERCHÉ – MAISON 4 PIÈCES NEUVEÀ vendre : située à 6 km de l’océan Atlantique et à deux pas de Lorient, nous sommes ravis de vous proposer cette maison de 4 pièces de 95 m² située dans un secteur recherché de Clohars-Carnoët (29360).Cette maison comporte 2 niveaux. Son intérieur comporte trois chambres, une cuisine et deux salles de bains. Cette maison est neuve.Le terrain du bien s’étend sur 380 m².La maison est située dans un quartier prisé. On trouve l’École Primaire Privée Notre-Dame de la Garde, l’École Maternelle Publique Pierre Tal Coat et l’École Élémentaire Publique Benoîte Groult à moins de 10 minutes à pied. Côté transports en commun, il y a la gare Quimperlé à moins de 10 minutes en voiture. On trouve un accès à la nationale N165 à 8 km. On trouve deux boulangeries, quatre commerces, un supermarché, une poissonnerie et un bureau de poste à quelques minutes.Son prix de vente est de 344 000 €.Prenez contact avec Christophe COLLOCH ((Numéro supprimé)) pour toute question sur la propriété ou sur les modalités de vente. Maisons de l’Avenir Lorient est là pour vous accompagner dans tous vos projets immobiliers.
Moëlan-sur-Mer
TERRAINMoëlan-sur-Mer : terrain de 440 m² en venteEMPLACEMENT PRIVILÉGIÉ – PROCHE DE LORIENTEn vente à 4 km de la côte atlantique et à deux pas de Lorient à Moëlan-sur-Mer (29350), terrain de 440 m². Il est prêt à accueillir votre projet de construction pour toute la famille. Dans un secteur convoité, le terrain bénéficiant d’un emplacement d’exception est proche des écoles et des commerces. L’École Primaire Privée Immaculée-Conception, l’École Élémentaire Publique de Moëlan-Sur-Sur et le Collège Parc-Ar-Ar-Ar Cotty sont implantés à moins de 10 minutes à pied, tout comme deux structures d’accueil pour la petite enfance. Niveau transports, il y a la gare Quimperlé à moins de 10 minutes en voiture. Il y a un accès à la nationale N165 à 7 km. On trouve un tennis, des commerces, trois boulangeries, un supermarché et un bureau de poste à proximité du bien. Enfin, le marché Place de l’Eglise anime les environs chaque mardi matin.Ce terrain est proposé à l’achat pour 80 000 €. N’hésitez pas à prendre contact avec Christophe COLLOCH (tél : (Numéro supprimé)) pour toute information sur le terrain ou sur les démarches à suivre.
Tréméven
TERRAINTréméven : terrain de 400 m² en venteEMPLACEMENT PRIVILÉGIÉ – PROCHE DE LORIENTÀ Tréméven (29300) à vendre à 16 km de la côte atlantique et à 20 km de Lorient, venez découvrir ce terrain de 400 m². Il se trouve dans un quartier recherché. Il y a l’École Primaire Publique Yann-Fanch Kemener à moins de 10 minutes à pied. Niveau transports, on trouve la gare Quimperlé à moins de 10 minutes en voiture. La nationale N165 est accessible à 5 km. Il y a une bibliothèque et deux épiceries à quelques minutes à peine.Il est proposé à l’achat pour 47 000 €. Contactez Christophe COLLOCH (tél : (Numéro supprimé)) pour obtenir de plus amples informations sur ce terrain.
L’actualité immobilière à Baye
27/11/2023
02/11/2023
30/10/2023
20/10/2023
16/10/2023
16/10/2023