Maison à construire à Bénodet (29950)
Images
Description
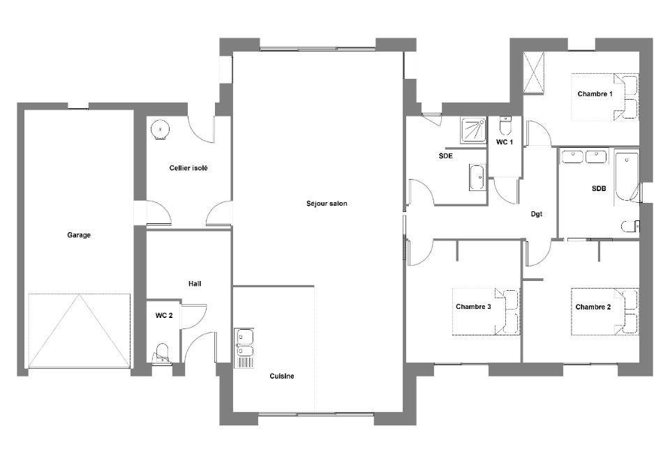
VENTE d'une maison de 4 pièces (140 m²) à Bénodet
PROCHE DE QUIMPER - MAISON 4 PIÈCES NEUVE
À 555 m de l'océan Atlantique et à 13 km de Quimper, nous sommes ravis de vous présenter cette maison de 4 pièces de plain-pied de 140 m² à Bénodet (29950).
Elle inclut trois chambres, une cuisine et deux salles de bains. Cette maison est neuve.
Le terrain de la propriété s'étend sur 308 m².
Il y a l'École Primaire Privée Notre-Dame Steredenn Vor et l'École Primaire Publique Kernévez à moins de 10 minutes à pied. Il y a un accès à la nationale N165 à 14 km. On trouve deux ports de plaisance, des commerces, trois boulangeries, un supermarché, deux boucheries-charcuteries et un bureau de poste à proximité du logement. Enfin, le marché Place du Mewexer a lieu tous les lundis matin.
Elle est à vendre pour la somme de 435 600 €.
Prenez contact avec notre agence (Marie LAURENT : (Numéro supprimé)) pour tout renseignement sur cette maison ou sur les démarches à suivre.
Logement susceptibles de vous intéresser
Nous vous proposons de découvrir aussi cette sélection de logements situés à moins de 10km de Bénodet et qui seraient susceptibles de vous intéresser.
Plomelin
TERRAINDEVENEZ PROPRIÉTAIRE D’UN TERRAIN À PLOMELIN !Vivez dans un cadre de vie privilégié à Plomelin, charmante commune du sud Finistère, à proximité des commerces, écoles et services, et à quelques minutes de Quimper et des plages de Bénodet.Profitez du calme de la campagne tout en restant proche des commodités – un environnement idéal pour construire la maison de vos rêves ! Votre terrain comprendo Surface de 450 m², bien orientéeo Possibilité de construire la maison de vos rêves selon vos envies Les atouts du projeto Terrain viabilisé ou proche des réseauxo Cadre de vie paisible, à proximité de Quimper et du littoral sudo Liberté de construction, plan personnalisable selon vos besoins Prix indiqué hors frais Photos non contractuelles – à titre d’illustration Accession possible avec ou sans apportNe manquez pas cette opportunité unique de devenir propriétaire d’un terrain à Plomelin et de concrétiser votre projet sur-mesure ! Contactez-nous dès maintenant pour plus d’informations et étudier votre projet personnalisé.
Plomelin
TERRAIN ET MAISONDEVENEZ PROPRIÉTAIRE À PLOMELIN – MAISON NEUVE RE2020 SUR-MESUREVivez dans un cadre privilégié à Plomelin, commune prisée du sud Finistère, située à seulement quelques minutes de Quimper et des plages de Bénodet.Profitez d’un environnement calme et verdoyant, idéal pour une vie de famille, tout en bénéficiant de la proximité des commerces, écoles et services. Votre future maison comprendo 3 chambres spacieuses et lumineuseso Un grand salon-séjour traversant, ouvert sur le jardino Une cuisine moderne et fonctionnelleo Salle de bain et WC séparéso Le tout sur un terrain de 450 m², bien orienté et facile à entretenir Les atouts du projeto Maison neuve RE2020, économe en énergieo Plan personnalisable selon vos envies et votre mode de vieo Environnement paisible, à proximité immédiate de Quimper et du littoral sudo Prestations de qualité et finitions soignéeso Accès rapide à la voie express et à toutes les commodités Prix indiqué hors frais Photos non contractuelles à titre d’illustration Accession à la propriété possible avec ou sans apportNe manquez pas cette belle opportunité de devenir propriétaire d’une maison neuve, moderne et économique à Plomelin ! Contactez-nous dès maintenant pour découvrir les plans et étudier votre projet personnalisé.
Saint-Évarzec
TERRAINDEVENEZ PROPRIÉTAIRE D’UN TERRAIN À SAINT-EVARZEC !Vivez dans un cadre de vie privilégié à Saint-Evarzec, charmante commune du Sud-Finistère, idéalement située entre Quimper et le littoral sud.Profitez du calme de la campagne, tout en restant proche des commerces, écoles et services – un environnement idéal pour votre futur projet ! Votre terrain comprend 😮 Une surface de 390 m², bien orientéeo Possibilité de construire la maison de vos rêves selon vos envies Les atouts du projet 😮 Terrain viabilisé ou proche des réseaux (à préciser selon le lot)o Cadre de vie paisible, proche des commodités et du littoralo Liberté de construction, avec plan personnalisable selon vos besoins Prix indiqué hors frais Photos non contractuelles à titre d’illustration Accession possible avec ou sans apportNe manquez pas cette opportunité unique de devenir propriétaire d’un terrain à Saint-Evarzec et de réaliser votre projet sur-mesure ! Contactez-nous dès maintenant pour plus d’informations et étudier votre projet.
Bénodet
TERRAINVENTE d’un terrain de 510 m² à BénodetIDÉALEMENT SITUÉ – A 800 M DES PLAGESSur la côte atlantique et à quelques kilomètres de Quimper à Bénodet (29950), grand terrain. Ce terrain est proposé à l’achat pour 185 000 €. Prenez contact avec Mathieu DEROUET ((Numéro supprimé)) pour plus d’informations sur le terrain.
Bénodet
TERRAIN ET MAISONMaison de 4 pièces (114 m²) en vente à BénodetIDÉALEMENT SITUÉE – MAISON 4 PIÈCES NEUVEÀ vendre : localisée sur le littoral atlantique et à 13 km de Quimper, idéalement située dans Bénodet (29950), Maisons de l’Avenir Quimper vous présente cette maison de 4 pièces de 114 m² et de 510 m² de terrain.Il s’agit d’une maison de 2 niveaux. Elle se divise en trois chambres, une cuisine et deux salles de bains. Elle est à vendre pour la somme de 463 000 €.Contactez notre agence (DEROUET Mathieu : (Numéro supprimé)) pour obtenir de plus amples informations sur la propriété ou sur les modalités de vente. Maisons de l’Avenir Quimper est là pour vous accompagner à toutes les étapes de votre projet.
Bénodet
TERRAIN ET MAISONMaison de 4 pièces (100 m²) en vente à BénodetIDÉALEMENT SITUÉE – MAISON 4 PIÈCES NEUVEÀ vendre : située sur le littoral atlantique et à deux pas de Quimper, idéalement située dans Bénodet (29950), nous vous proposons cette maison de 4 pièces de 100 m².Cette maison possède 2 niveaux. Son intérieur comporte trois chambres, une cuisine et deux salles de bains. Son prix de vente est de 430 000 €.Prenez contact avec Mathieu DEROUET (tél : (Numéro supprimé)) pour tout renseignement sur la maison ou sur les modalités de vente. Maisons de l’Avenir Quimper est là pour vous accompagner dans tous vos projets immobiliers.
Bénodet
TERRAIN ET MAISONVENTE d’une maison F5 (145 m²) à BénodetIDÉALEMENT SITUÉE – MAISON 5 PIÈCES NEUVEÀ vendre : à 555 m de l’océan Atlantique et à deux pas de Quimper, nous sommes ravis de vous proposer cette maison de 5 pièces de 145 m² idéalement située dans Bénodet (29950). Son intérieur offre quatre chambres, une cuisine et deux salles de bains.Le terrain du bien s’étend sur 510 m².Il s’agit d’une maison de 2 niveaux. Contactez notre agence (DEROUET Mathieu : (Numéro supprimé)) pour toute question sur la maison, sur les démarches à suivre ou sur les modalités de vente. Concrétisez vos projets immobiliers avec Maisons de l’Avenir Quimper.
Bénodet
TERRAIN ET MAISONVENTE : maison de 4 pièces (80 m²) à BénodetIDÉALEMENT SITUÉE – MAISON 4 PIÈCES NEUVEEn vente : située sur la côte atlantique et à deux pas de Quimper, nous sommes ravis de vous présenter cette maison de 4 pièces de 80 m² et de 510 m² de terrain idéalement située dans Bénodet (29950). Son intérieur dispose de trois chambres, d’une cuisine et d’une salle de bains.C’est une maison de 2 niveaux.Son prix de vente est de 386 000 €.Contactez notre agence (DEROUET Mathieu : (Numéro supprimé)) pour tout renseignement sur le bien, sur les modalités de vente ou sur les démarches à suivre. Maisons de l’Avenir Quimper vous accompagne dans tous vos projets immobiliers et dans toutes vos démarches.
Bénodet
TERRAIN ET MAISONVENTE d’une maison T4 (80 m²) à BénodetIDÉALEMENT SITUÉE – MAISON 4 PIÈCES OSSATURE BOISÀ vendre : sur la côte atlantique et à 13 km de Quimper, nous vous présentons cette maison de 4 pièces de plain-pied de 80 m², idéalement située dans Bénodet (29950).Conçue de plain-pied, elle comporte trois chambres, une cuisine et une salle de bains. Cette maison est neuve.Le terrain de la propriété est de 510 m².Son prix de vente est de 405 300 €.Contactez notre agence (DEROUET Mathieu : (Numéro supprimé)) pour tout renseignement sur la maison, sur les démarches à suivre ou sur les modalités de vente. Maisons de l’Avenir Quimper est là pour vous accompagner à toutes les étapes de l’achat.
L’actualité immobilière à Bénodet
27/11/2023
02/11/2023
30/10/2023
20/10/2023
16/10/2023
16/10/2023