Maison à construire à Bodilis (29400)
Images
Description
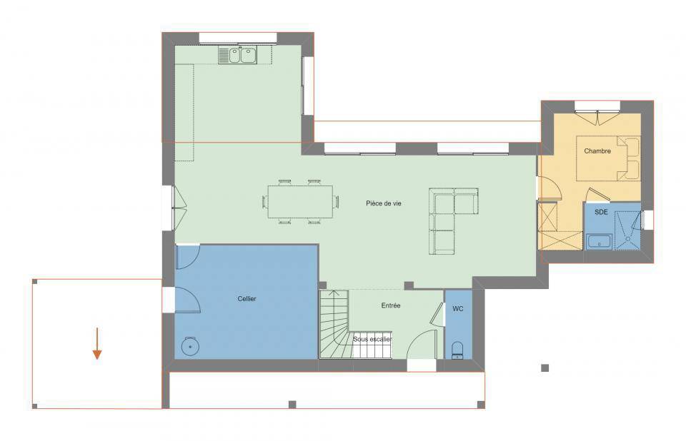
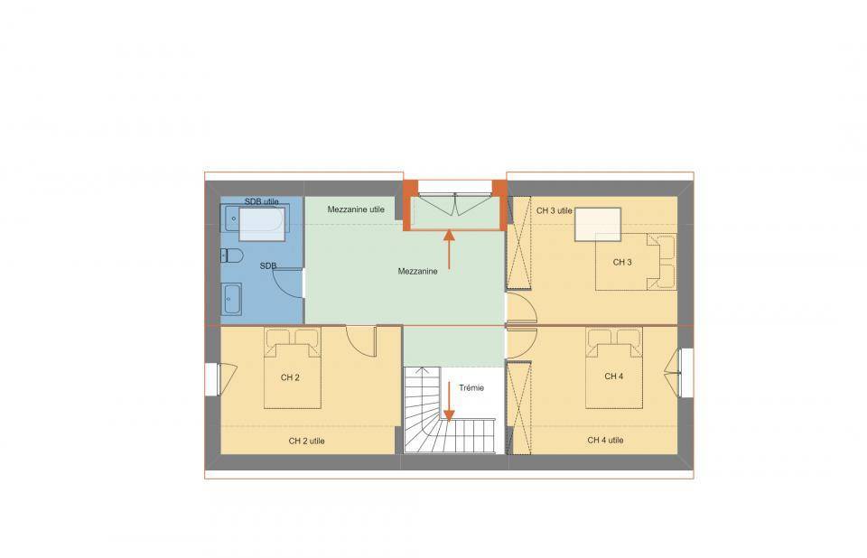
VENTE d'une maison de 5 pièces (140 m²) à Bodilis
MAISON 5 PIÈCES NEUVE - PROCHE DE BREST
En vente : localisée à quelques kilomètres de la mer et à 31 km de Brest, à Bodilis (29400), nous sommes heureux de vous proposer cette maison de 5 pièces de 140 m² et de 627 m² de terrain.
C'est une maison de 2 niveaux. Elle est composée de quatre chambres, d'une cuisine et de deux salles de bains. La maison est neuve.
Il y a l'École Primaire Privée Notre-Dame à moins de 10 minutes à pied. Niveau transports, on trouve deux gares (Landivisiau et La Roche-Maurice) à moins de 10 minutes en voiture. Il y a un accès à la nationale N12 à 3 km.
Son prix de vente est de 341 620 €.
Contactez notre agence (Aurélie CAGNARD) pour plus d'informations sur la maison ou sur les modalités de vente. Maisons de l'Avenir Guipavas vous accompagne à toutes les étapes de l'achat et dans tous vos projets immobiliers.
Logement susceptibles de vous intéresser
Nous vous proposons de découvrir aussi cette sélection de logements situés à moins de 10km de Bodilis et qui seraient susceptibles de vous intéresser.
Bodilis
TERRAIN ET MAISONVENTE d’une maison de 5 pièces (90 m²) à BodilisPROCHE DE BREST – MAISON 5 PIÈCES NEUVEÀ vendre à quelques kilomètres de la mer et à quelques kilomètres de Brest, à Bodilis (29400), nous vous proposons cette maison de 5 pièces de 90 m² et de 733 m² de terrain.Il s’agit d’une maison de 2 niveaux. Elle compte quatre chambres, une cuisine et deux salles de bains. La maison est neuve.Il y a l’École Primaire Privée Notre-Dame à moins de 10 minutes à pied. Niveau transports en commun, on trouve la gare Landivisiau à moins de 10 minutes. La nationale N12 est accessible à 3 km.Elle est à vendre pour la somme de 359 900 €.Prenez contact avec notre agence (CAGNARD Aurélie) pour tout renseignement sur cette maison ou sur les modalités de vente. Maisons de l’Avenir Guipavas vous accompagne dans toutes vos démarches et dans tous vos projets immobiliers.
Bodilis
TERRAIN ET MAISONVENTE d’une maison de 5 pièces (140 m²) à BodilisMAISON 5 PIÈCES NEUVE – PROCHE DE BRESTEn vente : localisée à quelques kilomètres de la mer et à 31 km de Brest, à Bodilis (29400), nous sommes heureux de vous proposer cette maison de 5 pièces de 140 m² et de 627 m² de terrain.C’est une maison de 2 niveaux. Elle est composée de quatre chambres, d’une cuisine et de deux salles de bains. La maison est neuve.Il y a l’École Primaire Privée Notre-Dame à moins de 10 minutes à pied. Niveau transports, on trouve deux gares (Landivisiau et La Roche-Maurice) à moins de 10 minutes en voiture. Il y a un accès à la nationale N12 à 3 km.Son prix de vente est de 341 620 €.Contactez notre agence (Aurélie CAGNARD) pour plus d’informations sur la maison ou sur les modalités de vente. Maisons de l’Avenir Guipavas vous accompagne à toutes les étapes de l’achat et dans tous vos projets immobiliers.
Lampaul-Guimiliau
TERRAIN ET MAISONVENTE d’une maison F4 (73 m²) à Lampaul-GuimiliauMAISON 4 PIÈCES NEUVEÀ vendre : sur le littoral, laissez vous charmer par cette maison de 4 pièces de 73 m² à Lampaul-Guimiliau (29400).Cette maison possède 2 niveaux. Elle dispose de trois chambres, d’une cuisine et d’une salle de bains. La maison est neuve.Le terrain du bien s’étend sur 271 m².On trouve l’École Primaire Publique Eric Tabarly et l’École Primaire Privée Saint Joseph à moins de 10 minutes à pied. Niveau transports, il y a les gares Landivisiau, Guimiliau et Saint-Thégonnec à moins de 10 minutes en voiture. On trouve un accès à la nationale N12 à 3 km. On trouve une bibliothèque, deux commerces et une boulangerie dans les environs.Son prix de vente est de 182 409 €.Contactez Aurélie CAGNARD pour toute information sur cette maison ou sur les démarches à suivre. Maisons de l’Avenir Guipavas vous accompagne à toutes les étapes de l’achat et dans tous vos projets immobiliers.
Lampaul-Guimiliau
TERRAIN ET MAISONLampaul-Guimiliau : maison T3 (55 m²) en venteMAISON 3 PIÈCES NEUVEEn vente : localisée à quelques kilomètres de la mer, Maisons de l’Avenir Guipavas vous propose cette maison de 3 pièces de plain-pied de 55 m² à Lampaul-Guimiliau (29400). Son intérieur dispose de deux chambres, d’une cuisine et d’une salle de bains.Le terrain du bien s’étend sur 271 m².La maison est neuve.L’École Primaire Publique Eric Tabarly et l’École Primaire Privée Saint Joseph sont implantées à moins de 10 minutes à pied. Côté transports en commun, on trouve les gares Landivisiau, Guimiliau et Saint-Thégonnec à moins de 10 minutes en voiture. La nationale N12 est accessible à 3 km. Il y a une bibliothèque, deux commerces et une boulangerie dans les environs.Elle est proposée à l’achat pour 146 409 €.Contactez Aurélie CAGNARD pour tout renseignement sur cette maison, sur les démarches à suivre et sur les modalités de vente. Donnez vie à vos projets immobiliers avec Maisons de l’Avenir Guipavas.
Plouzévédé
TERRAIN ET MAISONDEVENEZ PROPRIÉTAIRE À PLOUZÉVÉDÉ – MAISON NEUVE conforme à la dernière norme basse consommation RE-2020 !Vivez dans un cadre de vie privilégié à Plouzévédé, commune appréciée pour son calme, son environnement naturel et sa proximité avec les commerces, les services et les écoles. Un lieu idéal pour accueillir votre famille dans un cadre serein et agréable !Votre future maison comprend 😮 3 chambres spacieuses et lumineuseso Un grand salon-séjour traversant ouvert sur le jardino Une cuisine moderne et fonctionnelleo Salle de bain et WC séparésLes atouts du projet 😮 Maison neuve RE2020, à faible consommation d’énergieo Plan personnalisable selon vos besoinso Environnement calme et familialo Prestations de qualité, finitions soignéesCe projet s’implante sur un terrain idéalement situé à Plouzévédé, d’environ 400 m² (surface selon disponibilité des partenaires fonciers).Accession à la propriété possible avec ou sans apport, étude de financement gratuite.Photos à titre d’illustration (photos d’une de nos réalisations – non contractuelles).Nous trouvons l’adresse idéale parmi un large choix de terrains disponibles pour votre future demeure.Ne manquez pas cette belle opportunité de devenir propriétaire d’une maison neuve moderne et économique à Plouzévédé !Contactez-nous dès maintenant pour découvrir les plans et étudier votre projet personnalisé.Armorique Immos, franchise d’un constructeur national de maisons individuelles depuis plus de 40 ans, propose en collaboration avec ses partenaires fonciers une sélection de terrains constructibles, selon disponibilité, pour la construction de maisons neuves définies par le constructeur, avec un contrat de construction de maison individuelle, dans le cadre de la loi du 19/12/1990.Prix net, hors frais notariés, d’enregistrement et de publicité foncière.Étude financière réalisée par nos partenaires en courtage (IOSB inscrit à l’Orias).
Bodilis
TERRAINTerrain de 627 m² en vente à BodilisProche de Brest – Donnez vie à votre projet sur ce terrain à vendre de 627 m² à Bodilis (29400).Proche gares (Landivisiau et La Roche-Maurice), École Primaire Privée Notre-Dame. Accès nationale N12 à 3 km. Manche à 18 km et océan Atlantique à 27 km.Son prix de vente est de 51 260 €. Contactez Aurélie CAGNARD pour toute question sur le terrain ou sur les modalités de vente. Maisons de l’Avenir Guipavas est là pour vous accompagner dans toutes vos démarches.
Bodilis
TERRAIN ET MAISONMaison T4 (80 m²) en vente à BodilisPROCHE DE BREST – MAISON 4 PIÈCES NEUVEÀ vendre : à quelques kilomètres de la mer et à deux pas de Brest, venez découvrir à Bodilis (29400), cette maison de 4 pièces de plain-pied de 80 m² et de 733 m² de terrain.Elle compte trois chambres, une cuisine et une salle de bains. La maison est neuve.L’École Primaire Privée Notre-Dame est implantée à moins de 10 minutes à pied. Côté transports, il y a la gare de Landivisiau à moins de 10 minutes en voiture. On trouve un accès à la nationale N12 à 3 km.Elle est à vendre pour la somme de 329 900 €.Contactez notre agence (CAGNARD Aurélie) pour toute question sur cette maison. Maisons de l’Avenir Guipavas est là pour vous accompagner dans toutes vos démarches.
Bodilis
TERRAINBodilis : terrain de 733 m² à vendrePROCHE DE BRESTÀ Bodilis (29400) à quelques kilomètres de la mer et à 31 km de Brest, donnez vie à votre résidence principale ou secondaire sur ce terrain de 733 m². L’École Primaire Privée Notre-Dame est implantée à moins de 10 minutes à pied. Niveau transports, il y a la gare Landivisiau à moins de 10 minutes en voiture. La nationale N12 est accessible à 3 km.Il est proposé à l’achat pour 59 922 €. Contactez notre agence (CAGNARD Aurélie) pour toute information sur ce terrain ou sur les modalités de vente. Maisons de l’Avenir Guipavas est là pour vous accompagner dans toutes vos démarches.
Lampaul-Guimiliau
TERRAIN ET MAISONMaison F4 (82 m²) à vendre à Lampaul-GuimiliauMAISON 4 PIÈCES NEUVESur le littoral, ayez le coup de coeur pour cette maison de 4 pièces de plain-pied de 82 m² et de 271 m² de terrain à Lampaul-Guimiliau (29400).Conçue de plain-pied, elle compte trois chambres, une cuisine et une salle de bains. Cette maison est neuve.Il y a l’École Primaire Publique Eric Tabarly et l’École Primaire Privée Saint Joseph à moins de 10 minutes à pied. Côté transports, on trouve trois gares (Landivisiau, Guimiliau et Saint-Thégonnec) à moins de 10 minutes en voiture. La nationale N12 est accessible à 3 km. Il y a une bibliothèque, deux commerces et une boulangerie à proximité du logement.Son prix de vente est de 185 409 €.Contactez Aurélie CAGNARD pour tout renseignement sur cette maison. Maisons de l’Avenir Guipavas vous accompagne dans tous vos projets immobiliers et dans toutes vos démarches.
L’actualité immobilière à Bodilis
27/11/2023
02/11/2023
30/10/2023
20/10/2023
16/10/2023
16/10/2023