Maison à construire à Brest (29200)
Images
Description
🏡 À Vendre : Terrain de 465m² à Brest - 89 000€
Découvrez ce magnifique terrain de 465m², idéalement situé dans un petit lotissement paisible sur la commune de Brest, à deux pas du Tram et des transports en commun. Ce terrain offre un cadre exceptionnel pour construire la maison de vos rêves, alliant proximité & commerces à pieds.
Présenté par Maisons de l'Avenir, ce bien rare et recherché est une opportunité à ne pas manquer. ⭐
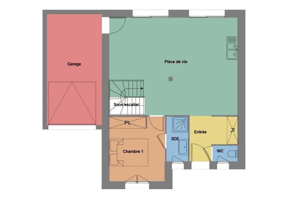
Maisons de l'Avenir vous propose un modèle sur plan de 100m², comprenant 3 chambres dont une suite parentale, un vaste espace de vie de 55m², deux salles de bains, et un garage de 18m2. 🛏️🍽️🚿
Les plans sont entièrement modifiables, permettant ainsi une maison sur mesure dans tous les aspects, conçue dans le cadre de notre gamme de maisons passives Bâti Activ. 🏠🌿 Cette maison a été pensée pour maximiser les apports de lumière naturelle, favorisant ainsi les gains énergétiques. 🌞⚡
L'opération globale terrain + maison est de 324 000€. 💰
Pour plus d'informations ou pour organiser une visite, contactez Erwan TILLY 📞. Ne tardez pas, ce terrain risque de partir rapidement ! ⏳
Logement susceptibles de vous intéresser
Nous vous proposons de découvrir aussi cette sélection de logements situés à moins de 10km de Brest et qui seraient susceptibles de vous intéresser.
Brest
TERRAIN ET MAISONDEVENEZ PROPRIÉTAIRE À LAMBÉZELLEC – MAISON NEUVE RE2020 SUR-MESUREVivez dans un cadre de vie privilégié à Lambézellec, quartier résidentiel recherché de Brest, alliant calme et proximité du centre-ville.Profitez d’un environnement agréable, à deux pas des commerces, écoles et transports, tout en bénéficiant du confort d’une maison neuve économe en énergie. Votre future maison comprendo 3 chambres spacieuses et lumineuseso Un grand salon-séjour traversant, ouvert sur le jardino Une cuisine moderne et fonctionnelleo Salle de bain et WC séparéso Le tout sur un terrain de 350 m², bien exposé et facile à entretenir Les atouts du projeto Maison neuve RE2020, à faible consommation énergétiqueo Plan personnalisable selon vos besoins et vos envieso Emplacement privilégié dans un quartier calme de Bresto Prestations de qualité et finitions soignéeso Accès rapide aux grands axes et aux plages du littoral Prix indiqué hors frais Photos non contractuelles à titre d’illustration Accession à la propriété possible avec ou sans apportNe manquez pas cette opportunité de devenir propriétaire d’une maison neuve, moderne et économique à Lambézellec – Brest ! Contactez-nous dès maintenant pour découvrir les plans et étudier votre projet personnalisé.
Brest
TERRAINDEVENEZ PROPRIÉTAIRE D’UN TERRAIN À BREST !Vivez dans un cadre de vie privilégié à Brest, ville dynamique du Finistère, idéalement située entre la mer et les principaux axes urbains.Profitez du confort urbain, tout en restant proche des commerces, écoles et services – un environnement idéal pour votre futur projet ! Votre terrain comprend 😮 Une surface de 275 m², bien orientéeo Possibilité de construire la maison de vos rêves selon vos envies Les atouts du projet 😮 Terrain viabilisé ou proche des réseaux (à préciser selon le lot)o Cadre de vie pratique et dynamique, proche de toutes les commoditéso Liberté de construction, avec plan personnalisable selon vos besoins Prix indiqué hors frais Photos non contractuelles à titre d’illustration Accession possible avec ou sans apportNe manquez pas cette opportunité unique de devenir propriétaire d’un terrain à Brest et de réaliser votre projet sur-mesure ! Contactez-nous dès maintenant pour plus d’informations et étudier votre projet.
Plougastel-Daoulas
TERRAINPlougastel-Daoulas : terrain de 331 m² à vendreNOUVEAUTE ! CENTRE VILLE, plat et clos, exposition sud, secteur résidentielTerrain de 331 m² à quelques kilomètres de la mer et à deux pas de Brest. Ce terrain se situe dans le centre-ville de Plougastel-Daoulas (29470). Plusieurs écoles (maternelle, élémentaire, primaire et collège) sont implantées à moins de 10 minutes à pied. Niveau transports, il y a quatre gares à moins de 10 minutes en voiture. Les nationales N165, N265 et N12 sont accessibles à moins de 8 km. On trouve deux tennis, des commerces, deux boulangeries, deux boucheries-charcuteries, un bureau de poste et une épicerie à quelques minutes du bien.Son prix de vente est de 102 680 €. Prenez contact avec notre agence (ROPERS Jean : (Numéro supprimé)) pour tout renseignement sur le terrain, sur les démarches à suivre ou sur les modalités de vente. Maisons de l’Avenir Guipavas est là pour vous accompagner dans tous vos projets immobiliers.
Plougastel-Daoulas
TERRAIN ET MAISONPlougastel-Daoulas : maison de 4 pièces (90 m²) à vendreCENTRE-VILLE – MAISON 4 PIÈCES NEUVEÀ vendre : à quelques kilomètres de la mer et à deux pas de Brest, découvrez cette maison de 4 pièces de 90 m² à Plougastel-Daoulas (29470), en centre-ville. Elle se divise en trois chambres, une cuisine et deux salles de bains.Le terrain du bien s’étend sur 331 m².Cette maison comporte 2 niveaux.Son prix de vente est de 330 680 €.N’hésitez pas à prendre contact avec notre agence (ROPERS Jean : (Numéro supprimé)) pour toute information sur la maison ou sur les démarches à suivre. Maisons de l’Avenir Guipavas est là pour vous accompagner dans tous vos projets immobiliers.
Plougastel-Daoulas
TERRAIN ET MAISONPlougastel-Daoulas : maison T4 (110 m²) en venteCENTRE-VILLE – MAISON 4 PIÈCES NEUVEÀ vendre : située sur le littoral et à quelques kilomètres de Brest, nous vous présentons, dans le centre de Plougastel-Daoulas (29470), cette maison de 4 pièces de 110 m². Elle compte quatre chambres, une cuisine et deux salles de bains.Le terrain du bien s’étend sur 331 m².Il s’agit d’une maison de 2 niveaux. Elle est proposée à l’achat pour 374 680 €.Contactez notre agence (Jean ROPERS : (Numéro supprimé)) pour plus d’informations sur la maison, sur les modalités de vente et sur les démarches à suivre. Maisons de l’Avenir Guipavas est là pour vous accompagner à toutes les étapes de votre projet.
Plougastel-Daoulas
TERRAIN ET MAISONPlougastel-Daoulas : maison de 5 pièces (105 m²) en venteCENTRE-VILLE – MAISON 5 PIÈCES NEUVEÀ vendre à quelques kilomètres de la mer et à deux pas de Brest, dans le centre de Plougastel-Daoulas (29470), laissez vous charmer par cette maison de 5 pièces de 105 m². Elle compte quatre chambres, une cuisine et deux salles de bains.Le terrain de la propriété est de 331 m².Cette maison comporte 2 niveaux.Son prix de vente est de 363 680 €.Prenez contact avec Jean ROPERS (tél : (Numéro supprimé)) pour plus d’informations sur la maison.
Plougastel-Daoulas
TERRAIN ET MAISONVENTE : maison de 3 pièces (65 m²) à Plougastel-DaoulasCENTRE-VILLE – MAISON 3 PIÈCES NEUVEEn vente sur le littoral et à 10 km de Brest, à Plougastel-Daoulas (29470), en centre-ville, Maisons de l’Avenir Guipavas vous présente cette maison de 3 pièces de plain-pied de 65 m² et de 331 m² de terrain. Elle inclut deux chambres, une cuisine et une salle de bains.Son prix de vente est de 254 180 €.Contactez Jean ROPERS ((Numéro supprimé)) pour tout renseignement sur la maison.
Plougastel-Daoulas
TERRAIN ET MAISONVENTE d’une maison de 4 pièces (70 m²) à Plougastel-DaoulasCENTRE-VILLE – MAISON 4 PIÈCES OSSATURE BOISÀ vendre : située à quelques kilomètres de la mer et à deux pas de Brest, ayez le coup de coeur pour, en plein coeur de Plougastel-Daoulas (29470), cette maison de 4 pièces de plain-pied de 70 m² et de 331 m² de terrain. Conçue de plain-pied, elle comporte trois chambres, une cuisine et une salle de bains.Son prix de vente est de 285 264 €.Prenez contact avec Jean ROPERS (tél : (Numéro supprimé)) pour obtenir de plus amples informations sur la maison ou sur les démarches à suivre.
Milizac-Guipronvel
TERRAINVENTE d’un terrain de 782 m² à GuipronvelIDÉALEMENT SITUÉ – PROCHE DE BREST�� quelques kilomètres de la mer et à 7 km de Brest à Milizac (29290), grand terrain. Il est prêt à accueillir votre résidence principale ou secondaire pour toute la famille. Il est exposé au sud-ouest. Dans un secteur recherché, le terrain idéalement situé est proche des écoles et des commerces. L’École Primaire Privée Saint Joseph-Notre Dame et l’École Primaire Publique Marcel Aymé sont implantées à moins de 10 minutes à pied. Il y a un accès à la nationale N12 à 10 km. Il y a deux boulangeries, un commerce, un bureau de poste, une épicerie et une boucherie-charcuterie à proximité.Il est à vendre pour la somme de 100 000 €. Contactez Erwan TILLY pour plus d’informations sur le terrain, sur les démarches à suivre ou sur les modalités de vente. Maisons de l’Avenir Guipavas est là pour vous accompagner dans tous vos projets immobiliers.
L’actualité immobilière à Brest
27/11/2023
02/11/2023
30/10/2023
20/10/2023
16/10/2023
16/10/2023