Maison à construire à Brest (29200)
Images
Description
🏡 À Vendre : Terrain de 441m² à Brest - 87 000€
Découvrez ce magnifique terrain de 441m², idéalement situé dans un petit lotissement paisible sur la commune de Brest, à deux pas du Tram et des transports en commun. Ce terrain offre un cadre exceptionnel pour construire la maison de vos rêves, alliant proximité & commerces à pieds.
Présenté par Maisons de l'Avenir, ce bien rare et recherché est une opportunité à ne pas manquer. ⭐
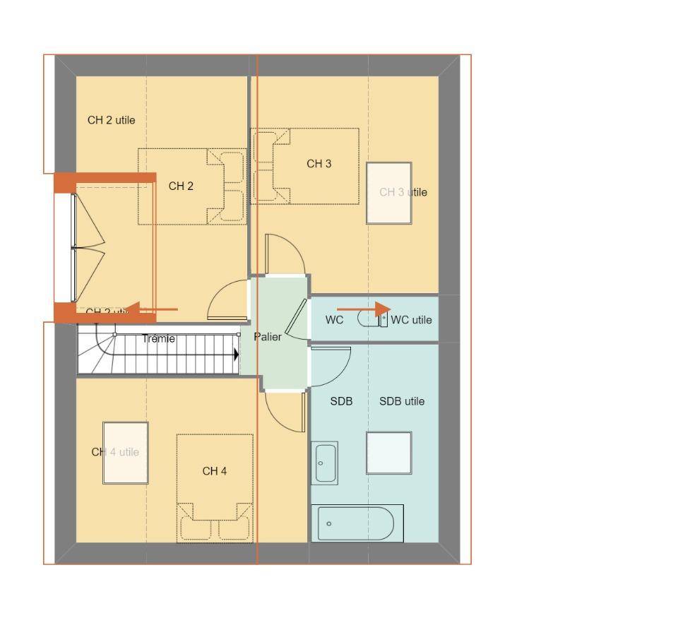
Maisons de l'Avenir vous propose un modèle sur plan de 105m², comprenant 4 chambres dont une suite parentale, un vaste espace de vie de 40m², deux salles de bains, et un garage de 18m2. 🛏️🍽️🚿
Les plans sont entièrement modifiables, permettant ainsi une maison sur mesure dans tous les aspects, conçue dans le cadre de notre gamme de maisons passives Bâti Activ. 🏠🌿 Cette maison a été pensée pour maximiser les apports de lumière naturelle, favorisant ainsi les gains énergétiques. 🌞⚡
L'opération globale terrain + maison est de 338 000€. 💰
Pour plus d'informations ou pour organiser une visite, contactez Erwan TILLY 📞. Ne tardez pas, ce terrain risque de partir rapidement ! ⏳
Logement susceptibles de vous intéresser
Nous vous proposons de découvrir aussi cette sélection de logements situés à moins de 10km de Brest et qui seraient susceptibles de vous intéresser.
Gouesnou
TERRAIN ET MAISONDEVENEZ PROPRIÉTAIRE À GOUESNOU – MAISON NEUVE RE2020 SUR-MESURE !Vivez dans un cadre de vie privilégié à Gouesnou, commune dynamique du Finistère, tout en restant proche des commerces, écoles et services – idéal pour votre famille ! Votre future maison comprend 😮 3 chambres spacieuses et lumineuseso Un grand salon-séjour traversant, ouvert sur le jardino Une cuisine moderne et fonctionnelleo Salle de bain et WC séparéso Le tout sur un terrain de 228 m², bien orienté Les atouts du projet 😮 Maison neuve RE2020, à faible consommation d’énergieo Plan personnalisable selon vos besoinso Cadre de vie paisible, proche des commodités et du littoralo Prestations de qualité, finitions soignées Prix indiqué hors frais Photos non contractuelles à titre d’illustration Accession à la propriété possible avec ou sans apportNe manquez pas cette belle opportunité de devenir propriétaire d’une maison neuve moderne et économique à Gouesnou ! Contactez-nous dès maintenant pour découvrir les plans et étudier votre projet personnalisé.
Brest
TERRAIN ET MAISONDEVENEZ PROPRIÉTAIRE À BREST – MAISON NEUVE RE2020 SUR-MESURE !Vivez dans un cadre de vie privilégié à Brest, ville dynamique du Finistère, tout en profitant de la proximité des commerces, écoles et services pour un quotidien pratique et agréable. Votre future maison comprend 😮 2 chambres spacieuses et lumineuseso Un grand salon-séjour traversant, ouvert sur le jardino Une cuisine moderne et fonctionnelleo Salle de bain et WC séparéso Le tout sur un terrain de 451 m², bien orienté Les atouts du projet 😮 Maison neuve RE2020, à faible consommation d’énergieo Plan personnalisable selon vos besoinso Cadre de vie paisible, à proximité des commodités et du littoralo Prestations de qualité, finitions soignées Prix indiqué hors frais Photos non contractuelles à titre d’illustration Accession à la propriété possible avec ou sans apportNe manquez pas cette belle opportunité de devenir propriétaire d’une maison neuve moderne et économique à Brest ! Contactez-nous dès maintenant pour découvrir les plans et étudier votre projet personnalisé.
Gouesnou
TERRAINDEVENEZ PROPRIÉTAIRE D’UN TERRAIN À GOUESNOU !Installez-vous dans un cadre de vie recherché à Gouesnou, commune dynamique du Finistère, située aux portes de Brest.Profitez d’un environnement calme et résidentiel, tout en restant proche des commerces, écoles, transports et services – l’endroit idéal pour votre futur projet de vie ! Votre terrain comprend 😮 Une surface de 227 m², bien orientéeo Libre de constructeur, pour concevoir la maison qui vous ressemble Les atouts du projet 😮 Terrain viabilisé ou à proximité immédiate des réseauxo Emplacement privilégié, à seulement quelques minutes de Brest et de ses commoditéso Plan de maison personnalisable selon vos envies et vos besoins Prix indiqué hors frais Photos non contractuelles, à titre d’illustration Accession possible avec ou sans apportNe manquez pas cette opportunité rare de devenir propriétaire d’un terrain à Gouesnou, et de bâtir votre maison sur mesure dans un secteur très recherché du Finistère ! Contactez-nous dès maintenant pour plus d’informations et pour étudier ensemble votre projet.
Brest
TERRAINVENTE d’un terrain de 287 m² à BrestÀ Brest (29200) en vente sur le littoral, imaginez la maison de vos rêves sur ce terrain de 287 m². Quartier recherché de LambézellecIl est proposé à l’achat pour 70 500 €. Contactez notre agence (Jean ROPERS : (Numéro supprimé)) pour tout renseignement sur ce terrain. Maisons de l’Avenir Guipavas est là pour vous accompagner dans toutes vos démarches.
Brest
TERRAIN ET MAISONVENTE : maison F4 (80 m²) à BrestMAISON 4 PIÈCES NEUVEÀ vendre : située à quelques kilomètres de la mer, à Brest (29200), nous sommes heureux de vous proposer cette maison de 4 pièces de 80 m². Son intérieur inclut trois chambres, une cuisine et deux salles de bains.Le terrain de la propriété s’étend sur 287 m².Cette maison possède 2 niveaux. Son prix de vente est de 279 500 €.Prenez contact avec notre agence (ROPERS Jean : (Numéro supprimé)) pour toute information sur cette maison, sur les démarches à suivre ou sur les modalités de vente. Maisons de l’Avenir Guipavas est là pour vous accompagner dans tous vos projets immobiliers.
Brest
TERRAIN ET MAISONBrest : maison F4 (80 m²) à vendreMAISON 4 PIÈCES NEUVEEn vente : située sur le littoral, ayez le coup de coeur pour cette maison de 4 pièces de 80 m² et de 287 m² de terrain à Brest (29200). Son intérieur est composé de trois chambres, d’une cuisine et d’une salle de bains.Cette maison possède 2 niveaux. Son prix de vente est de 264 500 €.Contactez Jean ROPERS (tél : (Numéro supprimé)) pour plus d’informations sur la propriété ou sur les modalités de vente.
Brest
TERRAIN ET MAISONVENTE d’une maison T3 (65 m²) à BrestMAISON 3 PIÈCES NEUVEEn vente : située à quelques kilomètres de la mer, nous sommes ravis de vous proposer à Brest (29200), cette maison de 3 pièces de plain-pied de 65 m². Son intérieur compte deux chambres, une cuisine et une salle de bains.Le terrain de la maison est de 287 m².Son prix de vente est de 246 500 €.Contactez notre agence (ROPERS Jean : (Numéro supprimé)) pour plus d’informations sur le bien, sur les démarches à suivre ou sur les modalités de vente. Donnez vie à vos projets immobiliers avec Maisons de l’Avenir Guipavas.
Brest
TERRAIN ET MAISONVENTE : maison de 5 pièces (90 m²) à BrestMAISON 5 PIÈCES NEUVESur le littoral, nous sommes heureux de vous proposer cette maison de 5 pièces de 90 m² et de 287 m² de terrain à Brest (29200).Cette maison comporte 2 niveaux. Son intérieur compte trois chambres, une cuisine et deux salles de bains. Elle est à vendre pour la somme de 301 500 €.Contactez notre agence (ROPERS Jean : (Numéro supprimé)) pour toute information sur la maison. Maisons de l’Avenir Guipavas vous accompagne dans tous vos projets immobiliers et dans toutes vos démarches.
Guipavas
TERRAINGuipavas : terrain de 398 m² en venteIdéalement situé. Proche des axes et transports en communÀ Guipavas (29490) à vendre à deux pas de Brest, projetez la maison de vos rêves sur ce terrain de 398 m². Plat et bien exposéSon prix de vente est de 94 197 €. Prenez contact avec Jean ROPERS (tél : (Numéro supprimé)) pour obtenir de plus amples renseignements sur le terrain.
L’actualité immobilière à Brest
27/11/2023
02/11/2023
30/10/2023
20/10/2023
16/10/2023
16/10/2023