Maison à construire à Briec (29510)
Images
Description
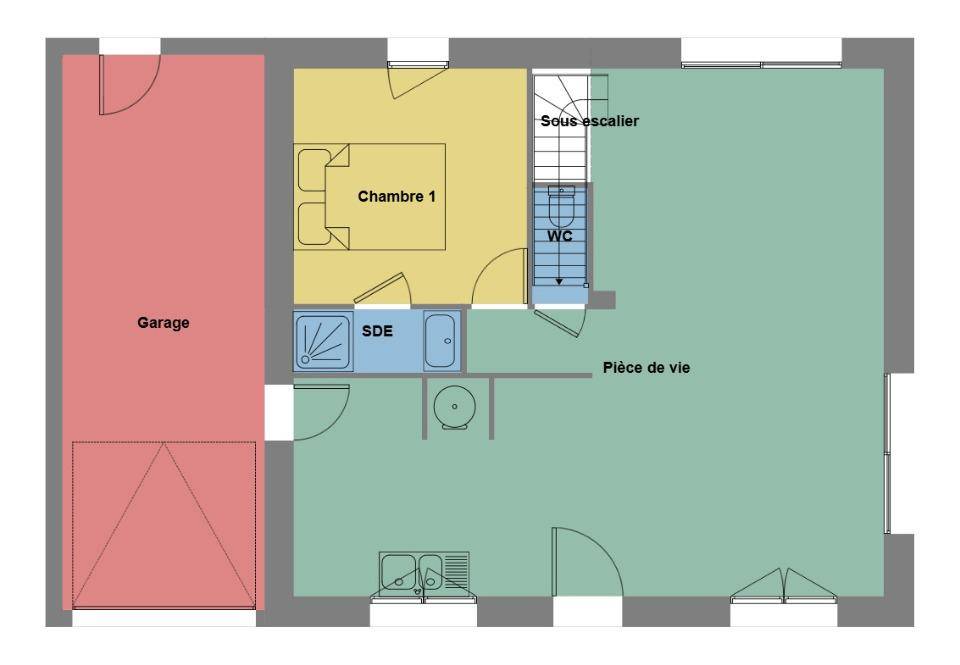
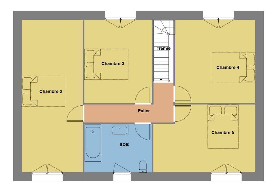
Maison de 6 pièces (130 m²) en vente à Briec
CENTRE-VILLE - MAISON 6 PIÈCES NEUVE
En vente à 24 km de l'océan Atlantique et à quelques kilomètres de Quimper, Maisons de l'Avenir Quimper vous propose cette maison de 6 pièces de 130 m² dans le centre de Briec (29510).
Il s'agit d'une maison de 2 niveaux. Elle se divise en cinq chambres, une cuisine et deux salles de bains.
Le terrain de la propriété est de 500 m².
Elle est proposée à l'achat pour 382 000 €.
Contactez notre agence (DEROUET Mathieu : (Numéro supprimé)) pour toute information sur la propriété et sur les modalités de vente. Concrétisez vos projets immobiliers avec Maisons de l'Avenir Quimper.
Logement susceptibles de vous intéresser
Nous vous proposons de découvrir aussi cette sélection de logements situés à moins de 10km de Briec et qui seraient susceptibles de vous intéresser.
Briec
TERRAINBriec : terrain de 360 m² à vendreCENTRE-VILLE – PROCHE DE QUIMPERÀ Briec (29510) à 24 km de la côte atlantique et à deux pas de Quimper, projetez la maison de vos rêves sur ce terrain de 360 m². Il est situé en centre-ville. ISon prix de vente est de 48 000 €. Prenez contact avec Mathieu DEROUET (tél : (Numéro supprimé)) pour toute question sur ce terrain, sur les modalités de vente et sur les démarches à suivre. Maisons de l’Avenir Quimper est là pour vous accompagner dans tous vos projets immobiliers.
Briec
TERRAIN ET MAISONMaison T4 (75 m²) en vente à BriecCENTRE-VILLE – MAISON 4 PIÈCES NEUVEEn vente : située à 24 km de la côte atlantique et à quelques kilomètres de Quimper, notre agence Maisons de l’Avenir Quimper est heureuse de vous proposer cette maison de 4 pièces de 75 m² à Briec (29510), en centre-ville.Il s’agit d’une maison de 2 niveaux. Elle offre trois chambres, une cuisine et une salle de bains. Elle est à vendre pour la somme de 230 500 €.N’hésitez pas à prendre contact avec Mathieu DEROUET ((Numéro supprimé)) pour plus d’informations sur la maison.
Briec
TERRAIN ET MAISONVENTE d’une maison T4 (80 m²) à BriecCENTRE-VILLE – MAISON 4 PIÈCES NEUVEEn vente : à 24 km de la côte atlantique et à 13 km de Quimper, nous sommes heureux de vous proposer, à Briec (29510), en centre-ville, cette maison de 4 pièces de plain-pied de 80 m² et de 360 m² de terrain.Conçue de plain-pied, elle offre trois chambres, une cuisine et une salle de bains. Cette maison est neuve.Elle est à vendre pour la somme de 249 000 €.Contactez notre agence (Mathieu DEROUET : (Numéro supprimé)) pour toute question sur la maison ou sur les modalités de vente. Faites de vos projets immobiliers une réalité avec Maisons de l’Avenir Quimper.
Briec
TERRAIN ET MAISONBriec : maison F5 (125 m²) en venteCENTRE-VILLE – MAISON 5 PIÈCES NEUVEEn vente à 24 km de l’océan Atlantique et à quelques kilomètres de Quimper, nous vous présentons cette maison de 5 pièces de 125 m² et de 360 m² de terrain dans le centre-ville de Briec (29510). Elle dispose de quatre chambres, d’une cuisine et de deux salles de bains.Cette maison compte 2 niveaux. Elle est à vendre pour la somme de 348 000 €.Contactez notre agence (DEROUET Mathieu : (Numéro supprimé)) pour plus de renseignements sur la maison ou sur les modalités de vente.
Briec
TERRAIN ET MAISONMaison F4 (100 m²) à vendre à BriecCENTRE-VILLE – MAISON 4 PIÈCES NEUVEEn vente à 24 km de la côte atlantique et à deux pas de Quimper, Maisons de l’Avenir Quimper vous présente cette maison de 4 pièces de 100 m² dans le centre de Briec (29510). Son intérieur comporte trois chambres, une cuisine et une salle de bains.Le terrain de la maison est de 360 m².Cette maison compte 2 niveaux. Elle est proposée à l’achat pour 278 000 €.Contactez Mathieu DEROUET (tél : (Numéro supprimé)) pour tout renseignement sur la maison ou sur les démarches à suivre. Concrétisez vos projets immobiliers avec Maisons de l’Avenir Quimper.
Briec
TERRAIN ET MAISONBriec : maison F3 (75 m²) à vendreCENTRE-VILLE – MAISON 3 PIÈCES OSSATURE BOIS En vente : à 24 km de la côte atlantique et à deux pas de Quimper, dans le centre-ville de Briec (29510), Maisons de l’Avenir Quimper vous présente cette maison de 3 pièces de 75 m² et de 360 m² de terrain.Cette maison possède 2 niveaux. Elle compte deux chambres, une cuisine et une salle de bains. Il est proposé à l’achat pour 234 150 €.Contactez notre agence (Mathieu DEROUET : (Numéro supprimé)) pour tout renseignement sur la maison ou sur les démarches à suivre. Faites de vos projets immobiliers une réalité avec Maisons de l’Avenir Quimper.
Ergué-Gabéric
TERRAINVENTE d’un terrain de 477 m² à Ergué-GabéricPROCHE DE QUIMPERÀ Ergué-Gabéric (29500) en vente à 15 km de la côte atlantique et à quelques kilomètres de Quimper, donnez vie à la maison de vos rêves sur ce terrain de 477 m². Il bénéficie d’une exposition sud-ouest. Des établissements scolaires de tous niveaux sont implantés à moins de 10 minutes en voiture, tout comme sept crèches à moins de 10 minutes à pied. Côté transports, il y a la gare Quimper à moins de 10 minutes en voiture. On trouve un accès à la nationale N165 à 5 km. On trouve des tennis, des bibliothèques, des bassins de natation, un bowling, des boulangeries, des commerces, des supermarchés, des poissonneries et des épiceries à proximité du bien. Enfin, le marché Place terre au Duc a lieu tous les mercredis.Il est à vendre pour la somme de 65 000 €. Contactez notre agence (LAURENT Marie : (Numéro supprimé)) pour toute information sur ce terrain ou sur les modalités de vente.
Ergué-Gabéric
TERRAIN ET MAISONVENTE d’une maison F3 (57 m²) à Ergué-GabéricMAISON 3 PIÈCES NEUVE – PROCHE DE QUIMPEREn vente : localisée à 15 km de la côte atlantique et à 7 km de Quimper, nous sommes ravis de vous proposer à Ergué-Gabéric (29500), cette maison de 3 pièces de plain-pied de 57 m² et de 477 m² de terrain. Son intérieur inclut deux chambres, une cuisine et une salle de bains.La maison est neuve.On trouve des écoles de tous types (de la maternelle au lycée) à moins de 10 minutes en voiture, tout comme sept structures d’accueil pour les enfants en bas âge à moins de 10 minutes à pied. Niveau transports, il y a la gare Quimper à moins de 10 minutes en voiture. La nationale N165 est accessible à 5 km. On trouve des tennis, des bibliothèques, des bassins de natation, un bowling, des boulangeries, des commerces, des supermarchés, des boucheries-charcuteries et des supérettes à quelques minutes du bien. Ne manquez pas le marché Place terre au Duc chaque mercredi.Elle est proposée à l’achat pour 180 600 €.N’hésitez pas à prendre contact avec notre agence (Marie LAURENT : (Numéro supprimé)) pour toute question sur cette maison ou sur les démarches à suivre.
Ergué-Gabéric
TERRAIN ET MAISONMaison F4 (80 m²) en vente à Ergué-GabéricPROCHE DE QUIMPER – MAISON 4 PIÈCES NEUVEEn vente à 15 km de l’océan Atlantique et à deux pas de Quimper, à Ergué-Gabéric (29500), venez découvrir cette maison de 4 pièces de 80 m² et de 477 m² de terrain. Elle inclut trois chambres, une cuisine et une salle de bains.Cette maison comporte 2 niveaux. Elle est neuve.Des écoles de tous types se trouvent à moins de 10 minutes en voiture, tout comme sept structures d’accueil pour les enfants en bas âge à moins de 10 minutes à pied. Niveau transports, il y a la gare Quimper à moins de 10 minutes en voiture. On trouve un accès à la nationale N165 à 5 km. On trouve des tennis, des bibliothèques, des bassins de natation, un bowling, des boulangeries, des commerces, des supermarchés, des boucheries-charcuteries et des épiceries dans les environs. Ne manquez pas le marché Place terre au Duc tous les mercredis.Son prix de vente est de 249 700 €.Contactez Marie LAURENT (tél : (Numéro supprimé)) pour obtenir de plus amples informations sur cette maison. Faites de vos projets immobiliers une réalité avec Maisons de l’Avenir Quimper.
L’actualité immobilière à Briec
27/11/2023
02/11/2023
30/10/2023
20/10/2023
16/10/2023
16/10/2023