Maison à construire à Cast (29150)
Images
Description
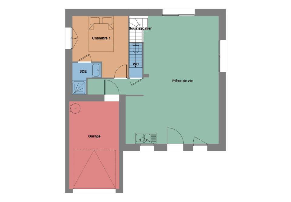
Cast : maison de 5 pièces (102 m²) à vendre
PROCHE CENTRE-VILLE - MAISON 5 PIÈCES NEUVE
En vente à 15 km de la côte atlantique et à 17 km de Quimper, nous vous proposons cette maison de 5 pièces de 102 m² proche du centre-ville de Cast (29150).
Cette maison possède 2 niveaux. Elle inclut quatre chambres, une cuisine et deux salles de bains. Cette maison est neuve.
Le terrain du bien s'étend sur 371 m².
Il y a l'École Primaire Publique de Cast et l'École Primaire Privée Notre-Dame à moins de 10 minutes à pied. Côté transports en commun, on trouve la gare Châteaulin à moins de 10 minutes en voiture. On trouve un accès à la nationale N165 à 8 km. Il y a un tennis et une boucherie-charcuterie à proximité.
Elle est proposée à l'achat pour 206 835 €.
Contactez Sami ALKIS pour toute information sur le bien. Maisons de l'Avenir Guipavas est là pour vous accompagner dans tous vos projets immobiliers.
Logement susceptibles de vous intéresser
Nous vous proposons de découvrir aussi cette sélection de logements situés à moins de 10km de Cast et qui seraient susceptibles de vous intéresser.
Locronan
TERRAINEn exclusivité agence :Terrain constructible à Locronan de 1160m2 avec aperçu mer – 97 990 euros FAIDécouvrez ce magnifique terrain niché sur les hauteurs du célèbre village historique de Locronan offrant une vue imprenable sur le Porzay et l’océan.Ce terrain avec un dénivelé offre un cadre idéal pour profiter d’une vue panoramique sur le Ménez Hom et les plages.L’assainissement est tout à l’égout et les réseaux sont déjà au bord de la parcelle.Un environnement calme, très arboré et préservé.Possibilité d’acquérir en sus une parcelle d’environ 450m2 en zone naturelle donc non constructible.- Situé dans un quartier paisible- A proximité des commerces, écoles (école Ste Anne à Locronan, écoles à Plogonnec, Plonévez Porzay), services publics.- A 5 km des premières plages- Implanté au coeur d’un village historique unique, célèbre pour ses maisons en pierre et son patrimoine remarquable.Prix : 97990 euros incluant les honoraires d’un montant de 7990 euros dont 8.88% à la charge de l’acquéreur.Prix Net vendeur : 90000 eurosFrais de Notaire en Sus : 8000 eurosCe terrain est une opportunité rare pour construire la maison de vos rêves dans un environnement naturel et authentique.Contactez moi dès maintenant pour plus d’informations ou pour planifier une visite !Pour visiter et vous accompagner dans votre projet, contactez Laetitia DREAU, au (Numéro supprimé) ou, par courriel à (Email supprimé).Selon l’article L.561.5 du Code Monétaire et Financier, pour l’organisation de la visite, la présentation d’une pièce d’identité vous sera demandée.Cette présente annonce a été rédigée sous la responsabilité éditoriale de Laetitia DREAU agissant sous le statut d’agent commercial immatriculé au RSAC 948169917 QUIMPER auprès de SAS PROPRIETES PRIVEES, au capital de 44 920 euros, ZAC LE CHÊNE FERRÉ – 44 ALLÉE DES CINQ CONTINENTS 44120 VERTOU; SIRET 487 624 777 00040, RCS Nantes. Carte Professionnelle Transactions sur immeubles et fonds de commerce (T) et Gestion immobilière (G) n°CPI 4401 2016 000 010 388 délivrée par la CCI Nantes – Saint Nazaire. Compte séquestre n(Numéro supprimé)67 BPA SAINT-SEBASTIEN-SUR-LOIRE (44230). Garantie GALIAN-SMABTP – 89 rue de la Boétie, 75008 Paris – n°28137 J pour 2 000 000 euros pour T et 120 000 euros pour G. Assurance responsabilité civile professionnelle par GALIAN-SMABTP n° de police 28137.JMandat réf : 426122 – Le professionnel garantit et sécurise votre projet immobilier. (8.88 % honoraires TTC à la charge de l’acquéreur.) Julien PÉROT (EI) Agent Commercial – Numéro RSAC : SAINT BRIEUC 822474151 – .
Plomodiern
TERRAIN ET MAISONDEVENEZ PROPRIÉTAIRE À PLOMODIERN – MAISON NEUVE conforme à la dernière norme basse consommation RE-2020 !Vivez dans un cadre de vie privilégié à Plomodiern, commune appréciée pour son calme, son environnement naturel et sa proximité avec les commerces, les services et les écoles. Un lieu idéal pour accueillir votre famille dans un cadre serein et agréable !Votre future maison comprend 😮 3 chambres spacieuses et lumineuseso Un grand salon-séjour traversant ouvert sur le jardino Une cuisine moderne et fonctionnelleo Salle de bain et WC séparésLes atouts du projet 😮 Maison neuve RE2020, à faible consommation d’énergieo Plan personnalisable selon vos besoinso Environnement calme et familialo Prestations de qualité, finitions soignéesCe projet s’implante sur un terrain idéalement situé à Plomodiern, d’environ 535 m² (surface selon disponibilité des partenaires fonciers).Accession à la propriété possible avec ou sans apport, étude de financement gratuite.Photos à titre d’illustration (photos d’une de nos réalisations – non contractuelles).Nous trouvons l’adresse idéale parmi un large choix de terrains disponibles pour votre future demeure.Ne manquez pas cette belle opportunité de devenir propriétaire d’une maison neuve moderne et économique à Plomodiern !Contactez-nous dès maintenant pour découvrir les plans et étudier votre projet personnalisé.Armorique Immos, franchise d’un constructeur national de maisons individuelles depuis plus de 40 ans, propose en collaboration avec ses partenaires fonciers une sélection de terrains constructibles, selon disponibilité, pour la construction de maisons neuves définies par le constructeur, avec un contrat de construction de maison individuelle, dans le cadre de la loi du 19/12/1990.Prix net, hors frais notariés, d’enregistrement et de publicité foncière.Étude financière réalisée par nos partenaires en courtage (IOSB inscrit à l’Orias).
Cast
TERRAIN ET MAISONCast : maison de 5 pièces (102 m²) à vendrePROCHE CENTRE-VILLE – MAISON 5 PIÈCES NEUVEEn vente à 15 km de la côte atlantique et à 17 km de Quimper, nous vous proposons cette maison de 5 pièces de 102 m² proche du centre-ville de Cast (29150).Cette maison possède 2 niveaux. Elle inclut quatre chambres, une cuisine et deux salles de bains. Cette maison est neuve.Le terrain du bien s’étend sur 371 m².Il y a l’École Primaire Publique de Cast et l’École Primaire Privée Notre-Dame à moins de 10 minutes à pied. Côté transports en commun, on trouve la gare Châteaulin à moins de 10 minutes en voiture. On trouve un accès à la nationale N165 à 8 km. Il y a un tennis et une boucherie-charcuterie à proximité.Elle est proposée à l’achat pour 206 835 €.Contactez Sami ALKIS pour toute information sur le bien. Maisons de l’Avenir Guipavas est là pour vous accompagner dans tous vos projets immobiliers.
Cast
TERRAIN ET MAISONVENTE : maison T4 (82 m²) à CastPROCHE CENTRE-VILLE – MAISON 4 PIÈCES NEUVEEn vente : située à 15 km de la côte atlantique et à 17 km de Quimper, notre agence Maisons de l’Avenir Guipavas est heureuse de vous présenter cette maison de 4 pièces de plain-pied de 82 m² et de 371 m² de terrain, proche du centre-ville de Cast (29150). Son intérieur inclut trois chambres, une cuisine et une salle de bains.La maison est neuve.L’École Primaire Publique de Cast et l’École Primaire Privée Notre-Dame se trouvent à moins de 10 minutes à pied. Côté transports, il y a la gare Châteaulin à moins de 10 minutes en voiture. La nationale N165 est accessible à 8 km. On trouve un tennis et une boucherie-charcuterie dans les environs.Son prix de vente est de 195 918 €.Contactez Sami ALKIS pour tout renseignement sur le bien. Faites de vos projets immobiliers une réalité avec Maisons de l’Avenir Guipavas.
Cast
TERRAINVENTE d’un terrain de 509 m² à CastPROCHE CENTRE-VILLE – PROCHE DE QUIMPERGrand terrain à 15 km de la côte atlantique et à 17 km de Quimper. De 509 m², ce terrain se situe proche du centre-ville de Cast (29150). Il bénéficie d’une exposition sud-ouest. L’École Primaire Publique de Cast et l’École Primaire Privée Notre-Dame se trouvent à moins de 10 minutes à pied. Niveau transports en commun, il y a la gare Châteaulin à moins de 10 minutes en voiture. Il y a un accès à la nationale N165 à 8 km. On trouve un tennis et une boucherie-charcuterie dans les environs.Il est proposé à l’achat pour 19 851 €. Contactez notre agence (Sami ALKIS) pour tout renseignement sur le terrain. Maisons de l’Avenir Guipavas est là pour vous accompagner dans tous vos projets immobiliers.
Cast
TERRAIN ET MAISONMaison de 4 pièces (94 m²) en vente à CastPROCHE CENTRE-VILLE – MAISON 4 PIÈCES NEUVEÀ 15 km de l’océan Atlantique et à deux pas de Quimper, en vente proche du centre-ville de Cast (29150), nous sommes heureux de vous proposer cette maison de 4 pièces de plain-pied de 94 m².Elle comporte trois chambres, une cuisine et deux salles de bains. La maison est neuve.Le terrain de la propriété est de 509 m².L’École Primaire Publique de Cast et l’École Primaire Privée Notre-Dame sont implantées à moins de 10 minutes à pied. Côté transports en commun, on trouve la gare Châteaulin à moins de 10 minutes en voiture. On trouve un accès à la nationale N165 à 8 km. Il y a un tennis et une boucherie-charcuterie à quelques minutes du logement.Elle est à vendre pour la somme de 247 812 €.N’hésitez pas à prendre contact avec notre agence (ALKIS Sami) pour toute information sur la maison, sur les démarches à suivre ou sur les modalités de vente. Faites de vos projets immobiliers une réalité avec Maisons de l’Avenir Guipavas.
Cast
TERRAIN ET MAISONVENTE d’une maison de 5 pièces (140 m²) à CastPROCHE CENTRE-VILLE – MAISON 5 PIÈCES NEUVEÀ 15 km de l’océan Atlantique et à quelques kilomètres de Quimper, votre agence Maisons de l’Avenir Guipavas est heureuse de vous proposer en vente, proche du centre-ville de Cast (29150), cette maison de 5 pièces de 140 m² et de 509 m² de terrain.C’est une maison de 2 niveaux. Son intérieur dispose de quatre chambres, d’une cuisine et de deux salles de bains. La maison est neuve.Il y a l’École Primaire Publique de Cast et l’École Primaire Privée Notre-Dame à moins de 10 minutes à pied. Côté transports, on trouve la gare Châteaulin à moins de 10 minutes en voiture. La nationale N165 est accessible à 8 km. Il y a un tennis et une boucherie-charcuterie à proximité du logement.Elle est proposée à l’achat pour 332 543 €.N’hésitez pas à prendre contact avec notre agence (ALKIS Sami) pour tout renseignement sur la maison, sur les démarches à suivre ou sur les modalités de vente. Maisons de l’Avenir Guipavas est là pour vous accompagner dans tous vos projets immobiliers.
Cast
TERRAIN ET MAISONVENTE d’une maison T4 (73 m²) à CastPROCHE CENTRE-VILLE – MAISON 4 PIÈCES NEUVEÀ 15 km de l’océan Atlantique et à 17 km de Quimper, à vendre proche du centre-ville de Cast (29150), Maisons de l’Avenir Guipavas vous propose cette maison de 4 pièces de 73 m² et de 509 m² de terrain. Elle compte trois chambres, une cuisine et une salle de bains.Cette maison possède 2 niveaux. Elle est neuve.Il y a l’École Primaire Publique de Cast et l’École Primaire Privée Notre-Dame à moins de 10 minutes à pied. Niveau transports, on trouve la gare Châteaulin à moins de 10 minutes en voiture. La nationale N165 est accessible à 8 km. Il y a un tennis et une boucherie-charcuterie à quelques minutes du logement.Son prix de vente est de 174 816 €.Prenez contact avec Sami ALKIS pour plus d’informations sur la maison, sur les modalités de vente ou sur les démarches à suivre. Maisons de l’Avenir Guipavas vous accompagne dans tous vos projets immobiliers et à toutes les étapes de votre projet.
Cast
TERRAINVENTE d’un terrain de 371 m² à CastPROCHE CENTRE-VILLE – PROCHE DE QUIMPERÀ Cast (29150) en vente à 17 km de Quimper, imaginez la maison de vos rêves sur ce terrain de 371 m². Il bénéficie d’une exposition sud-ouest. Il est situé non loin du centre-ville. Il y a l’École Primaire Publique de Cast et l’École Primaire Privée Notre-Dame à moins de 10 minutes à pied. Niveau transports en commun, on trouve la gare Châteaulin à moins de 10 minutes en voiture. La nationale N165 est accessible à 8 km. Il y a un tennis et une boucherie-charcuterie à quelques minutes du terrain.Ce terrain est à vendre pour la somme de 14 469 €. Prenez contact avec notre agence (ALKIS Sami) pour obtenir de plus amples renseignements sur ce terrain, sur les modalités de vente ou sur les démarches à suivre.
L’actualité immobilière à Cast
27/11/2023
02/11/2023
30/10/2023
20/10/2023
16/10/2023
16/10/2023