Maison à construire à Cléder (29233)
Images
Description
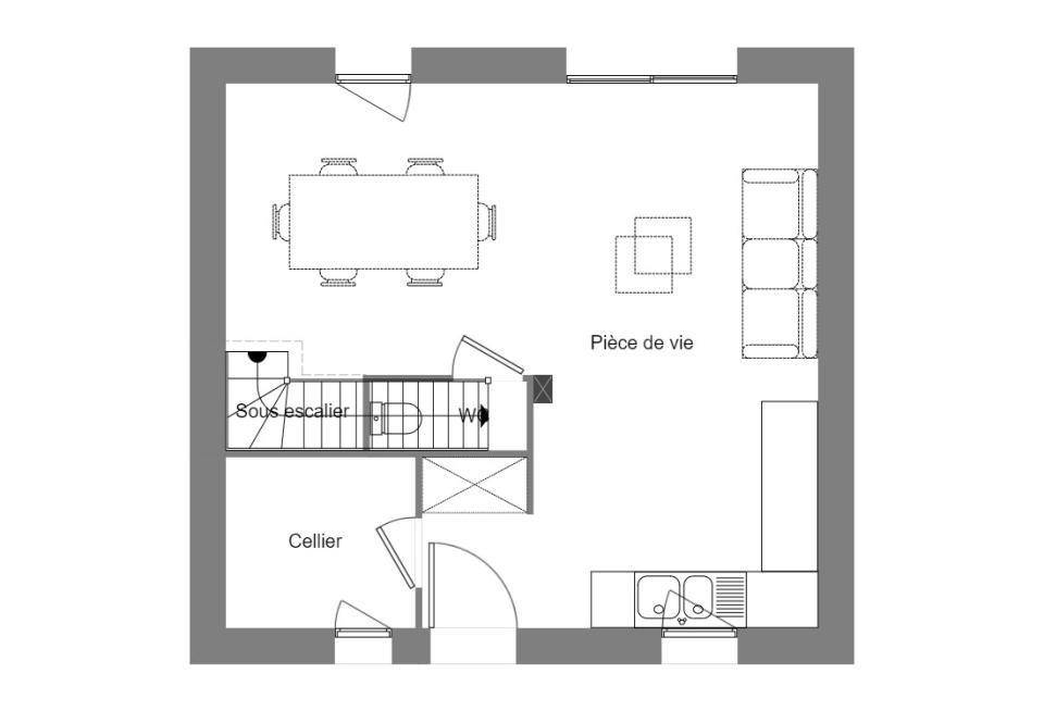
VENTE d'une maison de 4 pièces (67 m²) à Cléder
Cette belle maison traditionnelle aux lignes contemporaines offre 67m² habitable .
Au rez-de-chaussée, elle dispose d'une belle pièce de vie offrant un maximum de lumière, d'un wc et d'un cellier.
A l'étage on retrouve 3 chambres, une salle de bains, et un WC. L'orientation de cette maison vous permettra de bénéficier d'un maximum de lumière et de chaleur naturelle pour davantage d'économies et de douceur de vivre.
Elle est à vendre pour la somme de 201 600 €.
N'hésitez pas à prendre contact avec Aurélie CAGNARD (tél : (Numéro supprimé)) pour toute information sur cette maison. Maisons de l'Avenir Guipavas vous accompagne à toutes les étapes de l'achat et dans toutes vos démarches.
Logement susceptibles de vous intéresser
Nous vous proposons de découvrir aussi cette sélection de logements situés à moins de 10km de Cléder et qui seraient susceptibles de vous intéresser.
Plouzévédé
TERRAIN ET MAISONVous rêvez d’une maison neuve, moderne et adaptée à vos besoins ? Nous vous proposons un projet de construction comprenant :- Une maison individuelle comprenant : 3 chambres spacieuses, un grand salon lumineux, une cuisine fonctionnelle, WC , salle(s) de bain/d’eau sur un terrain de 400m², idéalement situé à PLOUZEVEDE.Profitez d’une maison sur-mesure, conçue pour votre confort et votre bien-être ! Maison RE2020 à faible consommation d’énergies. Prix hors frais. Photos non contractuelles et illustratives. Possibilité d’accession à la propriété avec un CDI (hors CAF, RSA et Pôle Emploi). Pour tout renseignement supplémentaire, contactez nous au (Numéro supprimé).
Saint-Vougay
TERRAIN ET MAISONSaint-Vougay : maison de 5 pièces (176 m²) en venteCette belle maison traditionnelle aux lignes contemporaines offre 176m² habitable . Au rez-de-chaussée, elle dispose d’une belle pièce de vie offrant un maximum de lumière, d’une suite parentale avec sa salle d’eau, d’un wc, d’un cellier et un garage.A l’étage on retrouve 3 chambres, une salle de bains, et un WC. L’orientation de cette maison vous permettra de bénéficier d’un maximum de lumière et de chaleur naturelle pour davantage d’économies et de douceur de vivre.Elle est proposée à l’achat pour 512 600 €.Prenez contact avec notre constructeur (Aurélie CAGNARD : (Numéro supprimé)) pour plus de renseignements sur cette propriété ou sur les démarches à suivre.
Saint-Vougay
TERRAINDans la charmante commune de Saint vougay, un terrain de 1037m² est désormais sur le marché. Ce terrain, idéalement situé, offre une opportunité rare d’investissement et de construction dans une zone recherchée.Ce terrain se distingue par son emplacement de choix.L’atout majeur de ce terrain est sans aucun doute sa superficie généreuse de 1037m². Cet espace offre une grande liberté pour la construction de votre future maison. Que vous envisagiez une maison familiale spacieuse, une habitation à l’architecture moderne ou une demeure au charme traditionnel, ce terrain est idéal pour réaliser vos projets.De plus, il bénéficie d’une excellente exposition. Il promet une luminosité optimale tout au long de la journée, un atout de taille pour profiter au maximum de votre future maison.N’attendez plus pour découvrir ce terrain, une opportunité à ne pas manquer pour concrétiser vos projets immobiliers.Son prix de vente est de 40 000 €. N’hésitez pas à prendre contact avec Aurélie CAGNARD ((Numéro supprimé)) pour plus de renseignements sur ce terrain. Maisons de l’Avenir Guipavas vous accompagne à toutes les étapes de votre projet et dans tous vos projets immobiliers.
Saint-Vougay
TERRAIN ET MAISONVENTE : maison F4 (114 m²) à Saint-VougayCette belle maison traditionnelle aux lignes contemporaines offre 114m² habitable . Au rez-de-chaussée, elle dispose d’une belle pièce de vie offrant un maximum de lumière, d’une suite parentale avec sa salle d’eau, d’un wc, d’un cellier et un garage.A l’étage on retrouve 2 chambres, une salle de bains, et un WC. L’orientation de cette maison vous permettra de bénéficier d’un maximum de lumière et de chaleur naturelle pour davantage d’économies et de douceur de vivre.Elle est proposée à l’achat pour 317 200 €.N’hésitez pas à prendre contact avec notre agence (CAGNARD Aurélie : (Numéro supprimé)) pour obtenir de plus amples informations sur cette maison, sur les modalités de vente ou sur les démarches à suivre. Maisons de l’Avenir Guipavas vous accompagne à toutes les étapes de l’achat et dans tous vos projets immobiliers.
Saint-Vougay
TERRAIN ET MAISONMaison de 5 pièces (142 m²) à vendre à Saint-VougayCette belle maison traditionnelle aux lignes contemporaines offre 142m² habitable . Au rez-de-chaussée, elle dispose d’une belle pièce de vie offrant un maximum de lumière, d’une suite parentale avec sa salle d’eau, d’un wc, d’un cellier et un garage.A l’étage on retrouve 3 chambres, une salle de bains, et un WC. L’orientation de cette maison vous permettra de bénéficier d’un maximum de lumière et de chaleur naturelle pour davantage d’économies et de douceur de vivre.Elle est proposée à l’achat pour 410 000 €.Contactez Aurélie CAGNARD (tél : (Numéro supprimé)) pour obtenir de plus amples renseignements sur la maison ou sur les démarches à suivre.
Saint-Vougay
TERRAIN ET MAISONMaison F7 (104 m²) à vendre à Saint-VougayNouveau Murs Ossature BoisNouveau Murs Ossature BoisCette belle maison traditionnelle aux lignes contemporaines offre 104m² habitable . Elle dispose d’une suite parentale avec sa salle d’eau, d’une belle pièce de vie offrant un maximum de lumière et d’un cellier.A l’étage vous disposerez 4 chambres et une salle de bains.L’orientation de cette maison vous permettra de bénéficier d’un maximum de lumière et de chaleur naturelle pour davantage d’économies et de douceur de vivre.Aux normes RE2020, peu énergivore, elle vous ravira par son confort de vie.Elle est proposée à l’achat pour 289 600 €.Prenez contact avec notre agence (Aurélie CAGNARD : (Numéro supprimé)) pour plus de renseignements sur cette maison.
Cléder
TERRAINJoli terrain sur CLEDER, plat et idéalement situé, parfait pour réaliser votre projet de construction avec notre entreprise.- Superficie : 435m²- Terrain : Plat et facile à aménager- Emplacement : Idéalement situé dans un cadre agréable- Prix Hors fraisNe manquez pas cette opportunité !Pour plus d’informations, contactez nous au (Numéro supprimé).
Plouzévédé
TERRAINJoli terrain sur PLOUZEVEDE, plat et idéalement situé, parfait pour réaliser votre projet de construction avec notre entreprise.- Superficie : 544 m²- Terrain : Plat et facile à aménager- Emplacement : Idéalement situé dans un cadre agréable- Prix Hors fraisNe manquez pas cette opportunité !Pour plus d’informations, contactez nous au (Numéro supprimé).
Cléder
TERRAINCe terrain, qui se distingue par son emplacement de choix, offre un cadre de vie idyllique. Niché au coeur de Cléder, une ville réputée pour son charme et son atmosphère paisible, ce terrain représente une opportunité rare sur le marché immobilier actuel.L’un des points forts majeurs de ce terrain est sans aucun doute son environnement. Cléder, situé entre terre et mer, offre un panorama exceptionnel, alliant verdure luxuriante et air marin vivifiant. Ce terrain se trouve à proximité des commodités essentielles, garantissant un confort de vie optimal.De plus, ce terrain offre un potentiel d’aménagement considérable. Avec ses 737m², les possibilités sont nombreuses pour réaliser le projet de vos rêves, que ce soit la construction d’une résidence principale spacieuse, d’une maison de vacances confortable ou d’un investissement locatif rentable.Enfin, ce terrain se distingue par son excellent rapport qualité prix. Investir dans ce terrain, c’est faire le choix d’un investissement sûr et rentable, dans une ville en pleine expansion.Ne manquez pas cette occasion unique de devenir propriétaire d’un terrain d’exception à Cléder.Il est proposé à l’achat pour 94 300 €. Contactez notre agence (CAGNARD Aurélie : (Numéro supprimé)) pour toute information sur le terrain. Maisons de l’Avenir Guipavas vous accompagne dans tous vos projets immobiliers et à toutes les étapes de l’achat.
L’actualité immobilière à Cléder
27/11/2023
02/11/2023
30/10/2023
20/10/2023
16/10/2023
16/10/2023