Maison à construire à Cléder (29233)
Images
Description
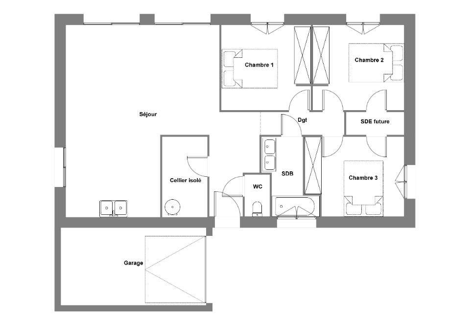
VENTE d'une maison de 4 pièces (80 m²) à Cléder
Très beau plain-pied aux lignes traditionnelles, agencé astucieusement pour un maximum de luminosité, pièce de vie ouverte, cellier, 3 chambres, 2 salles d'eau, un wc et un garage.
Aux normes RE2020, peu énergivore, elle vous ravira par son confort de vie.
Elle est proposée à l'achat pour 247 500 €.
Contactez Aurélie CAGNARD ((Numéro supprimé)) pour plus de renseignements sur la maison, sur les démarches à suivre ou sur les modalités de vente. Maisons de l'Avenir Guipavas est là pour vous accompagner à toutes les étapes de votre projet.
Logement susceptibles de vous intéresser
Nous vous proposons de découvrir aussi cette sélection de logements situés à moins de 10km de Cléder et qui seraient susceptibles de vous intéresser.
Cléder
TERRAINJoli terrain sur CLEDER, plat et idéalement situé, parfait pour réaliser votre projet de construction avec notre entreprise.- Superficie : 435m²- Terrain : Plat et facile à aménager- Emplacement : Idéalement situé dans un cadre agréable- Prix Hors fraisNe manquez pas cette opportunité !Pour plus d’informations, contactez nous au (Numéro supprimé).
Plouzévédé
TERRAINJoli terrain sur PLOUZEVEDE, plat et idéalement situé, parfait pour réaliser votre projet de construction avec notre entreprise.- Superficie : 544 m²- Terrain : Plat et facile à aménager- Emplacement : Idéalement situé dans un cadre agréable- Prix Hors fraisNe manquez pas cette opportunité !Pour plus d’informations, contactez nous au (Numéro supprimé).
Cléder
TERRAINCe terrain, qui se distingue par son emplacement de choix, offre un cadre de vie idyllique. Niché au coeur de Cléder, une ville réputée pour son charme et son atmosphère paisible, ce terrain représente une opportunité rare sur le marché immobilier actuel.L’un des points forts majeurs de ce terrain est sans aucun doute son environnement. Cléder, situé entre terre et mer, offre un panorama exceptionnel, alliant verdure luxuriante et air marin vivifiant. Ce terrain se trouve à proximité des commodités essentielles, garantissant un confort de vie optimal.De plus, ce terrain offre un potentiel d’aménagement considérable. Avec ses 737m², les possibilités sont nombreuses pour réaliser le projet de vos rêves, que ce soit la construction d’une résidence principale spacieuse, d’une maison de vacances confortable ou d’un investissement locatif rentable.Enfin, ce terrain se distingue par son excellent rapport qualité prix. Investir dans ce terrain, c’est faire le choix d’un investissement sûr et rentable, dans une ville en pleine expansion.Ne manquez pas cette occasion unique de devenir propriétaire d’un terrain d’exception à Cléder.Il est proposé à l’achat pour 94 300 €. Contactez notre agence (CAGNARD Aurélie : (Numéro supprimé)) pour toute information sur le terrain. Maisons de l’Avenir Guipavas vous accompagne dans tous vos projets immobiliers et à toutes les étapes de l’achat.
Cléder
TERRAIN ET MAISONMaison de 4 pièces (100 m²) à vendre à CléderCette belle maison traditionnelle aux lignes contemporaines offre 100m² habitable . Au rez-de-chaussée, elle dispose d’une belle pièce de vie de offrant un maximum de lumière, d’une grande suite parentale avec sa salle d’eau, d’un wc et d’un très grand cellier. A l’étage on retrouve 2 chambres, un bureau, une salle de bains, et un WC. L’orientation de cette maison vous permettra de bénéficier d’un maximum de lumière et de chaleur naturelle pour davantage d’économies et de douceur de vivre.Elle est proposée à l’achat pour 329 300 €.N’hésitez pas à prendre contact avec Aurélie CAGNARD ((Numéro supprimé)) pour toute question sur la propriété. Faites de vos projets immobiliers une réalité avec Maisons de l’Avenir Guipavas.
Cléder
TERRAIN ET MAISONMaison de 4 pièces (82 m²) à vendre à CléderCe très beau plain-pied aux lignes traditionnelles, de 82m² agencé astucieusement pour un maximum de luminosité, pièce de vie ouverte et volumineuse, 3 chambres, salle d’eau et wc.Aux normes RE2020, peu énergivore, elle vous ravira par son confort de vie.Elle est proposée à l’achat pour 278 800 €.Contactez notre agence (CAGNARD Aurélie : (Numéro supprimé)) pour toute question sur la maison, sur les démarches à suivre ou sur les modalités de vente. Faites de vos projets immobiliers une réalité avec Maisons de l’Avenir Guipavas.
Cléder
TERRAIN ET MAISONMaison F4 (117 m²) en vente à CléderCette belle maison traditionnelle aux lignes contemporaines offre 117m² habitable . Au rez-de-chaussée, elle dispose d’une belle pièce de vie offrant un maximum de lumière, d’une suite parentale avec sa salle d’eau, d’un wc, d’un cellier et un garage.A l’étage on retrouve 2 chambres, une salle de bains, et un WC. L’orientation de cette maison vous permettra de bénéficier d’un maximum de lumière et de chaleur naturelle pour davantage d’économies et de douceur de vivre.Elle est à vendre pour la somme de 372 550 €.Contactez notre agence (CAGNARD Aurélie : (Numéro supprimé)) pour tout renseignement sur cette maison, sur les modalités de vente ou sur les démarches à suivre. Concrétisez vos projets immobiliers avec Maisons de l’Avenir Guipavas.
Cléder
TERRAIN ET MAISONVENTE d’une maison T6 (114 m²) à CléderNouveau Murs Ossature BoisCette belle maison traditionnelle aux lignes contemporaines offre 114m² habitable . Au rez-de-chaussée, elle dispose d’une belle pièce de vie offrant un maximum de lumière, d’une grande suite parentale avec sa salle d’eau, d’un wc, d’un très grand cellier et son garage. A l’étage on retrouve 4 chambres, une salle de bains, et un WC. L’orientation de cette maison vous permettra de bénéficier d’un maximum de lumière et de chaleur naturelle pour davantage d’économies et de douceur de vivre.Aux normes RE2020, peu énergivore, elle vous ravira par son confort de vie.Son prix de vente est de 365 800 €.N’hésitez pas à prendre contact avec notre agence (CAGNARD Aurélie : (Numéro supprimé)) pour toute question sur cette maison.
Cléder
TERRAINEn exclusivité, nous vous présentons une opportunité immobilière exceptionnelle dans la charmante ville de Cléder.Un terrain d’une superficie généreuse de 602m², idéalement situé, attend son futur propriétaire.Ce terrain, qui se distingue par son emplacement de choix, offre un cadre de vie idyllique. Niché au coeur de Cléder, une ville réputée pour son charme et son atmosphère paisible, ce terrain représente une opportunité rare sur le marché immobilier actuel.L’un des points forts majeurs de ce terrain est sans aucun doute son environnement. Ce terrain se trouve à proximité des commodités essentielles, garantissant un confort de vie optimal.De plus, ce terrain offre un potentiel d’aménagement considérable. Avec ses 602m², les possibilités sont nombreuses pour réaliser le projet de vos rêves, que ce soit la construction d’une résidence principale spacieuse, d’une maison de vacances confortable ou d’un investissement locatif rentable.Enfin, ce terrain se distingue par son excellent rapport qualité prix. Investir dans ce terrain, c’est faire le choix d’un investissement sûr et rentable, dans une ville en pleine expansion.Ne manquez pas cette occasion unique de devenir propriétaire d’un terrain d’exception à Cléder.Son prix de vente est de 77 000 €. Contactez Aurélie CAGNARD ((Numéro supprimé)) pour toute question sur ce terrain, sur les démarches à suivre et sur les modalités de vente. Faites de vos projets immobiliers une réalité avec Maisons de l’Avenir Guipavas.
Cléder
TERRAIN ET MAISONCléder : maison de 5 pièces (92 m²) à vendreCette belle maison traditionnelle aux lignes contemporaines offre 92m² habitable . Au rez-de-chaussée, elle dispose d’une belle pièce de vie de 35m² offrant un maximum de lumière, d’un wc et d’un garage. A l’étage on retrouve 4 chambres, une salle de bains, et un WC. L’orientation de cette maison vous permettra de bénéficier d’un maximum de lumière et de chaleur naturelle pour davantage d’économies et de douceur de vivre.Son prix de vente est de 299 000 €.N’hésitez pas à prendre contact avec notre agence (CAGNARD Aurélie : (Numéro supprimé)) pour tout renseignement sur la maison, sur les démarches à suivre ou sur les modalités de vente. Maisons de l’Avenir Guipavas est là pour vous accompagner dans tous vos projets immobiliers.
L’actualité immobilière à Cléder
27/11/2023
02/11/2023
30/10/2023
20/10/2023
16/10/2023
16/10/2023