Maison à construire à Concarneau (29900)
Images
Description
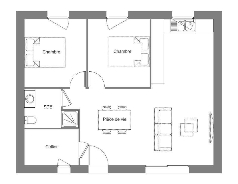
Concarneau : maison de 3 pièces (57 m²) en vente
MAISON 3 PIÈCES NEUVE
En vente : à 6 km de la côte atlantique, à Concarneau (29900), nous sommes heureux de vous présenter cette maison de 3 pièces de plain-pied de 57 m². Son intérieur offre deux chambres, une cuisine et une salle de bains.
Le terrain du bien est de 493 m².
La maison est neuve.
Il y a l'École Primaire Publique Keramporiel à moins de 10 minutes à pied. Niveau transports en commun, on trouve la gare Rosporden à moins de 10 minutes en voiture. On trouve un accès à la nationale N165 à 3 km. Il y a plusieurs commerces, un supermarché et une boulangerie à quelques minutes à peine.
Elle est proposée à l'achat pour 198 099 €.
Contactez Marie LAURENT ((Numéro supprimé)) pour obtenir de plus amples renseignements sur la maison. Concrétisez vos projets immobiliers avec Maisons de l'Avenir Quimper.
Logement susceptibles de vous intéresser
Nous vous proposons de découvrir aussi cette sélection de logements situés à moins de 10km de Concarneau et qui seraient susceptibles de vous intéresser.
Fouesnant
TERRAINVENTE d’un terrain de 360 m² à FouesnantPROCHE DE QUIMPERTerrain de 360 m² à 6 km de l’océan Atlantique et à quelques kilomètres de Quimper. Ce terrain se situe dans Fouesnant (29170). Son prix de vente est de 63 000 €. Contactez notre agence (Mathieu DEROUET : (Numéro supprimé)) pour obtenir de plus amples renseignements sur ce terrain. Maisons de l’Avenir Pont-l’Abbé vous accompagne dans tous vos projets immobiliers et dans toutes vos démarches.
Fouesnant
TERRAIN ET MAISONVENTE : maison de 4 pièces (95 m²) à FouesnantPROCHE DE QUIMPER – MAISON 4 PIÈCES NEUVEÀ vendre : située à 6 km de l’océan Atlantique et à quelques kilomètres de Quimper, votre agence Maisons de l’Avenir Pont-l’Abbé est ravie de vous présenter cette maison de 4 pièces de 95 m² à Fouesnant (29170). Son intérieur compte trois chambres, une cuisine et deux salles de bains.Le terrain du bien s’étend sur 360 m².Cette maison comporte 2 niveaux. Elle est proposée à l’achat pour 302 000 €.Prenez contact avec Mathieu DEROUET (tél : (Numéro supprimé)) pour toute information sur cette propriété, sur les démarches à suivre ou sur les modalités de vente.
Trégunc
TERRAIN ET MAISONVENTE : maison F5 (130 m²) à TréguncCENTRE-VILLE – MAISON 5 PIÈCES NEUVEEn vente : sur la côte atlantique et à deux pas de Quimper, en plein coeur de Trégunc (29910), nous vous proposons cette maison de 5 pièces de 130 m² et de 640 m² de terrain. Elle dispose de quatre chambres, d’une cuisine et de deux salles de bains.Cette maison compte 2 niveaux. Elle est à vendre pour la somme de 396 000 €.Contactez Mathieu DEROUET ((Numéro supprimé)) pour obtenir de plus amples informations sur la maison ou sur les démarches à suivre. Maisons de l’Avenir Pont-l’Abbé est là pour vous accompagner dans tous vos projets immobiliers.
Fouesnant
TERRAIN ET MAISONVENTE : maison F4 (105 m²) à FouesnantPROCHE DE QUIMPER – MAISON 4 PIÈCES NEUVEÀ vendre : localisée à 6 km de l’océan Atlantique et à quelques kilomètres de Quimper, Maisons de l’Avenir Pont-l’Abbé vous propose cette maison de 4 pièces de 105 m² et de 360 m² de terrain à Fouesnant (29170).C’est une maison de 2 niveaux. Son intérieur dispose de quatre chambres, d’une cuisine et de deux salles de bains. Son prix de vente est de 324 000 €.Prenez contact avec Mathieu DEROUET (tél : (Numéro supprimé)) pour tout renseignement sur cette maison, sur les modalités de vente ou sur les démarches à suivre. Faites de vos projets immobiliers une réalité avec Maisons de l’Avenir Pont-l’Abbé.
Trégunc
TERRAIN ET MAISONVENTE : maison T4 (90 m²) à TréguncCENTRE-VILLE – MAISON 4 PIÈCES NEUVEÀ vendre : à 5 km de l’océan Atlantique et à quelques kilomètres de Quimper, votre agence Maisons de l’Avenir Pont-l’Abbé est ravie de vous présenter cette maison de 4 pièces de 90 m² et de 640 m² de terrain en plein coeur de Trégunc (29910).Cette maison possède 2 niveaux. Son intérieur comporte trois chambres, une cuisine et deux salles de bains. Son prix de vente est de 308 000 €.N’hésitez pas à prendre contact avec notre constructeur (Mathieu DEROUET : (Numéro supprimé)) pour plus de renseignements sur le bien ou sur les démarches à suivre.
Concarneau
TERRAIN ET MAISONVENTE : maison de 4 pièces (95 m²) à ConcarneauMAISON 4 PIÈCES OSSATURE BOISÀ vendre : située à 6 km de la côte atlantique, à Concarneau (29900), nous sommes ravis de vous présenter cette maison de 4 pièces de plain-pied de 95 m² et de 540 m² de terrain.Elle propose trois chambres, une cuisine et deux salles de bains. Son prix de vente est de 328 600 €.Contactez Mathieu DEROUET ((Numéro supprimé)) pour toute information sur cette maison. Maisons de l’Avenir Quimper est là pour vous accompagner dans tous vos projets immobiliers.
Concarneau
TERRAINConcarneau : terrain de 540 m² en venteÀ Concarneau (29900) sur le littoral atlantique, donnez vie à votre projet de construction sur ce terrain de 540 m². Proche centre.Il est à vendre pour la somme de 74 000 €. Prenez contact avec Mathieu DEROUET ((Numéro supprimé)) pour obtenir de plus amples renseignements sur ce terrain, sur les modalités de vente ou sur les démarches à suivre. Maisons de l’Avenir Quimper est là pour vous accompagner à toutes les étapes de votre projet.
Concarneau
TERRAIN ET MAISONVENTE d’une maison F3 (85 m²) à ConcarneauMAISON 3 PIÈCES NEUVEEn vente sur le littoral atlantique, à Concarneau (29900), nous sommes heureux de vous présenter cette maison de 3 pièces de plain-pied de 85 m². Son intérieur offre trois chambres, une cuisine et une salle de bains.Le terrain de la propriété est de 540 m².Elle est à vendre pour la somme de 291 000 €.Contactez Mathieu DEROUET ((Numéro supprimé)) pour obtenir de plus amples renseignements sur la maison et sur les démarches à suivre.
Trégunc
TERRAIN ET MAISONTrégunc : maison F5 (155 m²) en venteCENTRE-VILLE – MAISON 5 PIÈCES NEUVEÀ vendre : située sur le littoral atlantique et à 26 km de Quimper, en plein coeur de Trégunc (29910), nous sommes heureux de vous proposer cette maison de 5 pièces de 155 m².C’est une maison de 2 niveaux. Son intérieur dispose de quatre chambres, d’une cuisine et de deux salles de bains.Elle est proposée à l’achat pour 451 000 €.Contactez Mathieu DEROUET ((Numéro supprimé)) pour toute information sur la maison, sur les modalités de vente et sur les démarches à suivre. Maisons de l’Avenir Pont-l’Abbé est là pour vous accompagner à toutes les étapes de l’achat.
L’actualité immobilière à Concarneau
27/11/2023
02/11/2023
30/10/2023
20/10/2023
16/10/2023
16/10/2023