Maison à construire à Ergué-Gabéric (29500)
Images
Description
VENTE d'une maison de 4 pièces (94 m²) à Ergué-Gabéric
PROCHE CENTRE-VILLE - MAISON 4 PIÈCES NEUVE
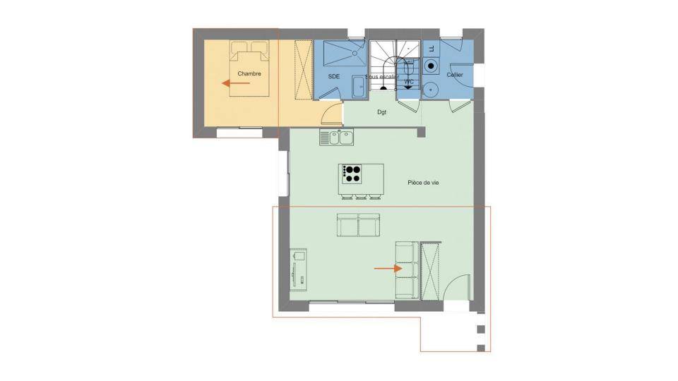
En vente à 15 km de la côte atlantique et à quelques kilomètres de Quimper, venez découvrir, proche du centre-ville d'Ergué-Gabéric (29500), cette maison de 4 pièces de 94 m² et de 515 m² de terrain. Elle inclut trois chambres, une cuisine et deux salles de bains.
Cette maison compte 2 niveaux. Elle est neuve.
Il y a tous les types d'écoles (maternelle, élémentaire et secondaire) à moins de 10 minutes en voiture, tout comme sept structures d'accueil pour les enfants en bas âge à moins de 10 minutes à pied. Niveau transports en commun, on trouve la gare Quimper à moins de 10 minutes en voiture. La nationale N165 est accessible à 5 km. Il y a des tennis, des bibliothèques, des bassins de natation, un bowling, des boulangeries, des commerces, des supermarchés, des poissonneries et des boucheries-charcuteries à quelques minutes. Enfin, le marché Place terre au Duc anime les environs chaque mercredi.
Elle est à vendre pour la somme de 296 931 €.
Contactez Sami ALKIS pour toute question sur la maison. Concrétisez vos projets immobiliers avec Maisons de l'Avenir Guipavas.
Logement susceptibles de vous intéresser
Nous vous proposons de découvrir aussi cette sélection de logements situés à moins de 10km de Ergué-Gabéric et qui seraient susceptibles de vous intéresser.
Quimper
TERRAIN ET MAISONMaison T4 (90 m²) à vendre à QuimperPROCHE CENTRE-VILLE – MAISON 4 PIÈCES NEUVEEn vente à 14 km de l’océan Atlantique, notre agence Maisons de l’Avenir Quimper est ravie de vous proposer cette maison de 4 pièces de 90 m² et de 545 m² de terrain proche du centre-ville de Quimper (29000). Elle inclut trois chambres, une cuisine et deux salles de bains.Il s’agit d’une maison de 2 niveaux. Elle est proposée à l’achat pour 267 000 €.Prenez contact avec notre agence (Mathieu DEROUET : (Numéro supprimé)) pour tout renseignement sur la maison. Donnez vie à vos projets immobiliers avec Maisons de l’Avenir Quimper.
Quimper
TERRAIN ET MAISONVENTE : maison T4 (95 m²) à QuimperPROCHE CENTRE-VILLE – MAISON 4 PIÈCES NEUVEEn vente : située à 14 km de l’océan Atlantique, proche du centre-ville de Quimper (29000), notre agence Maisons de l’Avenir Quimper est ravie de vous présenter cette maison de 4 pièces de 95 m².Cette maison possède 2 niveaux. Son intérieur inclut trois chambres, une cuisine et deux salles de bains. Il est proposé à l’achat pour 293 000 €.Contactez Mathieu DEROUET (tél : (Numéro supprimé)) pour tout renseignement sur la maison, sur les démarches à suivre et sur les modalités de vente. Donnez vie à vos projets immobiliers avec Maisons de l’Avenir Quimper.
Elliant
TERRAIN ET MAISONDEVENEZ PROPRIÉTAIRE À ELLIANT – MAISON NEUVE conforme à la dernière norme basse consommation RE-2020 !Vivez dans un cadre de vie privilégié à Elliant, commune appréciée du Finistère pour son calme, son environnement naturel et sa proximité avec les commerces, les services et les écoles. Un lieu idéal pour accueillir votre famille dans un cadre serein et agréable !Votre future maison comprend 😮 3 chambres spacieuses et lumineuseso Un grand salon-séjour traversant ouvert sur le jardino Une cuisine moderne et fonctionnelleo Salle de bain et WC séparésLes atouts du projet 😮 Maison neuve RE2020, à faible consommation d’énergieo Plan personnalisable selon vos besoinso Environnement calme et familialo Prestations de qualité, finitions soignéesCe projet s’implante sur un terrain idéalement situé à Elliant, d’environ 438 m² (surface selon disponibilité des partenaires fonciers).Accession à la propriété possible avec ou sans apport, étude de financement gratuite.Photos à titre d’illustration (photos d’une de nos réalisations – non contractuelles).Nous trouvons l’adresse idéale parmi un large choix de terrains disponibles pour votre future demeure.Ne manquez pas cette belle opportunité de devenir propriétaire d’une maison neuve moderne et économique à Elliant !Contactez-nous dès maintenant pour découvrir les plans et étudier votre projet personnalisé.Armorique Immos, franchise d’un constructeur national de maisons individuelles depuis plus de 40 ans, propose en collaboration avec ses partenaires fonciers une sélection de terrains constructibles, selon disponibilité, pour la construction de maisons neuves définies par le constructeur, avec un contrat de construction de maison individuelle, dans le cadre de la loi du 19/12/1990.Prix net, hors frais notariés, d’enregistrement et de publicité foncière.Étude financière réalisée par nos partenaires en courtage (IOSB inscrit à l’Orias).
Quimper
TERRAINVENTE : terrain de 545 m² à QuimperPROCHE CENTRE-VILLEÀ Quimper (29000) à vendre à 14 km de l’océan Atlantique, donnez vie à la maison de vos rêves sur ce terrain de 545 m². Il se situe non loin du centre-ville. Des écoles du primaire et du secondaire sont implantées à moins de 10 minutes. La nationale N165 est accessible à 3 km. Il y a une bibliothèque, des commerces, des boulangeries, un supermarché, des poissonneries et quatre supérettes dans les environs. Il est à vendre pour la somme de 54 000 €. Contactez notre agence (DEROUET Mathieu : (Numéro supprimé)) pour toute question sur ce terrain. Maisons de l’Avenir Quimper vous accompagne à toutes les étapes de votre projet et dans tous vos projets immobiliers.
Quimper
TERRAIN ET MAISONQuimper : maison T5 (150 m²) en ventePROCHE CENTRE-VILLE – MAISON 5 PIÈCES NEUVEÀ vendre : à 14 km de la côte atlantique, votre agence Maisons de l’Avenir Quimper est ravie de vous présenter, proche du centre-ville de Quimper (29000), cette maison de 5 pièces de 150 m² et de 545 m² de terrain. Son intérieur est composé de quatre chambres, d’une cuisine et de deux salles de bains.Cette maison compte 2 niveaux. Son prix de vente est de 399 000 €.Contactez Mathieu DEROUET ((Numéro supprimé)) pour tout renseignement sur la maison. Maisons de l’Avenir Quimper vous accompagne dans tous vos projets immobiliers et à toutes les étapes de votre projet.
Quimper
TERRAIN ET MAISONQuimper : maison de 5 pièces (95 m²) à vendrePROCHE CENTRE-VILLE – MAISON 5 PIÈCES NEUVEÀ vendre à 14 km de la côte atlantique, nous vous présentons cette maison de 5 pièces de 95 m² et de 610 m² de terrain proche du centre-ville de Quimper (29000). Elle dispose de quatre chambres, d’une cuisine et de deux salles de bains.Il s’agit d’une maison de 2 niveaux. Elle est proposée à l’achat pour 339 000 €.N’hésitez pas à prendre contact avec notre agence (DEROUET Mathieu : (Numéro supprimé)) pour toute question sur la maison, sur les démarches à suivre ou sur les modalités de vente. Maisons de l’Avenir Quimper est là pour vous accompagner à toutes les étapes de votre projet.
Quimper
TERRAIN ET MAISONVENTE d’une maison F5 (130 m²) à QuimperPROCHE CENTRE-VILLE – MAISON 5 PIÈCES NEUVEEn vente à 14 km de la côte atlantique, ayez le coup de coeur pour cette maison de 5 pièces de 130 m² et de 610 m² de terrain proche du centre-ville de Quimper (29000). Elle comporte quatre chambres, une cuisine et deux salles de bains.C’est une maison de 2 niveaux. Son prix de vente est de 416 000 €.Contactez Mathieu DEROUET (tél : (Numéro supprimé)) pour toute question sur la maison. Faites de vos projets immobiliers une réalité avec Maisons de l’Avenir Quimper.
Quimper
TERRAIN ET MAISONMaison T4 (105 m²) en vente à QuimperPROCHE CENTRE-VILLE – MAISON 4 PIÈCES NEUVEÀ 14 km de la côte atlantique, à vendre proche du centre-ville de Quimper (29000), Maisons de l’Avenir Quimper vous présente cette maison de 4 pièces de 105 m² et de 545 m² de terrain. Son intérieur comporte quatre chambres, une cuisine et deux salles de bains.Cette maison compte 2 niveaux. Son prix de vente est de 315 000 €.N’hésitez pas à prendre contact avec notre agence (DEROUET Mathieu : (Numéro supprimé)) pour plus d’informations sur la maison, sur les modalités de vente ou sur les démarches à suivre. Maisons de l’Avenir Quimper est là pour vous accompagner à toutes les étapes de l’achat.
Quimper
TERRAIN ET MAISONMaison F3 (85 m²) en vente à QuimperPROCHE CENTRE-VILLE – MAISON 3 PIÈCES NEUVEÀ vendre : localisée à 14 km de l’océan Atlantique, proche du centre-ville de Quimper (29000), nous vous proposons cette maison de 3 pièces de plain-pied de 85 m². Elle dispose de deux chambres, d’une cuisine et d’une salle de bains.Le terrain du bien est de 610 m².Elle est proposée à l’achat pour 302 000 €.Contactez notre agence (DEROUET Mathieu : (Numéro supprimé)) pour tout renseignement sur la maison. Faites de vos projets immobiliers une réalité avec Maisons de l’Avenir Quimper.
L’actualité immobilière à Ergué-Gabéric
27/11/2023
02/11/2023
30/10/2023
20/10/2023
16/10/2023
16/10/2023