Maison à construire à Fouesnant (29170)
Images
Description
VENTE d'une maison de 6 pièces (120 m²) à Fouesnant
EMPLACEMENT PRIVILÉGIÉ - MAISON 6 PIÈCES NEUVE
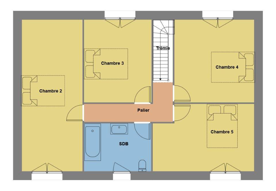
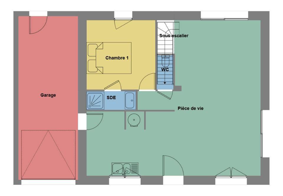
À 6 km de l'océan Atlantique et à quelques kilomètres de Quimper, Maisons de l'Avenir Quimper vous présente cette maison de 6 pièces de 120 m² bénéficiant d'un emplacement d'exception dans Fouesnant (29170). Elle compte cinq chambres, une cuisine et deux salles de bains.
Le terrain de la maison est de 1 100 m².
Il s'agit d'une maison de 2 niveaux.
Son prix de vente est de 519 000 €.
Contactez Mathieu DEROUET ((Numéro supprimé)) pour obtenir de plus amples informations sur la maison ou sur les modalités de vente. Donnez vie à vos projets immobiliers avec Maisons de l'Avenir Quimper.
Logement susceptibles de vous intéresser
Nous vous proposons de découvrir aussi cette sélection de logements situés à moins de 10km de Fouesnant et qui seraient susceptibles de vous intéresser.
Pleuven
TERRAINTerrain de 379 m² à vendre à PleuvenPROCHE DE QUIMPERTerrain de 379 m² à 7 km de l’océan Atlantique et à deux pas de Quimper. Ce terrain se situe dans Pleuven (29170). Il est proposé à l’achat pour 95 000 €. Contactez Mathieu DEROUET ((Numéro supprimé)) pour toute question sur ce terrain ou sur les modalités de vente.
Pleuven
TERRAIN ET MAISONPleuven : maison de 4 pièces (75 m²) à vendrePROCHE DE QUIMPER – MAISON 4 PIÈCES NEUVEEn vente sur le littoral atlantique et à deux pas de Quimper, notre agence Maisons de l’Avenir Quimper est heureuse de vous proposer cette maison de 4 pièces de 75 m² et de 379 m² de terrain à Pleuven (29170). Son intérieur est composé de trois chambres, d’une cuisine et d’une salle de bains.Il s’agit d’une maison de 2 niveaux. Elle est proposée à l’achat pour 267 500 €.Prenez contact avec Mathieu DEROUET ((Numéro supprimé)) pour tout renseignement sur la maison. Maisons de l’Avenir Quimper est là pour vous accompagner à toutes les étapes de votre projet.
Pleuven
TERRAIN ET MAISONMaison T4 (85 m²) en vente à PleuvenMAISON 4 PIÈCES NEUVE – PROCHE DE QUIMPEREn vente : à 7 km de la côte atlantique et à deux pas de Quimper, à Pleuven (29170), laissez vous charmer par cette maison de 4 pièces de plain-pied de 85 m². Conçue de plain-pied, elle est composée de trois chambres, d’une cuisine et d’une salle de bains.Le terrain de la propriété s’étend sur 379 m².Elle est proposée à l’achat pour 312 000 €.Prenez contact avec notre agence (Mathieu DEROUET : (Numéro supprimé)) pour toute information sur cette propriété ou sur les modalités de vente.
Pleuven
TERRAIN ET MAISONPleuven : maison T5 (115 m²) à vendrePROCHE DE QUIMPER – MAISON 5 PIÈCES NEUVEÀ vendre sur le littoral atlantique et à deux pas de Quimper, Maisons de l’Avenir Quimper vous propose cette maison de 5 pièces de 115 m² et de 379 m² de terrain à Pleuven (29170).Cette maison comporte 2 niveaux. Elle propose quatre chambres, une cuisine et deux salles de bains. Son prix de vente est de 378 000 €.Contactez notre agence (DEROUET Mathieu : (Numéro supprimé)) pour toute information sur cette maison, sur les modalités de vente ou sur les démarches à suivre.
Pleuven
TERRAIN ET MAISONMaison de 3 pièces (80 m²) en vente à PleuvenMAISON 3 PIÈCES NEUVE – PROCHE DE QUIMPEREn vente à 7 km de l’océan Atlantique et à 10 km de Quimper, Maisons de l’Avenir Quimper vous propose cette maison de 3 pièces de 80 m² et de 379 m² de terrain à Pleuven (29170).Il s’agit d’une maison de 2 niveaux. Elle dispose de deux chambres, d’une cuisine et d’une salle de bains.Elle est proposée à l’achat pour 286 000 €.Prenez contact avec notre agence (Mathieu DEROUET : (Numéro supprimé)) pour obtenir de plus amples renseignements sur cette maison, sur les modalités de vente ou sur les démarches à suivre.
Pleuven
TERRAIN ET MAISONVENTE d’une maison OSSATURE BOIS de 4 pièces (95 m²) à PleuvenPROCHE DE QUIMPER – MAISON 4 PIÈCES NEUVEÀ vendre sur le littoral atlantique et à deux pas de Quimper, à Pleuven (29170), notre agence Maisons de l’Avenir Quimper est heureuse de vous proposer cette maison de 4 pièces de plain-pied de 95 m² et de 379 m² de terrain.Elle comporte trois chambres, une cuisine et deux salles de bains. Son prix de vente est de 350 700 €.Contactez Mathieu DEROUET (tél : (Numéro supprimé)) pour tout renseignement sur la maison. Maisons de l’Avenir Quimper est là pour vous accompagner dans toutes vos démarches.
Concarneau
TERRAINTerrain de 415 m² à vendre à ConcarneauÀ Concarneau (29900) en vente sur le littoral atlantique, projetez la maison de vos rêves sur ce terrain de 415 m². Proche commoditésIl est proposé à l’achat pour 90 000 €. Contactez Mathieu DEROUET (tél : (Numéro supprimé)) pour plus de renseignements sur le terrain ou sur les modalités de vente.
Concarneau
TERRAIN ET MAISONConcarneau : maison F5 (125 m²) en venteMAISON 5 PIÈCES NEUVEÀ 6 km de l’océan Atlantique, à vendre à Concarneau (29900), nous vous proposons cette maison de 5 pièces de 125 m².C’est une maison de 2 niveaux. Elle est composée de quatre chambres, d’une cuisine et de deux salles de bains. Le terrain du bien s’étend sur 415 m².Elle est proposée à l’achat pour 395 000 €.Contactez Mathieu DEROUET (tél : (Numéro supprimé)) pour toute question sur cette maison ou sur les démarches à suivre. Maisons de l’Avenir Quimper est là pour vous accompagner dans tous vos projets immobiliers.
Concarneau
TERRAIN ET MAISONMaison F4 (69 m²) à vendre à ConcarneauMAISON 4 PIÈCES NEUVEÀ vendre : sur le littoral atlantique, nous vous présentons à Concarneau (29900), cette maison de 4 pièces de 69 m². Elle offre trois chambres, une cuisine et une salle de bains.Le terrain du bien s’étend sur 415 m².Cette maison possède 2 niveaux. Elle est proposée à l’achat pour 267 000 €.Contactez Mathieu DEROUET ((Numéro supprimé)) pour toute information sur cette maison ou sur les modalités de vente.
L’actualité immobilière à Fouesnant
27/11/2023
02/11/2023
30/10/2023
20/10/2023
16/10/2023
16/10/2023