Maison à construire à Gouesnou (29850)
Images
Description
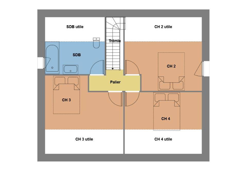
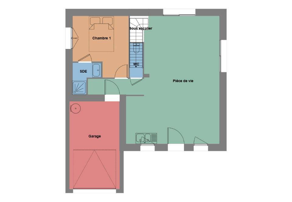
VENTE : maison de 5 pièces (102 m²) à Gouesnou
PROCHE CENTRE-VILLE - MAISON 5 PIÈCES NEUVE
Sur le littoral et à quelques kilomètres de Brest, nous vous présentons en vente, proche du centre-ville de Gouesnou (29850), cette maison de 5 pièces de 102 m². Son intérieur dispose de quatre chambres, d'une cuisine et de deux salles de bains.
Le terrain du bien est de 350 m².
C'est une maison de 2 niveaux. Elle est neuve.
Il y a l'École Primaire Publique Château d'Eau, l'École Primaire Privée Saint Joseph et l'École Primaire Publique le Moulin à moins de 10 minutes à pied. Côté transports, on trouve les gares Kerhuon et Brest à moins de 10 minutes en voiture. Les nationales N12, N265 et N165 sont accessibles à moins de 7 km. Il y a une bibliothèque, un tennis, trois commerces, deux boulangeries, un supermarché, une boucherie-charcuterie et un bureau de poste dans les environs.
Elle est proposée à l'achat pour 321 221 €.
N'hésitez pas à prendre contact avec Sami ALKIS pour tout renseignement sur la maison, sur les modalités de vente ou sur les démarches à suivre. Maisons de l'Avenir Guipavas est là pour vous accompagner dans tous vos projets immobiliers.
Logement susceptibles de vous intéresser
Nous vous proposons de découvrir aussi cette sélection de logements situés à moins de 10km de Gouesnou et qui seraient susceptibles de vous intéresser.
Le Relecq-Kerhuon
TERRAINJoli terrain sur LE RELECQ KERHUON, plat et idéalement situé, parfait pour réaliser votre projet de construction avec notre entreprise.- Superficie : 310 m²- Terrain : Plat et facile à aménager- Emplacement : Idéalement situé dans un cadre agréable- Prix Hors fraisNe manquez pas cette opportunité !Pour plus d’informations, contactez nous au (Numéro supprimé).
Le Relecq-Kerhuon
TERRAINVENTE d’un terrain de 301 m² au Relecq-KerhuonA SAISIR ! dernier lot ! tout porche du centre, des arrêts de bus et des commoditésTerrain de 301 m² à vendre à quelques kilomètres de la mer et à 8 km de Brest. Ce terrain se situe proche du centre-ville du Relecq-Kerhuon (29480). ICe terrain est proposé à l’achat pour 97 650 €. N’hésitez pas à prendre contact avec notre agence (ROPERS Jean : (Numéro supprimé)) pour toute information sur le terrain, sur les modalités de vente ou sur les démarches à suivre. Concrétisez vos projets immobiliers avec Maisons de l’Avenir Guipavas.
Le Relecq-Kerhuon
TERRAIN ET MAISONLe Relecq-Kerhuon : maison F4 (60 m²) en ventePROCHE CENTRE-VILLE – MAISON 4 PIÈCES NEUVEÀ vendre : sur le littoral et à quelques kilomètres de Brest, découvrez cette maison de 4 pièces de 60 m² proche du centre-ville du Relecq-Kerhuon (29480). Elle comporte trois chambres, une cuisine et une salle de bains.Le terrain de cette maison s’étend sur 301 m².Il s’agit d’une maison de 2 niveaux. Son prix de vente est de 233 650 €.Prenez contact avec notre agence (Jean ROPERS : (Numéro supprimé)) pour obtenir de plus amples renseignements sur la maison. Maisons de l’Avenir Guipavas vous accompagne dans toutes vos démarches et dans tous vos projets immobiliers.
Le Relecq-Kerhuon
TERRAIN ET MAISONLe Relecq-Kerhuon : maison de 4 pièces (90 m²) à vendrePROCHE CENTRE-VILLE – MAISON 4 PIÈCES NEUVEÀ vendre sur le littoral et à 8 km de Brest, laissez vous charmer par, proche du centre-ville du Relecq-Kerhuon (29480), cette maison de 4 pièces de 90 m² et de 301 m² de terrain.Cette maison compte 2 niveaux. Elle comporte trois chambres, une cuisine et deux salles de bains. Elle est à vendre pour la somme de 320 650 €.Prenez contact avec notre agence (ROPERS Jean : (Numéro supprimé)) pour tout renseignement sur la maison ou sur les démarches à suivre. Maisons de l’Avenir Guipavas vous accompagne à toutes les étapes de votre projet et dans tous vos projets immobiliers.
Le Relecq-Kerhuon
TERRAIN ET MAISONLe Relecq-Kerhuon : maison de 3 pièces (80 m²) en ventePROCHE CENTRE-VILLE – MAISON 3 PIÈCES NEUVEÀ vendre : située à quelques kilomètres de la mer et à 8 km de Brest, proche du centre-ville du Relecq-Kerhuon (29480), ayez le coup de coeur pour cette maison de 3 pièces de plain-pied de 80 m² et de 301 m² de terrain. Conçue de plain-pied, elle compte trois chambres, une cuisine et une salle de bains.Elle est proposée à l’achat pour 298 650 €.N’hésitez pas à prendre contact avec notre agence (ROPERS Jean : (Numéro supprimé)) pour plus d’informations sur la maison. Maisons de l’Avenir Guipavas est là pour vous accompagner dans tous vos projets immobiliers.
Le Relecq-Kerhuon
TERRAIN ET MAISONVENTE d’une maison F5 (85 m²) au Relecq-KerhuonPROCHE CENTRE-VILLE – MAISON 5 PIÈCES À quelques kilomètres de la mer et à 8 km de Brest, nous vous proposons cette maison de 5 pièces de 85 m² et de 301 m² de terrain à vendre proche du centre-ville du Relecq-Kerhuon (29480). Elle est composée de trois chambres, d’une cuisine et de deux salles de bains.Il s’agit d’une maison de 2 niveaux. Elle est proposée à l’achat pour 309 650 €.Contactez Jean ROPERS (tél : (Numéro supprimé)) pour toute question sur la maison.
Le Relecq-Kerhuon
TERRAIN ET MAISONMaison F4 (80 m²) en vente au Relecq-KerhuonPROCHE CENTRE-VILLE – MAISON 4 PIÈCES OSSATURE BOIS En vente à quelques kilomètres de la mer et à quelques kilomètres de Brest, nous vous proposons cette maison de 4 pièces de plain-pied de 80 m² proche du centre-ville du Relecq-Kerhuon (29480).Son intérieur est composé de trois chambres, d’une cuisine et d’une salle de bains. La maison est neuve.Le terrain du bien est de 301 m².Elle est proposée à l’achat pour 313 580 €.Contactez Jean ROPERS (tél : (Numéro supprimé)) pour obtenir de plus amples informations sur la maison.
Plabennec
TERRAINTerrain de 452 m² à vendre à PlabennecPROCHE CENTRE-VILLE – PROCHE DE BRESTÀ Plabennec (29860) à quelques kilomètres de la mer et à quelques kilomètres de Brest, projetez la maison de vos rêves sur ce terrain de 452 m². Il bénéficie d’une exposition sud-ouest. Il se trouve non loin du centre-ville. Il y a l’École Primaire Privée Sainte Anne à moins de 10 minutes à pied. Les nationales N12 et N265 sont accessibles à moins de 10 km. On trouve une bibliothèque, des commerces, quatre boulangeries, un supermarché, une boucherie-charcuterie et un bureau de poste dans les environs.Ce terrain est à vendre pour la somme de 81 120 €. Contactez notre agence (Sami ALKIS) pour toute question sur le terrain, sur les démarches à suivre ou sur les modalités de vente. Maisons de l’Avenir Guipavas vous accompagne à toutes les étapes de votre projet et dans tous vos projets immobiliers.
Plabennec
TERRAIN ET MAISONMaison F4 (82 m²) en vente à PlabennecPROCHE CENTRE-VILLE – MAISON 4 PIÈCES NEUVEÀ vendre sur le littoral et à 12 km de Brest, proche du centre-ville de Plabennec (29860), votre agence Maisons de l’Avenir Guipavas est heureuse de vous proposer cette maison de 4 pièces de plain-pied de 82 m² et de 452 m² de terrain. Elle est composée de trois chambres, d’une cuisine et d’une salle de bains.La maison est neuve.L’École Primaire Privée Sainte Anne est implantée à moins de 10 minutes à pied. Les nationales N12 et N265 sont accessibles à moins de 10 km. Il y a une bibliothèque, des commerces, quatre boulangeries, un supermarché, une boucherie-charcuterie et un bureau de poste à proximité.Elle est à vendre pour la somme de 277 521 €.N’hésitez pas à prendre contact avec notre constructeur (ALKIS Sami) pour obtenir de plus amples renseignements sur le bien, sur les démarches à suivre ou sur les modalités de vente. Maisons de l’Avenir Guipavas est là pour vous accompagner dans tous vos projets immobiliers.
L’actualité immobilière à Gouesnou
27/11/2023
02/11/2023
30/10/2023
20/10/2023
16/10/2023
16/10/2023