Maison à construire à Gourlizon (29710)
Images
Description
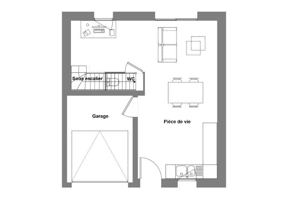
VENTE : maison de 4 pièces (70 m²) à Gourlizon
PROCHE DE QUIMPER - MAISON 4 PIÈCES NEUVE
À 9 km de l'océan Atlantique et à 13 km de Quimper, Maisons de l'Avenir Quimper vous présente cette maison de 4 pièces de 70 m² à Gourlizon (29710). Elle propose trois chambres, une cuisine et une salle de bains.
Le terrain du bien est de 620 m².
Cette maison possède 2 niveaux.
Elle est à vendre pour la somme de 241 000 €.
Contactez Mathieu DEROUET (tél : (Numéro supprimé)) pour toute question sur la maison ou sur les démarches à suivre. Maisons de l'Avenir Quimper vous accompagne dans tous vos projets immobiliers et à toutes les étapes de l'achat.
Logement susceptibles de vous intéresser
Nous vous proposons de découvrir aussi cette sélection de logements situés à moins de 10km de Gourlizon et qui seraient susceptibles de vous intéresser.
Locronan
TERRAINEn exclusivité agence :Terrain constructible à Locronan de 1160m2 avec aperçu mer – 97 990 euros FAIDécouvrez ce magnifique terrain niché sur les hauteurs du célèbre village historique de Locronan offrant une vue imprenable sur le Porzay et l’océan.Ce terrain avec un dénivelé offre un cadre idéal pour profiter d’une vue panoramique sur le Ménez Hom et les plages.L’assainissement est tout à l’égout et les réseaux sont déjà au bord de la parcelle.Un environnement calme, très arboré et préservé.Possibilité d’acquérir en sus une parcelle d’environ 450m2 en zone naturelle donc non constructible.- Situé dans un quartier paisible- A proximité des commerces, écoles (école Ste Anne à Locronan, écoles à Plogonnec, Plonévez Porzay), services publics.- A 5 km des premières plages- Implanté au coeur d’un village historique unique, célèbre pour ses maisons en pierre et son patrimoine remarquable.Prix : 97990 euros incluant les honoraires d’un montant de 7990 euros dont 8.88% à la charge de l’acquéreur.Prix Net vendeur : 90000 eurosFrais de Notaire en Sus : 8000 eurosCe terrain est une opportunité rare pour construire la maison de vos rêves dans un environnement naturel et authentique.Contactez moi dès maintenant pour plus d’informations ou pour planifier une visite !Pour visiter et vous accompagner dans votre projet, contactez Laetitia DREAU, au (Numéro supprimé) ou, par courriel à (Email supprimé).Selon l’article L.561.5 du Code Monétaire et Financier, pour l’organisation de la visite, la présentation d’une pièce d’identité vous sera demandée.Cette présente annonce a été rédigée sous la responsabilité éditoriale de Laetitia DREAU agissant sous le statut d’agent commercial immatriculé au RSAC 948169917 QUIMPER auprès de SAS PROPRIETES PRIVEES, au capital de 44 920 euros, ZAC LE CHÊNE FERRÉ – 44 ALLÉE DES CINQ CONTINENTS 44120 VERTOU; SIRET 487 624 777 00040, RCS Nantes. Carte Professionnelle Transactions sur immeubles et fonds de commerce (T) et Gestion immobilière (G) n°CPI 4401 2016 000 010 388 délivrée par la CCI Nantes – Saint Nazaire. Compte séquestre n(Numéro supprimé)67 BPA SAINT-SEBASTIEN-SUR-LOIRE (44230). Garantie GALIAN-SMABTP – 89 rue de la Boétie, 75008 Paris – n°28137 J pour 2 000 000 euros pour T et 120 000 euros pour G. Assurance responsabilité civile professionnelle par GALIAN-SMABTP n° de police 28137.JMandat réf : 426122 – Le professionnel garantit et sécurise votre projet immobilier. (8.88 % honoraires TTC à la charge de l’acquéreur.) Julien PÉROT (EI) Agent Commercial – Numéro RSAC : SAINT BRIEUC 822474151 – .
Plogastel-Saint-Germain
TERRAIN ET MAISONDEVENEZ PROPRIÉTAIRE À PLOGASTEL-SAINT-GERMAIN – MAISON NEUVE RE2020 SUR-MESURE !Vivez dans un cadre de vie privilégié à Plogastel-Saint-Germain, charmante commune dynamique du Pays Bigouden, idéalement située entre Quimper et les plages d’Audierne et de Penmarch.Profitez du calme de la campagne, tout en restant proche des commerces, écoles et services – un environnement idéal pour votre famille ! Votre future maison comprend 😮 2 chambres spacieuses et lumineuseso Un grand salon-séjour traversant, ouvert sur le jardino Une cuisine moderne et fonctionnelleo Salle de bain et WC séparéso Le tout sur un terrain de 470 m², bien orienté Les atouts du projet 😮 Maison neuve RE2020, à faible consommation d’énergieo Plan personnalisable selon vos besoinso Cadre de vie paisible, à proximité de Quimper et du littoral bigoudeno Prestations de qualité, finitions soignées Prix indiqué hors frais Photos non contractuelles à titre d’illustration Accession à la propriété possible avec ou sans apportNe manquez pas cette belle opportunité de devenir propriétaire d’une maison neuve moderne et économique à Plogastel-Saint-Germain ! Contactez nous dès maintenant pour découvrir les plans et étudier votre projet personnalisé
Gourlizon
TERRAIN ET MAISONVous rêvez d’une maison neuve, moderne et adaptée à vos besoins ? Nous vous proposons un projet de construction comprenant :- Une maison individuelle comprenant : 3 chambres spacieuses, un grand salon lumineux, une cuisine fonctionnelle, WC , salle(s) de bain/d’eau sur un terrain de 476m², idéalement situé à GOURLIZON .Profitez d’une maison sur-mesure, conçue pour votre confort et votre bien-être ! Maison RE2020 à faible consommation d’énergies. Prix hors frais. Photos non contractuelles et illustratives. Possibilité d’accession à la propriété avec un CDI (hors CAF, RSA et Pôle Emploi). Pour tout renseignement supplémentaire, contactez nous au (Numéro supprimé).
Plogonnec
TERRAINJoli terrain sur PLOGONNEC, plat et idéalement situé, parfait pour réaliser votre projet de construction avec notre entreprise.- Superficie : 589m²- Terrain : Plat et facile à aménager- Emplacement : Idéalement situé dans un cadre agréable- Prix Hors fraisNe manquez pas cette opportunité !Pour plus d’informations, contactez nous au (Numéro supprimé).
Pluguffan
TERRAINJoli terrain sur PLUGUFFAN, plat et idéalement situé, parfait pour réaliser votre projet de construction avec notre entreprise.- Superficie : 480m²- Terrain : Plat et facile à aménager- Emplacement : Idéalement situé dans un cadre agréable- Prix Hors fraisNe manquez pas cette opportunité !Pour plus d’informations, contactez nous au (Numéro supprimé).
Gourlizon
TERRAINJoli terrain sur GOURLIZON, plat et idéalement situé, parfait pour réaliser votre projet de construction avec notre entreprise.- Superficie : 476m²- Terrain : Plat et facile à aménager- Emplacement : Idéalement situé dans un cadre agréable- Prix Hors fraisNe manquez pas cette opportunité !Pour plus d’informations, contactez nous au (Numéro supprimé).
Kerlaz
TERRAINVENTE : terrain de 311 m² à KerlazIDÉALEMENT SITUÉ – A QUELQUES MINUTES DES PLAGES ET DE DOUARNENEZÀ vendre à 3 km de la côte, à Kerlaz (29100), terrain de 311 m². Il est orienté au sud-ouest. Dans un secteur prisé, le terrain idéalement situé est proche des écoles et des commerces. Il y a l’École Primaire Publique de Kerlaz à moins de 10 minutes à pied. La nationale N165 est accessible à 16 km. On trouve une bibliothèque dans les environs.Ce terrain est à vendre pour la somme de 38 000 €. Contactez notre agence (MANCINELLI Sabrina : (Numéro supprimé)) pour toute question sur le terrain.
Kerlaz
TERRAIN ET MAISONMaison de 4 pièces (95 m²) à vendre à KerlazIDÉALEMENT SITUÉE – MAISON 4 PIÈCES NEUVESur la côte atlantique et à deux pas de Quimper, nous vous présentons cette maison de 4 pièces de 95 m² et de 311 m² de terrain en vente idéalement située dans Kerlaz (29100). Elle dispose de trois chambres, d’une cuisine et de deux salles de bains.Cette maison possède 2 niveaux. Elle est neuve.La maison se situe dans un secteur attractif. L’École Primaire Publique de Kerlaz se trouve à moins de 10 minutes à pied. La nationale N165 est accessible à 16 km. Il y a une bibliothèque à proximité.Son prix de vente est de 255 600 €.N’hésitez pas à prendre contact avec notre agence (MANCINELLI Sabrina : (Numéro supprimé)) pour tout renseignement sur la maison ou sur les démarches à suivre.
Kerlaz
TERRAIN ET MAISONMaison de 4 pièces (110 m²) en vente à KerlazIDÉALEMENT SITUÉE – MAISON 4 PIÈCES NEUVEÀ vendre : sur le littoral atlantique et à quelques kilomètres de Quimper, nous vous proposons, idéalement située dans Kerlaz (29100), cette maison de 4 pièces de 110 m² et de 311 m² de terrain. Elle est composée de trois chambres, d’une cuisine et de deux salles de bains.Cette maison compte 2 niveaux. Elle est neuve.La maison se situe dans un secteur recherché. On trouve l’École Primaire Publique de Kerlaz à moins de 10 minutes à pied. La nationale N165 est accessible à 16 km. Il y a une bibliothèque dans les environs.Son prix de vente est de 285 700 €.N’hésitez pas à prendre contact avec notre agence (Sabrina MANCINELLI : (Numéro supprimé)) pour tout renseignement sur la maison, sur les démarches à suivre ou sur les modalités de vente. Maisons de l’Avenir Pont-l’Abbé vous accompagne à toutes les étapes de l’achat et dans tous vos projets immobiliers.
L’actualité immobilière à Gourlizon
27/11/2023
02/11/2023
30/10/2023
20/10/2023
16/10/2023
16/10/2023