Maison à construire à Guiclan (29410)
Images
Description
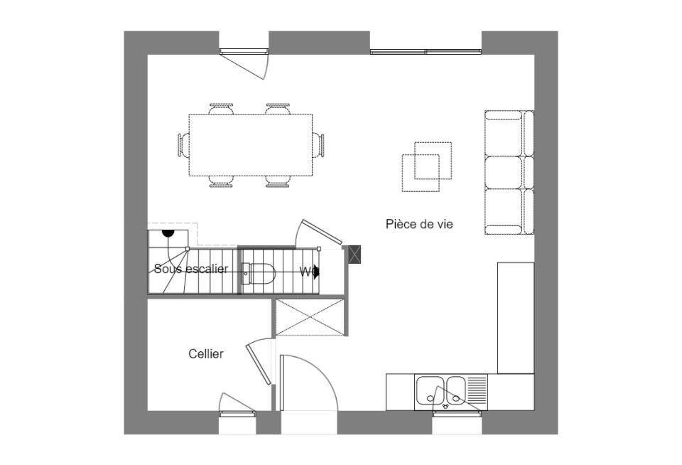
VENTE d'une maison de 4 pièces (67 m²) à Guiclan
Cette belle maison traditionnelle aux lignes traditionnelles offre 67m² habitable .
Elle est évolutive.
Au rez-de-chaussée, elle dispose d'une belle pièce de vie offrant un maximum de lumière, d'un wc, d'un cellier.
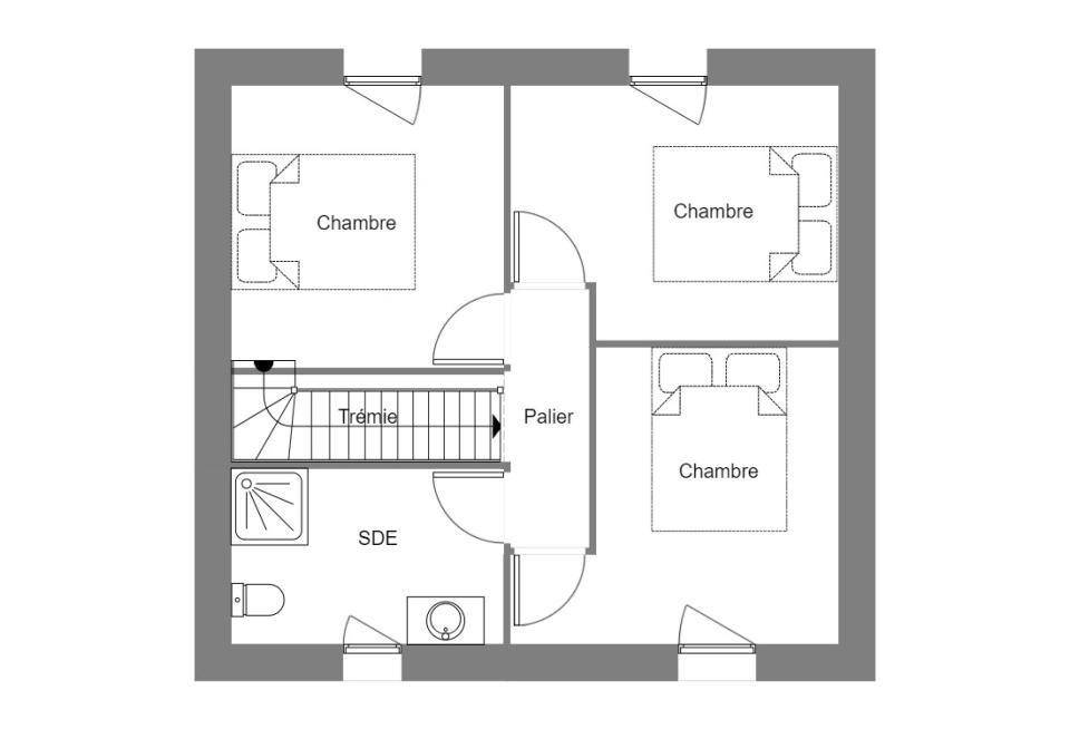
A l'étage on retrouve 3 chambres, une salle de bains, et un WC. L'orientation de cette maison vous permettra de bénéficier d'un maximum de lumière et de chaleur naturelle pour davantage d'économies et de douceur de vivre.
Elle est à vendre pour la somme de 183 500 €.
Contactez notre agence (Aurélie CAGNARD : (Numéro supprimé)) pour plus de renseignements sur le bien, sur les modalités de vente ou sur les démarches à suivre. Maisons de l'Avenir Guipavas vous accompagne dans tous vos projets immobiliers et à toutes les étapes de l'achat.
Logement susceptibles de vous intéresser
Nous vous proposons de découvrir aussi cette sélection de logements situés à moins de 10km de Guiclan et qui seraient susceptibles de vous intéresser.
Landivisiau
TERRAINJoli terrain sur LANDIVISIAU, plat et idéalement situé, parfait pour réaliser votre projet de construction avec notre entreprise.- Superficie : 628m²- Terrain : Plat et facile à aménager- Emplacement : Idéalement situé dans un cadre agréable- Prix Hors fraisNe manquez pas cette opportunité !Pour plus d’informations, contactez nous au (Numéro supprimé).
Plouénan
TERRAIN ET MAISONMaison T5 (113 m²) en vente à PlouénanNouveau Maison Murs Ossature Bois Ce très beau plain-pied aux lignes contemporaine, de 113 m² agencé astucieusement pour un maximum de luminosité, pièce de vie ouverte et volumineuse, 4 chambres dont 1 suite parentale, son grand cellier et son garage. Aux normes RE2020, peu énergivore, elle vous ravira par son confort de vie Elle est à vendre pour la somme de 316 500 €.Contactez Aurélie CAGNARD (tél : (Numéro supprimé)) pour toute question sur cette maison ou sur les démarches à suivre.
Plouénan
TERRAINDans la charmante commune de Plouénan, un terrain exceptionnel de 513m² est sur le marché. Ce terrain, idéalement situé, offre une opportunité rare d’investissement et de construction dans une zone recherchée.Ce terrain se distingue par son emplacement de choix. L’atout majeur de ce terrain est sans aucun doute sa superficie généreuse de 513m². Cet espace offre une grande liberté pour la construction de votre future maison. Si vous envisagiez une maison familiale ce terrain est idéal pour réaliser vos projets.De plus, ce terrain bénéficie d’une excellente exposition. Il promet une luminosité optimale tout au long de la journée, un atout de taille pour profiter au maximum de votre future habitation.N’attendez plus pour découvrir ce terrain de 513m² à Plouénan, une opportunité à ne pas manquer pour concrétiser vos projets immobiliers.Son prix de vente est de 52 900 €. N’hésitez pas à prendre contact avec Aurélie CAGNARD (tél : (Numéro supprimé)) pour obtenir de plus amples informations sur ce terrain.
Plouénan
TERRAIN ET MAISONMaison de 4 pièces (67 m²) en vente à PlouénanCette belle maison traditionnelle aux lignes traditionnelles offre 67m² habitable . Elle est évolutive.Au rez-de-chaussée, elle dispose d’une belle pièce de vie offrant un maximum de lumière, d’un wc, d’un cellier.A l’étage on retrouve 3 chambres, une salle de bains, et un WC. L’orientation de cette maison vous permettra de bénéficier d’un maximum de lumière et de chaleur naturelle pour davantage d’économies et de douceur de vivre.Son prix de vente est de 186 900 €.Prenez contact avec Aurélie CAGNARD (tél : (Numéro supprimé)) pour toute question sur cette maison, sur les démarches à suivre ou sur les modalités de vente. Maisons de l’Avenir Guipavas est là pour vous accompagner à toutes les étapes de l’achat.
Plouénan
TERRAIN ET MAISONPlouénan : maison de 5 pièces (124 m²) à vendreCe très beau plain-pied aux lignes contemporaine, de 124 m² agencé astucieusement pour un maximum de luminosité, pièce de vie ouverte et volumineuse, 4 chambres dont 1 suite parentale et son grand cellier. Aux normes RE2020, peu énergivore, elle vous ravira par son confort de vie.Cette maison vous permettra de bénéficier d’un maximum de lumière et de chaleur naturelle pour davantage d’économies et de douceur de vivre.Elle est proposée à l’achat pour 338 100 €.Prenez contact avec Aurélie CAGNARD (tél : (Numéro supprimé)) pour toute information sur la maison ou sur les démarches à suivre. Maisons de l’Avenir Guipavas vous accompagne dans tous vos projets immobiliers et à toutes les étapes de votre projet.
Plouénan
TERRAIN ET MAISONVENTE : maison de 5 pièces (99 m²) à PlouénanCette belle maison traditionnelle aux lignes contemporaines offre 99m² habitable .Au rez-de-chaussée, elle dispose d’une belle pièce de vie offrant un maximum de lumière, d’une grande suite parentale avec sa salle d’eau, d’un wc et d’un garage.A l’étage on retrouve 2 chambres, une salle de bains, et un WC. L’orientation de cette maison vous permettra de bénéficier d’un maximum de lumière et de chaleur naturelle pour davantage d’économies et de douceur de vivre.Son prix de vente est de 280 750 €.Contactez Aurélie CAGNARD ((Numéro supprimé)) pour tout renseignement sur la maison. Donnez vie à vos projets immobiliers avec Maisons de l’Avenir Guipavas.
Plouvorn
TERRAINJoli terrain sur PLOUVORN, plat et idéalement situé, parfait pour réaliser votre projet de construction avec notre entreprise.- Superficie : 367m²- Terrain : Plat et facile à aménager- Emplacement : Idéalement situé dans un cadre agréable- Prix Hors fraisNe manquez pas cette opportunité !Pour plus d’informations, contactez nous au (Numéro supprimé).
Guiclan
TERRAIN ET MAISONVous rêvez d’une maison neuve, moderne et adaptée à vos besoins ? Nous vous proposons un projet de construction comprenant :- Une maison individuelle comprenant : 3 chambres spacieuses, un grand salon lumineux, une cuisine fonctionnelle, WC , salle(s) de bain/d’eau sur un terrain de 551 m², idéalement situé à GUICLAN.Profitez d’une maison sur-mesure, conçue pour votre confort et votre bien-être ! Maison RE2020 à faible consommation d’énergies. Prix hors frais. Photos non contractuelles et illustratives. Possibilité d’accession à la propriété avec un CDI (hors CAF, RSA et Pôle Emploi). Pour tout renseignement supplémentaire, contactez nous au (Numéro supprimé).
Guiclan
TERRAINJoli terrain sur GUICLAN, plat et idéalement situé, parfait pour réaliser votre projet de construction avec notre entreprise.- Superficie : 520 m²- Terrain : Plat et facile à aménager- Emplacement : Idéalement situé dans un cadre agréable- Prix Hors fraisNe manquez pas cette opportunité !Pour plus d’informations, contactez nous au (Numéro supprimé).
L’actualité immobilière à Guiclan
27/11/2023
02/11/2023
30/10/2023
20/10/2023
16/10/2023
16/10/2023