Maison à construire à Guiclan (29410)
Images
Description
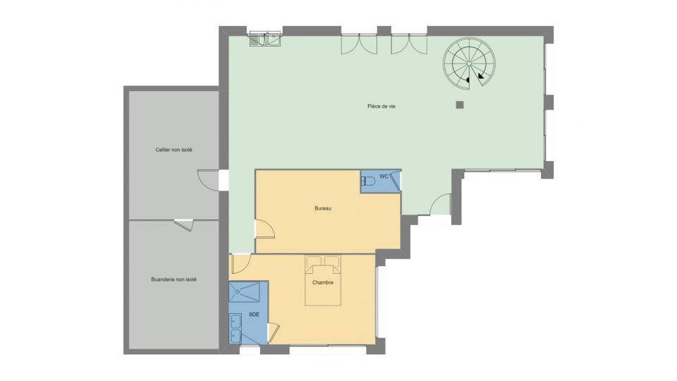
Guiclan : maison T6 (183 m²) à vendre
1 384 m² de terrain à Guiclan (29410).
Cette belle maison traditionnelle aux lignes contemporaines offre 183m² habitable . Au rez-de-chaussée, elle dispose d'une belle pièce de vie offrant un maximum de lumière, d'une grande suite parentale avec sa salle d'eau, d'un wc, d'un cellier et d'une buanderie.
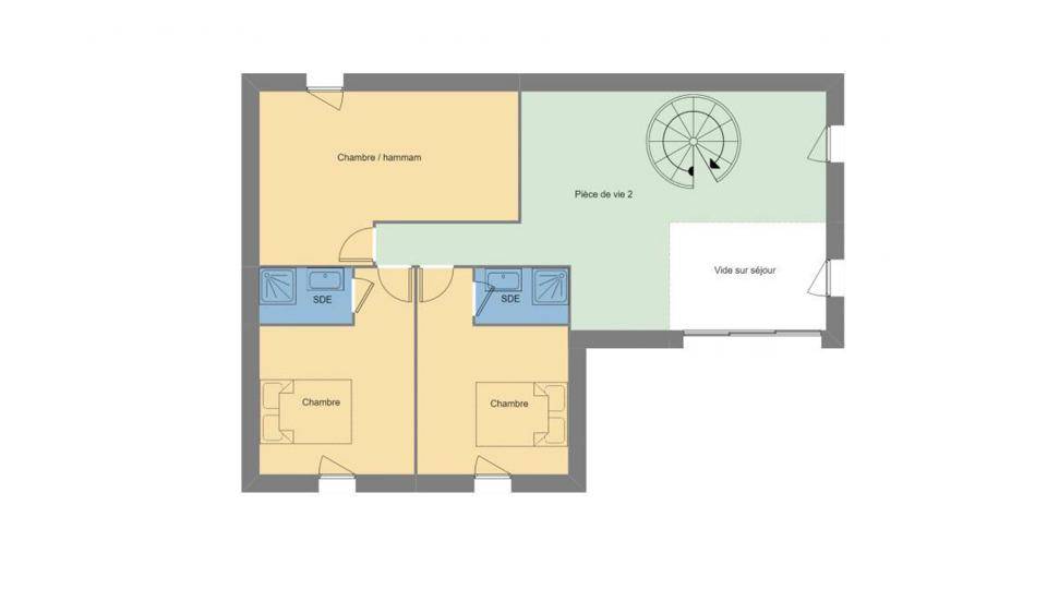
A l'étage on retrouve 3 chambres et une salle de bain.
L'orientation de cette maison vous permettra de bénéficier d'un maximum de lumière et de chaleur naturelle pour davantage d'économies et de douceur de vivre.
Aux normes RE2020, peu énergivore, elle vous ravira par son confort de vie.
Elle est à vendre pour la somme de 467 100 €.
Contactez notre agence (CAGNARD Aurélie : (Numéro supprimé)) pour obtenir de plus amples informations sur la maison. Maisons de l'Avenir Guipavas est là pour vous accompagner dans toutes vos démarches.
Logement susceptibles de vous intéresser
Nous vous proposons de découvrir aussi cette sélection de logements situés à moins de 10km de Guiclan et qui seraient susceptibles de vous intéresser.
Guiclan
TERRAINVENTE d’un terrain de 1 384 m² à GuiclanÀ Guiclan (29410), imaginez la maison de vos rêves sur ce terrain de 1 384 m². Il est à vendre pour la somme de 49 500 €. Prenez contact avec notre agence (Aurélie CAGNARD : (Numéro supprimé)) pour plus d’informations sur ce terrain, sur les modalités de vente et sur les démarches à suivre.
Guiclan
TERRAIN ET MAISONGuiclan : maison T6 (183 m²) à vendre1 384 m² de terrain à Guiclan (29410).Cette belle maison traditionnelle aux lignes contemporaines offre 183m² habitable . Au rez-de-chaussée, elle dispose d’une belle pièce de vie offrant un maximum de lumière, d’une grande suite parentale avec sa salle d’eau, d’un wc, d’un cellier et d’une buanderie.A l’étage on retrouve 3 chambres et une salle de bain. L’orientation de cette maison vous permettra de bénéficier d’un maximum de lumière et de chaleur naturelle pour davantage d’économies et de douceur de vivre.Aux normes RE2020, peu énergivore, elle vous ravira par son confort de vie.Elle est à vendre pour la somme de 467 100 €.Contactez notre agence (CAGNARD Aurélie : (Numéro supprimé)) pour obtenir de plus amples informations sur la maison. Maisons de l’Avenir Guipavas est là pour vous accompagner dans toutes vos démarches.
Guiclan
TERRAIN ET MAISONGuiclan : maison de 4 pièces (114 m²) à vendreCette belle maison traditionnelle aux lignes contemporaines offre 114m² habitable . Au rez-de-chaussée, elle dispose d’une belle pièce de vie offrant un maximum de lumière, d’un wc, un cellier et d’un garage. A l’étage on retrouve 3 chambres, 2 salles d’eau, un WC un bureau et un grand vide sur séjour. L’orientation de cette maison vous permettra de bénéficier d’un maximum de lumière et de chaleur naturelle pour davantage d’économies et de douceur de vivre.Son prix de vente est de 315 300 €.N’hésitez pas à prendre contact avec notre agence (Aurélie CAGNARD : (Numéro supprimé)) pour plus de renseignements sur la maison, sur les modalités de vente ou sur les démarches à suivre. Maisons de l’Avenir Guipavas vous accompagne à toutes les étapes de l’achat et dans tous vos projets immobiliers.
Guiclan
TERRAIN ET MAISONVENTE d’une maison T5 (90 m²) à GuiclanCe très beau plain-pied aux lignes traditionnelles, de 90m² agencé astucieusement pour un maximum de luminosité, pièce de vie ouverte et volumineuse, 4 chambres, salle de bain, wc et son garage.Aux normes RE2020, peu énergivore, elle vous ravira par son confort de vie Son prix de vente est de 262 500 €.Contactez notre agence (CAGNARD Aurélie : (Numéro supprimé)) pour obtenir de plus amples informations sur cette maison. Concrétisez vos projets immobiliers avec Maisons de l’Avenir Guipavas.
Guiclan
TERRAIN ET MAISONVENTE : maison F5 (104 m²) à GuiclanNouveau Murs Ossature BoisCette belle maison traditionnelle aux lignes contemporaines offre 104m² habitable . Elle dispose d’une belle pièce de vie offrant un maximum de lumière, 4 chambres, une salle de bains, un WC, ainsi qu’un cellier et un garage. L’orientation de cette maison vous permettra de bénéficier d’un maximum de lumière et de chaleur naturelle pour davantage d’économies et de douceur de vivre.Elle est proposée à l’achat pour 292 300 €.Contactez Aurélie CAGNARD (tél : (Numéro supprimé)) pour obtenir de plus amples renseignements sur la maison ou sur les modalités de vente.
Landivisiau
TERRAINÀ vendre, magnifique terrain de 915m² idéalement situé à Landivisiau, une charmante ville qui allie parfaitement le calme de la campagne et la proximité des commodités urbaines.Ce terrain, offrant une surface généreuse, présente une opportunité unique de construire la maison de vos rêves. L’emplacement est un véritable atout. En effet, le terrain se trouve dans la paisible et dynamique commune de Landivisiau offrant un cadre de vie agréable. Vous serez à proximité de toutes les commodités nécessaires au quotidien : écoles, commerces, services de santé.Vous pourrez profiter de nombreuses activités de plein air et de belles balades dans la nature environnante.Enfin, la parcelle bénéficie d’une belle exposition, garantissant une luminosité optimale tout au long de la journée.Il est à vendre pour la somme de 79 000 €. Prenez contact avec notre agence (CAGNARD Aurélie : (Numéro supprimé)) pour toute information sur le terrain. Maisons de l’Avenir Guipavas vous accompagne dans toutes vos démarches et dans tous vos projets immobiliers.
Landivisiau
TERRAIN ET MAISONMaison de 4 pièces (69 m²) à vendre à LandivisiauCette belle maison traditionnelle aux lignes contemporaines offre 69m² habitable . Au rez-de-chaussée, elle dispose d’une belle pièce de vie offrant un maximum de lumière, d’un wc et d’un garage. A l’étage on retrouve 3 chambres, une salle de bains, et un WC. L’orientation de cette maison vous permettra de bénéficier d’un maximum de lumière et de chaleur naturelle pour davantage d’économies et de douceur de vivre.Son prix de vente est de 238 900 €.Contactez notre agence (CAGNARD Aurélie : (Numéro supprimé)) pour toute information sur cette maison. Maisons de l’Avenir Guipavas est là pour vous accompagner dans tous vos projets immobiliers.
Landivisiau
TERRAIN ET MAISONMaison F4 (139 m²) à vendre à LandivisiauCette belle maison traditionnelle aux lignes contemporaines offre 139m² habitable . Au rez-de-chaussée, elle dispose d’une belle pièce de vie offrant un maximum de lumière, d’une grande suite parentale avec sa salle d’eau, d’un wc, d’un très grand cellier et son garage.A l’étage on retrouve 2 chambres et une salle de bain. L’orientation de cette maison vous permettra de bénéficier d’un maximum de lumière et de chaleur naturelle pour davantage d’économies et de douceur de vivre.Aux normes RE2020, peu énergivore, elle vous ravira par son confort de vie.Elle est à vendre pour la somme de 427 600 €.Contactez notre agence (Aurélie CAGNARD : (Numéro supprimé)) pour obtenir de plus amples informations sur cette maison, sur les démarches à suivre ou sur les modalités de vente.
Landivisiau
TERRAIN ET MAISONLandivisiau :Cette belle maison traditionnelle aux lignes contemporaines offre 117m² habitable . Au rez-de-chaussée, elle dispose d’une belle pièce de vie de 38m² offrant un maximum de lumière, d’une suite parentale avec sa salle d’eau, d’un wc et d’un garage. A l’étage on retrouve 4 chambres, une salle de bains, et un WC. L’orientation de cette maison vous permettra de bénéficier d’un maximum de lumière et de chaleur naturelle pour davantage d’économies et de douceur de vivre.Elle est proposée à l’achat pour 363 500 €.Contactez notre constructeur (Aurélie CAGNARD : (Numéro supprimé)) pour obtenir de plus amples renseignements sur cette maison. Maisons de l’Avenir Guipavas est là pour vous accompagner dans toutes vos démarches.
L’actualité immobilière à Guiclan
27/11/2023
02/11/2023
30/10/2023
20/10/2023
16/10/2023
16/10/2023