Maison à construire à Guilvinec (29730)
Images
Description
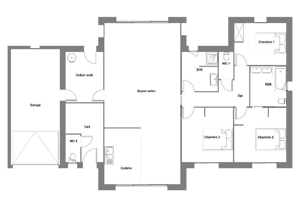
VENTE : maison F4 (150 m²) à Guilvinec
QUARTIER RECHERCHÉ - MAISON 4 PIÈCES NEUVE
En vente : située sur la côte atlantique et à 26 km de Quimper, laissez vous charmer par cette maison de 4 pièces de plain-pied de 150 m² et de 625 m² de terrain située dans un secteur convoité de Guilvinec (29730). Son intérieur se divise en trois chambres, une cuisine et deux salles de bains.
La maison est neuve.
Cette maison se situe dans un quartier recherché. Quatre établissements scolaires se trouvent à proximité, tout comme une crèche. Il y a une bibliothèque, un port de plaisance, des commerces, trois boulangeries, deux supermarchés, une poissonnerie et une boucherie-charcuterie à proximité du bien. Enfin, le marché Place de l'Eglise a lieu chaque mardi matin.
Son prix de vente est de 405 000 €.
N'hésitez pas à prendre contact avec Marie LAURENT (tél : (Numéro supprimé)) pour toute question sur le bien, sur les démarches à suivre ou sur les modalités de vente. Maisons de l'Avenir Quimper vous accompagne à toutes les étapes de l'achat et dans tous vos projets immobiliers.
Logement susceptibles de vous intéresser
Nous vous proposons de découvrir aussi cette sélection de logements situés à moins de 10km de Guilvinec et qui seraient susceptibles de vous intéresser.
Plomeur
TERRAIN29120 – PLOMEUR – CENTRE-VILLE – TERRAIN – 3600m² – OPPORTUNITÉ À SAISIR POUR UN PROJET D’EXTERIEUReffiCity, l’agence qui estime votre bien en ligne, vous présente ce vaste terrain de 3600.0 m² situé en plein cœur du centre-ville de Plomeur.Sa surface généreuse permet d’envisager différentes possibilités d’aménagement.Bénéficiant d’une localisation stratégique, proche de toutes les commodités et des axes de transport, ce terrain constitue une occasion rare sur le marché immobilier.Ne manquez pas cette opportunité unique de donner vie à votre projet dans un environnement dynamique et en plein essor. N’hésitez pas à nous contacter pour plus d’informations et pour organiser une visite. Les informations sur les risques auxquels ce bien est exposé sont disponibles sur le site Georisque : georisques. gouv. fr Erwan Stephan – EI – est Agent Commercial mandataire en immobilier, immatriculé au Registre Spécial des Agents Commerciaux du Tribunal de Commerce de Quimper sous le n(Numéro supprimé).Siège social du mandant : effiCity, 48 avenue de Villiers – 75017 PARIS – Société par Actions Simplifiée, société au capital de 132 373,05 euros, immatriculée au RCS Paris 497 617 746 et titulaire de la Carte professionnelle CPI 7501 2015 000 002 025 – CCI Paris IDF – Caisse de Garantie : GALIAN Assurances 89 rue de la Boétie 75008 Paris
Guilvinec
TERRAIN29730 – GUILVINEC – CENTRE-VILLE – TERRAIN CONSTRUCTIBLE DE 3067.0 M² – OPPORTUNITÉ RARE À SAISIR DANS UN CADRE IDYLLIQUEeffiCity, l’agence qui estime votre bien en ligne, vous propose ce terrain non constructible de 3000 m² situé en plein cœur du charmant centre-ville de Guilvinec.Idéalement placé, ce terrain est à quelques pas des commerces, des restaurants et du port typique de la région.La superficie généreuse du terrain permet de profiter d’un cadre de vie paisible à quelques minutes seulement des plages et des activités nautiques.Ne manquez pas cette opportunité rare de devenir propriétaire d’un terrain au Guilvinec. Les informations sur les risques auxquels ce bien est exposé sont disponibles sur le site Georisque : georisques. gouv. fr Erwan Stephan – EI – est Agent Commercial mandataire en immobilier, immatriculé au Registre Spécial des Agents Commerciaux du Tribunal de Commerce de Quimper sous le n(Numéro supprimé).Siège social du mandant : effiCity, 48 avenue de Villiers – 75017 PARIS – Société par Actions Simplifiée, société au capital de 132 373,05 euros, immatriculée au RCS Paris 497 617 746 et titulaire de la Carte professionnelle CPI 7501 2015 000 002 025 – CCI Paris IDF – Caisse de Garantie : GALIAN Assurances 89 rue de la Boétie 75008 Paris
Guilvinec
TERRAIN29730 – GUILVINEC – CENTRE-VILLE – TERRAIN CONSTRUCTIBLE – 483 m² – OPPORTUNITÉ RARE À SAISIR POUR PROJET DE CONSTRUCTIONeffiCity, l’agence qui estime votre bien en ligne, vous propose ce magnifique terrain de 483 m² situé en plein cœur du centre-ville de Guilvinec.Ce terrain offre une belle surface pour réaliser votre projet de construction sur mesure, dans un environnement calme et résidentiel. Idéalement situé, vous pourrez profiter de tous les avantages de la vie en centre-ville tout en bénéficiant d’un espace extérieur spacieux pour créer un jardin d’exception.L’emplacement de ce terrain est un véritable atout, à proximité immédiate des commerces, des écoles et des transports en commun, vous pourrez profiter de tous les services à pied.Ne manquez pas cette opportunité rare de construire la maison de vos rêves dans un cadre idyllique au cœur de Guilvinec. Contactez-nous dès maintenant pour organiser une visite et concrétiser votre projet immobilier. Les informations sur les risques auxquels ce bien est exposé sont disponibles sur le site Georisque : georisques. gouv. fr Erwan Stephan – EI – est Agent Commercial mandataire en immobilier, immatriculé au Registre Spécial des Agents Commerciaux du Tribunal de Commerce de Quimper sous le n(Numéro supprimé).Siège social du mandant : effiCity, 48 avenue de Villiers – 75017 PARIS – Société par Actions Simplifiée, société au capital de 132 373,05 euros, immatriculée au RCS Paris 497 617 746 et titulaire de la Carte professionnelle CPI 7501 2015 000 002 025 – CCI Paris IDF – Caisse de Garantie : GALIAN Assurances 89 rue de la Boétie 75008 Paris
Penmarch
TERRAINVENTE d’un terrain de 750 m² à PenmarchPROCHE DE QUIMPERÀ Penmarch (29760) à 4 km de l’océan Atlantique et à quelques kilomètres de Quimper, donnez vie à votre résidence principale ou secondaire sur ce terrain de 750 m². Il est proposé à l’achat pour 75 000 €. Contactez Mathieu DEROUET (tél : (Numéro supprimé)) pour obtenir de plus amples informations sur ce terrain, sur les démarches à suivre et sur les modalités de vente. Maisons de l’Avenir Quimper est là pour vous accompagner à toutes les étapes de votre projet.
Penmarch
TERRAIN ET MAISONVENTE d’une maison de 5 pièces (170 m²) à PenmarchPROCHE DE QUIMPER – MAISON 5 PIÈCES NEUVEÀ vendre : localisée sur le littoral atlantique et à 27 km de Quimper, nous sommes ravis de vous proposer à Penmarch (29760), cette maison de 5 pièces de 170 m².C’est une maison de 2 niveaux. Elle comporte quatre chambres, une cuisine et deux salles de bains.Le terrain de la propriété est de 750 m².é, un commerce, un bureau de poste et une épicerie à proximité de la maison.Il est proposé à l’achat pour 501 000 €.N’hésitez pas à prendre contact avec notre agence (Mathieu DEROUET : (Numéro supprimé)) pour toute question sur cette maison, sur les démarches à suivre ou sur les modalités de vente. Concrétisez vos projets immobiliers avec Maisons de l’Avenir Quimper.
Penmarch
TERRAIN ET MAISONMaison de 4 pièces (80 m²) en vente à PenmarchPROCHE DE QUIMPER – MAISON 4 PIÈCES NEUVEÀ vendre : à 4 km de la côte atlantique et à deux pas de Quimper, ayez le coup de coeur pour à Penmarch (29760), cette maison de 4 pièces de 80 m² et de 750 m² de terrain.Il s’agit d’une maison de 2 niveaux. Son intérieur offre trois chambres, une cuisine et une salle de bains.Son prix de vente est de 258 000 €.Prenez contact avec Mathieu DEROUET ((Numéro supprimé)) pour toute information sur la maison, sur les démarches à suivre ou sur les modalités de vente.
Penmarch
TERRAIN ET MAISONPenmarch : maison T5 (105 m²) en ventePROCHE DE QUIMPER – MAISON 5 PIÈCES NEUVEEn vente : à 4 km de la côte atlantique et à quelques kilomètres de Quimper, laissez vous charmer par cette maison de 5 pièces de 105 m² et de 750 m² de terrain à Penmarch (29760).Cette maison comporte 2 niveaux. Elle propose quatre chambres, une cuisine et deux salles de bains. Elle est proposée à l’achat pour 336 000 €.Contactez Mathieu DEROUET ((Numéro supprimé)) pour tout renseignement sur la maison.
Penmarch
TERRAIN ET MAISONVENTE : maison T4 (95 m²) à PenmarchMAISON 4 PIÈCES NEUVE – PROCHE DE QUIMPEREn vente sur la côte atlantique et à 27 km de Quimper, nous sommes ravis de vous proposer cette maison de 4 pièces de plain-pied de 95 m² et de 750 m² de terrain à Penmarch (29760).Conçue de plain-pied, elle se divise en trois chambres, une cuisine et une salle de bains. Elle est à vendre pour la somme de 299 000 €.N’hésitez pas à prendre contact avec Mathieu DEROUET ((Numéro supprimé)) pour obtenir de plus amples informations sur la maison ou sur les démarches à suivre.
Penmarch
TERRAIN ET MAISONVENTE d’une maison T4 (85 m²) à PenmarchMAISON 4 PIÈCESOSSATURE BOIS – PROCHE DE QUIMPERÀ vendre sur le littoral atlantique et à 27 km de Quimper, nous sommes heureux de vous proposer cette maison de 4 pièces de plain-pied de 85 m² à Penmarch (29760). Conçue de plain-pied, elle se divise en trois chambres, une cuisine et une salle de bains.Le terrain de la propriété s’étend sur 750 m².Elle est proposée à l’achat pour 306 600 €.Prenez contact avec notre agence (Mathieu DEROUET : (Numéro supprimé)) pour toute information sur la maison, sur les démarches à suivre et sur les modalités de vente. Maisons de l’Avenir Quimper vous accompagne dans tous vos projets immobiliers et à toutes les étapes de votre projet.
L’actualité immobilière à Guilvinec
27/11/2023
02/11/2023
30/10/2023
20/10/2023
16/10/2023
16/10/2023